Bạn đã bao giờ mơ về một ngôi nhà mà chỉ cần nhìn từ xa, người ta đã thấy được sự tinh tế, nhẹ nhàng nhưng vẫn cực kỳ đẳng cấp chưa? Đó chính là cảm xúc mà đội ngũ KTS tại Techhome gửi gắm vào hồ sơ thiết kế kỹ thuật thi công cho công trình nhà ở gia đình của anh Khang tại Quảng Ngãi. Giữa nhịp sống hối hả, một mẫu nhà phố 2 tầng hiện đại với những đường cong mềm mại không chỉ là nơi để che mưa che nắng, mà còn là một tác phẩm nghệ thuật khẳng định gu thẩm mỹ khác biệt của gia chủ.
1. Xu hướng thiết kế mẫu nhà phố 2 tầng hiện đại: Khi những đường cong lên ngôi
Trong những năm gần đây, xu hướng kiến trúc đã dần dịch chuyển từ những khối hộp vuông vức, cứng nhắc sang sự lên ngôi của các đường nét bo tròn, mềm mại. Mẫu nhà phố 2 tầng hiện đại của gia đình anh Khang là một minh chứng điển hình cho phong cách này.
Nhìn vào phối cảnh mặt tiền, bạn sẽ thấy sự xuất hiện của hệ vòm lớn tại khu vực ban công tầng 2. Đây là điểm nhấn đắt giá nhất, giúp ngôi nhà thoát khỏi cảm giác đơn điệu của những bức tường phẳng. Kết hợp cùng tông màu trắng kem nhã nhặn và hệ nan gỗ trang trí, tổng thể ngôi nhà toát lên vẻ thanh lịch, hiện đại nhưng cũng rất gần gũi với thiên nhiên. Việc lựa chọn mẫu nhà phố 2 tầng hiện đại theo phong cách này giúp tối ưu hóa diện tích mặt tiền 6m, tạo cảm giác không gian rộng rãi và thoáng đãng hơn rất nhiều so với thực tế.

2. Phân tích công năng chi tiết: Giải pháp cho gia đình đông thành viên
Một trong những bài toán khó nhất khi thiết kế nhà phố là làm sao để bố trí được nhiều phòng ngủ mà vẫn đảm bảo sự thông thoáng. Với diện tích xây dựng khoảng 90m2 – 95m2 mỗi sàn, mẫu nhà phố 2 tầng hiện đại này đã khéo léo bố trí tới 4 phòng ngủ, đáp ứng hoàn hảo nhu cầu sinh hoạt cho gia đình từ 2 đến 3 thế hệ.
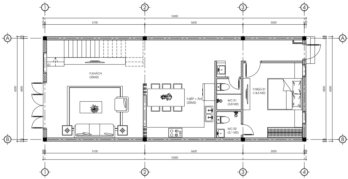
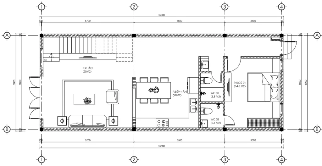
Tầng 1: Không gian kết nối và sự tiện nghi tối đa
Bước qua cổng chính với hệ cửa sắt sơn tĩnh điện họa tiết xương cá hiện đại, chúng ta sẽ bắt gặp không gian tầng 1 được phân bổ cực kỳ khoa học:
-
Phòng khách (25m2): Đây là “trái tim” của ngôi nhà, nơi đón nhận ánh sáng tự nhiên qua hệ cửa kính lớn. Diện tích 25m2 là con số lý tưởng để gia chủ có thể thoải mái bài trí những bộ sofa sang trọng.
-
Phòng bếp + ăn (20m2): Được thiết kế liên thông với phòng khách, tạo nên một không gian mở xuyên suốt. Việc không sử dụng vách ngăn cứng giúp mẫu nhà phố 2 tầng hiện đại trở nên rộng rãi, giúp bà nội trợ dễ dàng quan sát con cái khi đang nấu nướng.
-
Phòng ngủ 01 (14.5m2): Một điểm cộng lớn là phòng ngủ dưới tầng 1 dành cho người lớn tuổi hoặc gia chủ, kết hợp vệ sinh khép kín tiện nghi.
-
Hệ thống vệ sinh: Tầng 1 được bố trí 2 WC (3.8m2 và 2.1m2), đảm bảo sự riêng tư và tiện lợi trong sinh hoạt hằng ngày.
-
Sân ướt và đất trồng cây phía sau: KTS Techhome đã khéo léo chừa ra một khoảng sân ướt phía sau để làm khu vực sơ chế thực phẩm và trồng cây xanh, giúp ngôi nhà luôn có sự đối lưu không khí tốt.

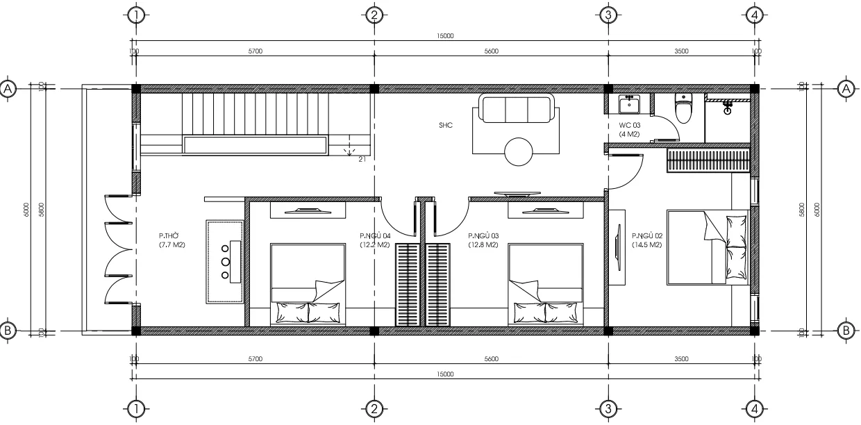
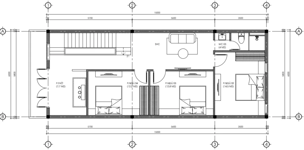
Tầng 2: Nơi nghỉ ngơi yên bình và riêng tư
Nếu tầng 1 là nơi náo nhiệt thì tầng 2 của mẫu nhà phố 2 tầng hiện đại này lại là chốn riêng tư tuyệt đối:
-
Phòng thờ (7.7m2): Được đặt ở vị trí trang trọng nhất phía trước nhà, có cửa hướng ra ban công, đảm bảo sự tôn nghiêm và thông thoáng.
-
Phòng sinh hoạt chung (SHC): Một không gian nhỏ giữa tầng để cả gia đình có thể cùng nhau đọc sách hoặc trò chuyện trước khi đi ngủ.
-
3 Phòng ngủ còn lại: Gồm phòng ngủ 02 (14.5m2), phòng ngủ 03 (12.8m2) và phòng ngủ 04 (12.2m2). Mỗi phòng đều được tính toán vị trí đặt cửa sổ để tận dụng ánh sáng tự nhiên.
-
WC 03 (4m2): Được thiết kế rộng rãi để phục vụ nhu cầu của các thành viên trên tầng 2.

3. Những thông số kỹ thuật “biết nói” của mẫu nhà phố 2 tầng hiện đại
Là một chuyên gia, tôi luôn khuyên khách hàng hãy chú ý đến những chi tiết kỹ thuật nhỏ, bởi đó mới là thứ tạo nên sự thoải mái khi sử dụng lâu dài. Trong hồ sơ thiết kế của Techhome, các thông số được tính toán cực kỳ tỉ mỉ:
-
Chiều cao tầng: Tầng 1 cao 3.7m và tầng 2 cao 3.5m. Đây là độ cao “vàng” giúp không gian luôn thoáng đãng, dễ dàng lắp đặt trần thạch cao và đèn trang trí mà không lo bị bí bách.
-
Cầu thang bộ: Được thiết kế 21 bậc, mỗi bậc cao 176mm. Con số 21 bậc rơi vào cung “Sinh” trong phong thủy, mang lại may mắn cho gia chủ. Đồng thời, chiều cao bậc 176mm là kích thước tiêu chuẩn giúp việc đi lại không bị mỏi chân, đặc biệt an toàn cho trẻ nhỏ và người già.
Sở hữu một mẫu nhà phố 2 tầng hiện đại không chỉ là sở hữu diện tích đất, mà là sở hữu những tính toán khoa học về không gian sống như thế này.

4. Tại sao mẫu nhà phố 2 tầng hiện đại này lại “hot” tại Quảng Ngãi?
Quảng Ngãi là khu vực có khí hậu tương đối khắc nghiệt với nắng nóng và mùa mưa bão. Do đó, việc thiết kế nhà ở cần phải tính đến yếu tố bền vững. Mẫu nhà phố 2 tầng hiện đại của anh Khang sử dụng hệ mái bằng bê tông cốt thép kiên cố, phía trên được lát gạch chống thấm và chống nóng hiệu quả.
Hệ thống cửa kính cường lực khung nhôm xingfa cao cấp không chỉ giúp ngôi nhà trông sang trọng hơn mà còn có khả năng chịu lực tốt, ngăn nước mưa tràn vào nhà trong mùa bão. Hơn nữa, việc sử dụng các mảng xanh ở ban công và sân sau giúp giảm nhiệt độ đáng kể cho mẫu nhà phố 2 tầng hiện đại trong những ngày hè oi ả của miền Trung.

5. Báo giá tham khảo thi công mẫu nhà phố 2 tầng hiện đại (Năm 2026)
Để bạn có cái nhìn thực tế hơn về chi phí đầu tư, Techhome xin đưa ra bảng báo giá tham khảo dựa trên quy mô và vật liệu của mẫu nhà phố 2 tầng hiện đại này. Lưu ý: Đơn giá có thể thay đổi tùy vào thời điểm và vị trí xây dựng thực tế.
| Hạng mục | Đơn giá tham khảo | Ghi chú |
| Thiết kế kiến trúc | 108.000 đ/m2 |
Hồ sơ đầy đủ kiến trúc, kết cấu, điện nước. |
| Thi công phần thô | 3.800.000 – 4.200.000 đ/m2 | Bao gồm vật tư thô và nhân công. |
| Thi công trọn gói (Chìa khóa trao tay) | 6.500.000 – 7.500.000 đ/m2 | Tùy vào mức độ cao cấp của vật liệu hoàn thiện. |
Với diện tích sàn khoảng 185m2 (tổng 2 tầng), chi phí để hoàn thiện một mẫu nhà phố 2 tầng hiện đại như của anh Khang sẽ dao động trong khoảng từ 1,2 tỷ đến 1,4 tỷ đồng. Đây là mức đầu tư cực kỳ hợp lý cho một không gian sống đẳng cấp và đầy đủ tiện nghi.
Lưu ý: Đây chỉ là mức chi phí ước tính. Để nhận được báo giá chính xác và chi tiết nhất cho công trình của bạn, vui lòng liên hệ trực tiếp với chúng tôi. Hoặc để tìm hiểu rõ hơn về tiêu chuẩn vật liệu xây dựng và các yếu tố ảnh hưởng đến chi phí, bạn có thể tham khảo thêm tại các bài viết chuyên sâu về vật liệu xây dựng cao cấp trên Wikipedia.

6. Góc nhìn chuyên gia: Bí kíp để mẫu nhà phố 2 tầng hiện đại đẹp như bản vẽ
Nhiều người lo lắng rằng “vẽ thì đẹp nhưng xây lên lại không giống”. Với kinh nghiệm nhiều năm trong ngành, Techhome xin chia sẻ vài lưu ý nhỏ để ngôi nhà của bạn đạt độ thẩm mỹ cao nhất:
-
Lựa chọn đội thợ tay nghề cao: Những đường bo cong ở mặt tiền mẫu nhà phố 2 tầng hiện đại đòi hỏi kỹ thuật xây trát rất tỉ mỉ. Nếu thợ làm không khéo, các đường cong sẽ bị méo mó, làm mất đi vẻ đẹp tinh tế của công trình.
-
Chú trọng hệ thống ánh sáng: Đừng chỉ lắp một vài chiếc bóng tuýp đơn điệu. Hãy sử dụng hệ thống đèn led âm trần, đèn hắt ban công để biến mẫu nhà phố 2 tầng hiện đại trở nên lung linh hơn vào ban đêm.
-
Màu sơn là yếu tố quyết định: Hãy chọn những thương hiệu sơn uy tín với bảng màu trung tính như trắng, kem, xám nhạt để giữ cho ngôi nhà luôn mới và không bị lỗi mốt theo thời gian.
Một mẫu nhà phố 2 tầng hiện đại đẹp không chỉ ở thiết kế mà còn ở cái “tâm” của người thi công và sự chăm chút của chủ nhà.

7. Techhome – Đơn vị tư vấn thiết kế và thi công uy tín
Nếu bạn đang tìm kiếm một đơn vị có thể biến ý tưởng về một mẫu nhà phố 2 tầng hiện đại thành hiện thực, hãy để Techhome đồng hành cùng bạn. Chúng tôi không chỉ bán bản vẽ, chúng tôi bán giải pháp về không gian sống.
Mọi chi tiết xin liên hệ hỗ trợ tư vấn kỹ thuật xây dựng qua hotline: 0364.042.222 hoặc 0387.603.333. Chúng tôi luôn sẵn sàng lắng nghe và giải đáp mọi thắc mắc của bạn về mẫu nhà phố 2 tầng hiện đại và các công trình dân dụng khác.
Hy vọng qua bài viết này, bạn đã có thêm nhiều cảm hứng cho ngôi nhà tương lai của mình. Mẫu nhà phố 2 tầng hiện đại không chỉ là một trào lưu, đó là phong cách sống của những con người yêu cái đẹp và sự tiện nghi.

Kết luận: Ngôi nhà của anh Khang tại Quảng Ngãi là một ví dụ tuyệt vời cho việc kết hợp giữa công năng và thẩm mỹ. Đừng ngần ngại đầu tư vào thiết kế ngay từ đầu để có được một mẫu nhà phố 2 tầng hiện đại ưng ý nhất. Hãy nhớ rằng, ngôi nhà là tài sản lớn nhất của đời người, hãy để nó xứng đáng với công sức bạn đã bỏ ra!
Chúng tôi rất mong được hỗ trợ bạn trong những dự án sắp tới. Nếu bạn cần xem thêm các dự án mẫu nhà phố 2 tầng hiện đại khác, hãy truy cập ngay website: https://nhadeptechhome.vn/.
