Xây nhà là chuyện cả đời. Có những người thích sự bề thế của biệt thự, nhưng phần lớn các gia đình trẻ hiện nay lại ưu tiên sự tiện dụng, hiện đại và tối ưu chi phí. Câu chuyện về ngôi nhà của anh Đông tại Hương Gián, Bắc Giang mà Kiến trúc TechHome muốn kể hôm nay là một ví dụ điển hình như thế.
Sở hữu mảnh đất có thế “nở hậu” cực đẹp nhưng lại khá dài và hẹp ngang, anh Đông đã trăn trở rất nhiều để tìm ra một mẫu nhà ống 2 tầng đẹp vừa ý. Làm sao để nhà ống không bị bí? Làm sao để mặt tiền 4.7m trông rộng hơn thực tế? Hãy cùng TechHome khám phá lời giải trong bài viết dưới đây.
1. Thông tin tổng quan dự án tại Bắc Giang
Trước khi đi sâu vào chi tiết thiết kế, TechHome xin gửi đến quý khách hàng bảng thông số kỹ thuật tóm tắt của công trình này. Đây là những thông tin thực tế được trích xuất từ hồ sơ thiết kế:
| Hạng mục | Thông tin chi tiết |
| Chủ đầu tư |
Anh Đông |
| Địa điểm xây dựng |
Hương Gián – Bắc Giang |
| Diện tích |
Mặt tiền 4.7m, Chiều sâu 16.5m |
| Loại hình kiến trúc |
Nhà ở gia đình – Nhà ống hiện đại (mái bằng kết hợp mái tôn chống nóng) |
| Quy mô | 2 tầng |
| Công năng Tầng 1 |
Sân trước, Phòng khách, Bếp ăn, 1 Phòng ngủ khép kín, 1 WC chung, Sân ướt |
| Công năng Tầng 2 |
Phòng thờ, 02 Phòng ngủ, Sân phơi, Thông tầng, WC |
| Đơn vị thiết kế |
Công ty Cổ phần Kiến trúc và Xây dựng TechHome |

2. Câu chuyện thiết kế: Khi “Mẫu nhà ống 2 tầng đẹp” gặp thế đất khó mà dễ
Anh Đông tìm đến TechHome vào một ngày đầu năm, mang theo sơ đồ thửa đất khá đặc biệt. Nhìn vào bản vẽ định vị, bạn sẽ thấy khu đất có mặt tiền rộng 4.7m nhưng chiều dài lên tới gần 20m (chính xác là 19.89m). Đặc biệt, phần đuôi nhà mở rộng ra 5.06m (nở hậu) nhưng lại bị xéo góc.
Trong phong thủy, đất nở hậu là điềm lành, tượng trưng cho việc tích tụ tài sản, hậu vận sung túc. Tuy nhiên, về mặt kiến trúc, xử lý những góc xéo và chiều sâu hun hút của nhà ống là bài toán không đơn giản để tạo ra một mẫu nhà ống 2 tầng đẹp hoàn hảo.
Các kiến trúc sư (KTS) của TechHome đã quyết định biến nhược điểm thành ưu điểm. Phần đất xéo phía sau được tận dụng làm giếng trời và sân ướt, giúp gió đối lưu từ trước ra sau, xóa tan sự bí bách thường thấy của nhà phố.

3. Phối cảnh ngoại thất: Vẻ đẹp từ những đường cong mềm mại
Khác với những khối hộp vuông vức, cứng nhắc của kiến trúc nhà phố cũ kỹ, mẫu nhà ống 2 tầng đẹp của anh Đông khoác lên mình ngôn ngữ thiết kế “Soft Modernism” (Hiện đại mềm mại).
Điểm nhấn kiến trúc mặt tiền
Nhìn vào phối cảnh 3D, điểm thu hút mắt nhìn đầu tiên chính là những đường bo cong tinh tế ở ban công tầng 2 và mái hiên.
-
Hệ vòm mềm mại: Thay vì để cửa sổ vuông vức, KTS đã sử dụng hệ vòm cho khung cửa kính lớn ở tầng 2. Chi tiết này không chỉ tạo nét duyên dáng mà còn giúp mặt tiền 4.7m trông cao và thanh thoát hơn.
-
Vật liệu hiện đại: Sự kết hợp giữa màu trắng sứ chủ đạo, màu ghi xám của đá ốp tầng 1 và màu nâu ấm áp của lam gỗ nhựa (conwood) tạo nên sự hài hòa. Đá ốp mặt tiền tầng 1 giúp công trình sạch sẽ, bền màu theo thời gian, tránh rêu mốc ở khu vực hay tiếp xúc với mưa nắng.
-
Hệ lam gỗ trang trí: Một dải lam gỗ chạy dọc từ tầng 2 xuống mái hiên tầng 1 không chỉ là điểm nhấn thẩm mỹ mà còn có tác dụng đánh lừa thị giác, giúp ngôi nhà trông cao ráo hơn. Đây là thủ pháp thường thấy trong các mẫu nhà ống 2 tầng đẹp năm 2025-2026.
Giải pháp cổng và tường rào
Mặt tiền cổng được thiết kế đồng bộ với ngôi nhà. Cổng sắt hộp sơn tĩnh điện kết hợp nan gỗ tạo sự kín đáo vừa đủ nhưng vẫn thông thoáng. Phần mái cổng được đổ bê tông, ốp đá sang trọng, tạo sự bề thế ngay từ cái nhìn đầu tiên.
Để tìm hiểu rõ hơn về tiêu chuẩn vật liệu xây dựng và các yếu tố ảnh hưởng đến chi phí, bạn có thể tham khảo thêm tại các bài viết chuyên sâu về vật liệu xây dựng cao cấp trên Wikipedia.

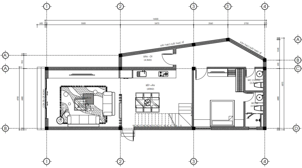
4. Phân tích công năng: Tối ưu hóa từng centimet
Một mẫu nhà ống 2 tầng đẹp không chỉ cần “nước sơn” tốt mà “gỗ” bên trong phải thực sự chất lượng. Với chiều dài gần 20m, việc bố trí công năng sao cho giao thông thuận tiện và ánh sáng chan hòa là ưu tiên hàng đầu.
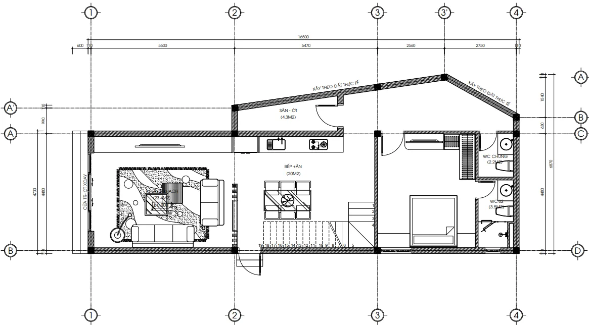
Tầng 1: Không gian kết nối và nghỉ ngơi
Bước qua khoảng sân trước (được lùi lại để làm chỗ để xe và tạo khoảng đệm tránh bụi), chúng ta tiến vào không gian chính:
-
Phòng khách (liên thông): Ngay cửa chính là phòng khách rộng rãi. Với chiều ngang 4.7m, TechHome bố trí sofa chạy dọc tường để tạo lối đi thông thoáng vào bên trong.
-
Cầu thang & Bếp ăn: Cầu thang được đặt ở giữa nhà (khu vực trung cung). Gầm cầu thang được tận dụng làm tủ kho hoặc tiểu cảnh khô. Khu vực bếp + ăn rộng khoảng 20m2. KTS đã khéo léo xử lý hệ thống mùi bằng cách bố trí bếp gần khu vực sân sau, và có cửa phụ mở ra giúp mùi thức ăn không bay ngược lên phòng khách.
-
Phòng ngủ 01 (Khép kín): Cuối nhà là một phòng ngủ khép kín rộng, đây là không gian cực kỳ yên tĩnh, thích hợp cho ông bà hoặc vợ chồng gia chủ. Việc có phòng ngủ khép kín ở tầng 1 là một điểm cộng lớn cho mẫu nhà ống 2 tầng đẹp tiện nghi.
-
Khu vệ sinh & Sân ướt: Tận dụng phần đất xéo “nở hậu” ở cuối nhà, TechHome bố trí một sân ướt (sân gia công) rộng 4.3m2 và một WC chung. Khu vực này cực kỳ hữu ích khi nhà có cỗ bàn, cần sơ chế thực phẩm sống mà không muốn làm bẩn bếp chính.

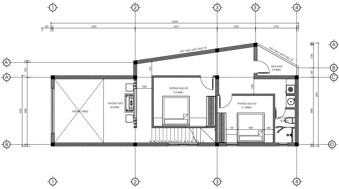
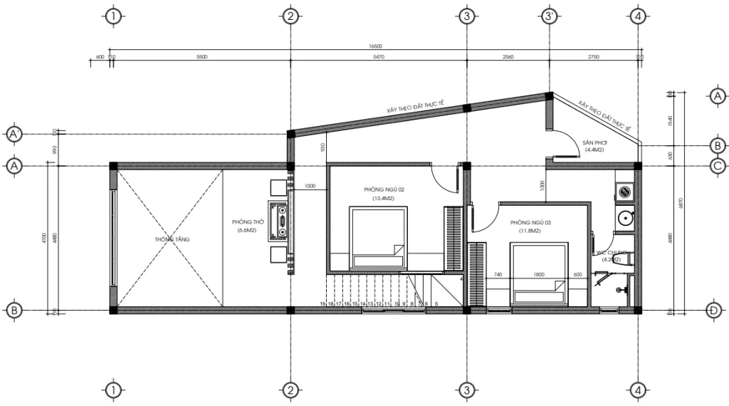
Tầng 2: Không gian riêng tư và tâm linh
Di chuyển lên tầng 2 qua cầu thang 19 bậc (theo sinh – lão – bệnh – tử rơi vào cung “Sinh”, rất tốt), chúng ta sẽ gặp không gian sinh hoạt của các thành viên còn lại:
-
Phòng thờ trang nghiêm: Đặt ở vị trí trang trọng nhất phía trước nhà, hướng ra ban công lớn. Diện tích phòng thờ khoảng 6.6m2, đảm bảo sự tôn nghiêm và thoáng khí khi thắp hương.
-
02 Phòng ngủ thoáng mát: Phía sau là 02 phòng ngủ (Diện tích lần lượt là 13.4m2 và 11.8m2). Các phòng đều được bố trí cửa sổ lấy sáng từ giếng trời hoặc khoảng thông tầng.
-
Khoảng thông tầng đắt giá: Giữa nhà có một khoảng thông tầng. Đối với nhà ống dài 20m, đây là “lá phổi” của ngôi nhà, giúp đối lưu không khí, đưa ánh sáng tự nhiên xuống hành lang và các phòng ngủ phía sau. Thiếu thông tầng, mẫu nhà ống 2 tầng đẹp đến mấy cũng sẽ trở nên ngột ngạt.

5. Góc chuyên gia: Tại sao thiết kế này lại “đáng tiền”?
Là những người làm nghề lâu năm, chúng tôi muốn chia sẻ thêm với bạn những góc nhìn chuyên sâu về mẫu nhà ống 2 tầng đẹp này mà có thể bạn chưa nhận ra:
-
Xử lý mái chống nóng thông minh: Nhìn từ trên cao , bạn sẽ thấy phần mái được lợp tôn sóng. Tuy nhiên, phía mặt tiền vẫn được đổ bê tông và xây tường thu hồi để tạo hình khối vuông vức. Đây là giải pháp “ngon – bổ – rẻ”: Vừa đảm bảo thẩm mỹ mặt tiền như nhà mái bằng, vừa tiết kiệm chi phí và thoát nước mưa tốt nhờ mái tôn dốc phía sau. Hệ thống thái dương năng và bồn nước được đặt gọn gàng trên sàn mái bê tông cốt thép chắc chắn.
-
Phong thủy “Nở hậu” thực chiến:
Nhiều người sợ đất xéo, nhưng KTS TechHome đã nắn vuông vức tất cả các phòng ngủ và phòng khách. Các góc xéo, góc chết được đẩy vào khu vực WC, sân phơi, giếng trời. Đây là cách “trấn trạch” bằng kiến trúc, biến cái xấu thành công năng hữu ích, giúp mẫu nhà ống 2 tầng đẹp hoàn hảo về mọi mặt.
-
Hệ thống cửa:
Sử dụng cửa nhôm hệ Xingfa kính cường lực giúp lấy sáng tối đa. Với khí hậu miền Bắc, đặc biệt là Bắc Giang vào mùa nồm ẩm, cửa nhôm kính hạn chế cong vênh, mối mọt và cực kỳ dễ vệ sinh.

6. Bảng dự toán chi phí xây dựng (Tham khảo 2026)
Rất nhiều khách hàng khi xem mẫu nhà ống 2 tầng đẹp đều thắc mắc: “Nhà đẹp thế này hết bao nhiêu tiền?”. TechHome xin đưa ra bảng khái toán dựa trên mức giá vật tư nhân công tại thời điểm hiện tại để anh Đông và quý khách hàng tham khảo.
Lưu ý: Diện tích xây dựng khoảng 100m2 sàn tầng 1 + 100m2 sàn tầng 2 + mái = ~200m2 – 220m2 xây dựng.
| Hạng mục chi phí | Đơn giá tham khảo (VNĐ) | Thành tiền ước tính (VNĐ) |
| 1. Chi phí thiết kế | 108.000đ/m2 | 21.600.000 |
| 2. Xây dựng phần thô & nhân công hoàn thiện | 3.800.000 – 4.200.000đ/m2 | ~ 760.000.000 – 840.000.000 |
| 3. Vật tư hoàn thiện (Gói khá) | ||
| – Gạch ốp lát (80×80, 60×60) | ~ 60.000.000 | |
| – Sơn nước (Dulux/Jotun) | ~ 40.000.000 | |
| – Cửa nhôm kính Xingfa | ~ 80.000.000 | |
| – Thiết bị vệ sinh (Inax/Toto) | ~ 35.000.000 | |
| – Cầu thang, lan can, đá granite | ~ 50.000.000 | |
| – Điện nước, chiếu sáng | ~ 45.000.000 | |
| – Trần thạch cao | ~ 25.000.000 | |
| TỔNG CỘNG (Chìa khóa trao tay – Ước tính) | ~ 1.2 tỷ – 1.4 tỷ đồng |
Lưu ý: Giá trên chưa bao gồm nội thất rời (giường, tủ, bàn ghế…) và chi phí ép cọc (nếu nền đất yếu). Để có mẫu nhà ống 2 tầng đẹp với chi phí chính xác nhất, chủ nhà cần có hồ sơ bóc tách khối lượng chi tiết.

7. Quy trình làm việc tại TechHome
Để tạo nên một mẫu nhà ống 2 tầng đẹp và chất lượng như nhà anh Đông, TechHome áp dụng quy trình 6 bước chuyên nghiệp:
-
Khảo sát hiện trạng: KTS trực tiếp đo đạc đất (kiểm tra kích thước thực tế so với sổ đỏ như TechHome đã lưu ý trên bản vẽ: “Khách hàng xem khu đất đã đúng theo ô đất thực tế hay chưa” ).
-
Tư vấn phương án: Lên mặt bằng công năng (2D) và concept ý tưởng.
-
Ký hợp đồng thiết kế: Thống nhất phong cách và chi phí.
-
Triển khai 3D: Dựng phối cảnh ngoại thất
-
Triển khai hồ sơ kỹ thuật: Kết cấu, Điện, Nước, Dự toán.
-
Giám sát tác giả: Hỗ trợ kỹ thuật từ xa hoặc trực tiếp trong quá trình thi công qua Hotline: 0364.042.222.
8. Tại sao bạn nên chọn TechHome?
Giữa hàng trăm đơn vị thiết kế, tại sao anh Đông ở Bắc Giang lại chọn TechHome?
-
Sự chân thành: Chúng tôi không vẽ nên những mẫu nhà ống 2 tầng đẹp “ảo”, chúng tôi vẽ ngôi nhà để ở, để sinh hoạt. Bản vẽ luôn kèm theo những chú thích kỹ thuật thực tế, ví dụ như nhắc nhở chủ nhà kiểm tra đất , hay chi tiết chiều cao bậc thang 168mm để đi lại không mỏi chân.
-
Hỗ trợ trọn đời: Dù bạn ở đâu, Bắc Giang hay Hà Nội, đội ngũ kỹ thuật của TechHome luôn sẵn sàng hỗ trợ qua điện thoại 24/7.
-
Am hiểu địa phương: Chúng tôi hiểu rõ khí hậu, thổ nhưỡng và thói quen sinh hoạt của người dân miền Bắc để đưa ra giải pháp vật liệu tối ưu nhất.

Lời kết
Ngôi nhà của anh Đông tại Hương Gián, Bắc Giang là minh chứng rõ nhất cho việc: Không cần đất vuông vức, không cần diện tích quá khủng, bạn vẫn có thể sở hữu một mẫu nhà ống 2 tầng đẹp mơ ước nếu có bàn tay của người kiến trúc sư có tâm.
Nếu bạn đang sở hữu mảnh đất “khó nhằn” hay đơn giản là muốn tìm kiếm một mẫu nhà ống 2 tầng đẹp phù hợp với túi tiền, đừng ngần ngại liên hệ với chúng tôi.
Bạn đã sẵn sàng để phác họa ngôi nhà tương lai của mình chưa?
CÔNG TY CỔ PHẦN KIẾN TRÚC VÀ XÂY DỰNG TECHHOME
-
Hotline/Zalo: 0364.04.2222 – 0387.60.3333
-
Website: https://nhadeptechhome.vn/
-
Địa chỉ: B1.1 LK18 Ô 3 – KĐT Thanh Hà – Cienco 5 – Thanh Oai- Hà Nội.
Hãy để lại bình luận bên dưới hoặc gọi ngay cho chúng tôi để được tư vấn miễn phí về mẫu nhà ống 2 tầng đẹp này nhé!
