Bạn đang sở hữu một lô đất phố và phân vân không biết nên thiết kế ra sao để vừa có không gian sống sang trọng, vừa có thể tận dụng mặt bằng để kinh doanh sinh lời? Mẫu nhà phố 3 tầng hiện đại chính là lời giải hoàn hảo nhất. Hôm nay, hãy cùng TechHome khám phá chi tiết hồ sơ thiết kế kỹ thuật thi công của gia đình chị Nhung tại Ninh Bình – một công trình tiêu biểu cho xu hướng “sống chất, kinh doanh khéo” năm 2026.
1. Tại sao mẫu nhà phố 3 tầng hiện đại lại trở thành “cơn sốt”?
Thực tế mà nói, ở các đô thị hay những vùng đang phát triển mạnh như Ninh Bình, diện tích đất thường không quá rộng. Việc lựa chọn mẫu nhà phố 3 tầng hiện đại không chỉ giúp tối ưu hóa diện tích sử dụng theo chiều cao mà còn tạo nên một diện mạo kiến trúc bề thế, trẻ trung.
Với phong cách hiện đại, chúng ta loại bỏ được những chi tiết phào chỉ rườm rà của lối kiến trúc cũ, thay vào đó là những hình khối vuông vức, vật liệu mới như kính cường lực và gỗ nhựa ngoài trời. Điều này không chỉ giúp tiết kiệm chi phí thi công mà còn mang lại sự thông thoáng tối đa – điều mà bất kỳ căn nhà phố nào cũng khao khát.

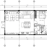
2. Chi tiết mặt bằng công năng: Tối ưu đến từng centimet
Khi cầm trên tay bộ hồ sơ thiết kế của TechHome , bạn sẽ thấy sự tỉ mỉ của đội ngũ kiến trúc sư . Công trình được tính toán trên diện tích sàn 80m2 mỗi tầng.
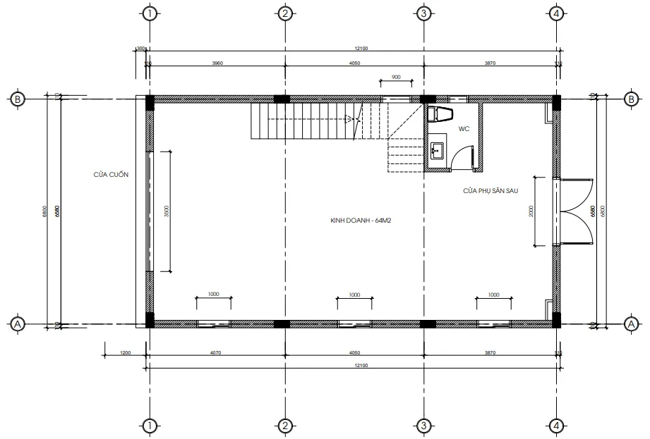
Tầng 1: Không gian kinh doanh chuyên nghiệp
Mặt bằng tầng 1 được dành trọn vẹn 64m2 cho mục đích kinh doanh.
-
Mặt tiền: Sử dụng hệ thống cửa cuốn hiện đại, đảm bảo an ninh tuyệt đối nhưng vẫn rất gọn gàng.
-
Chiều cao tầng: Được thiết kế lên tới 3900mm. Đây là một con số “vàng” giúp không gian kinh doanh phía dưới cực kỳ thoáng đãng, dễ dàng lắp đặt biển quảng cáo hoặc trang trí trần thạch cao sang trọng.
-
Tiện ích: Phía sau có một nhà vệ sinh (WC) nhỏ và cửa phụ dẫn ra sân sau, giúp việc sinh hoạt tách biệt hoàn toàn với không gian phía trước.

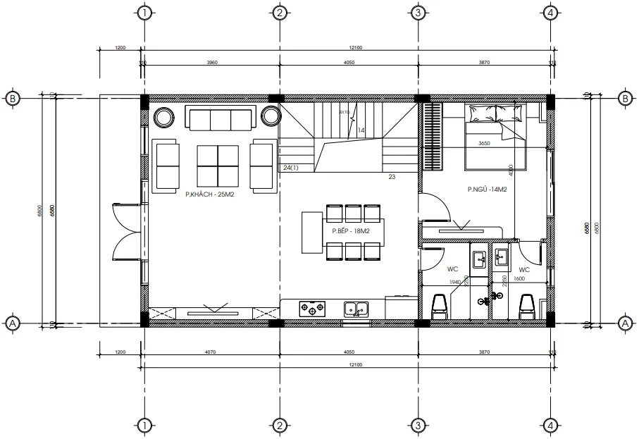
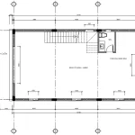
Tầng 2: “Trái tim” của gia đình
Nếu tầng 1 là để làm kinh tế, thì tầng 2 của mẫu nhà phố 3 tầng hiện đại này là nơi để tận hưởng cuộc sống. Với chiều cao tầng 3700mm, không gian được phân bổ cực kỳ khoa học:
-
Phòng khách (25m2): Diện tích này đủ lớn để chị Nhung bài trí những bộ sofa lớn, tạo không gian đón tiếp khách sang trọng.
-
Phòng bếp & ăn (18m2): Được thiết kế mở, giúp người nội trợ vừa nấu nướng vừa có thể trò chuyện với người thân ở phòng khách.
-
Phòng ngủ 1 (14m2): Dành cho ông bà hoặc gia chủ, đảm bảo sự riêng tư với hệ thống WC khép kín và tiện nghi.

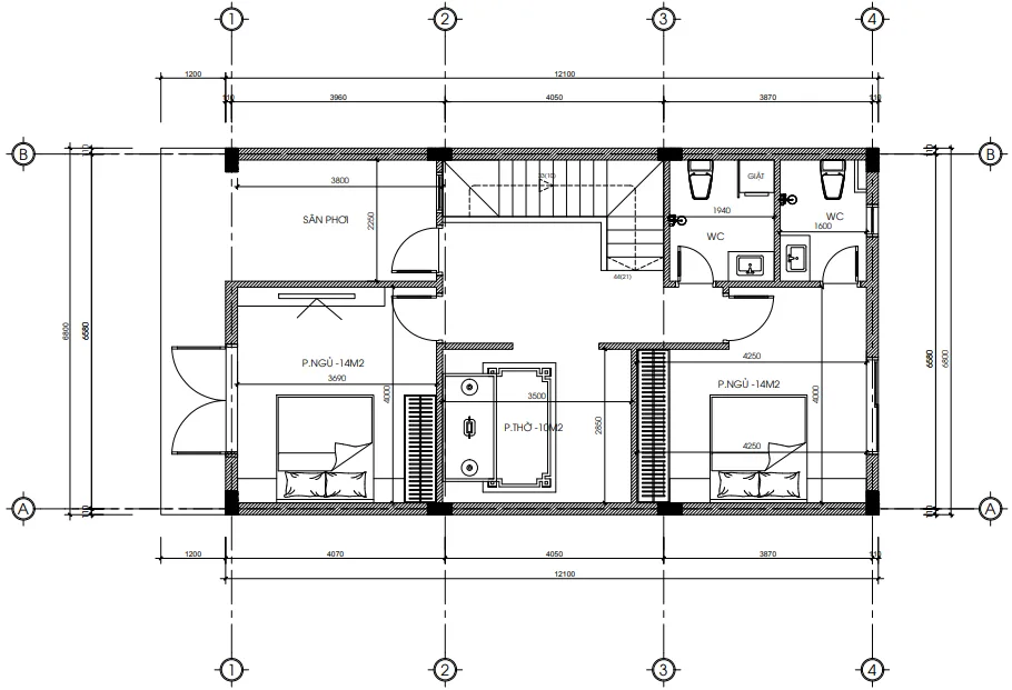
Tầng 3: Sự riêng tư và tâm linh
Tầng 3 là nơi nghỉ ngơi chính và không gian thờ tự. Chiều cao tầng ở đây là 3500mm.
-
2 Phòng ngủ (14m2 mỗi phòng): Được bố trí hợp lý cho các thành viên trong gia đình.
-
Phòng thờ (10m2): sắp xếp chuẩn phong thủy, thể hiện lòng thành kính của chủ nhà.
-
Sân phơi: Khu vực không thể thiếu trong các căn nhà phố để đón nắng và gió tự nhiên.

3. Phân tích kiến trúc ngoại thất: Hiện đại và phóng khoáng
Nhìn vào hình ảnh phối cảnh của mẫu nhà phố 3 tầng hiện đại này, điểm thu hút đầu tiên chính là sự kết hợp màu sắc. Tông màu trắng chủ đạo kết hợp với những mảng tường xám và trần gỗ nhựa tạo cảm giác ấm cúng nhưng không kém phần sang trọng.
-
Hệ ban công kính: TechHome sử dụng kính cường lực cho toàn bộ lan can. Điều này không chỉ giúp căn nhà trông rộng hơn mà còn giúp ánh sáng tự nhiên len lỏi vào từng góc nhỏ của căn phòng.
-
Điểm nhấn xanh: Các bồn hoa được bố trí khéo léo tại ban công giúp giảm bớt sự thô cứng của bê tông, mang lại nguồn năng lượng tươi mới mỗi ngày.
-
Hệ mái: Thiết kế mái bằng đơn giản, có lắp đặt hệ thống bồn nước Tana và thái dương năng trên mái, giúp tiết kiệm điện năng và tối ưu công năng sử dụng.
Có thể nói, mẫu nhà phố 3 tầng hiện đại của gia đình chị Nhung không chỉ là một bản vẽ, đó là kết quả của sự thấu hiểu giữa khách hàng và TechHome.

4. Báo giá tham khảo thi công mẫu nhà phố 3 tầng hiện đại năm 2026
Tại TechHome, chúng tôi luôn minh bạch về chi phí để gia chủ dễ dàng dự trù ngân sách. Với diện tích sàn 80m2 x 3 tầng (tổng diện tích sàn khoảng 240m2 chưa tính mái), mức giá dự kiến như sau:
| Hạng mục | Đơn giá tham khảo | Thành tiền dự kiến |
| Gói thiết kế kiến trúc | 108.000 VNĐ/m2 | ~ 26 triệu VNĐ |
| Thi công phần thô & nhân công hoàn thiện | 3.800.000 – 4.200.000 VNĐ/m2 | 912 triệu – 1 tỷ VNĐ |
| Gói hoàn thiện (Chìa khóa trao tay) | 6.500.000 – 7.500.000 VNĐ/m2 | 1.5 – 1.8 tỷ VNĐ |
Lưu ý: Đây chỉ là mức chi phí ước tính. Để nhận được báo giá chính xác và chi tiết nhất cho công trình của bạn, vui lòng liên hệ trực tiếp với chúng tôi. Hoặc để tìm hiểu rõ hơn về tiêu chuẩn vật liệu xây dựng và các yếu tố ảnh hưởng đến chi phí, bạn có thể tham khảo thêm tại các bài viết chuyên sâu về vật liệu xây dựng cao cấp trên Wikipedia.

5. Tại sao bạn nên chọn TechHome thiết kế mẫu nhà phố 3 tầng hiện đại?
Trên thị trường hiện nay có hàng nghìn đơn vị kiến trúc, nhưng tại sao chị Nhung lại tin tưởng giao phó căn nhà của mình cho chúng tôi?
-
Quy trình làm việc chuyên nghiệp: Từ bước tiếp nhận thông tin, khảo sát hiện trạng đến khi bàn giao hồ sơ thiết kế kỹ thuật thi công đều được thực hiện bài bản.
-
Đội ngũ giàu kinh nghiệm: Những kiến trúc sư luôn biết cách cân bằng giữa cái đẹp nghệ thuật và tính thực dụng của công trình.
-
Hỗ trợ kỹ thuật 24/7: TechHome có hotline hỗ trợ trực tiếp 0364042222 – 0387603333 để giải đáp mọi thắc mắc của thợ thi công ngay tại công trường.
-
Tư duy đổi mới: Chúng tôi không ngừng cập nhật các mẫu nhà phố 3 tầng hiện đại mới nhất trên thế giới để áp dụng vào điều kiện thực tế tại Việt Nam.

6. Lời kết
Xây nhà là việc cả đời. Một mẫu nhà phố 3 tầng hiện đại đẹp không chỉ ở cái nhìn bên ngoài mà phải ở sự tiện nghi bên trong. Hy vọng dự án của chị Nhung tại Ninh Bình sẽ là nguồn cảm hứng cho những ai đang ấp ủ dự định xây dựng tổ ấm.
Nếu bạn cũng muốn sở hữu một không gian sống đẳng cấp như vậy, đừng ngần ngại truy cập https://nhadeptechhome.vn/ hoặc liên hệ ngay với chúng tôi. Đội ngũ TechHome luôn sẵn sàng biến ý tưởng của bạn thành hiện thực với những mẫu nhà phố 3 tầng hiện đại độc bản nhất!

CÔNG TY CỔ PHẦN KIẾN TRÚC VÀ XÂY DỰNG TECHHOME
☎️ Hotline: 036.273.2222
📍 Địa chỉ: B1.1 LK18 Ô 3 – KĐT Thanh Hà – Cienco 5 – Thanh Oai- Hà Nội.
