Mẫu nhà ống 2 tầng hiện đại 4.5x18m: Giải pháp hoàn hảo cho gia đình trẻ tại Thanh Hóa

Xây nhà là việc đại sự cả đời. Tôi hiểu, khi bạn đang đọc những dòng này, có lẽ bạn đang loay hoay giữa hàng ngàn ý tưởng, không biết nên chọn phong cách nào vừa đẹp, vừa bền, lại không bị “lỗi mốt” sau vài năm. Hôm nay, Techhome xin giới thiệu đến bạn một “siêu phẩm” : mẫu nhà ống 2 tầng hiện đại của gia đình anh Tiến tại Thanh Hóa. Đây là công trình mà đội ngũ KTS Techhome đã dồn nhiều tâm huyết để giải quyết bài toán: Nhà phố hẹp ngang nhưng phải cực kỳ thông thoáng.

1. Tại sao mẫu nhà ống 2 tầng hiện đại lại trở thành “cơn sốt”?

Thực tế hiện nay, quỹ đất tại các khu đô thị hay kể cả vùng ven như Thanh Hóa đang dần thu hẹp. Những lô đất có chiều ngang từ 4m đến 5m trở nên phổ biến. Chính vì thế, mẫu nhà ống 2 tầng hiện đại chính là “cứu cánh” bởi nó đáp ứng được 3 tiêu chí cốt lõi:

  • Tối ưu công năng: Với 2 tầng, bạn hoàn toàn có thể bố trí đủ 3 phòng ngủ, phòng khách, bếp và phòng thờ cho một gia đình 2-3 thế hệ.

  • Tiết kiệm chi phí: So với nhà 3-4 tầng hay biệt thự, mức đầu tư cho nhà 2 tầng “dễ thở” hơn nhiều, phù hợp với tích lũy của các cặp vợ chồng trẻ.

  • Vẻ đẹp vượt thời gian: Phong cách hiện đại với các hình khối vuông vức, tối giản giúp ngôi nhà luôn trông mới mẻ và sang trọng.

Phối cảnh mặt tiền mẫu nhà ống 2 tầng hiện đại ngang 4.5m sang trọng tại Thanh Hóa.
Phối cảnh mặt tiền mẫu nhà ống 2 tầng hiện đại ngang 4.5m sang trọng tại Thanh Hóa.

2. Phân tích kiến trúc ngoại thất: Sự kết hợp tinh tế giữa vật liệu và ánh sáng

Nhìn vào phối cảnh mặt tiền của anh Tiến, bạn sẽ thấy sự khác biệt ngay lập tức. Không quá cầu kỳ hoa văn, mẫu nhà ống 2 tầng hiện đại này ghi điểm bởi sự phối hợp màu sắc cực kỳ “Tây”.

Tông màu chủ đạo :

Ngôi nhà sử dụng gam màu trắng sứ kết hợp cùng xám trung tính. Đây là “cặp bài trùng” giúp đánh lừa thị giác, tạo cảm giác ngôi nhà rộng hơn thực tế 4.5m.

Điểm nhấn gỗ nhựa ngoài trời :

KTS Techhome đã khéo léo sử dụng ốp trần nhựa giả gỗ ở khu vực ban công và mái hiên. Điều này không chỉ tạo cảm giác ấm cúng mà còn là điểm nhấn cực kỳ sang trọng khi kết hợp cùng hệ thống đèn downlight âm trần vào buổi tối. Nếu bạn đang tìm kiếm một mẫu nhà ống 2 tầng hiện đại có chiều sâu, đừng bỏ qua chi tiết này.

Hệ thống cửa kính và ban công :

Toàn bộ cửa mặt tiền đều sử dụng nhôm kính cường lực khung đen cao cấp. Ban công kính trong suốt giúp ngôi nhà “mở” tối đa, đón trọn ánh sáng tự nhiên vào không gian sống bên trong.

Góc nghiêng mẫu nhà ống 2 tầng hiện đại

3. Bản vẽ công năng: Tối ưu đến từng milimet

Một mẫu nhà ống 2 tầng hiện đại đẹp thôi chưa đủ, nó phải “sướng” khi ở. Hãy cùng tôi soi kỹ bản vẽ kỹ thuật mà Techhome đã thiết kế cho anh Tiến.

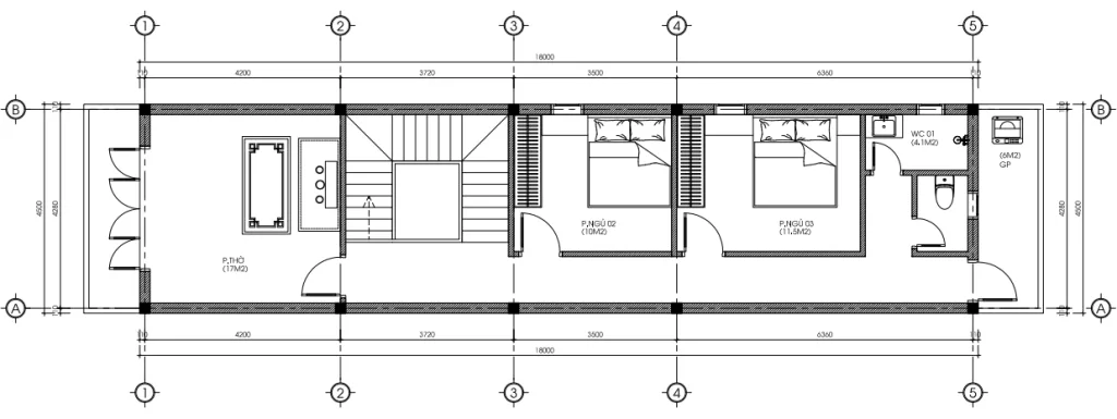
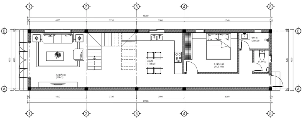
Mặt bằng tầng 1: Không gian sinh hoạt chung và sự tiện nghi

Với diện tích sàn 81m2, tầng 1 được bố trí cực kỳ khoa học:

  • Phòng khách (17 m2): Nằm ngay sau sảnh chính, đủ rộng để bài trí bộ sofa lớn và kệ tivi hiện đại.

  • Bếp và phòng ăn (18 m2): Được ngăn cách tinh tế với phòng khách, tạo không gian riêng tư khi nấu nướng nhưng vẫn đảm bảo sự thông thoáng.

  • Phòng ngủ 02 (11.5 m2): Việc bố trí một phòng ngủ ở tầng 1 là lựa chọn cực kỳ thông minh cho các gia đình có người lớn tuổi hoặc gia chủ.

  • Hệ thống vệ sinh: Chia làm 2 khu vực (2.6 m2 và 1.8 m2) để tối ưu hóa việc sử dụng đồng thời.

Điểm đặc biệt ở tầng 1 này là chiều cao tầng lên tới 3900mm. Con số này giúp không gian cực kỳ thoáng đãng, không hề có cảm giác bị đè nén như các nhà phố thông thường.

Bản vẽ mặt bằng tầng 1 mẫu nhà ống 2 tầng hiện đại diện tích 81m2 có 1 phòng ngủ.
Bản vẽ mặt bằng tầng 1 mẫu nhà ống 2 tầng hiện đại diện tích 81m2 có 1 phòng ngủ.

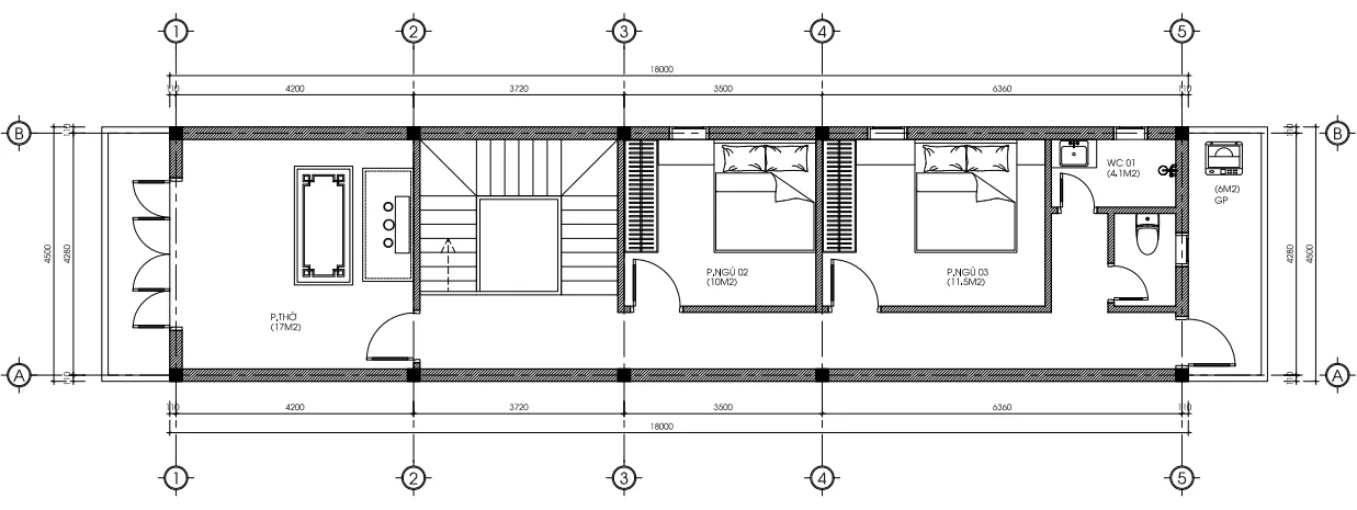
Mặt bằng tầng 2: Sự yên tĩnh và tâm linh

Tầng 2 là nơi dành cho nghỉ ngơi và thờ tự:

  • Phòng thờ (17 m2): Đặt ở vị trí trang trọng nhất phía trước nhà, có cửa hướng ra ban công thoáng đãng.

  • 2 Phòng ngủ (10 m2 và 11.5 m2): Bố trí phía sau đảm bảo sự yên tĩnh tuyệt đối cho giấc ngủ.

  • Khu giặt phơi (6 m2): Thiết kế kín đáo nhưng vẫn đảm bảo đủ nắng và gió.

Trong mẫu nhà ống 2 tầng hiện đại này, cầu thang tầng 2 được thiết kế với 21 bậc, chiều cao bậc 176mm, đảm bảo yếu tố phong thủy và giúp việc di chuyển không bị mỏi chân.

Bản vẽ mặt bằng tầng 2 mẫu nhà ống 2 tầng hiện đại diện tích 81m2 có phòng thờ và 2 phòng ngủ.
Bản vẽ mặt bằng tầng 2 mẫu nhà ống 2 tầng hiện đại diện tích 81m2 có phòng thờ và 2 phòng ngủ.

4. Giải pháp “giải nhiệt” và lấy sáng cho nhà ống

Nhiều người lo lắng nhà ống sẽ bị bí bách. Tuy nhiên, nhìn vào hình ảnh mái nhà, bạn sẽ thấy Techhome đã bố trí một ô giếng trời ngay khu vực cầu thang. Đây chính là “lá phổi” của mẫu nhà ống 2 tầng hiện đại, giúp lưu thông không khí giữa các tầng và cung cấp ánh sáng tự nhiên cho toàn bộ phần giữa ngôi nhà.

Ngoài ra, hệ thống bồn nước và máy nước nóng năng lượng mặt trời cũng được bố trí gọn gàng trên mái, vừa tối ưu công năng vừa đảm bảo thẩm mỹ.

Góc nghiêng mẫu nhà ống 2 tầng hiện đại

5. Báo giá thi công mẫu nhà ống 2 tầng hiện đại (Tham khảo 2026)

Để bạn dễ dàng dự toán ngân sách, Techhome xin đưa ra bảng báo giá tham khảo cho mẫu nhà có diện tích sàn khoảng 81 m2 như nhà anh Tiến:

Hạng mục Đơn giá tham khảo (VNĐ/m2) Ghi chú
Thiết kế kiến trúc 108.000 Bao gồm kiến trúc , kết cấu, điện nước
Thi công phần thô 3.800.000 – 4.200.000 Đã bao gồm nhân công và vật tư thô
Thi công trọn gói (Chìa khóa trao tay) 6.000.000 – 7.000.000 Tùy vào mức độ hoàn thiện vật liệu

Dự toán tổng mức đầu tư: Cho một mẫu nhà ống 2 tầng hiện đại diện tích 81 m2/sàn, tổng chi phí xây dựng trọn gói thường dao động từ 1 tỷ đến 1.2 tỷ đồng (Chưa bao gồm nội thất rời như giường, tủ, bàn ghế).

Lưu ý: Đây chỉ là mức chi phí ước tính. Để nhận được báo giá chính xác và chi tiết nhất cho công trình của bạn, vui lòng liên hệ trực tiếp với chúng tôi. Hoặc để tìm hiểu rõ hơn về tiêu chuẩn vật liệu xây dựng và các yếu tố ảnh hưởng đến chi phí, bạn có thể tham khảo thêm tại các bài viết chuyên sâu về vật liệu xây dựng cao cấp trên Wikipedia.

Tổng thể mẫu nhà ống 2 tầng hiện đại nhìn từ trên cao với giải pháp lấy sáng thông minh.
Tổng thể mẫu nhà ống 2 tầng hiện đại nhìn từ trên cao với giải pháp lấy sáng thông minh.

6. Góc chuyên gia: Lời khuyên khi xây dựng mẫu nhà ống 2 tầng hiện đại

Với kinh nghiệm thực chiến hàng trăm công trình, tôi muốn chia sẻ với bạn vài “bí kíp” để có ngôi nhà ưng ý:

  1. Đừng tiếc tiền cho giếng trời: Đây là yếu tố sống còn của nhà ống. Một ngôi nhà đủ sáng, đủ gió sẽ giúp sức khỏe và tài lộc của gia chủ tốt hơn rất nhiều.

  2. Chọn vật liệu hoàn thiện thông minh: Thay vì dùng gỗ tự nhiên đắt đỏ và dễ cong vênh, hãy sử dụng nhựa giả gỗ, gạch giả đá cho ngoại thất của mẫu nhà ống 2 tầng hiện đại để tăng độ bền dưới thời tiết khắc nghiệt.

  3. Hệ thống điện nước phải chuẩn: Hãy yêu cầu đơn vị thiết kế như Techhome cung cấp bản vẽ kỹ thuật chi tiết nhất. Sửa một vết nứt tường thì dễ, chứ sửa đường ống nước rò rỉ dưới sàn là cả một thảm họa.

  4. Tối ưu hóa không gian dưới cầu thang: Bạn có thể biến nó thành kho chứa đồ hoặc một hệ tủ trang trí đẹp mắt để ngôi nhà luôn gọn gàng.

Tổng thể mẫu nhà ống 2 tầng hiện đại

7. Techhome – Đơn vị thiết kế và thi công uy tín

Nếu bạn yêu thích mẫu nhà ống 2 tầng hiện đại của anh Tiến và muốn sở hữu một không gian sống “may đo” riêng cho gia đình mình, hãy liên hệ ngay với chúng tôi.

Tại https://nhadeptechhome.vn/, chúng tôi không chỉ bán bản vẽ, chúng tôi cùng bạn xây dựng ước mơ. Với đội ngũ KTS dày dặn kinh nghiệm, Techhome cam kết:

  • Bản vẽ kiến trúc tối ưu, thẩm mỹ.

  • Thi công đúng tiến độ, đúng vật liệu cam kết.

  • Báo giá minh bạch, không phát sinh chi phí vô lý.

Tổng thể mẫu nhà ống 2 tầng hiện đại

Thông tin liên hệ:

  • Công ty Cổ phần Kiến trúc và Xây dựng Techhome

  • Hotline: 0364042222 – 0387603333

  • Website: https://nhadeptechhome.vn/

Đừng ngần ngại gọi cho chúng tôi để được tư vấn miễn phí về mẫu nhà ống 2 tầng hiện đại phù hợp nhất với mảnh đất của bạn. Chúng tôi luôn sẵn sàng lắng nghe và giải đáp mọi thắc mắc của bạn bằng sự chân thành nhất của người làm nghề.

Kiến Trúc Techhome – Kiến tạo không gian, dựng xây tổ ấm.

Để lại một bình luận

Email của bạn sẽ không được hiển thị công khai. Các trường bắt buộc được đánh dấu *

    Vui lòng nhấn nút YÊU CẦU TƯ VẤN và đợi 1 - 2 giây đến khi thấy thông báo thành công

    YÊU CẦU TƯ VẤN