Bạn biết không : “Xây nhà không khó, cái khó là xây được một tổ ấm mà đi đâu người ta cũng muốn về”. Dự án của anh Huy tại Mao Điền, Hải Phòng là một ví dụ điển hình như thế. Không quá phô trương, không đắp phù điêu rườm rà, Techhome mang đến một mẫu nhà ống 2 tầng hiện đại với những đường cong mềm mại và công năng tối ưu đến từng centimet.
1. Cái “duyên” của Techhome với mảnh đất Hải Phòng
Hải Phòng vốn là mảnh đất của sự hào sảng và thẳng thắn. Khi anh Huy tìm đến Techhome qua website https://nhadeptechhome.vn/, anh chỉ đưa ra một yêu cầu duy nhất: “Em ơi, anh muốn một ngôi nhà nhìn vào là thấy nhẹ nhàng, không bị bí bách dù diện tích phố có hạn”.
Sau nhiều lần bàn thảo, phương án mẫu nhà ống 2 tầng hiện đại mã số 0216 đã ra đời. Đây không chỉ là một bản vẽ kỹ thuật, mà là tâm huyết của đội ngũ KTS Techhome nhằm giải quyết bài toán: Nhà ống nhưng phải thở, nhà phố nhưng phải xanh.

2. Ngoại thất: Điểm nhấn từ những đường cong “biết nói”
Nhìn vào mặt tiền của ngôi nhà , điều đầu tiên đập vào mắt bạn chắc chắn là những góc bo tròn đầy nghệ thuật. Thay vì những khối vuông cứng nhắc truyền thống, Techhome đã khéo léo đưa vào các đường vòm ở khu vực ban công và cửa sổ tầng 2.
Sự kết hợp giữa tông màu trắng chủ đạo và những mảng tường xám trung tính tạo nên một tổng thể vô cùng thanh lịch. Hệ thống cửa nhôm kính xingfa màu đen không chỉ bền bỉ với thời tiết khắc nghiệt của vùng biển Hải Phòng mà còn giúp đón trọn ánh sáng tự nhiên vào nhà. Đây chính là linh hồn của một mẫu nhà ống 2 tầng hiện đại chuẩn mực năm 2026.
Hệ cổng rào cũng là một điểm cộng lớn. Techhome sử dụng đá ốp vân mây kết hợp cùng hệ nan gỗ và cửa sắt mỹ nghệ tối giản. Chỉ cần nhìn từ ngoài vào, hàng xóm đã có thể cảm nhận được gu thẩm mỹ tinh tế của gia chủ.

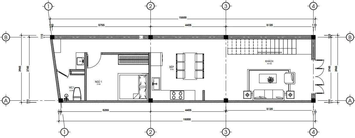
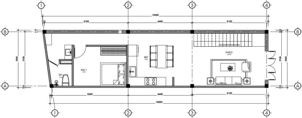
3. Phân bổ công năng tầng 1: Nơi giữ lửa gia đình
Với diện tích sàn 61m², tầng 1 được thiết kế cực kỳ khoa học:
-
Phòng khách (18.6m²): Ngay sau lớp cửa kính lớn là không gian tiếp khách sáng loáng. Với chiều cao tầng 2.9m, cảm giác không gian cực kỳ cao ráo và thoáng đãng.
-
Phòng bếp & Ăn (18m²): Được thiết kế liên thông với phòng khách để tối ưu không gian. Techhome tư vấn anh Huy sử dụng hệ tủ bếp kịch trần để tăng không gian lưu trữ.
-
Phòng ngủ 1 (10m²): Dành riêng cho người lớn tuổi trong nhà, giúp hạn chế việc leo cầu thang.
-
WC1: Bố trí kín đáo cuối nhà, đảm bảo tính thẩm mỹ và phong thủy.
Trong thiết kế mẫu nhà ống 2 tầng hiện đại, việc cầu thang có 17 bậc với chiều cao mỗi bậc 160mm là con số “vàng”. Nó vừa rơi vào cung “Sinh” theo phong thủy, vừa giúp bước đi không bị mỏi gối.

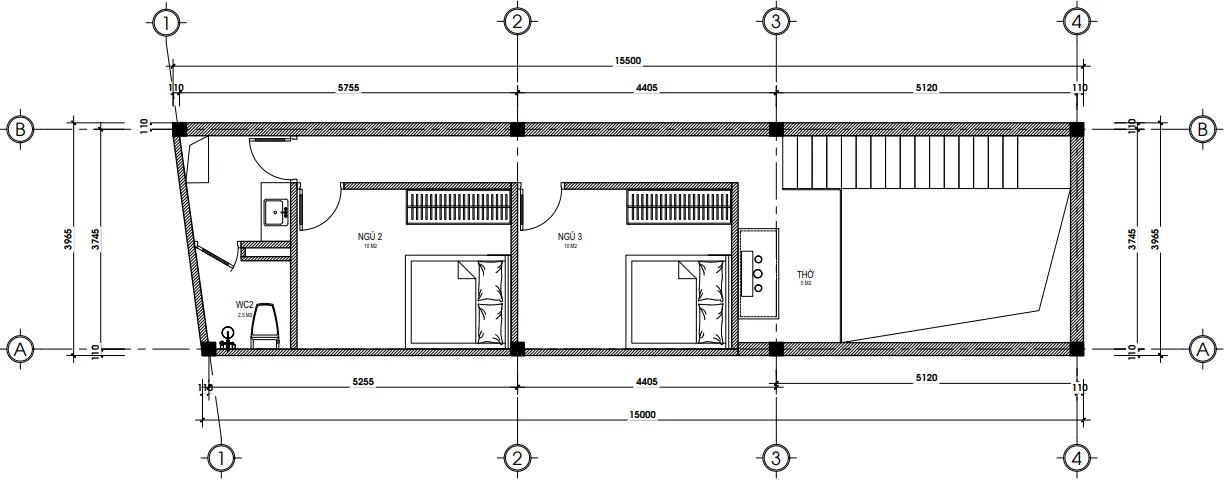
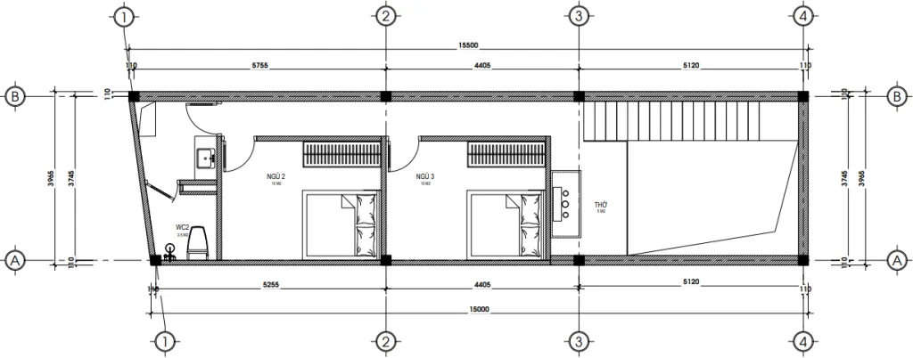
4. Không gian tầng 2: Sự riêng tư và tĩnh lặng
Lên đến tầng 2 với diện tích 40m², Techhome tập trung vào sự nghỉ ngơi tuyệt đối:
-
Phòng thờ: Đặt ở vị trí trang trọng nhất hướng ra mặt tiền, thể hiện lòng thành kính của con cháu.
-
Phòng ngủ 2 & 3: Đây là không gian dành cho các con với diện tích rộng rãi.
-
WC2: Sử dụng chung cho cả tầng để tiết kiệm diện tích nhưng vẫn đầy đủ trang bị hiện đại.
Chiều cao tầng 2 là 2.7m. Đây là một tính toán có ý nghĩa thực tế: Giúp nhà mát hơn vào mùa hè và ấm áp hơn vào mùa đông, đúng chất của một mẫu nhà ống 2 tầng hiện đại thông minh.

5. Giải pháp mái và chống nóng: Câu chuyện bền vững
Quan sát từ trên cao, bạn sẽ thấy hệ mái tôn lạnh màu xanh đen được thi công chắc chắn. Phía cuối nhà là khu vực đặt bồn nước và hệ thống thái dương năng. Đây là giải pháp cực kỳ thực tế cho các gia đình ở Hải Phòng, vừa giúp tiết kiệm điện năng, vừa đảm bảo áp lực nước cho sinh hoạt hàng ngày.
Nhiều người e ngại mái tôn sẽ nóng, nhưng với lớp trần thạch cao chống nóng bên dưới, mẫu nhà ống 2 tầng hiện đại này vẫn luôn duy trì được nhiệt độ lý tưởng.

6. Bảng báo giá thi công trọn gói (Tham khảo 2026)
Techhome luôn minh bạch về tài chính để anh chị dễ dàng chuẩn bị ngân sách. Với mẫu nhà 0216 này, mức giá ước tính như sau:
| Hạng mục | Đơn giá (VNĐ/m²) | Thành tiền (Ước tính) |
| Phần thô & Nhân công hoàn thiện | 3.800.000 – 4.200.000 | ~ 400 – 450 triệu |
| Gói hoàn thiện cơ bản (Full) | 6.500.000 – 7.500.000 | ~ 650 – 760 triệu |
Lưu ý: Đây chỉ là mức chi phí ước tính. Để nhận được báo giá chính xác và chi tiết nhất cho công trình của bạn, vui lòng liên hệ trực tiếp với chúng tôi. Hoặc để tìm hiểu rõ hơn về tiêu chuẩn vật liệu xây dựng và các yếu tố ảnh hưởng đến chi phí, bạn có thể tham khảo thêm tại các bài viết chuyên sâu về vật liệu xây dựng cao cấp trên Wikipedia.

7. Tại sao nên chọn Techhome làm đơn vị thiết kế & thi công?
Giữa hàng trăm đơn vị trên thị trường, Techhome vẫn khẳng định được vị thế nhờ:
-
Quy trình chuyên nghiệp: Hồ sơ thiết kế kỹ thuật thi công cực kỳ chi tiết .
-
Đội ngũ thực chiến: KTS và các cộng sự luôn bám sát công trình từ lúc động thổ đến khi bàn giao.
-
Hỗ trợ 24/7: Bất kể lúc nào bạn cần tư vấn về kỹ thuật xây dựng, số Hotline 0387603333 luôn sẵn sàng.
Sở hữu một mẫu nhà ống 2 tầng hiện đại không khó, cái khó là tìm được người thợ có tâm để biến bản vẽ thành hiện thực. Techhome cam kết không bán thầu, không phát sinh chi phí ngoài hợp đồng.

8. Lời kết
Mẫu nhà của anh Huy tại Hải Phòng là minh chứng rõ nhất cho việc: Nhà đẹp không nhất thiết phải đắt tiền, mà phải hợp lý. Một mẫu nhà ống 2 tầng hiện đại thành công là khi nó giải quyết được nỗi lo về diện tích và mang lại sự thoải mái cho người ở.
Nếu bạn đang nung nấu ý định xây tổ ấm trong năm nay, đừng ngần ngại ghé thăm kho mẫu nhà của Techhome tại nhadeptechhome.vn. Biết đâu, bạn sẽ tìm thấy “chân ái” cho gia đình mình ở đó.
Xây nhà là việc cả đời, hãy để Techhome đồng hành cùng bạn viết nên câu chuyện hạnh phúc đó nhé! Một mẫu nhà ống 2 tầng hiện đại đẹp đang chờ bạn cùng chung tay kiến tạo.
Cảm ơn anh Huy đã tin tưởng lựa chọn Techhome. Chúc gia đình anh sớm được tân gia trong ngôi nhà mơ ước!

Thông tin liên hệ:
-
Công ty Cổ phần Kiến trúc và Xây dựng Techhome
-
Hotline: 036.273.2222
- Địa chỉ: B1.1 LK18 Ô 3 – KĐT Thanh Hà – Cienco 5 – Thanh Oai- Hà Nội.
