Chào các bạn, lại là đội ngũ Techhome đây! Hôm nay, chúng mình muốn dẫn các bạn về thăm một công trình vừa “ra lò” tại mảnh đất Bắc Giang. Đây là mẫu nhà phố 3 tầng hiện đại mà chúng mình thiết kế riêng cho gia đình chị Nhung.
Thực tế mà nói, với những lô đất phân lô phố thị điển hình – bề ngang hẹp và chiều dài sâu – việc làm sao để căn nhà không bị “bí” và “ngộp” luôn là bài toán đau đầu nhất. Hãy cùng Techhome “mổ xẻ” xem phương án thiết kế 207m2 sàn này có gì đặc biệt nhé!
1. Câu chuyện đằng sau bản thiết kế tại Bắc Giang
Khi tìm đến Techhome, chị Nhung chia sẻ một mong muốn rất đời thường: “Chị muốn một căn nhà nhìn vào là thấy sự trẻ trung, không cần quá cầu kỳ nhưng phải thoáng. Đặc biệt là các phòng ngủ phải có ánh sáng tự nhiên vì nhà chị có con nhỏ.”
Thấu hiểu điều đó, các kiến trúc sư tại Techhome đã phác thảo nên mẫu nhà phố 3 tầng hiện đại với phong cách tối giản nhưng cực kỳ tinh tế. Tổng diện tích thiết kế lên tới 207m2, đảm bảo đầy đủ công năng cho một gia đình đa thế hệ.

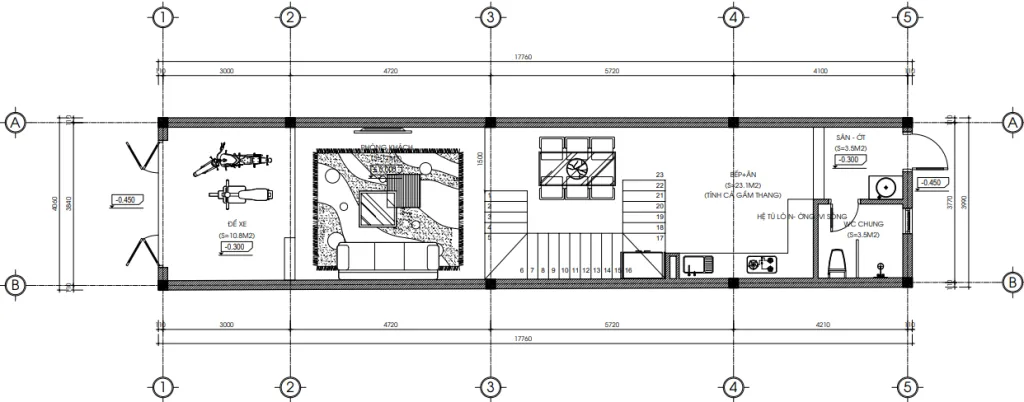
2. Chi tiết công năng: Tận dụng từng “tấc đất tấc vàng”
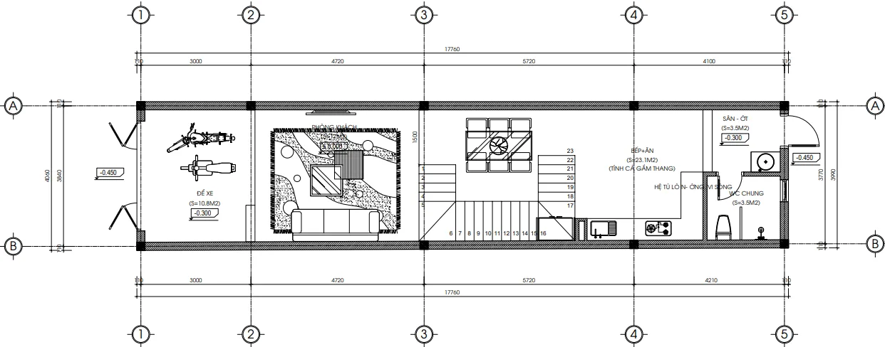
Với chiều ngang 4.06m và chiều sâu hơn 17.7m, mọi mét vuông đều được chúng mình tính toán kỹ lưỡng.
Tầng 1: Không gian mở và sự tiện nghi
Ngay từ lối vào, chúng mình dành một khoảng sân để xe rộng 10.8m2. Điều này cực kỳ quan trọng ở phố để tránh việc dắt xe vào tận phòng khách gây mùi xăng và bụi bẩn.
-
Khu vực bếp và ăn: Rộng 23.1m2. Điểm đặc biệt ở đây là hệ tủ lớn được thiết kế âm tường và tận dụng cả gầm cầu thang để tối ưu diện tích.
-
Sân ướt phía sau: Một khoảng nhỏ 3.5m2 nhưng là “phổi xanh” giúp đối lưu không khí cho toàn bộ tầng 1.
-
WC chung: Được đặt kín đáo với diện tích 3.5m2.

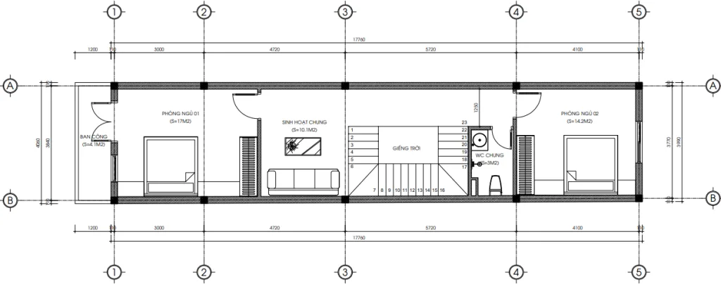
Tầng 2: Nơi nghỉ ngơi lý tưởng
Đây là không gian riêng tư của gia đình. Mẫu nhà phố 3 tầng hiện đại này được phân bổ:
-
Phòng ngủ 01: Rộng 17m2 , có cửa hướng ra ban công 4.1m2 để đón gió trời.
-
Phòng sinh hoạt chung: 10.1m2 – nơi cả nhà quây quần xem phim mỗi tối.
-
Phòng ngủ 02: 14.2m2 phía cuối nhà nhưng vẫn rất thoáng nhờ hệ thống giếng trời giữa nhà và cửa sổ mặt sau.

Tầng 3: Sự kết hợp giữa tâm linh và thư giãn
-
Phòng thờ: 16.6m2, đặt ở vị trí trang trọng nhất hướng ra phía trước.
-
Phòng ngủ 03: 14.2m2 dành cho khách hoặc dự phòng.
-
Sân chơi & Sân phơi: 15.6m2. Đây là nơi chị Nhung có thể trồng thêm vài chậu cây xanh hoặc làm một góc trà chiều cực chill.

3. Kiến trúc ngoại thất: Hiện đại, sang trọng và không lỗi mốt
Nếu nhìn vào ảnh phối cảnh, bạn sẽ thấy mẫu nhà phố 3 tầng hiện đại này sử dụng tông màu trắng chủ đạo, kết hợp với các mảng nhấn từ gỗ nhựa ốp trần và đá marble xám ở tầng 1.
-
Hệ thống cửa: Chúng mình sử dụng nhôm kính Xingfa cao cấp giúp lấy sáng tối đa.
-
Điểm nhấn xanh: Các bồn hoa được tích hợp ngay mặt tiền tầng 2 và tầng 3, giúp làm “mềm” đi những khối bê tông khô cứng.
-
Giếng trời: Đây là “vũ khí bí mật” của Techhome. Hệ thống giếng trời lớn phía trên cầu thang giúp ánh sáng len lỏi xuống tận tầng trệt, loại bỏ hoàn toàn cảm giác tối tăm của nhà ống thông thường.

4. Báo giá thiết kế và xây dựng trọn gói (Tham khảo 2026)
Để các bạn dễ hình dung và chuẩn bị ngân sách, Techhome xin đưa ra bảng dự toán tham khảo cho mẫu nhà phố 3 tầng hiện đại tương tự công trình chị Nhung tại Bắc Giang:
Báo giá thiết kế kiến trúc
| Hạng mục | Đơn giá (VNĐ/m2) | Thành tiền (Tạm tính 207m2) |
| Thiết kế kiến trúc | 108.000 | 22.356.000 |
| Thiết kế Nội thất | 150.000 | 31.050.000 |
| Combo Kiến trúc + Nội thất | 250.000 | 51.750.000 |
Báo giá thi công xây dựng trọn gói
| Gói thầu | Chi tiết | Đơn giá (VNĐ/m2) |
| Thi công phần thô | Nhân công + Vật tư thô | 3.800.000 – 4.200.000 |
| Thi công hoàn thiện | Chưa bao gồm nội thất rời | 2.500.000 – 3.500.000 |
| Trọn gói (Chìa khóa trao tay) | Vật tư trung bình khá | 6.500.000 – 7.500.000 |
Lưu ý: Đây chỉ là mức chi phí ước tính. Để nhận được báo giá chính xác và chi tiết nhất cho công trình của bạn, vui lòng liên hệ trực tiếp với chúng tôi. Hoặc để tìm hiểu rõ hơn về tiêu chuẩn vật liệu xây dựng và các yếu tố ảnh hưởng đến chi phí, bạn có thể tham khảo thêm tại các bài viết chuyên sâu về vật liệu xây dựng cao cấp trên Wikipedia.

5. Tại sao nên chọn Techhome cho ngôi nhà của bạn?
Giữa hàng nghìn công ty kiến trúc, tại sao chị Nhung và rất nhiều khách hàng tại Bắc Giang lại tin tưởng chúng mình?
-
Thiết kế thực tế: Chúng mình không vẽ những thứ “bay bổng” mà thợ không xây được. Mọi chi tiết trong mẫu nhà phố 3 tầng hiện đại đều dựa trên khả năng thi công thực tế và độ bền vật liệu.
-
Tối ưu ánh sáng & thông gió: Với Techhome, một ngôi nhà đẹp trước hết phải là một ngôi nhà khỏe. Sự thông thoáng luôn là ưu tiên số 1.
-
Minh bạch ngân sách: Chúng mình giúp bạn quản lý rủi ro về vốn, hạn chế tối đa chi phí phát sinh trong quá trình xây dựng.
-
Hỗ trợ kỹ thuật 24/7: Hotline hỗ trợ 0387603333 luôn sẵn sàng giải đáp mọi thắc mắc của bạn từ khi bắt đầu đến lúc nhận nhà.

6. Góc chuyên gia: Lời khuyên khi xây dựng mẫu nhà phố 3 tầng hiện đại
Dưới góc độ là người làm nghề lâu năm, mình có vài lời khuyên nhỏ cho các bạn đang có ý định xây dựng nhà phố:
-
Đừng tiết kiệm diện tích giếng trời: Nhiều người tiếc vài mét vuông sàn mà làm giếng trời bé tí. Tin mình đi, một cái giếng trời đủ lớn sẽ thay đổi hoàn toàn chất lượng sống của bạn.
-
Chú trọng chống thấm: Với thiết kế mái bằng và ban công, việc xử lý chống thấm phải được giám sát cực kỳ nghiêm ngặt. Đừng để “nhà mới xây đã thấm”.
-
Chọn đơn vị thiết kế có tâm: Bản vẽ tốt sẽ giúp bạn tiết kiệm được hàng trăm triệu tiền vật tư thừa và lỗi thời gian thi công. Mẫu nhà phố 3 tầng hiện đại thành công là nhờ sự phối hợp ăn ý giữa chủ nhà và kiến trúc sư ngay từ bước đầu.
Mẫu nhà phố 3 tầng hiện đại của gia đình chị Nhung tại Bắc Giang là một minh chứng cho việc: Diện tích không cần quá rộng, chỉ cần chúng ta biết cách sắp xếp, cái tâm của người kiến trúc sư sẽ biến nó thành “tổ ấm” đúng nghĩa.
Bạn có đang sở hữu một lô đất tương tự và muốn biến nó thành mẫu nhà phố 3 tầng hiện đại trong mơ? Đừng ngần ngại liên hệ với Techhome nhé!

THÔNG TIN LIÊN HỆ:
-
Website: https://nhadeptechhome.vn/
-
Hotline: 036.273.2222
-
Địa chỉ: B1.1 LK18 Ô 3 – KĐT Thanh Hà – Cienco 5 – Thanh Oai- Hà Nội.
Techhome – Xây giá trị, dựng niềm tin!
