Xây nhà là việc trọng đại cả đời. Giữa hàng ngàn phong cách, tại sao nhà ống 2 tầng hiện đại vẫn luôn là “chân ái” của các gia đình trẻ? Hôm nay, hãy cùng Techhome đột nhập vào công trình thực tế của gia đình anh Toàn tại Nam Định để giải mã sức hút này nhé!
1. Xu hướng thiết kế nhà ống 2 tầng hiện đại năm 2026
Trong bối cảnh đất chật người đông tại các khu đô thị và vùng ven, việc sở hữu một mảnh đất phân lô có chiều ngang hạn chế nhưng chiều sâu dài là rất phổ biến. Chính vì vậy, nhà ống 2 tầng hiện đại trở thành giải pháp kiến trúc tối ưu. Nó không chỉ giúp giải quyết bài toán không gian mà còn mang lại diện mạo sang trọng, thanh thoát.
Tại dự án của anh Toàn , đội ngũ kiến trúc sư của Techhome đã tập trung vào các hình khối vuông vức, đường nét dứt khoát nhưng không kém phần tinh tế. Điểm nhấn nằm ở sự phối hợp vật liệu: gỗ ốp trần ban công, kính cường lực và các mảng tường xám giả đá, tạo nên một tổng thể vô cùng “bắt mắt”.

2. Chi tiết công năng mặt bằng – “Chìa khóa” cho cuộc sống tiện nghi
Một mẫu nhà ống 2 tầng hiện đại đẹp thôi chưa đủ, nó phải thực sự “dễ thở” và tiện dụng. Hồ sơ thiết kế kỹ thuật thi công của công trình này cho thấy sự tính toán tỉ mỉ đến từng milimet.
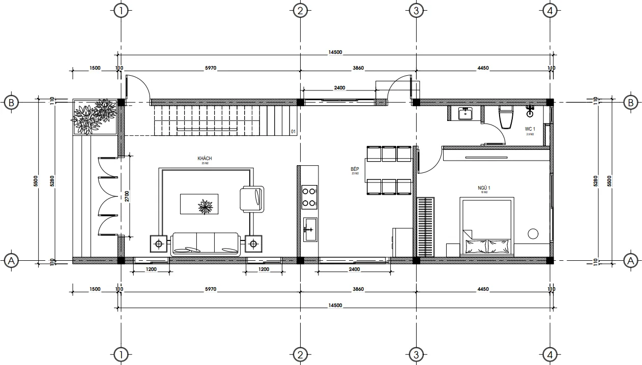
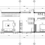
Tầng 1: Không gian kết nối gia đình
Mặt bằng công năng tầng 1 có diện tích 80m2 với chiều cao tầng là 3,9m, tạo cảm giác cực kỳ thông thoáng.
-
Phòng khách: Ngay từ cửa chính đi vào là không gian tiếp khách rộng rãi. Đây là nơi thể hiện gu thẩm mỹ của chủ nhà.
-
Khu vực bếp & phòng ăn: Được thiết kế liên thông với phòng khách, giúp tối ưu diện tích và tạo sự kết nối giữa các thành viên.
-
Phòng ngủ 1: Bố trí kín đáo phía cuối nhà, phù hợp cho người lớn tuổi hoặc làm phòng ngủ dự phòng cho khách.
-
Nhà vệ sinh (WC 1): Được đặt ở vị trí thuận tiện cho cả khách và sinh hoạt chung.
-
Cầu thang: Với 23 bậc thang, chiều cao mỗi bậc 169mm, đảm bảo chuẩn phong thủy và bước chân đi thoải mái, không bị mỏi.

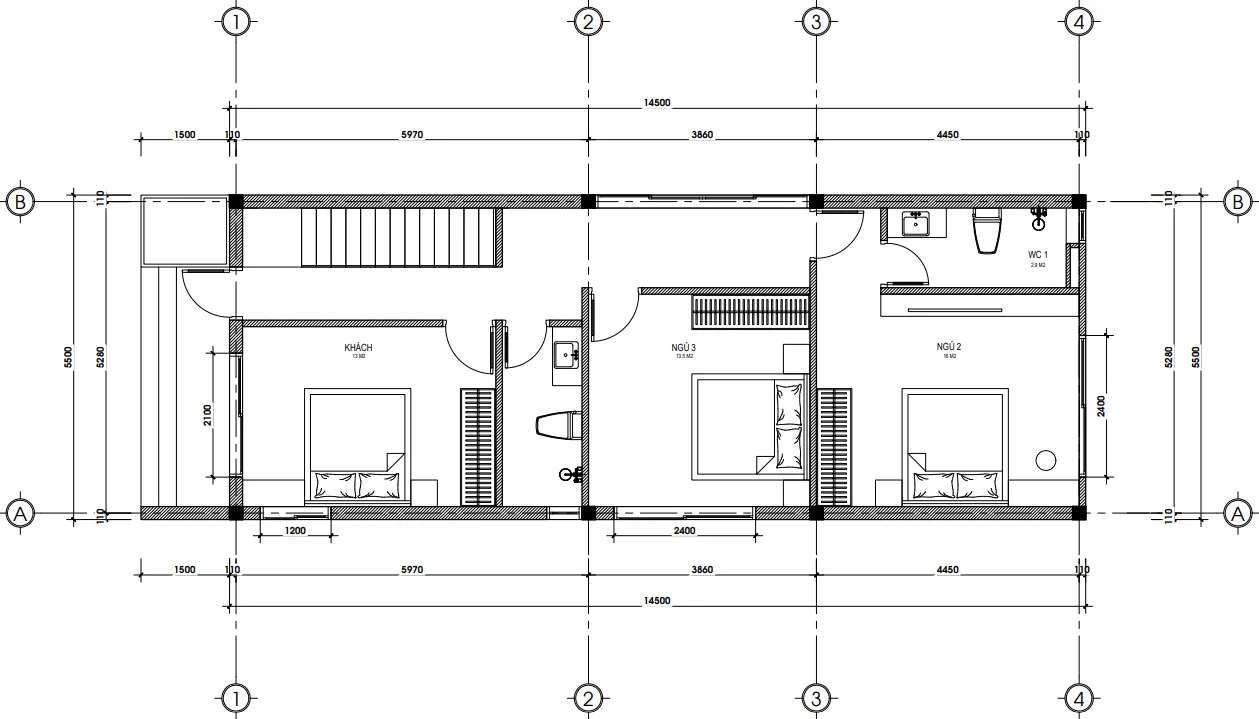
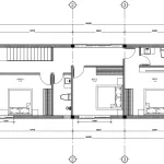
Tầng 2: Chốn nghỉ ngơi riêng tư
Lên đến tầng 2 , diện tích sàn được mở rộng lên 84m2 với chiều cao 3,6m. Đây là không gian dành trọn cho sự nghỉ ngơi.
-
Phòng ngủ 2,3,4: các phòng ngủ này được thiết kế với cửa sổ lớn để đón ánh sáng tự nhiên. Phòng ngủ 2 tích hợp Wc khép kín tiện lợi.
-
Nhà vệ sinh : Phục vụ nhu cầu sinh hoạt cho cả tầng.
-
Cầu thang tầng 2: Có 21 bậc, chiều cao bậc 171mm, phù hợp với nhịp sinh học của người trẻ.

3. Phân tích kiến trúc ngoại thất: Hiện đại và sang trọng
Nhìn vào phối cảnh 3D, bạn sẽ thấy nhà ống 2 tầng hiện đại của anh Toàn nổi bật với tông màu trắng chủ đạo kết hợp xám trung tính.
Góc nhìn chuyên gia: Việc sử dụng trần giả gỗ kết hợp đèn âm trần ở khu vực ban công không chỉ giúp ngôi nhà lung linh hơn vào ban đêm mà còn tạo cảm giác ấm cúng, sang trọng như các resort cao cấp.
-
Hệ thống cửa: Toàn bộ cửa sổ và cửa chính sử dụng nhôm kính xingfa cao cấp. Điều này giúp lấy sáng tối đa cho ngôi nhà ống vốn thường bị thiếu sáng ở giữa nhà.
-
Ban công xanh: Một dải cây xanh nhỏ dọc ban công tầng 2 giúp “mềm hóa” các hình khối bê tông, mang lại năng lượng tích cực mỗi buổi sáng.
-
Mái nhà: Sử dụng mái tôn chống nóng kết hợp hệ thống thái dương năng và bồn nước inox trên sân thượng, vừa tiết kiệm điện năng vừa bền bỉ với thời tiết khắc nghiệt tại Nam Định.
Để tìm hiểu rõ hơn về tiêu chuẩn vật liệu xây dựng và các yếu tố ảnh hưởng đến chi phí, bạn có thể tham khảo thêm tại các bài viết chuyên sâu về vật liệu xây dựng cao cấp trên Wikipedia.

4. Tại sao nên chọn Techhome thiết kế nhà ống 2 tầng hiện đại?
Trên thị trường có rất nhiều đơn vị, nhưng Techhome luôn khẳng định vị thế nhờ sự tâm huyết. Mọi hồ sơ thiết kế kỹ thuật thi công đều được kiểm duyệt chặt chẽ bởi các chuyên gia.
Chúng tôi không chỉ vẽ ra một ngôi nhà đẹp trên giấy, mà chúng tôi tính toán đến:
-
Tính khả thi trong thi công: Bản vẽ chi tiết giúp thợ xây dễ dàng thực hiện, hạn chế sai sót.
-
Tiết kiệm chi phí: Tư vấn vật liệu phù hợp với ngân sách của chủ đầu tư nhưng vẫn đảm bảo chất lượng.
-
Phong thủy khoa học: Bố trí hướng cửa, số bậc cầu thang chuẩn cung tốt.
Khi bạn tìm kiếm một mẫu nhà ống 2 tầng hiện đại, điều quan trọng nhất là tìm được người kiến trúc sư biết “lắng nghe” ngôi đất và nhu cầu của bạn. Đó là lý do anh Toàn tại Nam Định đã tin tưởng lựa chọn Techhome.

5. Báo giá thiết kế và thi công nhà ống 2 tầng hiện đại (Tham khảo 2026)
Để bạn dễ dàng hình dung và chuẩn bị ngân sách, Techhome xin đưa ra bảng báo giá sơ bộ. Lưu ý: Đơn giá thực tế có thể thay đổi tùy vào thời điểm, chủng loại vật liệu và địa điểm xây dựng.
Bảng 1: Đơn giá thiết kế kiến trúc
| Hạng mục | Đơn giá (VNĐ/m2) | Ghi chú |
| Thiết kế kiến trúc | 108.000 | Bao gồm 3D ngoại thất, hồ sơ kỹ thuật |
| Thiết kế nội thất | 150.000 | Bản vẽ 3D chi tiết từng phòng |
| Gói thiết kế trọn gói | 250.000 |
Bảng 2: Đơn giá thi công xây dựng
| Gói thi công | Đơn giá (VNĐ/m2) | Đặc điểm vật tư |
| Thi công phần thô | 3.800.000 – 4.000.000 | Sắt thép, gạch cát, nhân công xây chát |
| Thi công hoàn thiện (Khá) | 6.000.000 – 6.800.000 | Thiết bị vệ sinh, sơn, gạch ốp lát trung cấp |
| Thi công hoàn thiện (Cao cấp) | 7.000.000 – 8.000.000 | Vật liệu nhập khẩu, gỗ tự nhiên, đá cao cấp |
Với mẫu nhà ống 2 tầng hiện đại tổng diện tích khoảng 164m2, chi phí xây dựng hoàn thiện thường dao động từ 1,1 tỷ đến 1,3 tỷ đồng.

6. Những lưu ý “vàng” khi xây dựng nhà ống 2 tầng hiện đại
Để sở hữu một ngôi nhà ống 2 tầng hiện đại hoàn hảo như bản vẽ của anh Toàn, bạn cần lưu ý:
-
Thông gió tự nhiên: Đừng cố xây hết đất. Hãy để lại một khoảng giếng trời nhỏ giữa hoặc cuối nhà. Nó sẽ cứu cánh cho những ngày hè oi ả.
-
Lựa chọn nhà thầu: “Tiền nào của nấy”. Đừng quá ham rẻ mà chọn những đội thợ thiếu kinh nghiệm dẫn đến nứt tường, thấm dột về sau.
-
Kiểm soát vật liệu: Ngay từ khâu chọn gạch ốp lát và màu sơn, hãy bám sát bản vẽ 3D để ngôi nhà sau khi xây xong đạt được độ thẩm mỹ như mong đợi.
Ngôi nhà không chỉ là nơi che mưa che nắng, nó là nơi lưu giữ những khoảnh khắc hạnh phúc nhất. Một mẫu nhà ống 2 tầng hiện đại được đầu tư bài bản từ khâu thiết kế sẽ giúp bạn an tâm tận hưởng cuộc sống.

7. Kết luận
Dự án của anh Toàn tại Nam Định là minh chứng rõ nét nhất cho việc: Không cần quá cầu kỳ, sự giản đơn và tinh tế của mẫu nhà ống 2 tầng hiện đại vẫn tạo nên đẳng cấp riêng.
Nếu bạn đang ấp ủ dự định xây tổ ấm và cần một bản thiết kế nhà ống 2 tầng hiện đại vừa đẹp vừa tối ưu công năng, đừng ngần ngại liên hệ với Techhome. Chúng tôi luôn sẵn sàng lắng nghe và đồng hành cùng bạn!
Thông tin liên hệ tư vấn:
-
Công ty Cổ phần Kiến trúc và Xây dựng Techhome
-
Website: https://nhadeptechhome.vn/
-
Hotline: 036.273.2222
-
Địa chỉ: B1.1 LK18 Ô 3 – KĐT Thanh Hà – Cienco 5 – Thanh Oai- Hà Nội.
