Chào các bác, lại là Techhome đây! Hôm nay, tôi muốn dẫn anh em về Đông Anh – một vùng đất đang chuyển mình mạnh mẽ của Hà Nội – để cùng ngắm nhìn một siêu phẩm mà đội ngũ Kiến trúc Techhome vừa bàn giao phương án thiết kế cho gia đình anh Thiện.
Thú thật, khi nhận đề bài về một mẫu nhà phố 4 tầng hiện đại trên lô đất 5x16m, tôi đã trăn trở rất nhiều. Làm sao để một ngôi nhà ống không bị “bí thở”? Làm sao để kết hợp văn phòng làm việc chuyên nghiệp ở tầng 1 mà vẫn giữ được sự riêng tư, ấm cúng cho gia đình ở các tầng trên? Và đây chính là câu trả lời mà chúng tôi tự hào nhất.
1. Cái “Chất” Riêng Trong Kiến Trúc Ngoại Thất
Nhìn vào phối cảnh 3D, anh em có thể thấy ngay sự khác biệt. Thay vì những mảng tường phẳng lì đơn điệu, Techhome đã sử dụng thủ pháp “giật khối” thông minh. Các mảng ban công được thiết kế đua ra, thụt vào một cách có tính toán, tạo nên hiệu ứng thị giác mạnh mẽ cho mẫu nhà phố 4 tầng hiện đại này.
-
Vật liệu hiện đại: Chúng tôi ưu tiên sử dụng gạch ốp giả đá xám ở tầng 1 để tạo cảm giác vững chãi, sang trọng cho khu vực văn phòng. Các tầng trên là sự kết hợp giữa sơn trắng tinh khôi và các lam gỗ nhựa ngoài trời màu nâu ấm.
-
Giải pháp xanh: Anh em để ý nhé, mỗi tầng đều có dải bồn hoa chạy dài. Việc đưa cây xanh vào mặt tiền không chỉ giúp giảm bức xạ nhiệt mà còn biến ngôi nhà thành một thực thể “biết thở” giữa phố thị.
-
Hệ thống kính cường lực: Toàn bộ hệ cửa đều dùng nhôm kính Xingfa cao cấp, giúp lấy sáng tối đa cho chiều sâu 16m của ngôi nhà.

2. Công Năng Tối Ưu – Chìa Khóa Của Hạnh Phúc
Một mẫu nhà phố 4 tầng hiện đại đẹp thôi là chưa đủ, nó phải “tiện”. Với diện tích sàn khoảng 80m2, chúng tôi đã phân bổ không gian cực kỳ khoa học dựa trên nhu cầu thực tế của gia đình anh Thiện.
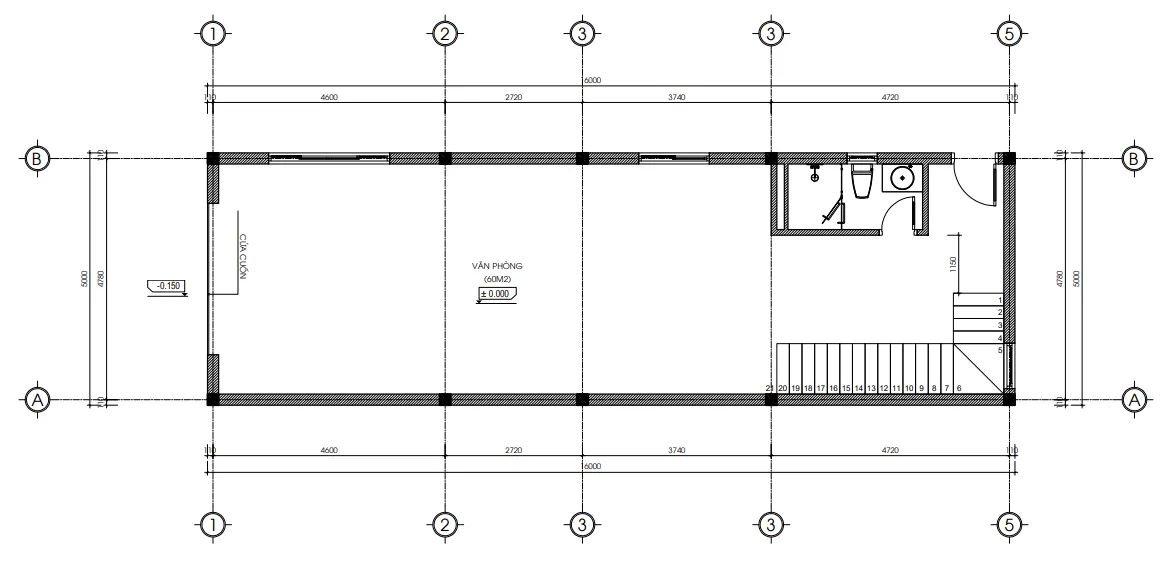
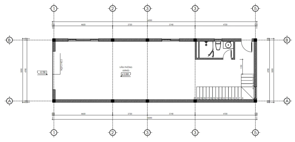
Tầng 1: Văn phòng làm việc chuyên nghiệp
Toàn bộ diện tích 80m2 tầng 1 được dành trọn cho không gian văn phòng. Với cốt nền +- 0.000 và hệ thống cửa cuốn an toàn, đây là nơi lý tưởng để anh Thiện vận hành công việc kinh doanh ngay tại nhà. Phía cuối là hệ thống thang và 1 WC nhỏ gọn, đảm bảo sự tách biệt hoàn toàn với không gian sống bên trên.

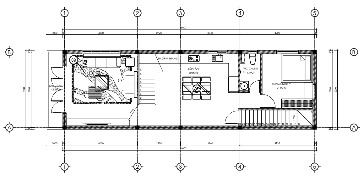
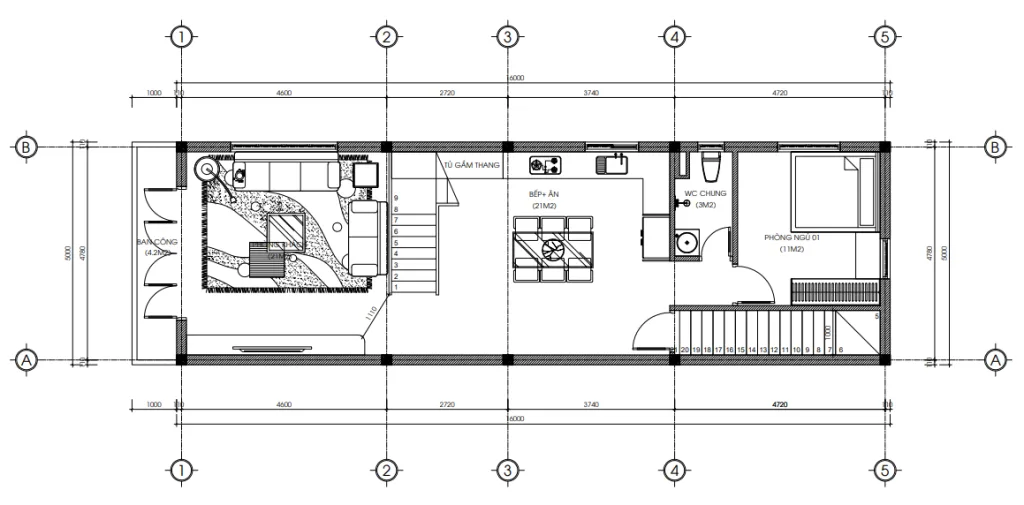
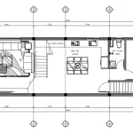
Tầng 2: “Trái tim” của ngôi nhà
Lên đến tầng 2 (cao 3.6m với 21 bậc thang ), anh em sẽ bước vào không gian sinh hoạt chung rộng 85m2.
-
Phòng khách: Ngập tràn ánh sáng nhờ ban công rộng 4.2m2.
-
Bếp & Phòng ăn: Diện tích 21m2 được bố trí liên thông, tạo sự kết nối giữa các thành viên.
-
Phòng ngủ 01: Một phòng ngủ nhỏ 11m2 phía sau.

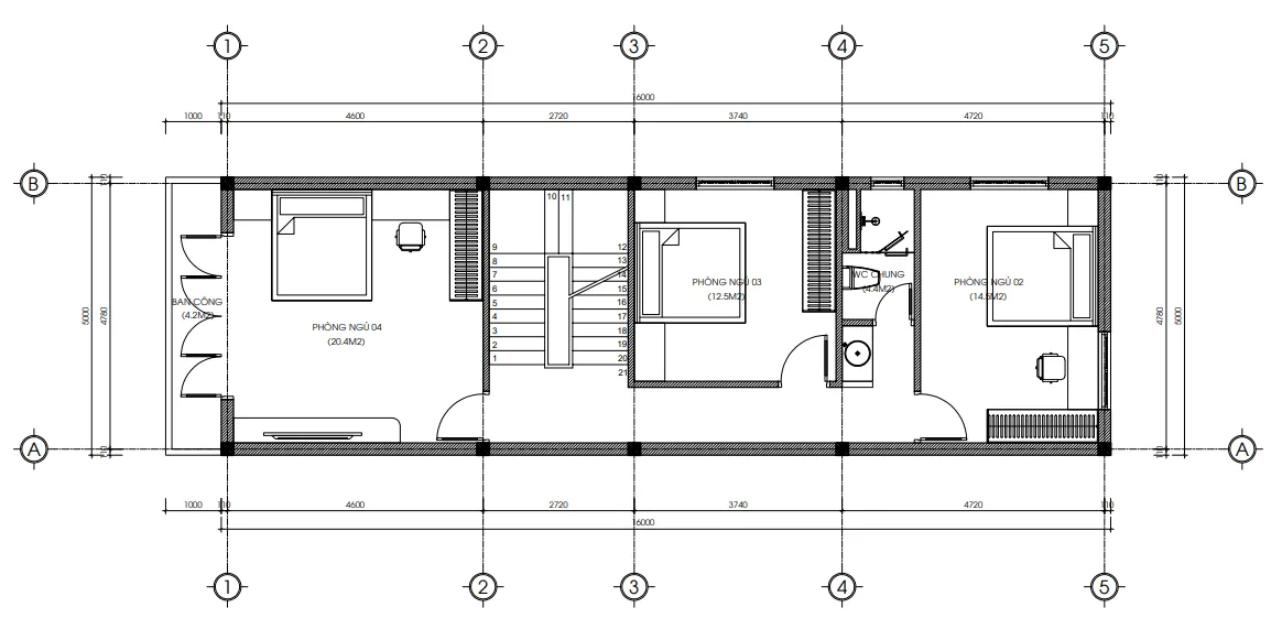
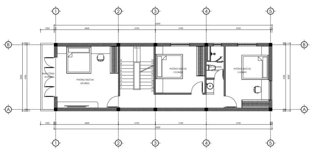
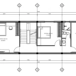
Tầng 3: Không gian nghỉ ngơi riêng tư
Tầng này là nơi nghỉ ngơi của cả gia đình với 3 phòng ngủ:
-
Phòng ngủ master (PN 04): Rộng 20.4m2 có ban công riêng.
-
Phòng ngủ 02 & 03: Diện tích lần lượt là 14.5m2 và 12.5m2, cực kỳ thoáng nhờ hệ thống cửa sổ trổ theo dọc chiều dài nhà.

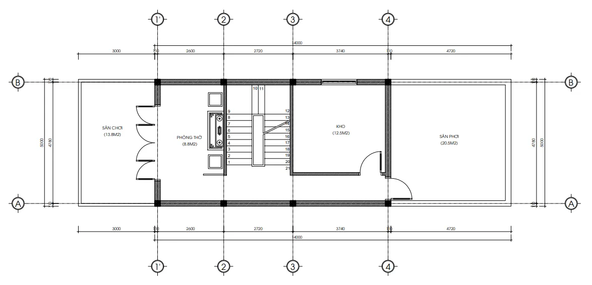
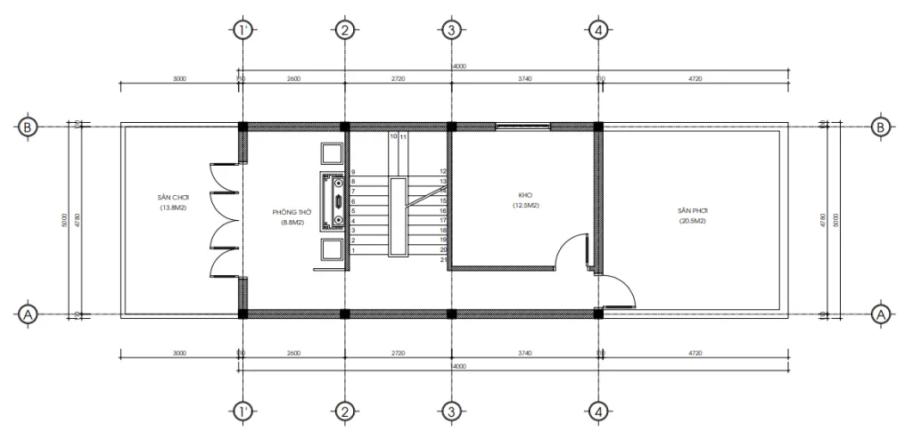
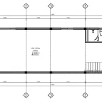
Tầng Tum: Góc tâm linh và thư giãn
Tầng tum có diện tích thiết kế 46m2, bao gồm:
-
Phòng thờ: 8.8m2 trang nghiêm, hướng ra sân chơi.
-
Sân chơi & Sân phơi: Nơi anh Thiện có thể trồng cây, thưởng trà hoặc làm một bữa tiệc BBQ nhỏ cuối tuần.

3. Tại Sao Mẫu Nhà Phố 4 Tầng Hiện Đại Này Lại “Hot”?
Thực tế, xu hướng xây dựng mẫu nhà phố 4 tầng hiện đại đang bùng nổ tại các khu vực ven đô như Đông Anh hay Gia Lâm. Lý do rất đơn giản:
-
Tăng giá trị sử dụng đất: Trên cùng một diện tích, việc chồng tầng giúp bạn có thêm không gian cho nhiều mục đích (ở + kinh doanh).
-
Vẻ đẹp bền vững: Phong cách hiện đại ít bị lỗi mốt theo thời gian so với các kiểu tân cổ điển rườm rà.
-
Chi phí hợp lý: Tối giản chi tiết trang trí giúp tập trung ngân sách vào vật liệu chất lượng và thiết bị thông minh.
Đối với mẫu nhà phố 4 tầng hiện đại của anh Thiện, Techhome đã tính toán rất kỹ về phong thủy hướng nhà cũng như luồng giao thông trong nhà để đảm bảo khí vận luôn hanh thông.

4. Báo Giá Tham Khảo Xây Dựng Nhà Phố Năm 2026
Tôi biết anh em khi xem nhà thường quan tâm nhất đến “con số”. Để hoàn thiện một mẫu nhà phố 4 tầng hiện đại tương tự với mức độ hoàn thiện khá, mời anh em tham khảo bảng giá dự kiến tại Techhome:
| Hạng mục | Đơn giá dự kiến (VNĐ/m2) | Ghi chú |
| Thiết kế kiến trúc | 108.000 | Bao gồm kiến trúc, kết cấu, điện nước |
| Thi công phần thô | 3.800.000 – 4.200.000 | Bao gồm vật tư thô + nhân công |
| Hoàn thiện trọn gói | 6.500.000 – 7.500.000 | Vật liệu hoàn thiện khá – tốt |
Lưu ý: Đây chỉ là mức chi phí ước tính. Để nhận được báo giá chính xác và chi tiết nhất cho công trình của bạn, vui lòng liên hệ trực tiếp với chúng tôi. Hoặc để tìm hiểu rõ hơn về tiêu chuẩn vật liệu xây dựng và các yếu tố ảnh hưởng đến chi phí, bạn có thể tham khảo thêm tại các bài viết chuyên sâu về vật liệu xây dựng cao cấp trên Wikipedia.

5. Góc Chuyên Gia: 3 Lưu Ý “Vàng” Khi Xây Nhà Phố 4 Tầng
Với kinh nghiệm thực chiến hàng trăm công trình, tôi muốn chia sẻ thêm với anh em vài điểm để mẫu nhà phố 4 tầng hiện đại của bạn trở nên hoàn hảo hơn:
-
Đừng tiếc tiền cho giếng trời: Với nhà sâu 16m như anh Thiện, nếu không có giếng trời hoặc khoảng thông tầng ở giữa, nhà sẽ rất tối và bí. Ánh sáng tự nhiên là liều thuốc bổ miễn phí cho sức khỏe đấy các bác ạ.
-
Ưu tiên chống nóng mặt tiền: Vì nhà phố thường chỉ có một mặt thoáng, nếu hướng Tây, hãy dùng lam chắn nắng hoặc kính hộp 2 lớp. Mẫu nhà phố 4 tầng hiện đại này của chúng tôi đã dùng hệ lam gỗ vừa để trang trí, vừa cản nắng cực tốt.
-
Lựa chọn đơn vị thiết kế có tâm: Một bản vẽ tốt giúp các bác tiết kiệm được hàng trăm triệu tiền lãng phí vật tư và sửa chữa sau này.

Kết Luận
Ngôi nhà không chỉ là nơi để che nắng che mưa, nó là niềm tự hào và là nơi tái tạo năng lượng. Mẫu nhà phố 4 tầng hiện đại tại Đông Anh này là minh chứng cho sự kết hợp hài hòa giữa công năng văn phòng và không gian sống xanh.
Nếu các bác đang có ý định xây tổ ấm và cần một người bạn đồng hành hiểu chuyện, hãy ghé thăm Website: https://nhadeptechhome.vn/ hoặc nhắn tin trực tiếp cho đội ngũ Techhome. Chúng tôi không chỉ xây nhà, chúng tôi xây dựng những giá trị sống.
Cảm ơn các bác đã theo dõi bài viết về mẫu nhà phố 4 tầng hiện đại của gia đình anh Thiện. Chúc anh em sớm sở hữu ngôi nhà trong mơ của mình!

Thông tin liên hệ:
-
Công ty Cổ phần Kiến trúc và Xây dựng Techhome
-
Hotline: 0364.04.2222 / 0387.60.3333
-
Địa chỉ: B1.1 LK18 Ô 3 – KĐT Thanh Hà – Cienco 5 – Thanh Oai- Hà Nội.
