Bạn đang sở hữu một mảnh đất phân lô hình ống và băn khoăn không biết nên xây dựng theo phong cách nào để vừa sang trọng, vừa tối ưu công năng? Đừng bỏ qua mẫu nhà phố 3 tầng tân cổ điển mà Techhome vừa bàn giao hồ sơ thiết kế cho gia đình chị Trang tại Hưng Yên. Đây chính là lời giải hoàn hảo cho bài toán diện tích khiêm tốn nhưng vẫn muốn khẳng định đẳng cấp của gia chủ.
1. Câu chuyện đằng sau mẫu nhà phố 3 tầng tân cổ điển tại Hưng Yên
Khi tìm đến Techhome, chị Trang chia sẻ: “Chị muốn một ngôi nhà nhìn vào phải thấy sự tinh tế, không quá cầu kỳ kiểu lâu đài nhưng phải có nét riêng, sang trọng và đặc biệt là bên trong phải thật thoáng.” Hiểu được tâm tư đó, đội ngũ kiến trúc sư của chúng tôi đã kiến tạo nên một mẫu nhà phố 3 tầng tân cổ điển với sự giao thoa tuyệt vời giữa nét hoài cổ phương Tây và sự tiện nghi hiện đại.
Lối sống hiện đại khiến chúng ta đôi khi cảm thấy ngột ngạt trong những bức tường bê tông. Vì vậy, Techhome không chỉ thiết kế một ngôi nhà, chúng tôi thiết kế một không gian sống nơi mỗi góc nhỏ đều có ánh sáng và hơi thở của thiên nhiên.

2. Phối cảnh ngoại thất: Sự sang trọng đến từ những chi tiết nhỏ nhất
Nhìn vào mặt tiền của mẫu nhà phố 3 tầng tân cổ điển này, điểm thu hút đầu tiên chính là hệ cột Ionic thanh mảnh kéo dài, tạo cảm giác ngôi nhà cao ráo và bề thế hơn thực tế.
-
Tone màu chủ đạo: Màu trắng kem kinh điển giúp ngôi nhà luôn tươi mới và nổi bật giữa khu phố.
-
Hệ mái giả Mansard: Khiến ngôi nhà thêm phần sang trọng, bề thế mà vẫn tiết kiệm chi phí.
-
Ban công sắt nghệ thuật: Những đường cong mềm mại của lan can sắt mỹ thuật đen tuyền tương phản sắc nét trên nền sơn trắng, tạo nên sức hút khó cưỡng cho mẫu nhà phố 3 tầng tân cổ điển này.

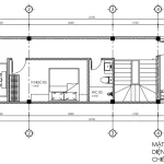
3. Phân tích mặt bằng công năng tối ưu từ Techhome
Một thiết kế đẹp trước hết phải là một thiết kế tiện dụng. Với diện tích xây dựng khoảng 68m2 sàn, chúng tôi đã tính toán kỹ lưỡng từng mét vuông.
Tầng 1: Không gian sinh hoạt chung ấm cúng
Tại tầng 1 của mẫu nhà phố 3 tầng tân cổ điển, chúng tôi bố trí:
-
Gara xe (18.5m2): Đủ rộng cho một xe ô tô sedan và vài chiếc xe máy.
-
Phòng khách (19.3m2): Thiết kế liên thông tạo cảm giác rộng rãi.
-
Phòng bếp & ăn (17m2): Khu vực giữ lửa cho tổ ấm với hệ tủ bếp chữ L hiện đại.

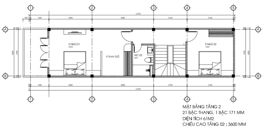
Tầng 2: Nơi nghỉ ngơi riêng tư
Tầng 2 của mẫu nhà phố 3 tầng tân cổ điển là khu vực nghỉ ngơi chính với:
-
Phòng ngủ Master (25m2): Có khu vực thay đồ riêng rộng rãi, ban công thoáng mát.
-
Phòng ngủ 02 (14m2): Phù hợp cho con cái, đảm bảo sự yên tĩnh để học tập và nghỉ ngơi.

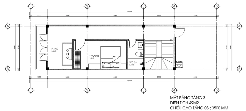
Tầng 3: Sự kết hợp giữa tâm linh và thư giãn
Công năng tầng 3 trong mẫu nhà phố 3 tầng tân cổ điển bao gồm:
-
Phòng thờ (8.3m2): Đặt tại vị trí trang trọng nhất hướng ra mặt tiền.
-
Phòng ngủ 03 (11.5m2): Dành cho khách hoặc thành viên mới trong gia đình.
-
Sân thượng: Một khoảng hở quý giá để gia chủ trồng cây, thưởng trà vào mỗi tối.

4. Tại sao mẫu nhà phố 3 tầng tân cổ điển lại lên ngôi trong năm 2026?
Không phải ngẫu nhiên mà nhiều khách hàng của Techhome lại ưu tiên lựa chọn mẫu nhà phố 3 tầng tân cổ điển. Phong cách này mang lại vẻ đẹp vượt thời gian (timeless beauty). Nếu như các mẫu nhà hiện đại có thể lỗi mốt sau 5-10 năm, thì những đường phào chỉ nhẹ nhàng và tỉ lệ cân đối của nhà tân cổ điển vẫn luôn giữ được giá trị thẩm mỹ cao.
Hơn nữa, mẫu nhà phố 3 tầng tân cổ điển rất dễ kết hợp với các vật liệu xây dựng mới như nhôm kính Xingfa, đá tự nhiên, giúp ngôi nhà vừa bền bỉ vừa dễ dàng bảo trì.

5. Ánh sáng và thông gió – Linh hồn của thiết kế Techhome
Trong hồ sơ thiết kế mẫu nhà phố 3 tầng tân cổ điển cho chị Trang, bạn có thể thấy hệ thống giếng trời và cửa sổ được bố trí cực kỳ khoa học. Chúng tôi sử dụng kính cường lực tấm lớn để đón tối đa ánh sáng tự nhiên. Một ngôi nhà “khỏe” là một ngôi nhà không cần bật đèn vào ban ngày và không khí được lưu thông liên tục.
6. Gợi ý từ chuyên gia: Để mẫu nhà phố 3 tầng tân cổ điển thực sự hoàn hảo
Để xây dựng một mẫu nhà phố 3 tầng tân cổ điển đẹp như phối cảnh, bạn cần lưu ý:
-
Lựa chọn đội thợ tay nghề cao: Các chi tiết phào chỉ đòi hỏi sự tỉ mỉ, nếu đắp vẽ không chuẩn sẽ khiến ngôi nhà trông rất “nặng nề”.
-
Đầu tư hệ thống chiếu sáng: Ánh sáng vàng ấm (3000K-4000K) sẽ tôn lên vẻ sang trọng của các đường chỉ tường vào ban đêm.
-
Cây xanh ban công: Đừng quên bố trí những chậu cây xanh nhỏ ở ban công để làm mềm đi các khối bê tông của mẫu nhà phố 3 tầng tân cổ điển.

7. Báo giá thiết kế và thi công (Tham khảo 2026)
Techhome luôn minh bạch về chi phí để khách hàng dễ dàng chuẩn bị ngân sách. Dưới đây là bảng giá cho mẫu nhà phố 3 tầng tân cổ điển:
| Hạng mục | Đơn giá (VNĐ/m2) | Ghi chú |
| Thiết kế kiến trúc | 108.000 | Bao gồm kiến trúc, kết cấu, điện nước. |
| Thi công phần thô | 3.800.000 – 4.200.000 | Bao gồm vật tư thô + nhân công |
| Thi công trọn gói (Chìa khóa trao tay) | 7.000.000 – 8.500.000 | Tùy mức độ cao cấp của vật liệu |
Lưu ý: Đây chỉ là mức chi phí ước tính. Để nhận được báo giá chính xác và chi tiết nhất cho công trình của bạn, vui lòng liên hệ trực tiếp với chúng tôi. Hoặc để tìm hiểu rõ hơn về tiêu chuẩn vật liệu xây dựng và các yếu tố ảnh hưởng đến chi phí, bạn có thể tham khảo thêm tại các bài viết chuyên sâu về vật liệu xây dựng cao cấp trên Wikipedia.

8. Kết luận
Mẫu nhà phố 3 tầng tân cổ điển tại Hưng Yên của chị Trang không chỉ là một công trình kiến trúc, mà là thành quả của sự thấu hiểu giữa khách hàng và kiến trúc sư Techhome. Chúng tôi tin rằng, mỗi ngôi nhà đều có một linh hồn riêng và sứ mệnh của chúng tôi là đánh thức nó.
Nếu bạn đang tìm kiếm một đơn vị uy tín để hiện thực hóa mẫu nhà phố 3 tầng tân cổ điển trong mơ của mình, hãy liên hệ ngay với Techhome. Chúng tôi cam kết mang lại sự hài lòng tuyệt đối từ khâu bản vẽ đến khi bàn giao nhà thực tế.
Thông tin liên hệ:
-
Website: nhadeptechhome.vn
-
Hotline tư vấn kỹ thuật: 0364.042.222 – 0387.603.333
-
Địa chỉ văn phòng: B1.1 LK18 Ô 3 – KĐT Thanh Hà – Cienco 5 – Thanh Oai- Hà Nội.
