Chiêm ngưỡng mẫu thiết kế nội thất hiện đại tinh tế, sử dụng gỗ óc chó và vật liệu cao cấp, tối ưu công năng cho biệt thự. Techhome cam kết mang đến không gian sống đẳng cấp, tiện nghi. Xem chi tiết ngay!
🏡 Giới Thiệu Chung: Thiết Kế Nội Thất Hiện Đại Kết Hợp Gỗ Tự Nhiên
Thiết kế nội thất hiện đại không chỉ là sắp đặt đồ đạc, mà là kiến tạo một không gian sống phản ánh đẳng cấp và gu thẩm mỹ của gia chủ. Mẫu thiết kế nội thất hiện đại mà Techhome giới thiệu dưới đây là một ví dụ điển hình cho sự hòa quyện hoàn hảo giữa phong cách Hiện Đại tinh tế và sự ấm cúng, sang trọng từ vật liệu gỗ tự nhiên/gỗ công nghiệp cao cấp vân Óc Chó.
Dự án này được thiết kế tối ưu cho các loại hình nhà ở cao cấp như biệt thự, nơi yêu cầu cao về cả tính thẩm mỹ và công năng sử dụng khoa học. Phong cách Hiện Đại được thể hiện qua các đường nét thẳng, phẳng, sự tối giản trong chi tiết và tập trung vào chất lượng vật liệu. Sự kết hợp màu sắc chủ đạo là trắng (tường, trần, tủ bếp) và nâu trầm (gỗ Óc Chó) tạo nên sự tương phản mạnh mẽ, nhưng vẫn giữ được sự hài hòa, mang lại cảm giác ấm áp, đẳng cấp và bền vững theo thời gian. Đây chắc chắn là lựa chọn lý tưởng cho gia đình yêu thích sự tiện nghi và vẻ đẹp trường tồn.

✨ Phối Cảnh Nội Thất Ấn Tượng: Sự Lên Ngôi Của Gỗ và Ánh Sáng
Mỗi góc nhìn trong mẫu thiết kế nội thất hiện đại này đều là một sự sắp đặt nghệ thuật, nơi ánh sáng và vật liệu hòa quyện, tạo nên một không gian sống đầy cảm xúc và cá tính. Đây không chỉ là nơi sinh hoạt, mà là một tuyệt tác kiến trúc nội thất mà Techhome đã dày công xây dựng:
- Phòng Khách Đẳng Cấp và Thanh Lịch: Trung tâm của sự sang trọng là mảng tường TV được ốp đá tự nhiên vân mây trắng lớn, tạo hiệu ứng thị giác mạnh mẽ, tương phản hoàn hảo với sự ấm áp của hệ tủ kệ gỗ óc chó vững chãi hai bên. Sự sắp đặt này không chỉ là nơi đặt TV mà còn là một kệ trưng bày nghệ thuật, có hệ đèn LED hắt sáng tinh tế tôn vinh các vật phẩm trang trí. Bộ sofa được thiết kế theo phong cách tối giản nhưng sử dụng chất liệu da/nỉ cao cấp màu nâu trầm, kết hợp với bàn trà mặt kính/mặt đá, vừa tạo sự tiện nghi khi sử dụng, vừa thể hiện gu thẩm mỹ tinh tế của gia chủ. Cửa sổ lớn được che chắn bằng rèm hai lớp (voan mỏng và rèm vải dày) giúp điều chỉnh ánh sáng linh hoạt, mang lại sự riêng tư mà vẫn đảm bảo ánh sáng tự nhiên chan hòa.

- Khu Vực Bếp Ăn Đầy Kết Nối: Bếp ăn là nơi giữ lửa cho gia đình, và Techhome đã thiết kế không gian này với sự tiện nghi tối đa. Hệ tủ bếp kịch trần kết hợp giữa màu trắng tinh khôi (tạo cảm giác sạch sẽ) và màu nâu trầm ấm của gỗ (tạo điểm nhấn vững chãi). Sự bố trí này giúp tăng cường không gian lưu trữ lên mức tối đa, giải quyết triệt để vấn đề lộn xộn trong bếp. Khu vực bàn ăn nổi bật với bàn ăn mặt đá tự nhiên/nhân tạo với chân bàn thiết kế điêu khắc độc đáo, đi kèm ghế ăn bọc da/nỉ màu nâu cùng tông, tạo sự đồng bộ và đẳng cấp. Đặc biệt, khu vực tủ đứng tích hợp tủ lạnh lớn và các thiết bị bếp hiện đại (lò nướng, lò vi sóng) được ốp gỗ liền mạch, biến khu vực chức năng thành một mảng trang trí hài hòa.
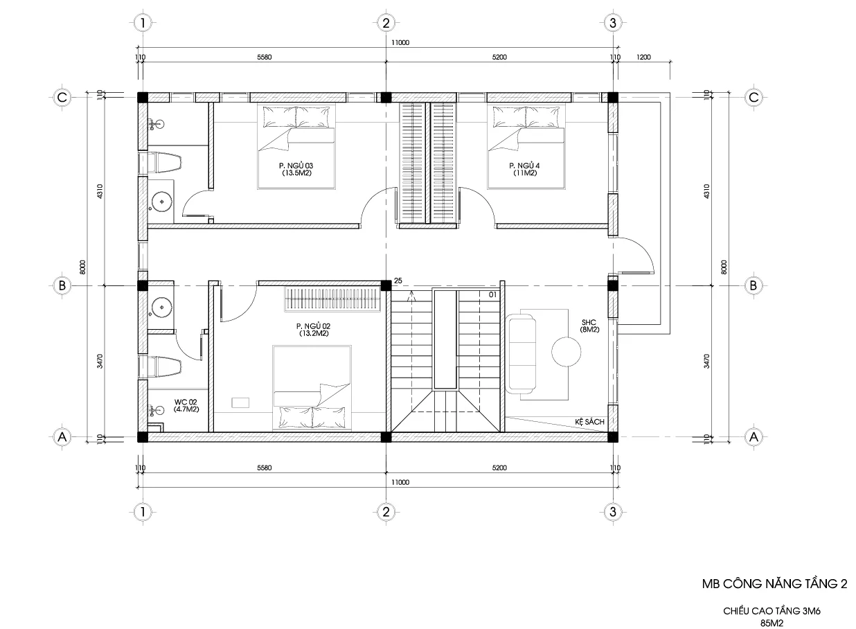
- Không Gian Phòng Ngủ – Thiên Đường Thư Giãn: Mỗi phòng ngủ đều là một không gian nghỉ dưỡng cá nhân, ưu tiên sự thoải mái và vẻ đẹp tinh tế. Phòng Ngủ 1 sử dụng tông màu be, nâu đất nhẹ nhàng, vách đầu giường bọc da/nỉ cao cấp kết hợp với bức tranh nghệ thuật trừu tượng, tạo cảm giác thư thái. Phòng Ngủ 3 và Phòng Ngủ 4 nhấn mạnh vào ánh sáng trang trí với đèn tròn LED nổi bật hoặc đèn hắt chạy dài vách, tạo nên sự lãng mạn, hiện đại. Hệ thống tủ quần áo cánh phẳng, không tay nắm (push open hoặc tay nắm âm) màu trắng kịch trần, giúp căn phòng luôn gọn gàng và tối ưu hóa không gian. Việc bố trí bàn trang điểm và bàn làm việc thông minh, liền khối với tủ hoặc sử dụng gương tròn lớn (Phòng Ngủ 3) đã thể hiện sự chăm chút đến từng nhu cầu cá nhân của người sử dụng.
- 🍷 Khu Vực Cầu Thang – Góc Nghệ Thuật Rượu Vang: Thông thường, gầm cầu thang là không gian bị bỏ phí hoặc chỉ dùng để lưu trữ đồ đạc lộn xộn. Tuy nhiên, trong dự án thiết kế nội thất hiện đại này, kiến trúc sư Techhome đã biến nó thành một tủ rượu/tủ trưng bày âm tường sang trọng. Tủ được thiết kế bằng gỗ óc chó tối màu, kết hợp với cánh kính trong suốt, tạo chiều sâu và bảo vệ bộ sưu tập. Hệ thống đèn LED âm tủ hắt sáng từ trên xuống và từ các ngăn kệ, không chỉ làm nổi bật chai rượu và ly thủy tinh mà còn tạo nên một góc trang trí nghệ thuật đầy cuốn hút ngay lối đi. Đặc biệt, bản thân cầu thang cũng là một điểm nhấn hiện đại với lan can gỗ và kính, kết hợp với hệ đèn LED chạy dọc bậc thang, đảm bảo an toàn và tăng tính thẩm mỹ cao cấp, dẫn lối lên các tầng trên một cách lung linh.

- 🙏 Phòng Thờ – Sự Trang Nghiêm của Văn Hóa Việt: Phòng Thờ được bố trí ở một vị trí trang trọng, kín đáo nhưng vẫn gần gũi với không gian chung. Toàn bộ khu vực này được ốp vách gỗ óc chó nguyên khối, tạo cảm giác ấm cúng và uy nghiêm. Điểm nhấn trung tâm là vách nền màu trắng được bao khung bởi đường nét gỗ truyền thống, bên trong có họa tiết trang trí tròn (có thể là chữ Vạn hoặc họa tiết mây tre cách điệu), thể hiện sự hài hòa giữa hiện đại và tâm linh. Bàn thờ được chạm khắc tinh xảo, mang đậm nét đẹp của đồ thờ cúng truyền thống Việt Nam, đặt trên bệ đỡ thấp, tất cả đều bằng gỗ tự nhiên chất lượng cao. Sự kết hợp giữa chất liệu gỗ trầm ấm, ánh sáng dịu nhẹ và sự tối giản trong trang trí vách nền đã tạo nên một không gian thờ cúng thanh tịnh, tôn nghiêm, giữ gìn trọn vẹn nét đẹp văn hóa gia đình.
Sự tỉ mỉ trong việc chọn lựa và kết hợp chất liệu, màu sắc và ánh sáng đã tạo nên một tổng thể nội thất hiện đại không chỉ đẹp mắt mà còn mang lại trải nghiệm sống tiện nghi, đẳng cấp cho gia chủ.

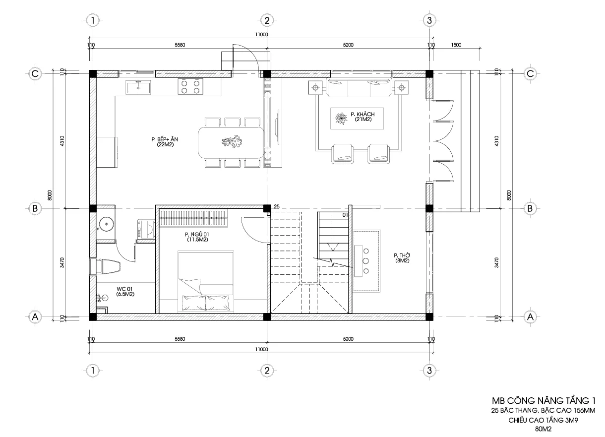
📐 Phân Tích Mặt Bằng Công Năng Tối Ưu
Biệt thự 2 tầng hiện đại với công năng được sắp xếp khoa học, hợp lí, phù hợp phong thủy. Thiết kế nội thất hiện đại là một giải pháp giúp công năng tối ưu đến từng centimet.
- Tầng Trệt/Khu Vực Chung: Sự liền mạch giữa Phòng Khách – Phòng Thờ – Khu Vực Ăn Uống tạo nên không gian mở, tăng tính kết nối giữa các thành viên. Khu vực giặt là được khéo léo tích hợp trong khu vực bếp (bên cạnh tủ bếp), đảm bảo tính thẩm mỹ và sự kín đáo cần thiết. Bố cục này giúp ánh sáng tự nhiên từ cửa sổ (Phòng Khách) và khu vực bếp/ăn lan tỏa, tạo cảm giác rộng rãi hơn.
- Khu Vực Riêng Tư (Phòng Ngủ): Mỗi phòng ngủ đều được thiết kế độc lập, đảm bảo sự riêng tư tuyệt đối. Việc bố trí bàn làm việc/bàn trang điểm liền khối với tủ quần áo là giải pháp thông minh để tiết kiệm diện tích và tăng tính thẩm mỹ.
- Phòng Vệ Sinh : Thiết kế nội thất hiện đại, sạch sẽ với vách kính cường lực ngăn khu vực tắm đứng, giúp không gian luôn khô ráo. Bồn rửa mặt treo tường và tủ kệ âm tường màu trắng kết hợp gỗ giúp tối ưu hóa không gian lưu trữ và dễ dàng vệ sinh.
Sự bố trí khoa học, tận dụng tối đa không gian trống (như gầm cầu thang), và phân chia rõ ràng các khu vực chức năng đã minh chứng cho khả năng tối ưu công năng hàng đầu của đội ngũ kiến trúc sư Techhome.
🪵 Đánh Giá về Kết Cấu và Vật Liệu Xây Dựng
Để tạo nên một không gian nội thất vừa đẹp vừa bền vững như mẫu thiết kế nội thất hiện đại này, việc lựa chọn vật liệu là vô cùng quan trọng:
- Vật liệu Gỗ Chủ Đạo: Sử dụng Gỗ công nghiệp lõi xanh chống ẩm (MDF/HDF) phủ các loại bề mặt cao cấp như Laminate/Veneer Óc Chó hoặc Acrylic cho các bề mặt cần độ bóng cao (tủ bếp, tủ quần áo). Việc này đảm bảo tính thẩm mỹ tương đương gỗ tự nhiên Óc Chó (sang trọng, vân đẹp) nhưng với chi phí tối ưu hơn, khả năng chống cong vênh, mối mọt và chịu ẩm tốt hơn.
- Bề mặt: Sử dụng Đá tự nhiên/Đá nhân tạo gốc thạch anh cho mặt bếp, mặt bàn ăn và vách TV. Những vật liệu này có khả năng chịu nhiệt, chống trầy xước và dễ dàng lau chùi, tăng tuổi thọ sử dụng cho khu vực thường xuyên tiếp xúc.
- Hệ thống chiếu sáng: Toàn bộ dự án sử dụng hệ thống đèn LED âm trần, đèn hắt và đèn trang trí LED (dạng vòng tròn, dây) vừa tiết kiệm điện, vừa tạo ra hiệu ứng ánh sáng đa lớp, giúp không gian thêm chiều sâu và cảm xúc.
- Phụ kiện và Thiết bị: Sử dụng phụ kiện ray trượt, bản lề giảm chấn cao cấp, cùng các thiết bị bếp, vệ sinh hiện đại, đảm bảo sự tiện nghi và độ bền khi sử dụng hàng ngày.
🏅 Lợi ích và Giá Trị Khi Chọn Techhome
Chọn Techhome là chọn đối tác kiến tạo không gian sống trọn vẹn. Với kinh nghiệm dày dặn trong thiết kế và thi công hàng trăm dự án nhà phố, biệt thự cao cấp, chúng tôi cam kết:
- Thiết Kế Độc Bản: Đội ngũ kiến trúc sư tài năng sẽ lắng nghe và hiện thực hóa ý tưởng của gia chủ, đảm bảo mỗi không gian là độc nhất vô nhị, phù hợp với phong thủy và cá tính riêng.
- Tối Ưu Chi Phí: Chúng tôi cung cấp giải pháp vật liệu thông minh, cân bằng giữa chất lượng và ngân sách, giúp khách hàng sở hữu nội thất cao cấp với chi phí hợp lý nhất.
- Quy Trình Chuẩn Hóa: Từ khâu khảo sát, thiết kế 3D, báo giá chi tiết, đến sản xuất tại xưởng và thi công lắp đặt, mọi quy trình đều được kiểm soát chặt chẽ, đảm bảo đúng tiến độ và chất lượng cam kết.
- Chính Sách Bảo Hành Vượt Trội: Cam kết bảo hành dài hạn cho toàn bộ hạng mục thi công nội thất và vật liệu, mang lại sự an tâm tuyệt đối cho khách hàng.
💰 Mẫu Thiết Kế Nội Thất Hiện Đại có giá bao nhiêu?
Chi phí cho một dự án nội thất hoàn thiện theo phong cách Hiện Đại, sử dụng vật liệu gỗ công nghiệp cao cấp (như MDF lõi xanh, bề mặt Laminate/Veneer/Acrylic) kết hợp đá tự nhiên/nhân tạo sẽ phụ thuộc vào tổng diện tích, mức độ chi tiết và thương hiệu vật liệu mà gia chủ lựa chọn.
Techhome xin đưa ra mức chi phí dự kiến tham khảo dựa trên mẫu thiết kế nội thất hiện đại này (áp dụng cho căn nhà có tổng diện tích sàn nội thất khoảng 165m2):
| Hạng Mục | Chi Phí Tham Khảo (VND) | Ghi Chú |
| Gói Thiết Kế Nội Thất | 25.000.000 – 40.000.000 | Phí thiết kế 3D, hồ sơ kỹ thuật. Miễn phí 100% nếu ký hợp đồng thi công trọn gói. |
| Thi Công Đồ Gỗ9 | 00.000.000 – 1.100.000.000 | Tủ bếp, tủ quần áo, giường, bàn ghế, vách ốp trang trí (Chủ yếu gỗ công nghiệp cao cấp). |
| Thi Công Trần Thạch Cao & Sơn | 80.000.000 – 130.000.000 | Hệ trần phẳng, giật cấp, sơn tường nội thất. |
| Thi Công Sàn, Gạch Ốp Lát | 100.000.000 – 150.000.000 | Sàn gỗ/sàn gạch cao cấp. |
| Hệ Thống Điện, Chiếu Sáng & Thiết bị | 130.000.000 – 200.000.000 | Đèn chiếu sáng, ổ cắm, công tắc, thiết bị vệ sinh cơ bản. |
| TỔNG CHI PHÍ HOÀN THIỆN (ƯỚC TÍNH) | 1.400.000.000 – 1.600.000.000 VNĐ | Mức chi phí toàn diện, có thể thay đổi tùy thuộc vào lựa chọn vật tư thực tế. |
Lưu ý: Đây chỉ là mức chi phí ước tính. Để nhận được báo giá chính xác và chi tiết nhất cho công trình của bạn, vui lòng liên hệ trực tiếp với chúng tôi. Hoặc để tìm hiểu rõ hơn về tiêu chuẩn vật liệu xây dựng và các yếu tố ảnh hưởng đến chi phí, bạn có thể tham khảo thêm tại các bài viết chuyên sâu về vật liệu xây dựng cao cấp trên Wikipedia.
📞 Kết Luận
Thiết kế nội thất Hiện Đại kết hợp vật liệu gỗ cao cấp không chỉ mang đến vẻ đẹp sang trọng mà còn là sự đầu tư bền vững cho chất lượng cuộc sống. Mẫu nội thất hiện đại này của Techhome là minh chứng rõ ràng cho sự tinh tế, tiện nghi và đẳng cấp.
Đừng để ngôi nhà của bạn chỉ là nơi để ở, hãy biến nó thành tổ ấm mơ ước!
👉 Liên hệ ngay với Techhome qua Hotline: 0364042222 / 0387603333 để nhận bản tư vấn thiết kế 3D MIỄN PHÍ và báo giá chi tiết, chính xác nhất cho không gian của riêng bạn.
Techhome – Kiến Tạo Không Gian Sống Đẳng Cấp!
Xem thêm các dự án nổi bật khác của Techhome tại https://nhadeptechhome.vn/






















