Bạn đang sở hữu một mảnh đất phân lô phố thị và loay hoay tìm kiếm một ý tưởng vừa khác biệt, vừa tối ưu công năng? Đừng bỏ lỡ bài viết này. Hôm nay, TechHome sẽ giới thiệu đến bạn một “siêu phẩm” thực tế: mẫu nhà phố 3 tầng hiện đại của gia đình anh Tuấn tại Lục Nam, Bắc Giang. Đây không chỉ là một bản vẽ, mà là một giải pháp sống hoàn hảo cho gia đình đa thế hệ.
1. Tại sao mẫu nhà phố 3 tầng hiện đại lại trở thành “cơn sốt” năm 2025 – 2026?
Trong bối cảnh quỹ đất đô thị ngày càng thu hẹp, việc mở rộng không gian theo chiều cao là lựa chọn tất yếu. Tuy nhiên, thay vì những khối hộp vuông vức nhàm chán, các chủ đầu tư hiện nay đang hướng tới sự mềm mại và cá tính. Mẫu nhà phố 3 tầng hiện đại của anh Tuấn chính là minh chứng cho sự chuyển mình đó.
Tại TechHome, chúng tôi hiểu rằng ngôi nhà là tài sản cả đời. Vì vậy, thay vì rập khuôn, đội ngũ kiến trúc sư đã thổi hồn vào từng đường nét bo cong mềm mại ở mặt tiền, giúp xóa tan vẻ thô cứng của bê tông cốt thép. Điều này không chỉ tạo điểm nhấn thị giác mà còn giúp ngôi nhà “hòa nhập” tốt hơn với ánh sáng và gió tự nhiên.

2. Chi tiết bản vẽ kiến trúc: Sự giao thoa giữa thẩm mỹ và công năng
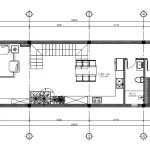
Dự án tại Lục Nam được thiết kế trên khu đất có chiều rộng 5m và chiều sâu ấn tượng lên đến 19m. Với diện tích sàn tầng 1 là 102 m2, đây là một không gian cực kỳ lý tưởng để bố trí các phòng chức năng một cách khoa học.
Phân tích mặt tiền “triệu view”
Nhìn vào phối cảnh 3D, bạn sẽ thấy sự tinh tế trong cách phối màu. Tông trắng chủ đạo kết hợp với các mảng đá vân mây xám ở tầng 1 tạo nên sự vững chãi. Điểm đắt giá nhất của mẫu nhà phố 3 tầng hiện đại này chính là hệ thống ban công bo góc ở tầng 2 và tầng 3.
-
Chất liệu: Chúng tôi sử dụng kính cường lực cao cấp cho lan can, giúp mở rộng tầm nhìn tối đa.
-
Trần ban công: Được ốp gỗ nhựa ngoài trời tích hợp đèn LED âm trần, tạo vẻ sang trọng và ấm cúng khi đêm về.
-
Cây xanh: Các hộc cây được tính toán kỹ lưỡng để gia chủ có thể trồng các loại cây rủ hoặc cây phong thủy, giúp thanh lọc không khí ngay tại mặt tiền.

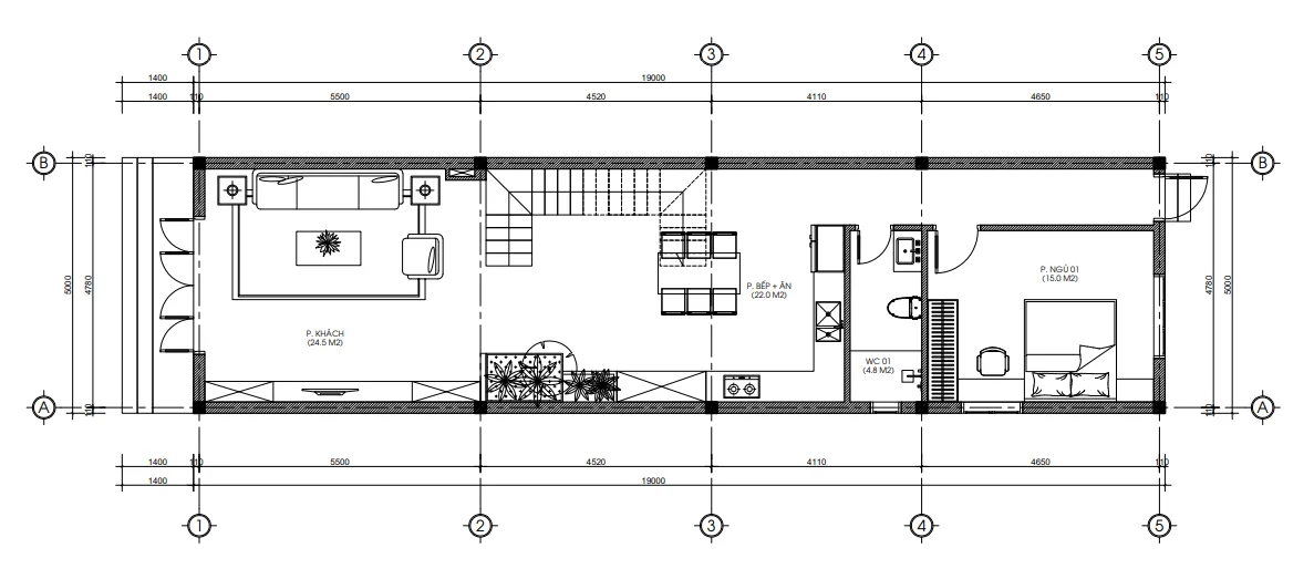
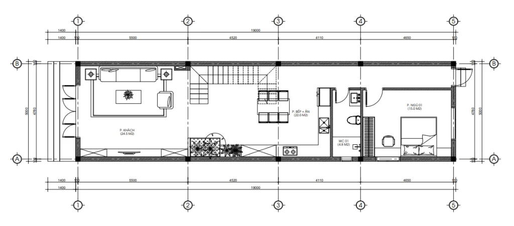
Mặt bằng công năng tầng 1: Không gian sinh hoạt chung ấm cúng
Tầng 1 của mẫu nhà phố 3 tầng hiện đại này được thiết kế với chiều cao thông thủy lên tới 3.9m, tạo cảm giác cực kỳ thoáng đãng ngay khi bước vào.
-
Phòng khách (24.5 m2): Nằm ngay sau cửa chính, là nơi đón tiếp khách khứa với nội thất hiện đại.
-
Khu vực cầu thang: Gồm 23 bậc, chiều cao bậc 176mm, đảm bảo cung sinh – lão – bệnh – tử phong thủy.
-
Phòng bếp + ăn (22 m2): Thiết kế liền mạch, giúp tối ưu diện tích và tạo sự kết nối giữa các thành viên.
-
Phòng ngủ 01 (15 m2): Đây là điểm cộng lớn, dành riêng cho người cao tuổi trong gia đình để tránh việc phải leo trèo cầu thang.

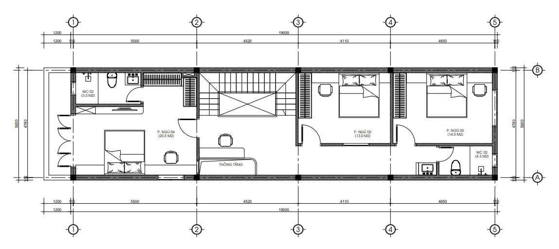
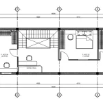
Mặt bằng công năng tầng 2: Thế giới riêng tư
Tầng 2 tập trung hoàn toàn vào việc nghỉ ngơi với diện tích sàn 100 m2 và chiều cao tầng 3.6m. Tại đây, mẫu nhà phố 3 tầng hiện đại bố trí 03 phòng ngủ:
-
Phòng ngủ 02 (13 m2) và Phòng ngủ 03 (14 m2): Phù hợp cho con cái, có cửa sổ lớn đón ánh sáng tự nhiên.
-
Phòng ngủ 04 (20.5 m2): Là phòng ngủ Master của vợ chồng anh Tuấn, có tích hợp WC khép kín và hướng ra ban công mặt tiền.

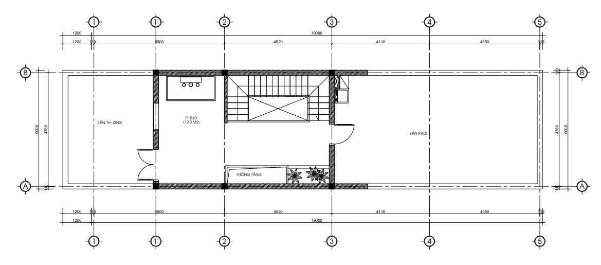
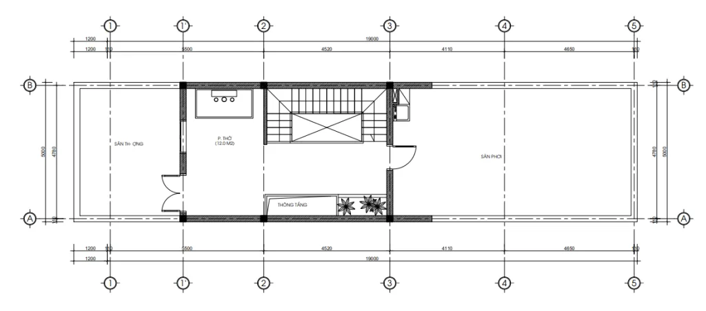
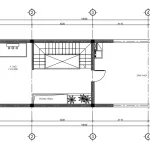
Mặt bằng công năng tầng 3: Tâm linh và thư giãn
Tầng cuối cùng có diện tích xây dựng 44 m2, phần còn lại là sân thượng và khu vực kỹ thuật.
-
Phòng thờ (12 m2): Được đặt ở vị trí trang trọng nhất, hướng ra sân thông tầng để đảm bảo sự tôn nghiêm và thông thoáng.
-
Sân phơi & Sân thượng: Nơi gia đình có thể tổ chức các bữa tiệc BBQ ngoài trời hoặc làm vườn sân thượng.

3. Báo giá thiết kế và thi công trọn gói (Tham khảo)
Tại TechHome, chúng tôi luôn minh bạch về tài chính để khách hàng yên tâm “xây tổ ấm”. Dưới đây là đơn giá tham khảo cho mẫu nhà phố 3 tầng hiện đại tương tự dự án anh Tuấn:
| Hạng mục | Đơn giá (VNĐ) | Ghi chú |
| Thiết kế kiến trúc | 108.000 / m2 | Bao gồm phối cảnh 3D, hồ sơ kỹ thuật, điện nước. |
| Thi công phần thô | 3.800.000 – 4.200.000 / m2 | Bao gồm vật tư thô và nhân công hoàn thiện. |
| Thi công trọn gói | 6.500.000 – 7.500.000 / m2 | Chìa khóa trao tay (tùy mức độ vật liệu). |
Lưu ý: Đây chỉ là mức chi phí ước tính. Để nhận được báo giá chính xác và chi tiết nhất cho công trình của bạn, vui lòng liên hệ trực tiếp với chúng tôi. Hoặc để tìm hiểu rõ hơn về tiêu chuẩn vật liệu xây dựng và các yếu tố ảnh hưởng đến chi phí, bạn có thể tham khảo thêm tại các bài viết chuyên sâu về vật liệu xây dựng cao cấp trên Wikipedia.

4. Góc chuyên gia: 3 lưu ý “vàng” khi xây mẫu nhà phố 3 tầng hiện đại
Với kinh nghiệm thực chiến hàng trăm công trình, tôi có một vài lời khuyên dành cho bạn:
Tận dụng ánh sáng tự nhiên qua “Giếng trời”
Trong các thiết kế của mình, chúng tôi luôn khuyên khách hàng bố trí giếng trời ở khu vực cầu thang. Như trong bản vẽ của anh Tuấn, khu vực “thông tầng” giúp khí đối lưu tốt hơn, giúp ngôi nhà không bao giờ bị bí bách. Một mẫu nhà phố 3 tầng hiện đại đẹp là ngôi nhà phải “thở” được.
Lựa chọn đá ốp mặt tiền bền bỉ
Đừng chỉ nhìn vào vẻ đẹp lúc mới xây. Mặt tiền tầng 1 là nơi tiếp xúc gần nhất với bụi bẩn và tác động ngoại cảnh. Việc sử dụng đá Granite hoặc đá Marble vân mây (như ảnh 3D) không chỉ sang trọng mà còn rất dễ vệ sinh, giữ cho mẫu nhà phố 3 tầng hiện đại luôn mới theo thời gian.
Chú trọng vào hệ thống chống nóng
Với đặc thù khí hậu Việt Nam, tầng 3 thường rất nóng. TechHome luôn thiết kế mái với các lớp chống nóng chuyên dụng và hệ thống bồn nước, thái dương năng phía trên để vừa tận dụng năng lượng, vừa giảm nhiệt cho phòng thờ bên dưới.

5. Cảm nhận của khách hàng về TechHome
Anh Tuấn (Lục Nam, Bắc Giang) chia sẻ: “Ban đầu mình lo lắng mảnh đất dài quá sẽ bị sâu và tối. Nhưng khi nhận bản vẽ mẫu nhà phố 3 tầng hiện đại từ TechHome, mình thực sự bất ngờ. Các bạn đã xử lý không gian rất khéo, đặc biệt là các đường cong ở ban công khiến ai đi qua cũng phải ngước nhìn.”
Chúng tôi không chỉ bán bản vẽ, chúng tôi bán sự hài lòng và niềm tin. Mỗi mẫu nhà phố 3 tầng hiện đại đều là một bài toán riêng biệt mà TechHome dành toàn bộ tâm huyết để giải đáp.

6. Kết luận
Mẫu nhà phố 3 tầng hiện đại tại Lục Nam là sự kết hợp hoàn hảo giữa thẩm mỹ đương đại và công năng sử dụng thực tế. Nếu bạn đang tìm kiếm một đơn vị tư vấn thiết kế và thi công có tâm, có tầm tại Bắc Giang hay bất cứ đâu, TechHome luôn sẵn sàng lắng nghe.
Đừng để ngôi nhà mơ ước chỉ nằm trên giấy. Một mẫu nhà phố 3 tầng hiện đại đẹp chuẩn cho cuộc sống của bạn đang chờ đón. Hãy để chúng tôi đồng hành cùng bạn kiến tạo nên những giá trị bền vững.
Thông tin liên hệ:
-
Công ty Cổ phần Kiến trúc và Xây dựng TechHome.
-
Website: nhadeptechhome.vn
-
Hotline: 0364.042.222 / 0387.603.333.
-
Địa chỉ: B1.1 LK18 Ô 3 – KĐT Thanh Hà – Cienco 5 – Thanh Oai- Hà Nội.
