Bạn đang sở hữu một mảnh đất phố nhưng lại chán ngấy những kiểu mái Thái, mái Nhật cầu kỳ? Bạn khao khát một không gian sống trẻ trung, phóng khoáng và tiết kiệm chi phí nhưng vẫn phải “sang”? Vậy thì mẫu nhà 2 tầng mái bằng hiện đại của gia đình anh Huy tại Vũ Quý, Hưng Yên chính là câu trả lời trọn vẹn nhất mà TechHome muốn giới thiệu đến bạn.
Trong phân khúc nhà phố hiện nay, thiết kế mái bằng đang chiếm ưu thế nhờ vẻ ngoài sắc nét, hình khối kiến trúc mạnh mẽ và khả năng tối ưu hóa diện tích sử dụng. Hãy cùng chúng tôi giải mã sức hút của công trình này qua góc nhìn chuyên gia nhé!
1. Tổng quan dự án mẫu nhà 2 tầng mái bằng hiện đại tại Hưng Yên
-
Chủ đầu tư: Anh Huy.
-
Địa điểm: Vũ Quý – Hưng Yên.
-
Đơn vị thiết kế & tư vấn: Công ty Cổ phần Kiến trúc và Xây dựng TechHome.
-
Loại hình: Nhà ở gia đình.
-
Diện tích sàn: 88 m2/sàn.
-
Quy mô: 2 tầng, 4 phòng ngủ, 1 phòng thờ.
Công trình này không là một bản vẽ vô hồn, nó là kết quả của quá trình khảo sát thực tế và thấu hiểu nhu cầu của gia chủ tại địa phương.

2. Phối cảnh kiến trúc: Khi hình khối kể chuyện
Nhìn vào phối cảnh 3D của mẫu nhà 2 tầng mái bằng hiện đại này, điểm ấn tượng đầu tiên chính là sự kết hợp màu sắc cực kỳ tinh tế. Không sử dụng quá nhiều màu sắc sặc sỡ, các kiến trúc sư TechHome đã chọn tông màu trắng chủ đạo, nhấn nhá bằng xám trung tính và màu gỗ ấm áp của vật liệu ốp ngoại thất.
Sự đột phá trong vật liệu ngoại thất
Một trong những lo ngại lớn nhất khi xây mẫu nhà 2 tầng mái bằng hiện đại là cảm giác “thô cứng” của các khối bê tông. Tuy nhiên, ở thiết kế này, chúng tôi đã sử dụng:
-
Gỗ nhựa ngoài trời (WPC): Ốp tại các mảng tường trang trí tầng 2 giúp ngôi nhà trở nên gần gũi và có chiều sâu hơn.
-
Hệ cửa nhôm kính Xingfa: Với diện tích kính lớn, ngôi nhà luôn tràn ngập ánh sáng tự nhiên, giúp tiết kiệm điện năng và tạo sự thông thoáng tuyệt đối.
-
Đèn LED hắt tường: Được bố trí thông minh tại các cột và ban công, biến ngôi nhà thành một tác phẩm nghệ thuật ánh sáng vào ban đêm.
Lan can kính và ban công xanh
Khu vực ban công tầng 2 được sử dụng lan can kính cường lực, giúp tầm nhìn không bị hạn chế, đồng thời tạo cảm giác rộng rãi hơn cho mặt tiền chỉ khoảng 8m. Việc bố trí thêm các chậu cây xanh ở góc ban công không chỉ làm dịu mắt mà còn giúp lọc bụi, chống ồn cho các phòng ngủ phía trong.
Để tìm hiểu rõ hơn về tiêu chuẩn vật liệu xây dựng và các yếu tố ảnh hưởng đến chi phí, bạn có thể tham khảo thêm tại các bài viết chuyên sâu về vật liệu xây dựng cao cấp trên Wikipedia.

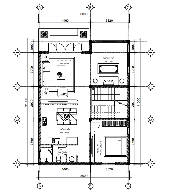
3. Phân tích công năng mặt bằng: Tối ưu đến từng centimet
Đây là phần quan trọng nhất giúp mẫu nhà 2 tầng mái bằng hiện đại này ghi điểm tuyệt đối với anh Huy. Với tổng diện tích 88 m2, mỗi mét vuông đều được tính toán kỹ lưỡng để phục vụ đời sống sinh hoạt của gia đình nhiều thế hệ.
Mặt bằng tầng 1: Không gian kết nối và tâm linh
Tầng 1 được thiết kế với các khu vực chức năng chính:
-
Phòng khách (20 m2): Nằm ngay sau sảnh chính, là bộ mặt của gia chủ với không gian rộng rãi, thoáng đãng.
-
Phòng bếp & ăn (15 m2): Được ngăn cách nhẹ nhàng với phòng khách, tạo sự liền mạch nhưng vẫn đảm bảo tính riêng tư khi nấu nướng.
-
Phòng thờ (12 m2): Điểm đặc biệt của ngôi nhà này là phòng thờ được đặt ngay tại tầng 1. Điều này cực kỳ phù hợp với văn hóa sinh hoạt tại Hưng Yên, giúp việc nhang khói và con cháu sum vầy trở nên thuận tiện hơn, đặc biệt là với người lớn tuổi.
-
Phòng ngủ 01 (12 m2): Dành cho ông bà hoặc gia chủ, hạn chế việc phải leo cầu thang.
-
WC chung: Bố trí kín đáo cuối nhà với diện tích 4,7 m2.

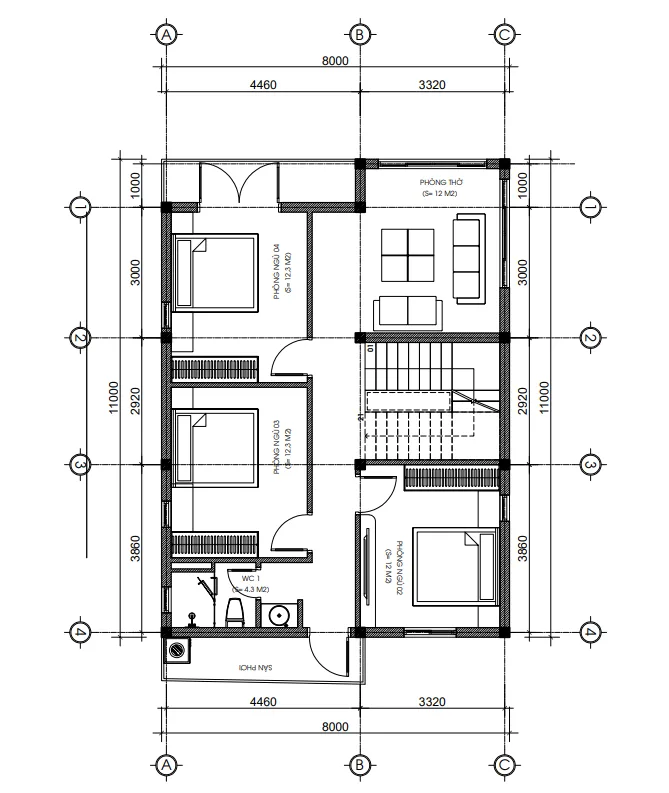
Mặt bằng tầng 2: Chốn nghỉ ngơi riêng tư
Nếu tầng 1 là không gian chung thì tầng 2 của mẫu nhà 2 tầng mái bằng hiện đại là vương quốc của sự riêng tư với:
-
3 Phòng ngủ: Mỗi phòng có diện tích từ 12 m2 đến 12.3 m2. Các phòng đều có cửa sổ lớn hướng ra ngoài để lấy sáng và gió trời.
-
Phòng sinh hoạt chung: Nơi cả gia đình có thể cùng nhau xem phim hoặc trò chuyện trước khi đi ngủ.
-
Khu vực sân phơi: Thiết kế cuối nhà, đảm bảo tính thẩm mỹ cho ngôi nhà.

4. Tại sao mẫu nhà 2 tầng mái bằng hiện đại lại được ưa chuộng tại Hưng Yên?
Không phải ngẫu nhiên mà anh Huy lại chọn TechHome để thiết kế mẫu nhà 2 tầng mái bằng hiện đại. Dưới đây là những lý do thực tế nhất:
-
Độ bền vĩnh cửu: Với khí hậu nóng ẩm, mưa nhiều ở miền Bắc, mái bằng bê tông cốt thép được xử lý chống thấm tốt sẽ cực kỳ bền bỉ trước bão gió.
-
Tối ưu chi phí: So với mái Thái (phải thi công xà gồ, lợp ngói), chi phí xây dựng mẫu nhà 2 tầng mái bằng hiện đại thường tiết kiệm hơn khoảng 15-20% phần mái.
-
Tận dụng sân thượng: Bạn có thể biến mái nhà thành vườn rau sạch, sân chill buổi tối hoặc đơn giản là nơi đặt bồn nước, hệ thống điện năng lượng mặt trời một cách gọn gàng.
-
Dễ dàng nâng tầng: Nếu sau này gia đình có nhu cầu thêm phòng, việc cải tạo từ mái bằng lên tầng 3 sẽ đơn giản và tiết kiệm hơn rất nhiều so với các kiểu mái khác.

5. Báo giá thi công mẫu nhà 2 tầng mái bằng hiện đại (Tham khảo)
Tại TechHome, chúng tôi luôn minh bạch về tài chính để khách hàng chủ động ngân sách. Dưới đây là bảng dự toán sơ bộ cho công trình có diện tích 88 m2/sàn:
| Hạng mục | Đơn giá (VNĐ/m2) | Thành tiền (Tham khảo) |
| Thiết kế kiến trúc | 108.000 | 19 Triệu |
| Thi công phần thô | 3.800.000 – 4.200.000 | ~ 740 Triệu |
| Thi công hoàn thiện (Gói khá) | 6.000.000 – 7.000.000 | ~ 1.2 Tỷ |
| Trọn gói chìa khóa trao tay | Từ 7.000.000 | 1.3 Tỷ – 1.5 Tỷ |
Lưu ý: Đơn giá thực tế sẽ phụ thuộc vào thời điểm thi công, vị trí địa lý và chủng loại vật liệu mà bạn lựa chọn. Để có báo giá chính xác nhất cho mẫu nhà 2 tầng mái bằng hiện đại, hãy liên hệ hotline: 0364042222.

6. Góc chuyên gia: Lời khuyên để có mẫu nhà 2 tầng mái bằng hiện đại hoàn hảo
Với tư cách là người bạn đồng hành cùng các chủ nhà, tôi có một vài “bí kíp” nhỏ muốn chia sẻ thêm để ngôi nhà của bạn không chỉ đẹp trên bản vẽ mà còn sướng khi ở:
-
Đừng tiết kiệm chi phí chống thấm: Với nhà mái bằng, chống thấm là “tử huyệt”. Hãy yêu cầu đơn vị thi công sử dụng màng khò hoặc các loại hóa chất chống thấm cao cấp ngay từ đầu.
-
Giải pháp chống nóng: Mái bằng thường hấp thụ nhiệt cao. Bạn nên lợp thêm một lớp gạch chữ U, lát gạch gốm chống nóng hoặc trồng cây trên mái để hạ nhiệt cho tầng 2.
-
Hệ thống thoát nước: Hãy đảm bảo độ dốc của sàn mái đủ lớn và bố trí nhiều hố thu nước để tránh tình trạng đọng nước gây rêu mốc.
-
Phong thủy cho phòng thờ tầng 1: Khi đặt phòng thờ ở tầng 1 trong mẫu nhà 2 tầng mái bằng hiện đại, tuyệt đối không để phòng ngủ phía trên đè lên vị trí bàn thờ. Đây là lỗi đại kỵ mà Tech Home đã xử lý rất khéo léo trong bản vẽ của anh Huy.

7. TechHome – Đơn vị thiết kế mẫu nhà 2 tầng mái bằng hiện đại uy tín
Chúng tôi không chỉ bán bản vẽ, chúng tôi bán giải pháp sống. Mỗi công trình như mẫu nhà 2 tầng mái bằng hiện đại tại Hưng Yên đều được đội ngũ kiến trúc sư, kỹ sư của TechHome dành trọn tâm huyết từ khâu khảo sát đến khi bàn giao.
Tại sao chọn TechHome?
-
Quy trình làm việc chuyên nghiệp, rõ ràng.
-
Hỗ trợ tư vấn kỹ thuật 24/7 trong suốt quá trình xây dựng.
-
Đội ngũ KTS giàu kinh nghiệm
Nếu bạn đang nung nấu ý định xây dựng một mẫu nhà 2 tầng mái bằng hiện đại, đừng ngần ngại nhấc máy lên và gọi cho chúng tôi. Một không gian sống đẳng cấp đang chờ đợi bạn!

THÔNG TIN LIÊN HỆ:
-
Website: nhadeptechhome.vn
-
Hotline: 0364042222 / 0387603333
-
Địa chỉ: B1.1 LK18 Ô 3 – KĐT Thanh Hà – Cienco 5 – Thanh Oai- Hà Nội.
