Mẫu Nhà Phố 3 Tầng Đẹp Hiện Đại Tại Hưng Yên: Sự Kết Hợp Hoàn Hảo Giữa Kinh Doanh Và An Cư

Có bao giờ bạn tự hỏi, làm thế nào để xây dựng một ngôi nhà vừa có thể hái ra tiền nhờ kinh doanh, vừa là chốn về bình yên, ấm cúng cho cả đại gia đình? Bài toán “2 trong 1” này luôn là nỗi trăn trở của rất nhiều chủ đầu tư khi tìm đến Techhome. Và hôm nay, Techhome xin phép được chia sẻ với các bạn một lời giải xuất sắc cho bài toán ấy. Đó chính là công trình của gia đình chị Lâm tại Xuân Trúc, Hưng Yên.

Đây không chỉ là một ngôi nhà, đây là một mẫu nhà phố 3 tầng đẹp điển hình cho xu hướng kiến trúc hiện đại năm 2026: Tối ưu công năng, thẩm mỹ tinh tế và chi phí hợp lý. Hãy cùng Techhome “mổ xẻ” chi tiết bản vẽ này để thấy tại sao nó lại được yêu thích đến vậy nhé!

1. Thông Tin Tổng Quan Dự Án

Trước khi đi sâu vào chi tiết, mời các bác điểm qua vài thông số kỹ thuật “cứng” của dự án này để dễ hình dung quy mô:

  • Chủ đầu tư: Chị Lâm.

  • Địa điểm xây dựng: Xuân Trúc – Hưng Yên.

  • Loại hình: Nhà ở gia đình kết hợp kinh doanh (Nhà ống/Nhà phố).

  • Đơn vị thiết kế: Công ty Cổ phần Kiến trúc và Xây dựng Techhome.

  • Kích thước xây dựng: Mặt tiền khoảng 5.8m x Chiều sâu 15m (Diện tích sàn tầng 1: 87m2).

  • Phong cách: Kiến trúc hiện đại, hình khối phi đối xứng.

  • Số tầng: 3 tầng.

Nếu bạn đang sở hữu một mảnh đất có kích thước tương tự và đang tìm kiếm một mẫu nhà phố 3 tầng đẹp để tham khảo, thì đây chính xác là “chân ái” dành cho bạn.

Phối cảnh mặt tiền mẫu nhà phố 3 tầng đẹp kiến trúc hiện đại, hình khối vuông vức tại Hưng Yên.
Phối cảnh mặt tiền mẫu nhà phố 3 tầng đẹp kiến trúc hiện đại, hình khối vuông vức tại Hưng Yên.

2. Phối Cảnh Mặt Tiền: Vẻ Đẹp Của Sự Hiện Đại Và Phóng Khoáng

Điều đầu tiên đập vào mắt chúng ta khi ngắm nhìn mẫu nhà phố 3 tầng đẹp này chính là sự trẻ trung, gãy gọn trong từng đường nét. Techhome đã khéo léo loại bỏ hoàn toàn các chi tiết phào chỉ rườm rà của lối kiến trúc cũ, thay vào đó là ngôn ngữ của hình khối .

Sự Chơi Đùa Của Hình Khối

Mặt tiền ngôi nhà được thiết kế theo dạng các khối hộp xếp chồng lên nhau một cách có chủ đích. Tầng 2 và tầng 3 được đua ra (ban công) tạo thành các khối vuông vức, bao bọc lấy không gian bên trong. Viền tường được bo gọn gàng, tạo chiều sâu cho thị giác. Cách thiết kế này không chỉ giúp che nắng, che mưa cho cửa kính bên trong mà còn tạo nên vẻ đẹp vững chãi, bề thế – một tiêu chuẩn quan trọng của một mẫu nhà phố 3 tầng đẹp.

Vật Liệu Và Màu Sắc – Bản Giao Hưởng Ánh Sáng

Gia chủ và các kiến trúc sư Techhome đã thống nhất sử dụng tone màu trắng sứ làm chủ đạo. Đây là màu sơn “quốc dân” giúp ngôi nhà luôn tươi mới và không bao giờ lỗi mốt theo thời gian.

Để tránh sự đơn điệu, chúng tôi đã điểm xuyết các chi tiết giả gỗ (conwood hoặc nhựa giả gỗ cao cấp) tại trần ban công và các lam trang trí mặt tiền. Màu nâu trầm của gỗ kết hợp với màu xanh của cây cối tại các bồn hoa ban công tạo nên sự cân bằng tuyệt đối về màu sắc. Hệ thống lan can kính cường lực trong suốt giúp “khoe” trọn vẹn vẻ đẹp nội thất và giúp ngôi nhà trông nhẹ nhàng, thanh thoát hơn rất nhiều.

Góc nghiêng mẫu nhà phố 3 tầng đẹp với ban công kính cường lực và lam gỗ trang trí sang trọng.
Góc nghiêng mẫu nhà phố 3 tầng đẹp với ban công kính cường lực và lam gỗ trang trí sang trọng.

3. Khám Phá Công Năng: Bài Toán “Kinh Doanh” Kết Hợp “Hưởng Thụ”

Một mẫu nhà phố 3 tầng đẹp không chỉ cần “tốt nước sơn” mà quan trọng hơn cả là “tốt gỗ”. Với tổng diện tích sàn mỗi tầng dao động từ 87m2 đến 93m2, việc bố trí công năng sao cho hợp lý là thử thách lớn. Hãy xem Techhome đã xử lý như thế nào.

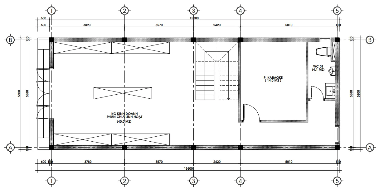
Tầng 1: Không Gian Kinh Doanh & Giải Trí Đỉnh Cao

Bước vào tầng 1, chúng ta thấy ngay tư duy thực dụng của gia chủ.

  • Khu vực kinh doanh: Chiếm trọn vẹn phía trước với diện tích lên tới 40m2. Không gian này được để thông thoáng hoàn toàn, giúp chị Lâm có thể linh hoạt bố trí quầy kệ, hàng hóa hoặc cho thuê mặt bằng cực kỳ hiệu quả.

  • Cầu thang bộ: Được đặt ở giữa nhà, đóng vai trò như vách ngăn tự nhiên phân chia khu vực động (kinh doanh) và khu vực tĩnh (giải trí).

  • Phòng Karaoke: Đây là điểm “ăn chơi” nhất của ngôi nhà. Phía sau cầu thang là một phòng Karaoke gia đình rộng 14m2. Việc bố trí phòng hát ở tầng 1, tách biệt với các phòng ngủ phía trên là một quyết định cực kỳ thông minh về mặt cách âm. Gia đình có thể thoải mái hát hò mà không sợ ảnh hưởng đến giấc ngủ của người già hay trẻ nhỏ ở tầng trên.

  • Vệ sinh chung (WC 01): Nhỏ gọn 4.1m2 được đẩy về cuối nhà, đảm bảo kín đáo và sạch sẽ.

Chiều cao tầng 1 được thiết kế lên tới 3.7m, giúp không gian kinh doanh cực kỳ thoáng đãng, không bị cảm giác bí bách thường thấy ở nhà ống.

Bản vẽ mặt bằng công năng tầng 1 mẫu nhà phố 3 tầng đẹp bố trí khu vực kinh doanh rộng 40m2.
Bản vẽ mặt bằng công năng tầng 1 mẫu nhà phố 3 tầng đẹp bố trí khu vực kinh doanh rộng 40m2.

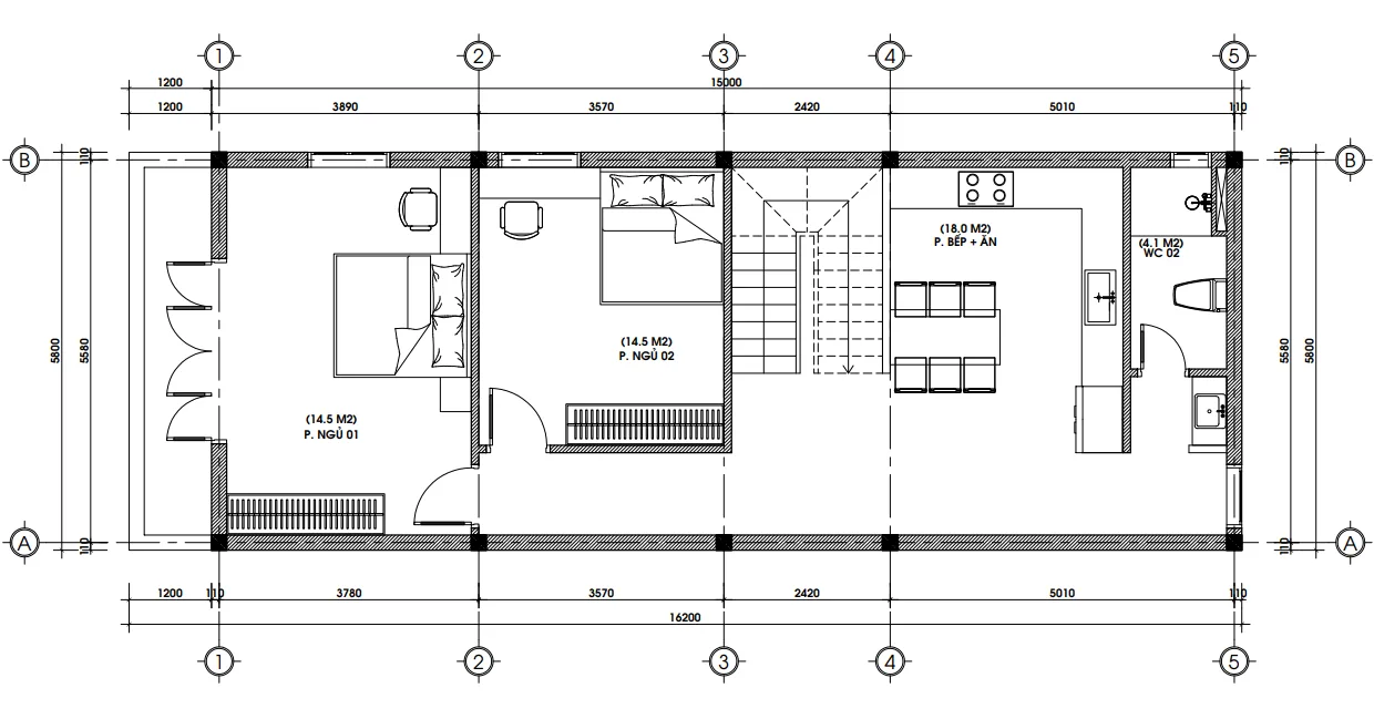
Tầng 2: Trái Tim Của Gia Đình

Vì tầng 1 đã dành cho kinh doanh, nên toàn bộ không gian sinh hoạt chung (Bếp ăn) được đưa lên tầng 2. Đây là xu hướng thiết kế rất phổ biến trong các mẫu nhà phố 3 tầng đẹp hiện nay.

  • Phòng Bếp + Ăn: Có diện tích 18m2. Bếp được đặt phía sau cùng, cạnh cầu thang giếng trời thoáng khí, giúp mùi thức ăn không bay ngược vào phòng ngủ. Vị trí này đảm bảo sự riêng tư cho bữa cơm gia đình, tách biệt hoàn toàn với sự ồn ào buôn bán ở tầng 1.

  • 02 Phòng ngủ lớn:

    • Phòng ngủ 01 (phía trước): Rộng 14.5m2, có ban công lớn lấy sáng.

    • Phòng ngủ 02 (giữa nhà): Rộng 14.5m2.

  • Vệ sinh chung (WC 02): Diện tích 4.1m2, thẳng trục với WC tầng 1 để tiện đi đường ống nước.

Chiều cao tầng 2 là 3.5m, một chiều cao lý tưởng để lắp trần thạch cao và hệ thống đèn trang trí mà vẫn giữ được độ thông thoáng.

Bản vẽ bố trí phòng bếp ăn và phòng ngủ tại tầng 2 của mẫu nhà phố 3 tầng đẹp.
Bản vẽ bố trí phòng bếp ăn và phòng ngủ tại tầng 2 của mẫu nhà phố 3 tầng đẹp.

Tầng 3: Không Gian Thờ Tự & Nghỉ Ngơi

Tầng cao nhất của ngôi nhà được bố trí thêm 2 phòng ngủ và không gian tâm linh.

  • Phòng Thờ: Được đặt trang trọng ở phía trước nhà, hướng ra ban công, diện tích 10.5m2. Vị trí này đảm bảo sự tôn nghiêm và phong thủy tốt nhất cho gia chủ.

  • 02 Phòng ngủ nữa:

    • Phòng ngủ 03: Diện tích 14.5m2.

    • Phòng ngủ 04: Diện tích 14.0m2.

  • Khu giặt phơi & WC 03: Được bố trí gọn gàng phía sau.

Như vậy, tổng cộng ngôi nhà này có tới 4 phòng ngủ, đáp ứng thoải mái nhu cầu cho một gia đình 3 thế hệ (Ông bà, Bố mẹ, Con cái) cùng chung sống. Một công năng quá ấn tượng cho một mẫu nhà phố 3 tầng đẹp trên diện tích đất phố.

Bản vẽ mặt bằng công năng tầng 3 mẫu nhà phố 3 tầng đẹp gồm phòng thờ và 2 phòng ngủ.
Bản vẽ mặt bằng công năng tầng 3 mẫu nhà phố 3 tầng đẹp gồm phòng thờ và 2 phòng ngủ.

4. Phân Tích Chuyên Sâu: Tại Sao Mẫu Nhà Này Lại “Đáng Tiền”?

Với tư cách là người làm nghề lâu năm, tôi đánh giá mẫu nhà phố 3 tầng đẹp của chị Lâm có những ưu điểm vượt trội mà các bạn nên học hỏi:

  1. Giải pháp lấy sáng thông minh: Nhìn vào phối cảnh mái, bạn sẽ thấy hệ thống giếng trời và cửa lấy sáng mái . Với chiều dài nhà lên tới 15m – 16m, nếu không có giếng trời, khu vực giữa nhà (cầu thang và hành lang) sẽ tối . Techhome đã xử lý điều này triệt để, biến “góc chết” thành nơi đối lưu không khí cho cả nhà.

  2. Giao thông trục đứng thuận tiện: Thang bộ được thiết kế 21 bậc cho mỗi tầng. Theo phong thủy (Sinh – Lão – Bệnh – Tử), số 21 rơi vào cung “Sinh”, mang lại may mắn, sức khỏe dồi dào cho gia chủ. Độ cao bậc thang khoảng 166mm – 176mm là tỉ lệ vàng, giúp người già và trẻ nhỏ di chuyển không bị mỏi chân.

  3. Tối ưu hóa diện tích kinh doanh:

    Việc đẩy lùi cửa chính và tận dụng tối đa 40m2 sàn tầng 1 cho kinh doanh là tư duy kinh tế sắc bén. Trong các mẫu nhà phố 3 tầng đẹp hiện đại, khả năng sinh lời từ chính ngôi nhà là yếu tố được đặt lên hàng đầu.

Góc nghiêng mẫu nhà phố 3 tầng đẹp

5. Dự Toán Chi Phí Xây Dựng Mẫu Nhà Phố 3 Tầng (Cập Nhật 2026)

Đây chắc chắn là phần các bạn mong chờ nhất. Để sở hữu một mẫu nhà phố 3 tầng đẹp long lanh như nhà chị Lâm, bạn cần chuẩn bị ngân sách bao nhiêu?

Dưới đây là bảng báo giá khái toán dựa trên đơn giá thị trường Hưng Yên và các tỉnh lân cận năm 2026. Lưu ý: Đây là con số tham khảo, giá thực tế phụ thuộc vào thời điểm mua vật liệu và điều kiện thi công.

Tổng diện tích xây dựng (tạm tính):

  • Tầng 1: 87m2

  • Tầng 2: 93m2

  • Tầng 3: 65m2 (tính cả ban công/sân phơi có mái)

  • Tổng diện tích sàn quy đổi: ~245m2

Bảng Giá Chi Tiết:

Hạng Mục Đơn Giá (VNĐ/m2) Tổng Chi Phí Ước Tính Ghi Chú
1. Thi công phần thô & nhân công hoàn thiện 4.200.000 – 4.500.000 đ 1 tỷ – 1.1 tỷ Bao gồm: Móng, khung cột, xây trát, điện nước âm tường.
2. Gói hoàn thiện cơ bản (Chìa khóa trao tay) 6.500.000 – 7.500.000 đ 1.6 tỷ – 1.9 tỷ Bao gồm: Phần thô + Gạch ốp lát, thiết bị vệ sinh, trần thạch cao, sơn bả, cửa nhôm kính…
3. Chi phí thiết kế 108.000 đ ~27 triệu

Lời khuyên từ Techhome:

Với mẫu nhà phố 3 tầng đẹp này, phần tốn kém nhất thường nằm ở hệ thống cửa nhôm kính mặt tiền (Xingfa hoặc cao cấp hơn) và vật liệu ốp lát. Nếu ngân sách hạn hẹp, bạn có thể đầu tư phần thô thật tốt, còn nội thất có thể sắm sửa dần dần. Đừng ham rẻ phần thô, vì đó là xương sống của cả ngôi nhà!

Lưu ý: Đây chỉ là mức chi phí ước tính. Để nhận được báo giá chính xác và chi tiết nhất cho công trình của bạn, vui lòng liên hệ trực tiếp với chúng tôi. Hoặc để tìm hiểu rõ hơn về tiêu chuẩn vật liệu xây dựng và các yếu tố ảnh hưởng đến chi phí, bạn có thể tham khảo thêm tại các bài viết chuyên sâu về vật liệu xây dựng cao cấp trên Wikipedia.

6. Tại Sao Nên Chọn Techhome Cho Ngôi Nhà Mơ Ước Của Bạn?

Giữa “ma trận” các đơn vị thiết kế, tại sao chị Lâm lại chọn Techhome để gửi gắm mẫu nhà phố 3 tầng đẹp của mình?

  • Minh bạch tuyệt đối: Chúng tôi có hồ sơ thiết kế kỹ thuật thi công cực kỳ chi tiết, từ mặt bằng định vị, mặt bằng công năng, đến từng viên gạch, ổ cắm điện. Mọi thứ đều rõ ràng trên giấy trắng mực đen, không có chuyện “làm đến đâu tính đến đó”.

  • Đội ngũ thực chiến: KTS và KS là những người có kinh nghiệm dày dặn, trực tiếp giám sát từng nét vẽ.

  • Hỗ trợ trọn đời: Số Hotline hỗ trợ kỹ thuật 0364.04.2222 – 0387.60.3333 luôn sẵn sàng giải đáp mọi thắc mắc của thợ thuyền trong quá trình thi công, dù bạn ở Hưng Yên hay bất kỳ đâu.

Tổng thể mẫu nhà phố 3 tầng đẹp mái bằng

7. Lời Kết

Xây nhà là chuyện hệ trọng cả đời. Một mẫu nhà phố 3 tầng đẹp không chỉ là niềm tự hào của gia chủ với hàng xóm láng giềng mà còn là nền tảng cho một cuộc sống hạnh phúc, thịnh vượng.

Công trình nhà chị Lâm tại Hưng Yên là minh chứng rõ nét cho năng lực của Techhome: Hiện đại, Tiện nghi và Kinh tế. Nếu bạn cũng đang ấp ủ một giấc mơ về ngôi nhà phố 3 tầng đẹp, đừng ngần ngại nhấc máy lên và gọi cho chúng tôi. Techhome không chỉ vẽ nhà, chúng tôi vẽ nên tổ ấm của bạn.


CÔNG TY CỔ PHẦN KIẾN TRÚC VÀ XÂY DỰNG TECHHOME

Hãy để lại bình luận bên dưới nếu bạn muốn nhận bản vẽ mặt bằng chi tiết của mẫu nhà phố 3 tầng đẹp này nhé!

Để lại một bình luận

Email của bạn sẽ không được hiển thị công khai. Các trường bắt buộc được đánh dấu *

    Vui lòng nhấn nút YÊU CẦU TƯ VẤN và đợi 1 - 2 giây đến khi thấy thông báo thành công

    YÊU CẦU TƯ VẤN