Chuyện xây nhà chưa bao giờ là chuyện nhỏ. Cả đời người phấn đấu cũng chỉ mong có một chốn đi về an yên, vững chãi. Hiểu được tâm tư đó, hôm nay Techhome xin mời quý gia chủ cùng ghé thăm mảnh đất Thủy Nguyên, Hải Phòng để chiêm ngưỡng một công trình tâm huyết mà chúng tôi vừa hoàn thiện hồ sơ thiết kế. Đó là ngôi nhà của gia đình chú Luyến – một mẫu nhà 2 tầng mái Nhật điển hình cho vẻ đẹp hiện đại, thanh lịch nhưng vẫn đậm chất truyền thống Á Đông. Nếu bạn đang tìm kiếm ý tưởng cho tổ ấm tương lai, đừng bỏ lỡ bài viết chi tiết dưới đây nhé!
1. Cơ duyên và bài toán thiết kế tại Hải Phòng
Mỗi ngôi nhà sinh ra đều có một câu chuyện riêng. Với gia đình chú Luyến tại Thủy Nguyên, yêu cầu đặt ra không chỉ là một nơi để ở, mà là một không gian gắn kết các thành viên. Chú Luyến tìm đến Techhome với mong muốn sở hữu một mẫu nhà 2 tầng mái Nhật vừa vặn trên khổ đất, công năng phải thực dụng, tránh lãng phí diện tích chết, và đặc biệt là hình thức bên ngoài phải sang trọng nhưng không được lỗi mốt theo thời gian.
Sau khi khảo sát thực địa và lắng nghe tâm tư của gia chủ, các kiến trúc sư (KTS) đã bắt tay vào phác thảo phương án. Bài toán khó nhất ở đây là làm sao để bố trí đủ 4 phòng ngủ, 1 phòng thờ trang nghiêm và các không gian sinh hoạt chung rộng rãi trong diện tích xây dựng khoảng hơn 100m2/sàn mà vẫn đảm bảo thông thoáng.

2. Vẻ đẹp ngoại thất: Khi màu xanh dương lên ngôi
Nhìn vào phối cảnh mặt tiền, điều đầu tiên đập vào mắt người nhìn chính là hệ mái Nhật đồ sộ và bề thế. Khác với mái Thái cao vút, mẫu nhà 2 tầng mái Nhật có độ dốc vừa phải, mở rộng ra các hướng, tạo cảm giác che chở, bao bọc lấy ngôi nhà.
Màu sắc chủ đạo được Techhome lựa chọn là tông trắng sứ kết hợp với màu xanh ghi của hệ cột và tường trang trí. Đây là gam màu “quốc dân”, vừa sạch sẽ, hiện đại lại rất hợp mệnh với nhiều gia chủ. Hệ thống cửa sổ nhôm kính Xingfa đen tuyền nổi bật trên nền tường trắng, giúp ngôi nhà đón trọn vẹn ánh sáng tự nhiên.
Điểm nhấn đắt giá của mẫu nhà 2 tầng mái Nhật này nằm ở hệ thống cột trụ vuông vắn. Không cần phào chỉ rườm rà như phong cách cổ điển, các đường kẻ chỉ lõm chạy dọc thân cột và tường tạo nên sự khỏe khoắn, vững chãi. Ban công tầng 2 được thiết kế đua ra rộng rãi với lan can sắt nghệ thuật, là nơi lý tưởng để đặt vài chậu cây xanh hay kê một bộ bàn ghế nhỏ ngồi thưởng trà mỗi sáng.

3. “Mổ xẻ” công năng: Đỉnh cao của sự bố trí khoa học
Một ngôi nhà đẹp không chỉ ở cái “vỏ” bên ngoài, mà quan trọng nhất là cái “ruột” bên trong phải tiện nghi. Hãy cùng Techhome đi sâu vào bản vẽ kỹ thuật thi công để thấy sự tài tình trong cách sắp xếp công năng của mẫu nhà 2 tầng mái Nhật này.
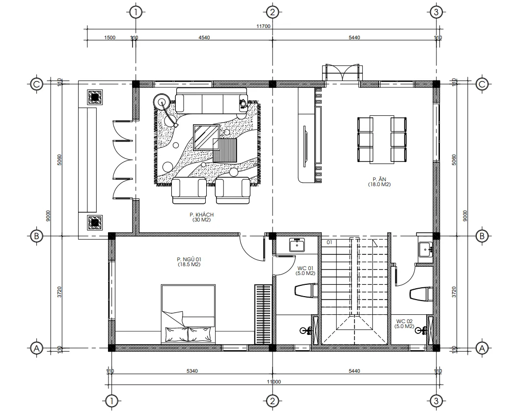
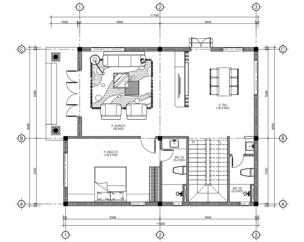
Tầng 1: Không gian kết nối (Diện tích 105m2)
Bước qua sảnh chính và hệ cửa đại hội bằng gỗ lim sang trọng, chúng ta tiến vào phòng khách rộng mênh mông với diện tích lên tới 30m2. Đây là trái tim của ngôi nhà, nơi chú Luyến có thể tự hào đón tiếp bạn bè, họ hàng.
-
Phòng bếp + Ăn: Nằm liên thông nhưng vẫn có sự kín đáo cần thiết, rộng 18m2. Vị trí này có cửa phụ mở ra sảnh phụ, cực kỳ tiện lợi khi đi chợ về có thể đi thẳng vào bếp mà không cần xách đồ ăn sống qua phòng khách.
-
Phòng ngủ 01: Diện tích 18.5m2 kèm WC khép kín tiện dụng. Đây thường là phòng ngủ dành cho ông bà hoặc người lớn tuổi để hạn chế việc leo cầu thang. Phòng rộng rãi, vuông vắn, dễ kê đồ nội thất.
-
Khu vực vệ sinh: Tầng 1 được bố trí 2 nhà vệ sinh (WC1 và WC2), mỗi phòng rộng 5m2. Việc tách biệt vệ sinh chung và riêng giúp sinh hoạt gia đình không bị chồng chéo vào giờ cao điểm.
Cầu thang là xương sống của ngôi nhà. Tại bản vẽ này, Techhome thiết kế cầu thang 25 bậc, mỗi bậc cao 166mm. Đây là kích thước “vàng” trong xây dựng, đảm bảo bước chân đi vừa vặn, không bị mỏi gối, rất an toàn cho người già và trẻ nhỏ. Chiều cao tầng 1 là 3m9, tạo độ thông thoáng tuyệt đối cho không gian sinh hoạt chung.

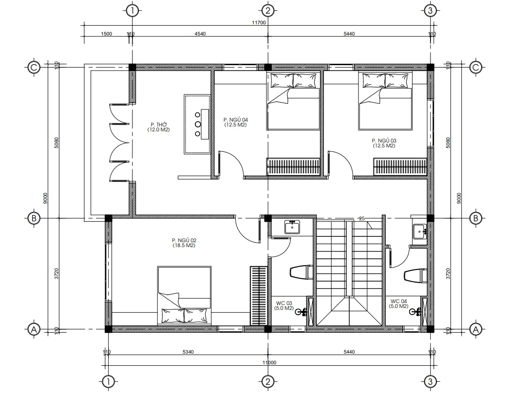
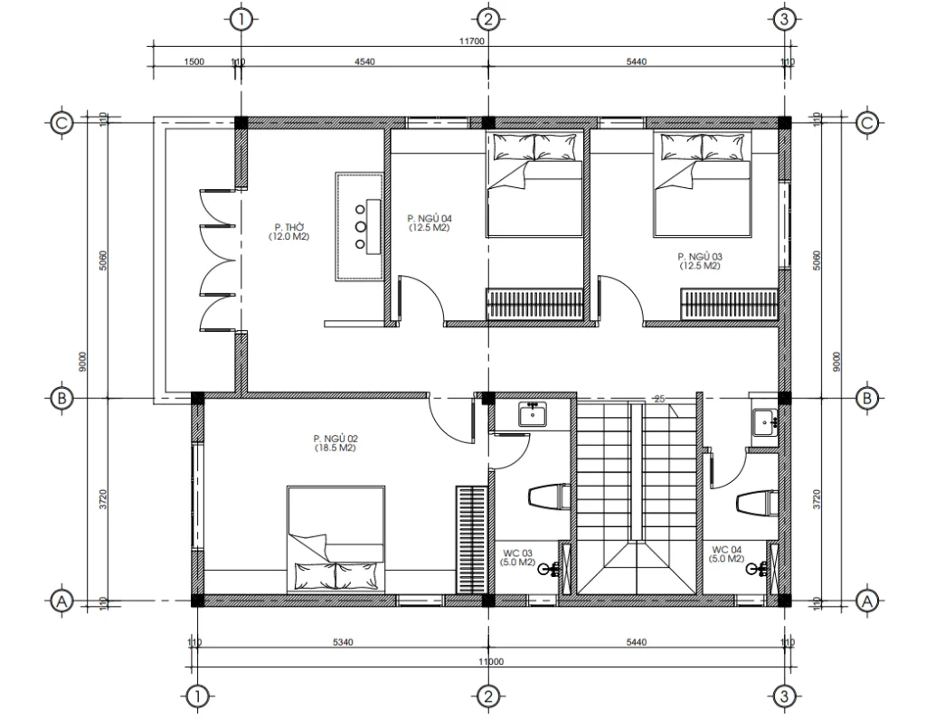
Tầng 2: Không gian nghỉ ngơi riêng tư (Diện tích 100m2)
Leo hết 25 bậc cầu thang, chúng ta đến với không gian tầng 2 – nơi đề cao sự riêng tư và tĩnh lặng.
-
Phòng thờ: Với văn hóa người Việt, phòng thờ là nơi linh thiêng nhất. Trong mẫu nhà 2 tầng mái Nhật này, phòng thờ rộng 12m2 được đặt ở vị trí trang trọng nhất phía mặt tiền, có cửa mở ra ban công thoáng đãng, đảm bảo sự tôn nghiêm và phong thủy.
-
Hệ thống phòng ngủ: Tầng 2 bao gồm 3 phòng ngủ:
-
Phòng ngủ 02: 18.5m2 kèm WC khép kín 5m2 (thẳng trục với phòng ngủ tầng 1).
-
Phòng ngủ 03: 12.5m2.
-
Phòng ngủ 04: 12.5m2. Việc bố trí tới 3 phòng ngủ trên một sàn giúp cha mẹ dễ dàng quản lý con cái, tạo sự gắn kết gia đình.
-
Chiều cao tầng 2 là 3m6, thấp hơn tầng 1 một chút để tạo cảm giác ấm cúng cho phòng ngủ và tiết kiệm năng lượng khi sử dụng điều hòa.

4. Tại sao “Mẫu nhà 2 tầng mái Nhật” lại trở thành xu hướng?
Không phải ngẫu nhiên mà chú Luyến và hàng ngàn khách hàng của Techhome lại chọn mẫu nhà 2 tầng mái Nhật. Dưới đây là những lý do thực tế nhất:
-
Thứ nhất, tính thẩm mỹ hài hòa: Mái Nhật không quá cao như mái Thái, độ dốc nhẹ giúp thoát nước mưa tốt (rất hợp với khí hậu mưa nhiều ở Hải Phòng hay miền Bắc nói chung), đồng thời tản nhiệt hiệu quả, giúp nhà mát về mùa hè, ấm về mùa đông.
-
Thứ hai, tối ưu chi phí: So với các mẫu lâu đài hay biệt thự cổ điển cầu kỳ, mẫu nhà 2 tầng mái Nhật có chi phí thi công phần thô và hoàn thiện “mềm” hơn do lược bỏ được các chi tiết hoa văn đắp vẽ tốn kém nhân công.
-
Thứ ba, không gian sân vườn: Kiến trúc mái Nhật thường đi kèm với định hướng không gian mở. Như nhà chú Luyến, dù diện tích đất không phải là “thẳng cánh cò bay”, nhưng vẫn chừa lại được khoảng sân để xe hơi, trồng cây cảnh, tạo nên một hệ sinh thái nhỏ xanh mát.

5. Vật liệu xây dựng: Chọn sao cho “Ngon – Bổ – Rẻ”?
Khi xây dựng mẫu nhà 2 tầng mái Nhật, việc chọn vật liệu là cực kỳ quan trọng. Techhome luôn tư vấn khách hàng:
-
Gạch xây: Nên dùng gạch tuynel đặc cho các vị trí chịu lực và gạch lỗ cho tường ngăn để giảm tải trọng.
-
Ngói lợp: Ngói sóng màu xanh than hoặc xanh đen đang là “hot trend”. Dòng ngói này bền màu, chịu va đập tốt hơn ngói đất nung truyền thống.
-
Sơn ngoại thất: Đừng tiếc tiền cho sơn chống thấm. Khí hậu Việt Nam nồm ẩm, một thùng sơn tốt sẽ bảo vệ ngôi nhà bạn cả chục năm không bị rêu mốc.
-
Cửa: Cửa chính nên dùng gỗ tự nhiên (Lim Nam Phi, Gõ Đỏ) để tạo sự bề thế. Các cửa sổ dùng nhôm hệ Xingfa kính cường lực để cách âm, cách nhiệt và lấy sáng.
Để tìm hiểu rõ hơn về tiêu chuẩn vật liệu xây dựng và các yếu tố ảnh hưởng đến chi phí, bạn có thể tham khảo thêm tại các bài viết chuyên sâu về vật liệu xây dựng cao cấp trên Wikipedia.

6. Kinh nghiệm Phong Thủy cho nhà mái Nhật
Trong hồ sơ thiết kế của Techhome, yếu tố phong thủy luôn được lồng ghép tinh tế. Với nhà chú Luyến:
-
Bậc tam cấp và cầu thang đều được tính toán theo cung “Sinh”. 25 bậc cầu thang rơi vào cung Sinh (theo chu kỳ Sinh – Lão – Bệnh – Tử), mang lại sức khỏe và may mắn.
-
Phòng thờ đặt ở tầng cao nhất, “tọa cát hướng cát”, nhìn ra hướng tốt của gia chủ.
-
Bếp ăn không đặt thẳng cửa chính và không dựa lưng vào nhà vệ sinh.
Nếu bạn đang có ý định xây mẫu nhà 2 tầng mái Nhật, hãy lưu ý kỹ các điểm này. Một ngôi nhà đẹp không chỉ cần thợ giỏi mà cần cả cái “tâm” của người thiết kế am hiểu phong thủy.
7. Quy trình làm việc tại Techhome – Vì sao khách hàng tin tưởng?
Để ra được bộ hồ sơ dày dặn như nhà chú Luyến (bao gồm Kiến trúc, Kết cấu, Điện nước), đội ngũ Techhome đã làm việc không ngừng nghỉ.
-
Bước 1: Tư vấn miễn phí, khảo sát tận nơi.
-
Bước 2: Lên phương án mặt bằng (sửa đổi đến khi khách ưng ý).
-
Bước 3: Dựng phối cảnh 3D siêu thực.
-
Bước 4: Bổ kỹ thuật thi công chi tiết.
-
Bước 5: Hỗ trợ giám sát tác giả từ xa hoặc trực tiếp. Số hotline hỗ trợ kỹ thuật 0364.04.2222 – 0387.60.3333 luôn mở 24/7 để giải đáp mọi thắc mắc của thợ thuyền tại công trình, đảm bảo thực tế thi công giống bản vẽ đến 99%.

8. BÁO GIÁ THIẾT KẾ & THI CÔNG MẪU NHÀ 2 TẦNG MÁI NHẬT (Cập nhật 2026)
Rất nhiều khách hàng hỏi Techhome rằng: “Xây cái nhà như thế này hết bao nhiêu tiền?”. Câu trả lời chính xác phụ thuộc vào thời điểm, giá vật liệu tại địa phương (Hải Phòng giá nhân công sẽ khác Hà Nội hay quê). Tuy nhiên, để quý khách dễ hình dung, Techhome xin đưa ra bảng khái toán tham khảo cho mẫu nhà 2 tầng mái Nhật diện tích sàn khoảng 100m2/sàn như sau:
1. Chi phí thiết kế: Hiện tại, Techhome đang có chương trình ưu đãi đặc biệt.
-
Đơn giá thiết kế kiến trúc + kết cấu + điện nước: 108.000đ/m2.
2. Chi phí xây dựng phần thô (Vật tư + Nhân công):
-
Đơn giá: Dao động từ 3.800.000đ – 4.500.000đ/m2 sàn xây dựng.
-
Hạng mục bao gồm: Móng, bể nước, bể phốt, cột, dầm, sàn, xây trát tường, điện nước âm tường, mái ngói.
3. Chi phí hoàn thiện (Chìa khóa trao tay):
-
Đơn giá: Dao động từ 6.000.000đ – 7.500.000đ/m2.
-
Tùy thuộc vào độ “chịu chơi” của gia chủ khi chọn gạch ốp lát, thiết bị vệ sinh, cửa giả, sơn bả…
Ví dụ cụ thể cho nhà chú Luyến (Tổng diện tích sàn ~205m2 + diện tích mái tính hệ số): Tổng mức đầu tư dự kiến để dọn vào ở (chưa bao gồm nội thất rời như giường tủ, bàn ghế) sẽ rơi vào khoảng 1.4 tỷ – 1.6 tỷ đồng. Đây là mức giá cực kỳ hợp lý cho một cơ ngơi bề thế, bền vững trăm năm.
(Lưu ý: Bảng giá trên chỉ mang tính chất tham khảo. Để có dự toán chi tiết chính xác đến từng viên gạch, quý khách vui lòng liên hệ trực tiếp hotline để được bóc tách khối lượng).

9. Lời kết
Ngôi nhà của chú Luyến tại Hải Phòng là minh chứng rõ nét nhất cho năng lực thiết kế của Techhome. Một mẫu nhà 2 tầng mái Nhật không quá phô trương nhưng đủ tinh tế để ai đi qua cũng phải ngước nhìn. Nó giống như tính cách của người Việt mình: Hiền hòa, cởi mở nhưng bên trong lại vô cùng chỉn chu, nề nếp.
Xây nhà là việc lớn, sai một ly đi một dặm. Đừng để những lo toan tính toán làm bạn mệt mỏi. Hãy để Techhome gánh vác phần khó khăn nhất về kỹ thuật, bạn chỉ việc chuẩn bị tinh thần để tận hưởng cuộc sống trong ngôi nhà mơ ước.
Nếu bạn yêu thích mẫu nhà 2 tầng mái Nhật này, hoặc muốn biến tấu nó theo phong cách riêng của mình, đừng ngần ngại nhấc máy lên.
Bạn có muốn Techhome tư vấn miễn phí ngay hôm nay?
-
Địa chỉ: B1.1 LK18 Ô 3 – KĐT Thanh Hà – Cienco 5 – Thanh Oai- Hà Nội.
-
Hotline/Zalo: 0364.04.2222 – 0387.60.3333
-
Website: https://nhadeptechhome.vn/
