Có những mảnh đất thoạt nhìn vào, nhiều người sẽ lắc đầu: “Mặt tiền bé thế này thì xây kiểu gì cho thoáng?”. Đó chính xác là bài toán mà anh Tuấn Anh tại Hải Phòng đã mang đến cho Kiến trúc Techhome. Với mặt tiền chỉ vỏn vẹn khoảng 3.4m nhưng chiều sâu lại lên tới hơn 15m, làm sao để ngôi nhà không biến thành một cái “hộp diêm” bí bách?
Câu trả lời nằm ở bản vẽ thiết kế nhà phố 3 tầng hiện đại mà đội ngũ KTS Techhome vừa hoàn thiện. Không chỉ là nơi che mưa nắng, đây là tổ ấm 3 thế hệ với công năng được “đo ni đóng giày” đến từng centimét, biến khuyết điểm đất hẹp thành không gian sống cực “chill” và tiện nghi. Hãy cùng Techhome khám phá ngôi nhà đặc biệt này nhé!
1. Thông tin tổng quan dự án
Trước khi đi sâu vào chi tiết, mời bạn điểm qua những thông số vàng của công trình này:
-
Chủ đầu tư: Anh Tuấn Anh
-
Địa điểm: Hải Phòng
-
Loại hình: Thiết kế nhà phố 3 tầng hiện đại (Nhà ống)
-
Tổng diện tích thiết kế: 175 m2
-
Kích thước đất: Mặt tiền 3.4m x Chiều sâu 15,1m (Đất nở hậu )
-
Đơn vị thiết kế: Công ty Cổ phần Kiến trúc và Xây dựng Techhome

2. Mặt bằng công năng: Bài toán chia phòng trên diện tích 175m2
Cái đẹp bên ngoài để người ta ngắm, còn cái tiện bên trong mới là để mình sống. Với tổng diện tích sàn 175m2, việc bố trí công năng cho gia đình đa thế hệ sinh hoạt thoải mái là một thách thức lớn. Hãy xem Techhome đã giải quyết bài toán này như thế nào trong bản thiết kế nhà phố 3 tầng hiện đại này.
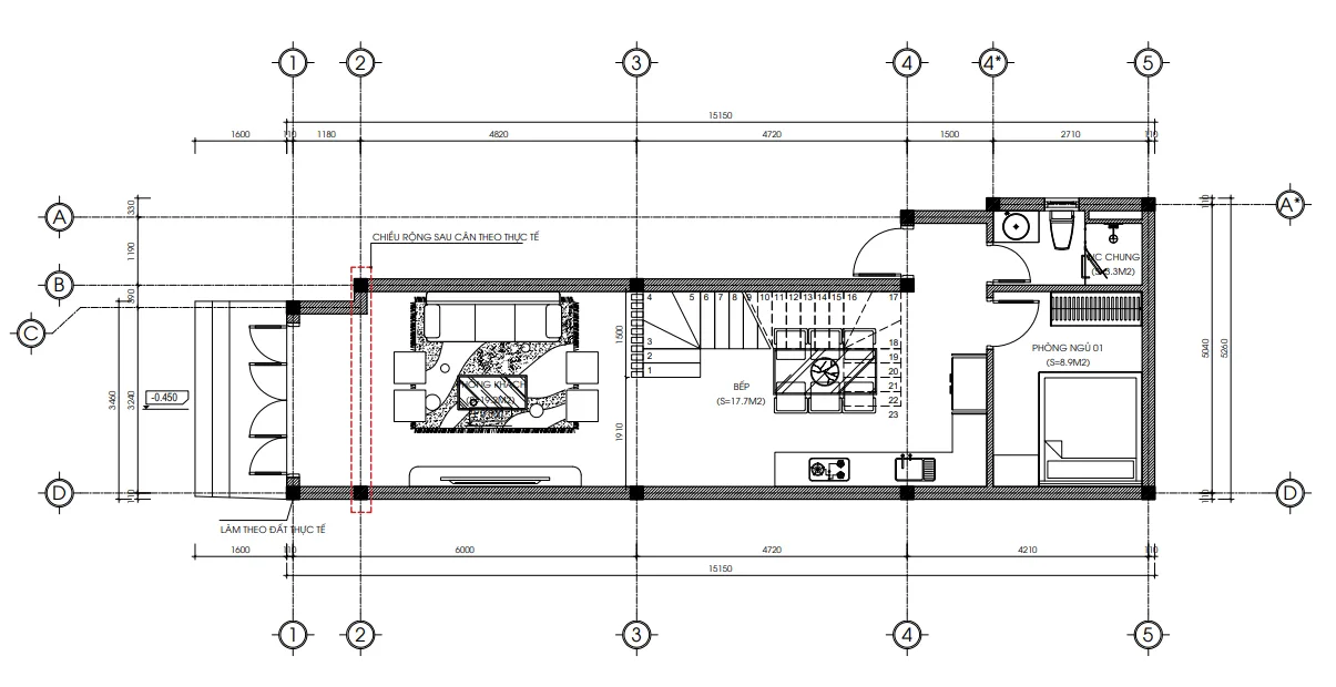
Tầng 1: Sự kết nối đầm ấm (Diện tích 70m2)
Bước vào từ cửa chính là phòng khách rộng rãi. Do chiều sâu nhà lên tới hơn 15m, chúng tôi đặt cầu thang ở giữa làm trục giao thông, ngăn cách nhẹ nhàng giữa phòng khách và bếp.
-
Phòng bếp ăn (17.7m2): Đây là trái tim của tầng 1. Diện tích gần 18m2 là đủ rộng để bố trí tủ bếp chữ L hiện đại và bàn ăn cho 6 người. Vị trí bếp đặt sâu bên trong tạo sự kín đáo, hợp phong thủy.
-
Phòng ngủ 01 (8.9m2): Rất nhiều gia chủ bỏ quên chi tiết này. Với gia đình có người lớn tuổi, việc leo cầu thang là cực hình. Techhome đã khéo léo bố trí một phòng ngủ nhỏ ngay tầng 1. Dù diện tích khiêm tốn nhưng nhờ trần cao 3m9, căn phòng vẫn rất thoáng đãng.
-
Vệ sinh chung (3.3m2): Nhỏ gọn, đặt kín đáo cuối nhà để tiết kiệm diện tích.

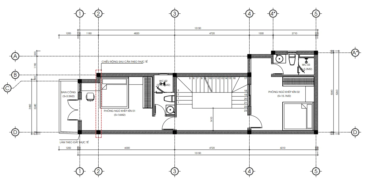
Tầng 2: Không gian riêng tư tuyệt đối (Diện tích 68m2)
Tầng 2 của mẫu thiết kế nhà phố 3 tầng hiện đại này được dành trọn vẹn cho sự nghỉ ngơi với chiều cao tầng là 3.6m.
-
Phòng ngủ Master (16m2): Nằm ở phía trước nhà, sở hữu ban công rộng 3.5m2. Đây là nơi vợ chồng anh Tuấn Anh có thể kê bàn trà nhỏ, ngắm phố phường Hải Phòng về đêm. Phòng có vệ sinh khép kín, đảm bảo sự riêng tư nhất.
-
Phòng ngủ khép kín 02 (15.1m2): Nằm phía sau nhà. Dù không có ban công mặt tiền nhưng căn phòng này vẫn thoáng nhờ hệ thống giếng trời và cửa sổ lùa lấy sáng . Việc cả 2 phòng ngủ đều có WC riêng là điểm cộng lớn, giúp cuộc sống sinh hoạt không bị chồng chéo, chờ đợi nhau mỗi sáng.

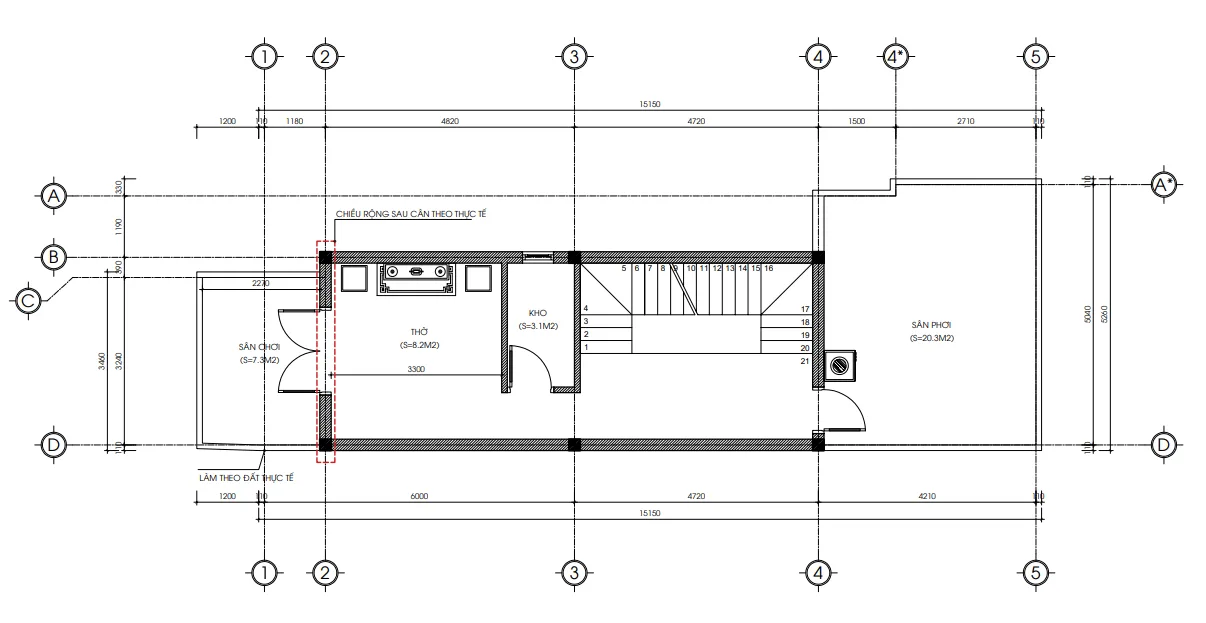
Tầng 3: Tâm linh và Thư giãn (Diện tích 37m2)
Nhiều người thường làm tầng 3 chỉ để lợp mái tôn chống nóng, nhưng với bản thiết kế nhà phố 3 tầng hiện đại này, tầng 3 là nơi “đa năng” nhất.
-
Phòng thờ (8.2m2): Đặt ở vị trí trang trọng nhất, hướng ra sân chơi phía trước.
-
Sân chơi (7.3m2): Khu vực này gia chủ có thể đặt máy tập thể dục hoặc bàn cafe ngoài trời.
-
Sân phơi & Kho: Phía sau là kho chứa đồ (3.1m2) và sân giặt phơi siêu rộng (20.3m2). Với diện tích sân phơi này, anh Tuấn Anh hoàn toàn có thể biến tấu thành một vườn rau sạch trên mái – xu hướng sống xanh đang rất hot tại các đô thị.

3. Phối cảnh ngoại thất: Đường cong mềm mại “phá tan” sự cứng nhắc
Thông thường, với những mẫu thiết kế nhà phố 3 tầng hiện đại có mặt tiền nhỏ hẹp (dưới 3.5m), các kiến trúc sư thường chọn giải pháp hình khối vuông vức để tối đa diện tích. Tuy nhiên, điều này vô tình làm ngôi nhà trông cao lêu nghêu và cứng nhắc.
Ở công trình nhà anh Tuấn Anh, Techhome đã tư duy khác biệt. Nhìn vào phối cảnh mặt tiền, bạn sẽ bị thu hút ngay bởi những đường cong bo tròn cực kỳ nghệ thuật ở khu vực ban công tầng 2 và tầng 3.
-
Kiến trúc vòm cong : Thay vì lan can kính thẳng tắp, chúng tôi sử dụng mảng tường bo cong mềm mại, ôm lấy ban công. Chi tiết này không chỉ tạo điểm nhấn thẩm mỹ lạ mắt mà còn giúp thị giác người nhìn cảm thấy ngôi nhà rộng hơn, “dễ thở” hơn so với kích thước thực tế.
-
Màu sắc tinh tế: Tone màu trắng chủ đạo giúp bắt sáng, kết hợp với màu gỗ nhựa ốp trần ban công tạo cảm giác ấm áp, sang trọng. Phần mặt tiền tầng 1 được ốp đá vân mây màu ghi xám, vừa sạch sẽ, dễ vệ sinh lại vừa vững chãi.
-
Không gian xanh: Dù đất chật, KTS Techhome vẫn khéo léo chừa lại các khoảng “thở” ở ban công để gia chủ trồng hoa giấy hoặc cây bụi. Một chút sắc xanh trên nền sơn trắng chính là liệu pháp tinh thần tuyệt vời mỗi khi anh Tuấn Anh trở về nhà sau ngày dài làm việc.
Nếu bạn đang sở hữu mảnh đất mặt phố nhỏ hẹp, thì mẫu thiết kế nhà phố 3 tầng hiện đại này chính là minh chứng cho việc: Nhà nhỏ vẫn có thể đẹp xuất sắc nếu biết cách thiết kế.
4. Báo giá thiết kế và thi công nhà phố 3 tầng (Cập nhật 2026)
Rất nhiều khách hàng thắc mắc: “Xây mẫu thiết kế nhà phố 3 tầng hiện đại đẹp như nhà anh Tuấn Anh hết bao nhiêu tiền?”. Techhome xin gửi tới bạn bảng dự toán chi phí tham khảo (Lưu ý: Giá có thể thay đổi tùy thời điểm và vật liệu):
| Hạng mục | Đơn giá tham khảo (VNĐ/m2) | Diện tích ước tính (175m2) | Tổng chi phí ước tính |
| Thiết kế kiến trúc | 108.000 đ | 175 m2 | ~ 19.000.000 đ |
| Thi công phần thô | 3.800.000 – 4.200.000 đ | 175 m2 | ~ 750.000.000 đ |
| Thi công trọn gói (Chìa khóa trao tay) | 6.000.000 – 7.500.000 đ | 175 m2 | ~ 1.1 tỷ – 1.3 tỷ đ |
Lưu ý: Với các mẫu nhà phố có mặt tiền hẹp và sâu như nhà anh Tuấn Anh, chi phí móng có thể phát sinh thêm tùy thuộc vào địa chất đất thực tế tại Hải Phòng.
Đây chỉ là mức chi phí ước tính. Để nhận được báo giá chính xác và chi tiết nhất cho công trình của bạn, vui lòng liên hệ trực tiếp với chúng tôi. Hoặc để tìm hiểu rõ hơn về tiêu chuẩn vật liệu xây dựng và các yếu tố ảnh hưởng đến chi phí, bạn có thể tham khảo thêm tại các bài viết chuyên sâu về vật liệu xây dựng cao cấp trên Wikipedia.
Cam kết thi công giống 99% bản vẽ.
5. Lời khuyên từ chuyên gia Techhome cho nhà mặt tiền nhỏ
Là đơn vị thực chiến hàng trăm công trình, Techhome hiểu rằng xây nhà trên đất 3.4m chiều ngang không dễ. Ngoài việc chọn một bản thiết kế nhà phố 3 tầng hiện đại đẹp, bạn cần lưu ý:
-
Ưu tiên giếng trời: Với nhà sâu trên 15m, bắt buộc phải có giếng trời ở giữa hoặc cuối nhà để đối lưu không khí. Đừng tiếc 1-2m2 đất, vì nó quyết định ngôi nhà bạn có “thở” được hay không.
-
Sử dụng nội thất thông minh: Tủ âm tường, bàn gấp gọn, sofa văng… là những món đồ giúp lối đi lại trong nhà rộng rãi hơn.
-
Hạn chế vách ngăn: Ở tầng 1, hãy để không gian mở liên thông Khách – Bếp. Cảm giác ngôi nhà sẽ dài và sâu hun hút, sang trọng hơn rất nhiều.

Kết luận
Mẫu thiết kế nhà phố 3 tầng hiện đại của gia đình anh Tuấn Anh tại Hải Phòng là minh chứng rõ nhất cho năng lực của Techhome: Biến những mảnh đất khó thành không gian sống lý tưởng.
Nếu bạn cũng đang sở hữu một mảnh đất “khó nhằn” và chưa biết bắt đầu từ đâu, hãy để Techhome giúp bạn vẽ nên ngôi nhà mơ ước. Chúng tôi không chỉ vẽ nhà, chúng tôi kiến tạo phong cách sống!
LIÊN HỆ TƯ VẤN MIỄN PHÍ:
-
Hotline/Zalo: 0364.04.2222 – 0387.60.3333
-
Website: https://nhadeptechhome.vn/
-
Địa chỉ: B1.1 LK18 Ô 3 – KĐT Thanh Hà – Cienco 5 – Thanh Oai- Hà Nội.




