Chắc hẳn ai trong chúng ta cũng từng ấp ủ một giấc mơ về tổ ấm của riêng mình. Không cần phải là biệt thự xa hoa lộng lẫy, đôi khi chỉ cần một mẫu nhà nhà 2 tầng đẹp, gọn gàng, công năng khoa học và tràn ngập ánh sáng là quá đủ cho một gia đình hạnh phúc. Hôm nay, Techhome xin phép được “khoe” với các bác một siêu phẩm tâm đắc mà chúng tôi vừa bàn giao hồ sơ thiết kế cho gia đình anh Tiến tại Quảng Ninh.
Đây không chỉ là một ngôi nhà, đây là lời giải cho bài toán: “Làm sao để đất phố 5m mặt tiền trở nên rộng rãi và nghệ thuật?”. Nếu bạn đang loay hoay tìm ý tưởng, hãy dành 5 phút đọc hết bài viết này, Techhome sẽ “bóc tách” từng chi tiết từ bản vẽ đến chi phí để bạn tham khảo nhé.
1. Câu chuyện đằng sau “Mẫu nhà 2 tầng đẹp” của anh Tiến
Khi tìm đến Techhome qua Hotline 0364.04.2222, anh Tiến chia sẻ rất thật lòng: “Anh có mảnh đất ở Quảng Ninh, diện tích cũng phổ thông thôi, ngang 5m dài 17m. Anh muốn xây một ngôi nhà cho vợ chồng và con cái, nhưng phải có phòng ngủ dưới tầng 1 cho ông bà tiện đi lại. Quan trọng là nhìn nó phải hiện đại, mềm mại chứ đừng vuông thành sắc cạnh quá, nhìn chán lắm”.
Hiểu được tâm tư đó, đội ngũ kiến trúc sư (KTS) của Techhome đã bắt tay vào nghiên cứu. Nhiệm vụ đặt ra là phải tạo nên một mẫu nhà 2 tầng đẹp vượt trội so với các nhà ống thông thường, vừa đảm bảo thông thoáng, vừa có gu thẩm mỹ riêng. Và bản thiết kế mã số 596QN ra đời, đánh dấu sự hợp tác ăn ý giữa gia chủ và đơn vị thiết kế.

2. Đánh giá chi tiết kiến trúc mặt tiền: Điểm nhấn từ những đường cong
Nhìn vào phối cảnh 3D mặt tiền, điều đầu tiên đập vào mắt chúng ta chính là sự phá cách. Quên đi những khối bê tông vuông vức cứng nhắc của những năm 2010, mẫu nhà 2 tầng đẹp năm 2025-2026 hướng tới sự mềm mại của kiến trúc hiện đại nhẹ nhàng “Soft Modern”.
Nghệ thuật tạo hình khối
Điểm “ăn tiền” nhất của ngôi nhà này chính là hệ vòm cong ở ban công tầng 2. KTS Techhome đã khéo léo sử dụng đường cong để bo tròn góc tường bên trái, tạo cảm giác ngôi nhà như rộng hơn và “hiền” hơn. Phần mái hiên tầng 2 được ốp trần giả gỗ (Conwood hoặc nhựa giả gỗ cao cấp), kết hợp với hệ đèn downlight âm trần, đảm bảo buổi tối nhìn ngôi nhà sẽ lung linh như một khách sạn mini.
Màu sắc và Vật liệu
Gia chủ là người mệnh Thổ nên chúng tôi tư vấn tông màu chủ đạo là Trắng sứ kết hợp với Xám ghi và Nâu gỗ.
-
Tầng 1: Toàn bộ mặt tiền tầng 1 được ốp đá tự nhiên màu xám vân mây. Việc ốp đá này không chỉ giúp mẫu nhà 2 tầng đẹp và sang trọng hơn, mà còn cực kỳ sạch sẽ, dễ vệ sinh, chống rêu mốc qua năm tháng – một khoản đầu tư rất “đáng đồng tiền bát gạo”.
-
Hệ cửa: Sử dụng nhôm kính Xingfa Quảng Đông nhập khẩu màu đen tuyền. Cửa kính lớn giúp lấy sáng tối đa, đứng từ trong nhà nhìn ra đường phố cảm giác rất thoáng đãng.
Không gian xanh
Dù là nhà phố nhưng không thể thiếu mảng xanh. Các bác có thể thấy ở ban công tầng 2, Techhome đã thiết kế sẵn bồn hoa chạy dài. Trồng vài bụi Cúc tần Ấn Độ rủ xuống hay vài cây Lưỡi hổ thì đúng là “hết nước chấm”, vừa lọc bụi vừa làm mát nhà.

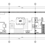
3. Mổ xẻ công năng: Bố trí mặt bằng “chuẩn không cần chỉnh”
Một mẫu nhà 2 tầng đẹp mà công năng lộn xộn thì cũng chỉ là “bình hoa di động”. Với kích thước 5x17m, việc bố trí từng cm2 đều phải tính toán kỹ. Hãy cùng xem Techhome đã giải bài toán này như thế nào trong bản vẽ kỹ thuật thi công.
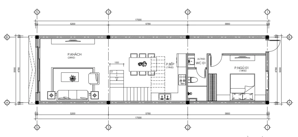
Mặt bằng Tầng 1: Sự kết nối không gian
Chiều cao tầng 1 được thiết kế là 4.2m (4200mm), một chiều cao lý tưởng để nhà luôn thoáng mát, không bị bí bách.
-
Phòng Khách (24m2): Bước từ sảnh chính vào là phòng khách rộng 24m2. Với chiều sâu 5.2m, các bác thoải mái kê bộ sofa gỗ óc chó chữ U hay sofa da nhập khẩu đều vừa vặn. Kệ tivi được bố trí gọn gàng sát tường, tối ưu lối đi.
-
Phòng Bếp & Ăn (19m2): Được ngăn cách nhẹ nhàng với phòng khách bằng cầu thang bộ. Diện tích 19m2 đủ để đặt bàn ăn 6 ghế và hệ tủ bếp chữ L tiện dụng. Bếp cạnh giếng trời thoát mùi dễ dàng để đảm bảo nấu nướng không bị ám mùi lên phòng khách.
-
Phòng Ngủ 01 (14m2): Đây là điểm cộng lớn. Một phòng ngủ 14m2 đặt tại tầng 1 dành cho ông bà hoặc người lớn tuổi là vô cùng hợp lý, hạn chế việc leo cầu thang.
-
Vệ sinh chung (4.7m2): Đặt kín đáo cạnh phòng ngủ và bếp, đảm bảo tế nhị và sạch sẽ.

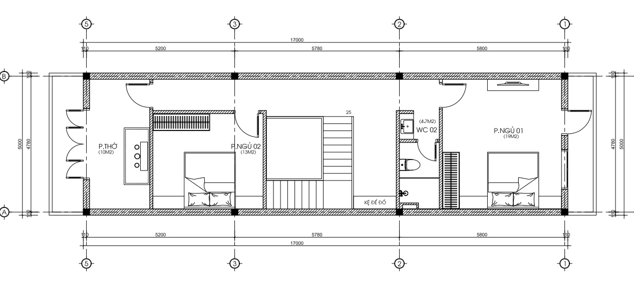
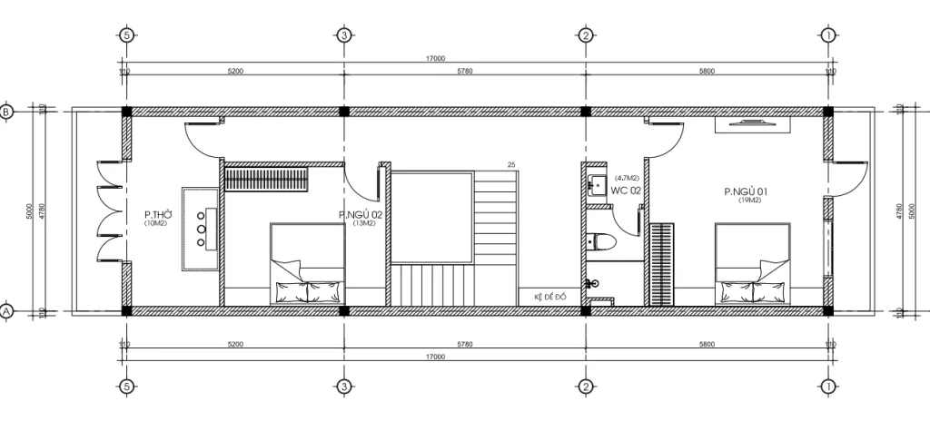
Mặt bằng Tầng 2: Không gian riêng tư và tâm linh
Chiều cao tầng 2 là 3.9m (3900mm), vẫn rất cao ráo so với tiêu chuẩn nhà phố thông thường (thường chỉ 3.3m – 3.6m).
-
Phòng Thờ (10m2): Được đặt ở vị trí trang trọng nhất phía trước nhà, hướng ra ban công. Đây là nguyên tắc “tọa cát hướng cát” trong phong thủy, giúp mang lại tài lộc cho gia chủ.
-
Phòng Ngủ 02 (13m2) & Phòng Ngủ 03 (19m2): Phòng ngủ lớn 19m2 phía sau có thể dùng làm phòng Master cho vợ chồng anh Tiến, rộng rãi, dễ dàng bố trí tủ quần áo kịch trần. Phòng ngủ nhỏ hơn 13m2 dành cho các con.
-
Khu vực giặt phơi: Sân phơi được bố trí khéo léo phía sau hoặc tận dụng không gian thoáng của giếng trời.

Mái và Giếng trời – “Lá phổi” của ngôi nhà
Nhìn vào bản vẽ mặt bằng mái, các bác sẽ thấy Techhome bố trí một ô giếng trời rất lớn ở giữa nhà, ngay khu vực cầu thang. Đối với nhà ống dài 17m, giếng trời là yếu tố sống còn. Nó giúp đối lưu không khí, đưa gió tươi vào tận các phòng ngủ phía sau. Một mẫu nhà 2 tầng đẹp thực sự là khi bước vào nhà lúc nào cũng thấy mát mẻ, khô ráo nhờ ánh nắng tự nhiên soi rọi qua giếng trời.
4. Tại sao mẫu nhà 5x17m này lại HOT đến vậy?
Có rất nhiều khách hàng khi đến Techhome đều hỏi xin hồ sơ mẫu thiết kế tương tự nhà anh Tiến. Tại sao mẫu nhà 2 tầng đẹp dạng ống 5x17m này lại được ưa chuộng?
-
Tiết kiệm chi phí: Với tổng diện tích sàn khoảng 180m2 (85m2 tầng 1 + 95m2 tầng 2), đây là quy mô xây dựng vừa miếng túi tiền của đại đa số gia đình trẻ.
-
Dễ thi công: Kết cấu khung bê tông cốt thép đơn giản, thời gian thi công nhanh (chỉ khoảng 3.5 – 4 tháng là xong).
-
Không lỗi mốt: Phong cách hiện đại với các đường cong, kính lớn, ít phào chỉ rườm rà sẽ bền dáng theo thời gian. 10 năm nữa nhìn lại vẫn thấy sang.
Nếu bạn đang sở hữu mảnh đất có kích thước tương tự, đừng ngần ngại áp dụng ngay layout công năng này. Nó đã được các kỹ sư Techhome tính toán kỹ lưỡng về kết cấu và chịu lực.

5. Báo giá thiết kế và thi công mẫu nhà 2 tầng đẹp (Cập nhật 2026)
Đây chắc chắn là phần các bác mong chờ nhất. Để sở hữu một mẫu nhà 2 tầng đẹp như của anh Tiến tại Quảng Ninh, chúng ta cần chuẩn bị ngân sách bao nhiêu? Techhome xin đưa ra bảng khái toán chi phí (tham khảo) để các bác dễ hình dung. Lưu ý: Giá có thể thay đổi tùy thời điểm và khu vực.
Đơn giá thiết kế kiến trúc
Hiện nay, đơn giá thiết kế bản vẽ thi công full hồ sơ (kiến trúc, kết cấu, điện nước) dao động khoảng 108.000đ/m2. Với nhà 180m2 sàn, chi phí thiết kế rơi vào khoảng: 20 triệu đồng. Một khoản đầu tư quá nhỏ để tránh rủi ro đập đi xây lại.
Chi phí xây dựng (Khái toán)
Để xây dựng mẫu nhà 2 tầng đẹp diện tích 5x17m, chúng ta có 2 gói chính:
1. Gói xây dựng phần thô và nhân công hoàn thiện:
-
Đơn giá: ~ 3.800.000đ – 4.500.000đ/m2.
-
Tổng chi phí ước tính: 684.000.000 – 810.000.000 VNĐ.
-
Bao gồm: Móng, cột, dầm, sàn, xây trát tường, điện nước âm tường, nhân công lát nền, sơn bả (chưa gồm vật tư sơn, gạch).
2. Gói xây nhà trọn gói (Chìa khóa trao tay):
-
Đơn giá vật tư loại Khá: ~ 6.500.000đ – 7.500.000đ/m2.
-
Tổng chi phí ước tính: 1 tỷ 170 triệu – 1 tỷ 350 triệu VNĐ.
-
Bao gồm: Tất tần tật từ A-Z (Gạch ốp lát, thiết bị vệ sinh Inax/Toto, cửa nhôm kính, sơn Dulux/Jotun, trần thạch cao…). Các bác chỉ việc xách vali về ở.
Lưu ý:
-
Chi phí trên chưa bao gồm phần móng cọc (nếu đất yếu phải ép cọc bê tông) và nội thất rời (giường, tủ, bàn ghế).
-
Tại Quảng Ninh hoặc các tỉnh lân cận, chi phí vận chuyển có thể chênh lệch chút ít so với Hà Nội.
Để có bảng dự toán chính xác đến từng viên gạch cho ngôi nhà của mình, hãy gọi ngay Hotline: 0364042222 để KTS Techhome bóc tách khối lượng miễn phí cho bạn nhé!
Để tìm hiểu rõ hơn về tiêu chuẩn vật liệu xây dựng và các yếu tố ảnh hưởng đến chi phí, bạn có thể tham khảo thêm tại các bài viết chuyên sâu về vật liệu xây dựng cao cấp trên Wikipedia.

6. Kinh nghiệm “xương máu” khi xây nhà phố 2 tầng
Là người trong nghề, tôi khuyên thật các bác vài điều để có được một mẫu nhà 2 tầng đẹp và ưng ý:
-
Đừng tiếc tiền thiết kế: Nhiều bác cứ đi mượn bản vẽ nhà hàng xóm về xây cho nhà mình. Nhưng đất người ta hướng Đông, đất mình hướng Tây; tuổi người ta khác, tuổi mình khác. Tiết kiệm 20 triệu tiền thiết kế nhưng khi xây lên bị lỗi phong thủy, bí bách, đập đi sửa lại tốn cả trăm triệu. Hồ sơ thiết kế như của Techhome dày cả trăm trang, chi tiết đến từng ổ cắm điện, giúp các bác kiểm soát thợ cực tốt.
-
Chú trọng chống thấm: Nhà mái bằng hiện đại rất đẹp, nhưng sợ nhất là thấm trần. Hãy yêu cầu đơn vị thi công xử lý chống thấm sàn mái thật kỹ (dùng Sika hoặc màng khò nóng) và đánh dốc thoát nước chuẩn chỉ. Như trong bản vẽ phối cảnh trên cao, Techhome đã thiết kế mái tôn chống nóng bên trên lớp bê tông, đây là giải pháp “kép” vừa mát vừa chống thấm tuyệt đối.
-
Giám sát vật tư: Nếu khoán trọn gói, hãy quy định rõ chủng loại vật tư trong hợp đồng. Ví dụ: Sắt Hòa Phát hay Việt Nhật? Xi măng Hoàng Thạch hay Bỉm Sơn? Dây điện Trần Phú hay Sino? Mọi thứ phải minh bạch.
7. Tại sao nên chọn Techhome làm đơn vị thiết kế & thi công?
Giữa “ma trận” các công ty xây dựng, Techhome tự tin là điểm tựa vững chắc cho ngôi nhà của bạn. Tại sao ư?
-
Minh bạch pháp lý: Chúng tôi là Công ty Cổ phần Kiến trúc và Xây dựng Techhome, có dấu đỏ pháp nhân rõ ràng. Mọi giao dịch đều có hợp đồng ký kết đàng hoàng (như Hợp đồng số /HD-TK/20 với anh Tiến).
-
Đội ngũ thực chiến: Đội ngũ KTS, Kỹ sư đều là những người có thâm niên, đã từng chinh chiến hàng trăm công trình từ nhà phố đến biệt thự.
-
Hỗ trợ trọn đời: Số điện thoại trên bản vẽ 0364.04.2222 – 0387.60.3333 hoạt động 24/7. Dù công trình đã bàn giao, chỉ cần các bác ới một tiếng khi có vấn đề nhỏ, anh em kỹ thuật sẽ có mặt xử lý.
-
Tư vấn từ tâm: Chúng tôi không vẽ hươu vẽ vượn để moi tiền khách hàng. Chúng tôi vẽ nên những mẫu nhà 2 tầng đẹp dựa trên ngân sách thực tế của bạn.

Lời kết
Ngôi nhà của anh Tiến ở Quảng Ninh là minh chứng rõ nhất cho việc: Không cần đất quá rộng, không cần tiền tỷ tỷ, bạn vẫn có thể sở hữu một không gian sống đẳng cấp nếu chọn đúng người đồng hành.
Một mẫu nhà 2 tầng đẹp, hiện đại, công năng tối ưu đang chờ đợi bạn. Đừng để ước mơ chỉ là ước mơ. Năm 2026 rồi, vật giá leo thang từng ngày, xây nhà càng sớm càng lời.
Nếu bạn thấy ưng ý với phong cách thiết kế này, hoặc muốn điều chỉnh lại cho phù hợp với diện tích đất của mình, hãy liên hệ ngay với Techhome. Chúng tôi luôn sẵn sàng lắng nghe và hiện thực hóa ý tưởng của bạn.
CÔNG TY CỔ PHẦN KIẾN TRÚC VÀ XÂY DỰNG TECHHOME
-
Hotline/Zalo: 0364.04.2222 / 0387.60.3333
-
Website: https://nhadeptechhome.vn/
-
Địa chỉ: B1.1 LK18 Ô 3 – KĐT Thanh Hà – Cienco 5 – Thanh Oai- Hà Nội.
Hãy để lại bình luận bên dưới nếu bạn muốn xin báo giá chi tiết cho diện tích đất của nhà mình nhé!
