Bạn đang sở hữu một mảnh đất phân lô phố thị và loay hoay tìm kiếm một giải pháp kiến trúc vừa tối ưu diện tích, vừa thể hiện được gu thẩm mỹ tinh tế? Mẫu nhà phố 2 tầng 1 tum hiện đại chính là “chìa khóa” giải quyết mọi bài toán về không gian và ánh sáng cho gia đình trẻ. Hôm nay, hãy cùng Techhome khám phá siêu phẩm mã số 628 – công trình tâm huyết chúng tôi vừa bàn giao cho chị Thủy tại vùng đất chè La Bằng, Thái Nguyên.
1. Câu chuyện đằng sau mẫu nhà phố 2 tầng 1 tum hiện đại của chị Thủy
Khi tìm đến Techhome, chị Thủy chia sẻ mong muốn về một ngôi nhà không cần quá đồ sộ nhưng phải “có hồn”. Giữa không gian xanh mát của vùng La Bằng, một ngôi nhà ống truyền thống sẽ trở nên lạc lõng. Vì vậy, các kiến trúc sư của chúng tôi đã đề xuất Mẫu nhà phố 2 tầng 1 tum hiện đại với ngôn ngữ thiết kế tối giản, tập trung vào các mảng khối và vật liệu đương đại.
Dự án có tổng diện tích thiết kế là 162m2 , được phân bổ thông minh trên quỹ đất 5×12.5m. Đây là kích thước điển hình của nhà phố hiện nay, và cách chúng tôi xử lý không gian chắc chắn sẽ khiến bạn bất ngờ.

2. Phối cảnh ngoại thất: Khi sự tối giản lên ngôi
Ngắm nhìn tổng thể, Mẫu nhà phố 2 tầng 1 tum hiện đại này thu hút ánh nhìn bởi sự kết hợp hài hòa giữa các tông màu trung tính: trắng sứ, xám đá và nâu gỗ.
-
Mặt tiền ấn tượng: Tầng 1 được thiết kế với cửa kính khung nhôm hệ Xingfa màu đen tuyền, tạo độ mở tối đa cho không gian kinh doanh hoặc phòng khách.
-
Vật liệu hiện đại: Điểm nhấn nằm ở phần trần ban công và các mảng tường trang trí sử dụng nhựa giả gỗ cao cấp. Loại vật liệu này không chỉ bền bỉ trước thời tiết khắc nghiệt của Thái Nguyên mà còn mang lại cảm giác ấm áp, sang trọng.
-
Mảng xanh len lỏi: Các bồn hoa được bố trí khéo léo tại ban công tầng 2 và tầng tum, giúp thanh lọc không khí và giảm bớt sự thô cứng của bê tông.

3. Giải pháp công năng: Tối ưu đến từng centimet
Một Mẫu nhà phố 2 tầng 1 tum hiện đại đẹp thôi chưa đủ, nó phải là một bộ máy vận hành hoàn hảo cho cuộc sống thường nhật.
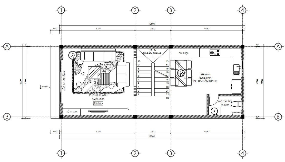
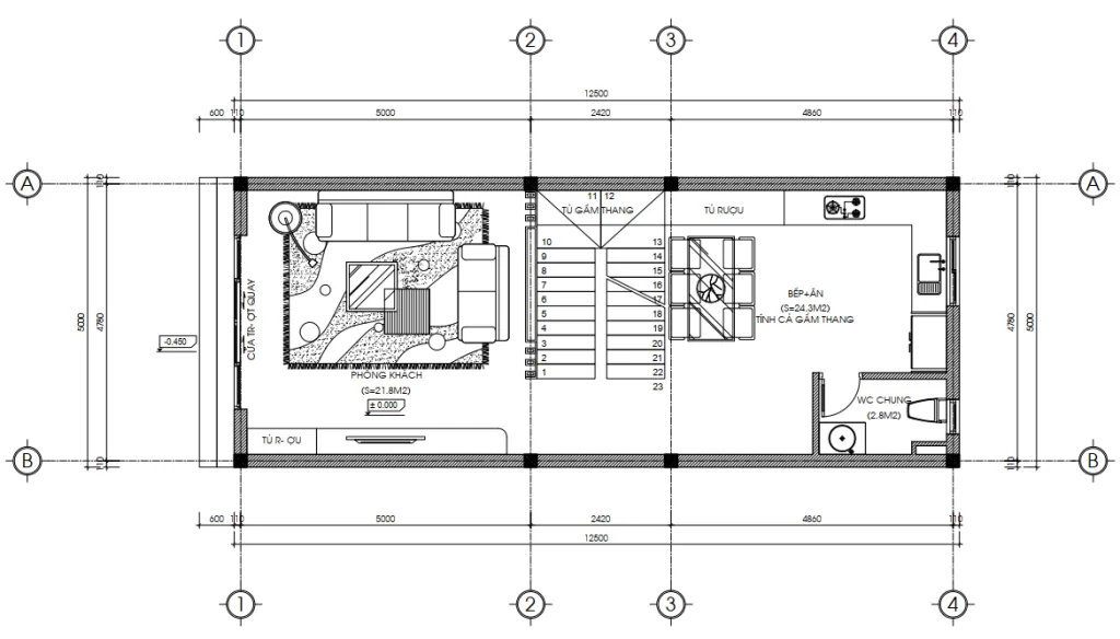
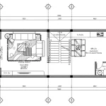
Tầng 1: Không gian sinh hoạt chung ấm cúng
Với diện tích 65m2, tầng 1 là nơi giữ lửa hạnh phúc cho gia đình.
-
Phòng khách (21.8m2): Ngay sau lớp cửa kính là không gian đón khách rộng rãi, tràn ngập ánh sáng tự nhiên.
-
Phòng bếp & ăn (24.3m2): Được ngăn cách nhẹ nhàng với phòng khách bằng hệ cầu thang bộ 23 bậc. Việc tính toán diện tích cả gầm thang giúp tối ưu hóa không gian lưu trữ.
-
WC chung (2.8m2): Được đặt kín đáo phía cuối nhà, đảm bảo tính thẩm mỹ và phong thủy.

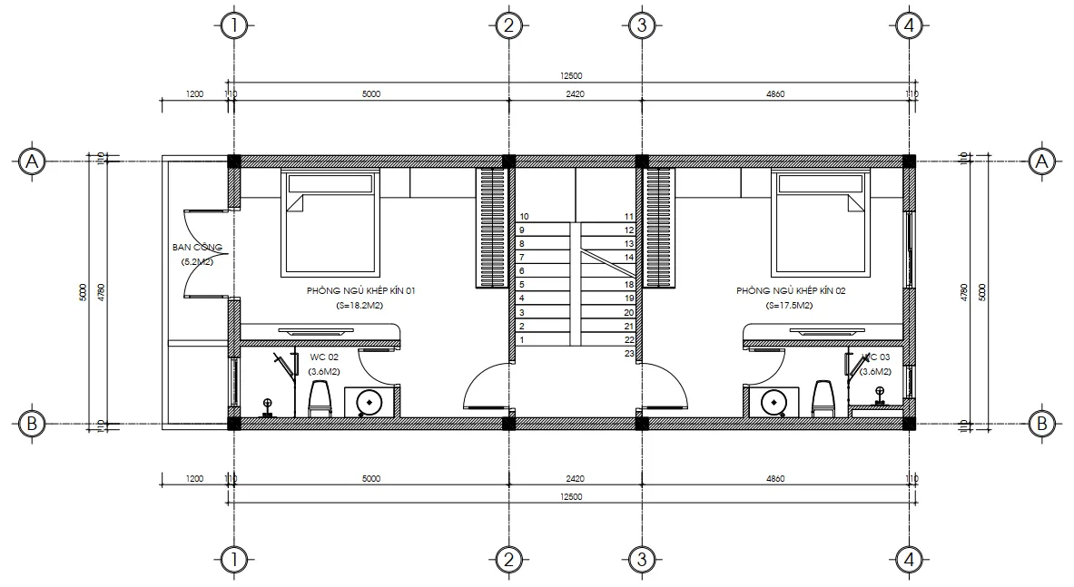
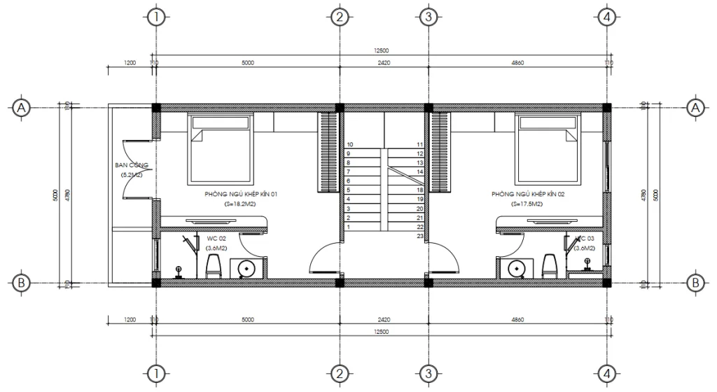
Tầng 2: Chốn riêng tư lý tưởng
Tầng 2 rộng 69m2, là không gian nghỉ ngơi của gia đình với 2 phòng ngủ khép kín.
-
Phòng ngủ 01 (18.2m2): Sở hữu ban công rộng 5.2m2 hướng ra mặt tiền, là nơi chị Thủy có thể thư giãn, ngắm nhìn phố phường mỗi sáng.
-
Phòng ngủ 02 (17.5m2): Yên tĩnh hơn ở phía sau, cực kỳ phù hợp cho giấc ngủ sâu.
-
Cả hai phòng đều có WC riêng (3.6m2) tiện nghi, đảm bảo sự riêng tư tuyệt đối.

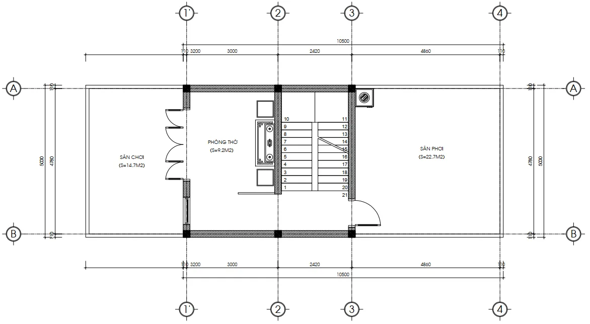
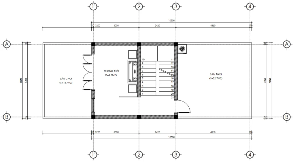
Tầng tum: “Lá phổi” của ngôi nhà
Diện tích 28m2 của tầng tum được dành cho những công năng đặc biệt.
-
Phòng thờ (9.2m2): Vị trí cao nhất, trang nghiêm nhất để thờ cúng tổ tiên.
-
Sân chơi & Sân phơi: Với diện tích lên đến 14.7m2 và 22.7m2, đây là nơi gia đình tổ chức những bữa tiệc BBQ ngoài trời hoặc làm vườn sân thượng. Đây chính là giá trị cốt lõi của Mẫu nhà phố 2 tầng 1 tum hiện đại – mang thiên nhiên vào không gian sống.

4. Tại sao nên chọn Mẫu nhà phố 2 tầng 1 tum hiện đại?
Nếu bạn đang phân vân giữa việc xây 3 tầng hay 2 tầng, thì phương án 1 tum là sự lựa chọn “vừa vặn” nhất về kinh phí và công năng. Mẫu nhà phố 2 tầng 1 tum hiện đại giúp:
-
Tiết kiệm chi phí: Thay vì đổ sàn bê tông toàn phần cho tầng 3, phần tum giúp giảm đáng kể chi phí vật liệu và nhân công.
-
Chống nóng hiệu quả: Tầng tum đóng vai trò như một lớp đệm nhiệt, giúp các phòng ngủ ở tầng 2 luôn mát mẻ.
-
Hợp phong thủy: Tạo ra sự cân bằng về hình khối, giúp ngôi nhà cao ráo nhưng không bị chông chênh.

5. Báo giá thiết kế và thi công (Tham khảo)
Tại Techhome, chúng tôi luôn minh bạch về tài chính để khách hàng an tâm dựng xây tổ ấm. Dưới đây là mức giá tham khảo cho Mẫu nhà phố 2 tầng 1 tum hiện đại:
| Hạng mục | Đơn giá (VNĐ/m2) | Thành tiền (Ước tính cho 162m2) |
| Thiết kế kiến trúc & Kết cấu | 108.000 | 17.496.000 |
| Thi công phần thô | 3.800.000 – 4.200.000 | ~ 680.000.000 |
| Thi công hoàn thiện | 6.500.000 – 7.500.000 | ~ 1.200.000.000 |
Lưu ý: Đây chỉ là mức chi phí ước tính. Để nhận được báo giá chính xác và chi tiết nhất cho công trình của bạn, vui lòng liên hệ trực tiếp với chúng tôi. Hoặc để tìm hiểu rõ hơn về tiêu chuẩn vật liệu xây dựng và các yếu tố ảnh hưởng đến chi phí, bạn có thể tham khảo thêm tại các bài viết chuyên sâu về vật liệu xây dựng cao cấp trên Wikipedia.

6. Techhome – Đơn vị thiết kế mẫu nhà phố 2 tầng 1 tum hiện đại uy tín
Với đội ngũ kiến trúc sư , Techhome không chỉ vẽ ra những bản vẽ đẹp mà còn đưa ra những tư vấn kỹ thuật thực tế nhất. Chúng tôi hiểu rằng, mỗi viên gạch đặt xuống là một sự kỳ vọng lớn lao của gia chủ.
Mẫu nhà phố 2 tầng 1 tum hiện đại của chị Thủy tại Thái Nguyên là minh chứng cho sự nỗ lực không ngừng của chúng tôi trong việc kiến tạo không gian sống đẳng cấp. Nếu bạn cũng đang ấp ủ một ngôi nhà như thế, đừng ngần ngại nhấc máy gọi cho hotline: 036.273.2222 để được tư vấn miễn phí.

Một số câu hỏi thường gặp về Mẫu nhà phố 2 tầng 1 tum hiện đại:
-
Xây nhà 2 tầng 1 tum hết bao nhiêu tiền? Tùy vào diện tích, nhưng thông thường gói hoàn thiện cho Mẫu nhà phố 2 tầng 1 tum hiện đại 162m2 dao động từ 1 tỷ đến 1,2 tỷ đồng.
-
Thời gian thiết kế và thi công là bao lâu? Thời gian thiết kế khoảng 20-25 ngày. Thời gian thi công hoàn thiện rơi vào khoảng 4.5 đến 5.5 tháng.
-
Tầng tum có được tính là 1 tầng khi xin giấy phép xây dựng không? Tùy quy định từng địa phương, nhưng thông thường nếu diện tích tum không vượt quá 30% diện tích sàn mái thì sẽ không bị tính là một tầng chính thức.
Mẫu nhà phố 2 tầng 1 tum hiện đại mã số 628 là sự lựa chọn hoàn hảo cho những gia đình yêu thích phong cách sống trẻ trung, phóng khoáng. Hãy để Techhome đồng hành cùng bạn hiện thực hóa ngôi nhà trong mơ!
CÔNG TY CỔ PHẦN KIẾN TRÚC VÀ XÂY DỰNG TECHHOME
-
Website: https://nhadeptechhome.vn/
-
Hotline: 036.273.2222
-
Địa chỉ: B1.1 LK18 Ô 3 – KĐT Thanh Hà – Cienco 5 – Thanh Oai- Hà Nội.
