Bạn đang sở hữu một mảnh đất tại vùng ngoại ô yên bình và dự định xây dựng một tổ ấm vừa sang trọng, vừa tối ưu công năng cho gia đình đông thành viên? Vậy thì đừng bỏ qua hồ sơ thiết kế kỹ thuật thi công mà Techhome vừa hoàn thiện cho gia đình anh Phi tại Tích Giang, Phúc Thọ, Hà Nội. Đây chính là một mẫu nhà mái Nhật 2 tầng đẹp tiêu biểu, đại diện cho xu hướng kiến trúc bền vững và thẩm mỹ hiện nay.
1. Cảm hứng thiết kế từ sự thấu hiểu chủ đầu tư
Khi tiếp nhận yêu cầu từ anh Phi , đội ngũ kiến trúc sư của Công ty Cổ phần Kiến trúc và Xây dựng Techhome đã dành nhiều thời gian khảo sát thực địa tại Tích Giang. Mong muốn của anh rất rõ ràng: “Một ngôi nhà đủ rộng cho con cháu về chơi, nhưng phải thoáng đãng và có nét hiện đại, không bị lỗi mốt theo thời gian”.
Từ bài toán đó, chúng tôi đã đề xuất phương án kiến trúc mái Nhật. Tại sao lại là mái Nhật? Bởi độ dốc vừa phải giúp thoát nước mưa cực tốt trong điều kiện thời tiết tại miền Bắc, đồng thời tạo nên diện mạo thanh thoát, sang trọng. Đây thực sự là một mẫu nhà mái Nhật 2 tầng đẹp hút mắt ngay từ cái nhìn đầu tiên.

2. Phối cảnh ngoại thất: Sự kết hợp màu sắc đầy tinh tế
Điểm nhấn đầu tiên của ngôi nhà chính là hệ mái Nhật màu xanh dương đậm. Màu xanh này không chỉ tạo cảm giác mát mẻ mà còn cực kỳ nổi bật trên nền sơn trắng chủ đạo của tường nhà.
-
Sự phối hợp màu sắc: Chúng tôi sử dụng các mảng tường nhấn màu xanh nhạt và các đường chỉ kẻ ngang tinh tế để phá vỡ sự đơn điệu của những bức tường phẳng.
-
Vật liệu hiện đại: Hệ cửa nhôm kính xingfa cao cấp màu đen được sử dụng xuyên suốt, giúp lấy sáng tối đa cho không gian bên trong.
-
Chi tiết trang trí: Phần chân tường và bậc tam cấp được ốp đá tự nhiên tối màu, không chỉ tăng tính thẩm mỹ mà còn giúp bảo vệ công trình khỏi rêu mốc, bụi bẩn.
Sự chỉn chu trong từng chi tiết đã biến ngôi nhà thành một mẫu nhà mái Nhật 2 tầng đẹp và đẳng cấp nhất khu vực Tích Giang.

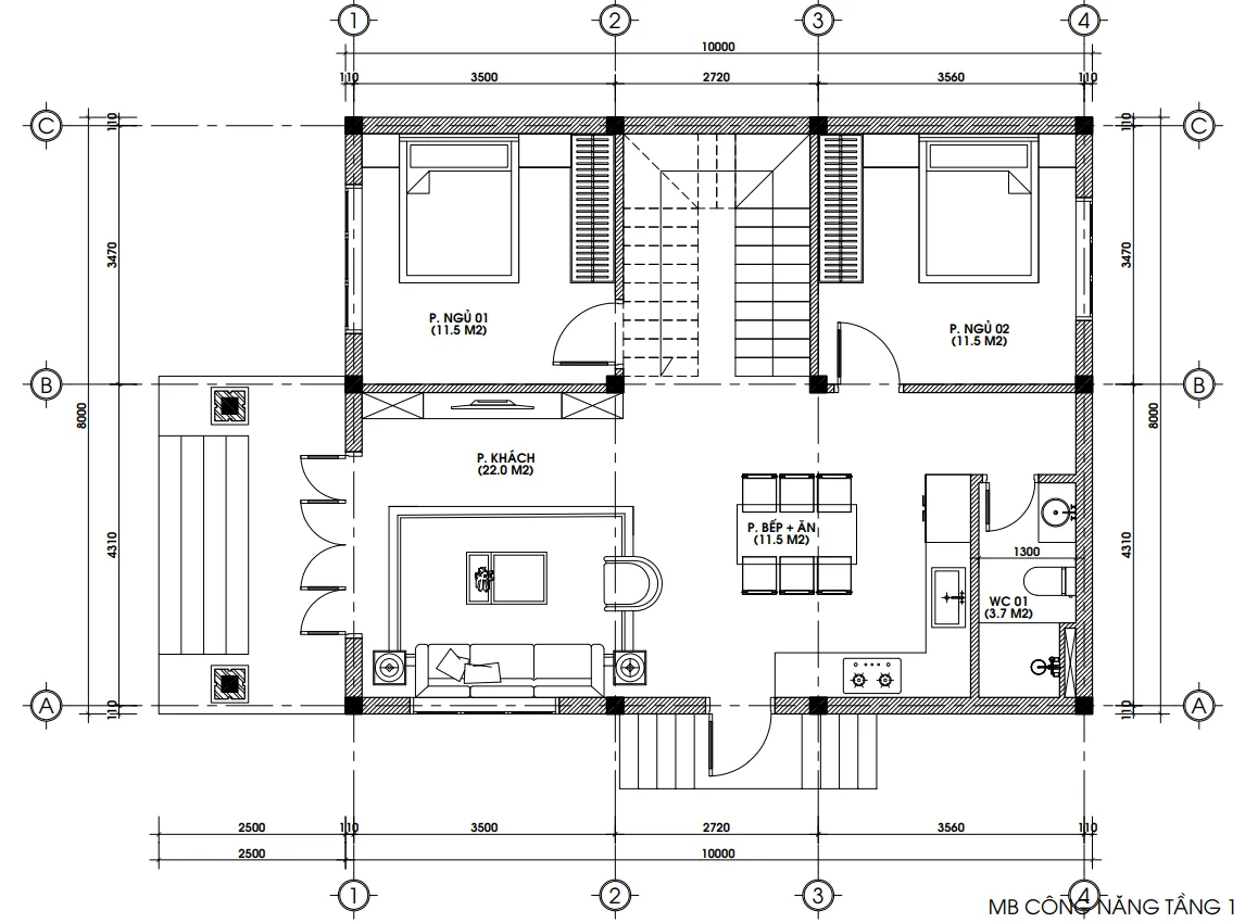
3. Giải pháp mặt bằng công năng: Tối ưu đến từng centimet
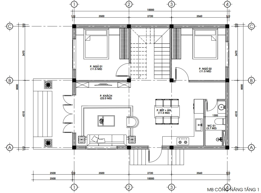
Một ngôi nhà đẹp thôi chưa đủ, nó phải là nơi “dễ sống” và tiện nghi. Với tổng diện tích sàn tầng 1 là 90.0m2 và tầng 2 là 80.0m2, Techhome đã bố trí không gian cực kỳ khoa học.
Mặt bằng tầng 1: Không gian sinh hoạt chung ấm cúng
Tầng 1 có chiều cao 3.9m, tạo sự thông thoáng tuyệt đối. Công năng bao gồm:
-
Phòng khách (22.0m2): Nằm ngay sau sảnh chính, là trái tim của ngôi nhà, nơi đón tiếp khách quý và cả gia đình sum vầy.
-
Phòng bếp + ăn (11.5m2): Được ngăn cách tinh tế, đảm bảo sự riêng tư nhưng vẫn có sự kết nối.
-
02 Phòng ngủ (11.5m2 mỗi phòng): Rất phù hợp cho người già hoặc khách nghỉ lại qua đêm, giúp hạn chế việc phải leo cầu thang.
-
WC chung (3.7m2): Bố trí kín đáo, thuận tiện sử dụng.
Chính cách bố trí này đã giúp ngôi nhà của anh Phi trở thành một mẫu nhà mái Nhật 2 tầng đẹp về cả hình thức lẫn công năng sử dụng.

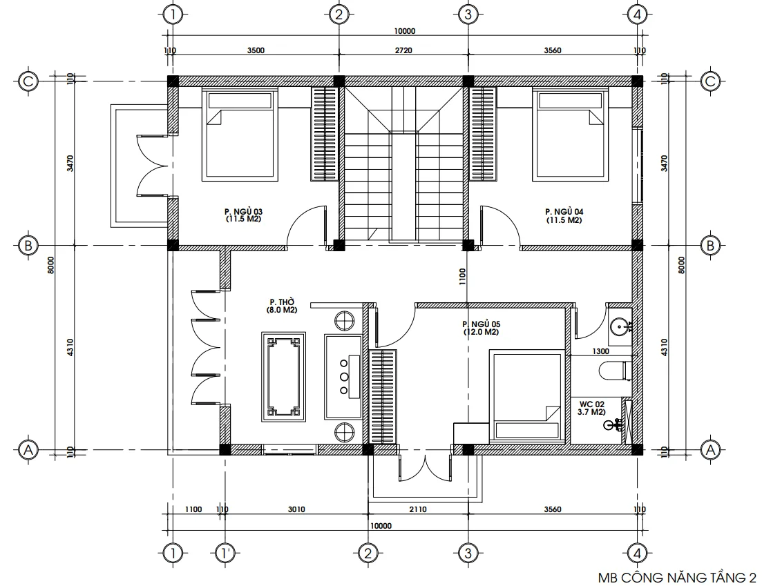
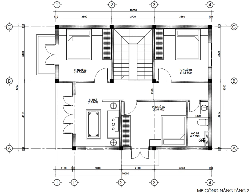
Mặt bằng tầng 2: Nơi nghỉ ngơi và thờ tự trang nghiêm
Tầng 2 có chiều cao 3.6m, tập trung vào sự yên tĩnh.
-
Phòng thờ (8.0m2): Đặt ở vị trí trang trọng nhất, hướng ra ban công thoáng đãng.
-
03 Phòng ngủ (11.5m2 – 12.0m2): Dành cho vợ chồng anh Phi và các con, mỗi phòng đều có cửa sổ đón gió.
-
WC chung (3.7m2): Thiết kế đồng trục với WC tầng 1 để thuận tiện cho việc thi công điện nước.
Với tổng cộng 5 phòng ngủ, đây quả thực là một mẫu nhà mái Nhật 2 tầng đẹp lý tưởng cho những gia đình đa thế hệ.

4. Những thông số kỹ thuật “vàng” từ chuyên gia Techhome
Để tạo nên một mẫu nhà mái Nhật 2 tầng đẹp, chúng tôi không chỉ vẽ đẹp mà còn tính toán rất kỹ về kỹ thuật.
-
Cầu thang bộ: Được thiết kế 25 bậc với chiều cao bậc là 156mm. Theo phong thủy, 25 bậc rơi vào cung “Sinh”, mang lại may mắn và sức khỏe cho gia chủ.
-
Hồ sơ thiết kế: Được thực hiện và kiểm duyệt bởi đội ngũ chuyên gia giàu kinh nghiệm.
Bạn có thể hoàn toàn yên tâm khi cầm trên tay bản hồ sơ thiết kế kỹ thuật thi công của Techhome. Chúng tôi cam kết mang đến một mẫu nhà mái Nhật 2 tầng đẹp bền vững cùng thời gian.

5. Báo giá tham khảo thiết kế và thi công
Chúng tôi hiểu rằng, bên cạnh vẻ đẹp, chi phí là yếu tố khách hàng quan tâm hàng đầu. Dưới đây là mức giá tham khảo để sở hữu một mẫu nhà mái Nhật 2 tầng đẹp tương tự gia đình anh Phi:
| Hạng mục | Đơn giá tham khảo | Ghi chú |
| Thiết kế kiến trúc | 108.000 VNĐ/m2 |
Bao gồm phối cảnh 3D, bản vẽ kỹ thuật, điện nước |
| Thi công phần thô | 3.800.000 – 4.200.000 VNĐ/m2 | Tùy vào thời điểm và vật tư |
| Thi công trọn gói | 6.500.000 – 7.500.000 VNĐ/m2 | “Chìa khóa trao tay” |
Lưu ý: Đây chỉ là mức chi phí ước tính. Để nhận được báo giá chính xác và chi tiết nhất cho công trình của bạn, vui lòng liên hệ trực tiếp với chúng tôi. Hoặc để tìm hiểu rõ hơn về tiêu chuẩn vật liệu xây dựng và các yếu tố ảnh hưởng đến chi phí, bạn có thể tham khảo thêm tại các bài viết chuyên sâu về vật liệu xây dựng cao cấp trên Wikipedia.

6. Góc nhìn chuyên gia: Tại sao bạn nên chọn Techhome?
Làm việc trong ngành kiến trúc nhiều năm, tôi nhận thấy nhiều khách hàng thường bỏ qua phần hồ sơ kỹ thuật để tiết kiệm chi phí ban đầu. Tuy nhiên, đó là sai lầm lớn.
Một mẫu nhà mái Nhật 2 tầng đẹp chỉ thực sự hoàn hảo khi:
-
Kết cấu vững chắc: Được tính toán bởi kỹ sư có chuyên môn.
-
Hợp phong thủy: Từ hướng cửa đến số bậc cầu thang.
-
Công năng thực tế: Tránh việc phòng quá rộng lãng phí hoặc quá hẹp tù túng.
Techhome không chỉ bán bản vẽ, chúng tôi bán giải pháp cho không gian sống. Mỗi mẫu nhà mái Nhật 2 tầng đẹp chúng tôi tạo ra đều mang dấu ấn riêng của gia chủ.

7. Kết luận
Ngôi nhà của anh Phi tại Tích Giang là minh chứng cho việc kết hợp hài hòa giữa thẩm mỹ hiện đại và công năng sử dụng truyền thống. Nếu bạn đang tìm kiếm một mẫu nhà mái Nhật 2 tầng đẹp, thanh lịch và ấm cúng, hãy để Techhome đồng hành cùng bạn.
Đừng ngần ngại liên hệ với chúng tôi để hiện thực hóa giấc mơ về một mẫu nhà mái Nhật 2 tầng đẹp cho riêng mình. Chúng tôi luôn sẵn sàng lắng nghe và tư vấn tận tâm nhất.
KIẾN TRÚC VÀ XÂY DỰNG TECHHOME
-
Website: nhadeptechhome.vn
-
Hotline: 036.273.2222
-
Địa chỉ: B1.1 LK18 Ô 3 – KĐT Thanh Hà – Cienco 5 – Thanh Oai- Hà Nội.
Hy vọng bài viết về mẫu nhà mái Nhật 2 tầng đẹp này đã cung cấp cho bạn nhiều thông tin hữu ích. Chúc bạn sớm xây dựng được ngôi nhà ưng ý!

