Xây nhà là việc trọng đại cả đời. Với người dân xứ Nghệ, ngôi nhà không chỉ là nơi che mưa che nắng mà còn là bộ mặt, là thành quả sau bao năm bôn ba vất vả. Hôm nay, Techhome xin giới thiệu đến quý khách hàng một dự án đầy tâm huyết: Mẫu nhà 2 tầng hiện đại 8x11m của gia đình chị Hà tại Nghệ An.
Đây là một minh chứng cho việc tối ưu diện tích 88 m2 để tạo nên không gian sống vừa sang trọng, vừa tiện nghi. Nếu bạn đang sở hữu một mảnh đất tương tự, đừng bỏ lỡ bài phân tích chi tiết dưới đây.
1. Vẻ đẹp ngoại thất: Khi sự tối giản lên ngôi
Nhìn vào phối cảnh 3D, bạn sẽ thấy mẫu nhà 2 tầng hiện đại 8x11m này thoát ly hoàn toàn khỏi những khối hộp vuông vức nhàm chán. Điểm nhấn đắt giá nhất chính là những đường nét “bo góc” mềm mại ở khu vực ban công và ô cửa vòm.
-
Tông màu chủ đạo: Màu trắng tinh khôi được sử dụng làm nền, giúp ngôi nhà trông sáng sủa và rộng hơn diện tích thực tế. Sự kết hợp với trần ban công ốp gỗ tạo nên cảm giác ấm cúng, gần gũi.
-
Hệ cửa kính cường lực: Toàn bộ hệ cửa chính và cửa sổ sử dụng khung nhôm đen kết hợp kính lớn. Điều này không chỉ giúp lấy ánh sáng tự nhiên tối đa mà còn tạo view nhìn thoáng đãng ra sân vườn.
-
Chi tiết kiến trúc: Những đường chỉ âm tường thanh mảnh chạy dọc mặt tiền giúp ngôi nhà có chiều sâu hơn. Đặc biệt, việc bố trí cây xanh ngay tại ban công tầng 2 mang lại sức sống tươi mới cho tổng thể công trình.
Mẫu nhà 2 tầng hiện đại 8x11m này thực sự phù hợp với những gia chủ yêu thích phong cách tối giản nhưng vẫn muốn khẳng định gu thẩm mỹ riêng biệt của mình.

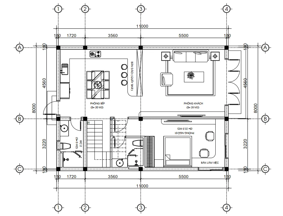
2. Phân tích công năng tầng 1: Không gian sinh hoạt chung ấm cúng
Với diện tích sàn 88 m2 , các kiến trúc sư của Techhome đã khéo léo sắp xếp các khu vực chức năng một cách khoa học nhất:
-
Phòng khách (28 m2): Ngay từ cửa chính đi vào là không gian tiếp khách rộng rãi. Diện tích này đủ sức chứa những bộ sofa lớn, tạo sự bề thế cho gia chủ.
-
Phòng bếp & ăn (20 m2): Được thiết kế liên thông với phòng khách qua một quầy bar/bàn đảo hiện đại. Đây là nơi giữ lửa hạnh phúc, nơi cả gia đình quây quần bên mâm cơm sau ngày dài làm việc.
-
Phòng ngủ tầng 1 (22.5 m2): Tích hợp WC riêng, Việc bố trí phòng ngủ ở tầng trệt giúp thuận tiện trong sinh hoạt, tránh phải leo cầu thang nhiều.
-
Khu vực vệ sinh: nhà vệ sinh chung được đặt kín đáo cạnh cầu thang và khu bếp để tối ưu diện tích.
Sự liên kết giữa các phòng trong mẫu nhà 2 tầng hiện đại 8x11m này tạo ra một dòng chảy năng lượng tốt, giúp ngôi nhà luôn thông thoáng.

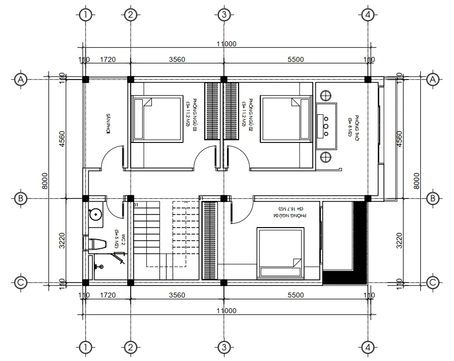
3. Phân tích công năng tầng 2: Riêng tư và tôn nghiêm
Nếu tầng 1 là nơi náo nhiệt thì tầng 2 của mẫu nhà 2 tầng hiện đại 8x11m lại là khoảng lặng yên bình:
-
2 Phòng ngủ (11.2 m2/phòng): Hai phòng ngủ được thiết kế cạnh nhau, diện tích vừa đủ để bố trí giường, tủ quần áo và bàn học.
- Phòng ngủ 4 (18.7m2) : Rộng rãi, có cửa sổ lớn đón gió.
-
Phòng thờ (8 m2): Một không gian không thể thiếu trong văn hóa người Việt, đặc biệt là tại Nghệ An. Phòng thờ được đặt ở vị trí trang trọng nhất, hướng ra ban công phía trước để đón tài lộc và sự trang nghiêm.
-
Sân phơi : Khu vực sân phơi phía sau giúp đảm bảo tính thẩm mỹ cho mặt tiền.
Có thể thấy, mẫu nhà 2 tầng hiện đại 8x11m đáp ứng hoàn hảo nhu cầu cho một gia đình từ 4 – 5 thành viên sinh sống thoải mái.

4. Giải pháp mái và vật liệu thi công
Nhìn từ trên cao, ngôi nhà sử dụng hệ mái bằng kết hợp mái tôn để tối ưu chi phí nhưng vẫn đảm bảo chống thấm, chống nóng tốt.
-
Hệ thống năng lượng mặt trời: Gia đình chị Hà đã lựa chọn lắp đặt bình nước nóng năng lượng mặt trời trên mái. Đây là xu hướng sống xanh, tiết kiệm điện năng mà Techhome luôn khuyến khích khách hàng sử dụng.
-
Chống nóng: Việc sử dụng các lớp vật liệu cách nhiệt dưới mái tôn giúp không gian bên trong luôn mát mẻ, bất chấp cái nắng gay gắt của miền Trung.
Lựa chọn mẫu nhà 2 tầng hiện đại 8x11m với giải pháp mái này giúp gia chủ tiết kiệm được một khoản chi phí đáng kể so với mái Thái hay mái Nhật cầu kỳ.

5. Tại sao bạn nên chọn Techhome thiết kế mẫu nhà 2 tầng hiện đại 8x11m?
Techhome không chỉ bán một bản vẽ, chúng tôi mang đến một giải pháp sống. Với đội ngũ kiến trúc sư, mỗi công trình đều được chăm chút đến từng centimet:
-
Am hiểu địa phương: Chúng tôi hiểu rõ khí hậu và thổ nhưỡng tại Nghệ An. Các thiết kế luôn ưu tiên sự thông thoáng và bền vững.
-
Tối ưu hóa chi phí: Với mẫu nhà 2 tầng hiện đại 8x11m, Techhome luôn tư vấn vật liệu phù hợp với ngân sách của gia chủ mà vẫn đảm bảo vẻ đẹp sang trọng.
-
Hỗ trợ kỹ thuật tận tâm: Hotline 0364.042.222 luôn sẵn sàng giải đáp mọi thắc mắc của thợ xây tại công trường để đảm bảo thi công đúng bản vẽ.

6. Báo giá tham khảo xây dựng mẫu nhà 2 tầng hiện đại 8x11m (Năm 2026)
Dưới đây là bảng dự toán chi phí mang tính chất tham khảo cho công trình có tổng diện tích sàn khoảng 176m2 (bao gồm sảnh, mái):
| Hạng mục | Đơn giá ước tính | Thành tiền (VNĐ) |
| Thiết kế kiến trúc | 108.000 đ/m2 | 19.000.000 |
| Xây dựng phần thô (Nhân công + Vật tư) | 3.800.000 – 4.200.000 đ/m2 | ~ 700.000.000 |
| Hoàn thiện gói cơ bản (Cửa, sơn, gạch, thiết bị vệ sinh) | 2.500.000 – 3.000.000 đ/m2 | ~ 500.000.000 |
| Tổng cộng (Chìa khóa trao tay) | 7.000.000 đ/m2 | ~ 1.200.000.000 |
Lưu ý: Đây chỉ là mức chi phí ước tính. Để nhận được báo giá chính xác và chi tiết nhất cho công trình của bạn, vui lòng liên hệ trực tiếp với chúng tôi. Hoặc để tìm hiểu rõ hơn về tiêu chuẩn vật liệu xây dựng và các yếu tố ảnh hưởng đến chi phí, bạn có thể tham khảo thêm tại các bài viết chuyên sâu về vật liệu xây dựng cao cấp trên Wikipedia.

7. Lời kết
Mẫu nhà 2 tầng hiện đại 8x11m không chỉ là một khối kiến trúc, nó là biểu tượng của sự nỗ lực và tình yêu gia đình. Với diện tích 8x11m, bạn hoàn toàn có thể sở hữu một “villa phố” thu nhỏ nếu biết cách sắp đặt.
Nếu bạn đang băn khoăn về việc bố trí công năng hay lo lắng về chi phí phát sinh, hãy để Techhome đồng hành cùng bạn. Chúng tôi cam kết mang lại giá trị thật, sự an tâm tuyệt đối từ khâu đặt bút ký hợp đồng đến khi bàn giao nhà.
Thông tin liên hệ:
-
Công ty Cổ phần Kiến trúc và Xây dựng Techhome
-
Website: nhadeptechhome.vn
-
Hotline: 036.273.2222
-
Địa chỉ: B1.1 LK18 Ô 3 – KĐT Thanh Hà – Cienco 5 – Thanh Oai- Hà Nội.

