Mẫu nhà phố 2 tầng tân cổ điển 5x20m: Đỉnh cao sang trọng tại Bắc Ninh cho chị Hồng

Bạn đang sở hữu một lô đất phố nhưng lại chán ngấy những khối bê tông thô cứng, đơn điệu? Bạn khao khát một không gian sống vừa hiện đại, tiện nghi, lại vừa mang nét kiêu sa, quý tộc của kiến trúc châu Âu? Vậy thì mẫu nhà phố 2 tầng tân cổ điển mà Techhome vừa bàn giao cho gia đình chị Hồng tại Bắc Ninh chính là “chân ái” mà bạn không nên bỏ lỡ.

Trong bài viết này, bằng cái tâm của người làm nghề, Techhome sẽ cùng bạn mổ xẻ từng chi tiết từ phối cảnh 3D đến bản vẽ công năng chi tiết của siêu phẩm này. Hãy cùng xem, tại sao phong cách này lại đang làm mưa làm gió trên khắp các diễn đàn nhà đẹp năm 2026 nhé!

1. Câu chuyện về mẫu nhà phố 2 tầng tân cổ điển tại “thủ phủ” Kinh Bắc

Bắc Ninh không chỉ nổi tiếng với những làn điệu Quan họ mà còn là nơi hội tụ của những gia chủ có gu thẩm mỹ rất cao. Khi tìm đến Techhome, chị Hồng chia sẻ: “Chị muốn một ngôi nhà nhìn từ xa là thấy sự thanh lịch, không cần quá cầu kỳ nhưng phải có điểm nhấn và đặc biệt là bên trong phải thật thoáng.”

Sau nhiều ngày trăn trở, đội ngũ kiến trúc sư của chúng tôi đã đề xuất mẫu nhà phố 2 tầng tân cổ điển. Đây là sự giao thoa hoàn hảo giữa nét đẹp hoài cổ và hơi thở hiện đại, giúp tối ưu diện tích 100m² (5x20m) một cách tuyệt vời nhất.

Phối cảnh mặt tiền chính diện mẫu nhà phố 2 tầng tân cổ điển diện tích 100m2 tại Bắc Ninh.
Phối cảnh mặt tiền chính diện mẫu nhà phố 2 tầng tân cổ điển diện tích 100m2 tại Bắc Ninh.

2. Phân tích ngoại thất: Khi những đường cong lên tiếng

Điểm cuốn hút nhất của mẫu nhà phố 2 tầng tân cổ điển này chính là sự giản lược các chi tiết phào chỉ rườm rà, thay vào đó là những đường vòm cong mềm mại.

  • Tông màu chủ đạo: Chúng tôi sử dụng sắc trắng tinh khôi làm chủ đạo. Trong ngành kiến trúc, màu trắng không chỉ giúp ngôi nhà trông rộng hơn mà còn là cái nền hoàn hảo để tôn lên các chi tiết trang trí khác.

  • Hệ thống cửa vòm: Các ô cửa sổ và ban công được thiết kế dạng vòm – một đặc trưng không thể thiếu của mẫu nhà phố 2 tầng tân cổ điển. Nó phá vỡ sự thô cứng của những bức tường thẳng đứng, tạo cảm giác uyển chuyển và nhẹ nhàng.

  • Lan can hợp kim nhôm đúc: Để tăng thêm phần sang trọng, hệ thống lan can màu vàng đồng được lựa chọn. Sự kết hợp giữa trắng và vàng đồng luôn tạo nên một diện mạo “quý tộc” bất chấp thời gian.

  • Hệ thống ánh sáng: Bạn có thể thấy các đèn tường được bố trí đối xứng tại các trụ cột. Ban đêm, khi ánh đèn vàng hắt lên, ngôi nhà sẽ hiện lên lung linh như một tòa lâu đài thu nhỏ giữa lòng phố thị.

Góc nghiêng mẫu nhà phố 2 tầng tân cổ điển


3. Bản vẽ công năng: Tối ưu đến từng centimet

Một ngôi nhà đẹp mà công năng bất hợp lý thì chỉ là một “bình hoa di động”. Với diện tích 5x20m, Techhome đã tính toán rất kỹ để mẫu nhà phố 2 tầng tân cổ điển này phục vụ tốt nhất cho gia đình đa thế hệ.

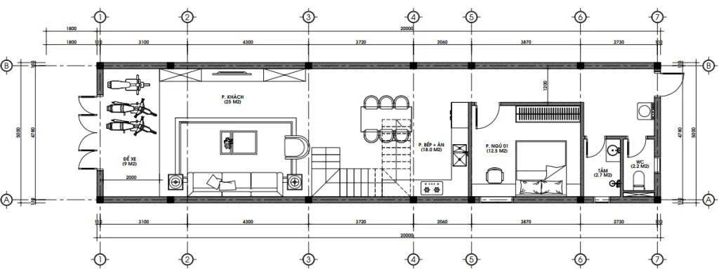
Tầng 1: Không gian sinh hoạt chung và sự tiện lợi

Nhìn vào bản vẽ kỹ thuật, tầng 1 được chia làm 3 khu vực chính:

  • Khu vực để xe (9m²): Vừa đủ cho xe máy và tạo khoảng đệm ngăn cách tiếng ồn từ đường phố.

  • Phòng khách (25m²): Được thiết kế rộng rãi, là bộ mặt của gia chủ. Với mẫu nhà phố 2 tầng tân cổ điển, phòng khách nên sử dụng nội thất gỗ kết hợp da để đồng bộ phong cách.

  • Phòng bếp & ăn (18m²): Kết nối trực tiếp với phòng khách qua cầu thang bộ, tạo không gian mở thông thoáng.

  • Phòng ngủ 01 (12.5m²): Dành riêng cho người lớn tuổi trong nhà để tránh phải leo trèo cầu thang, đảm bảo sức khỏe.

Bản vẽ bố trí công năng tầng 1 mẫu nhà phố 2 tầng tân cổ điển gồm phòng khách, bếp ăn và 1 phòng ngủ.
Bản vẽ bố trí công năng tầng 1 mẫu nhà phố 2 tầng tân cổ điển gồm phòng khách, bếp ăn và 1 phòng ngủ.

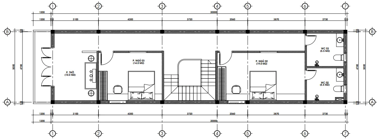
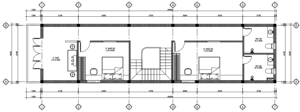
Tầng 2: Sự riêng tư và trang nghiêm

Lên đến tầng 2, đây là không gian nghỉ ngơi chính:

  • Phòng thờ (10m²): Được đặt ở vị trí trang trọng nhất phía mặt tiền, có ban công riêng để lấy sáng và thoát hương.

  • Phòng ngủ 02 (19m²) & Phòng ngủ 03 (14m²): Phòng ngủ 02 có nhà vệ sinh riêng (5.5m²), đảm bảo sự riêng tư tuyệt đối cho các thành viên.

Bản vẽ bố trí công năng tầng 2 mẫu nhà phố 2 tầng tân cổ điển diện tích 100m2.
Bản vẽ bố trí công năng tầng 2 mẫu nhà phố 2 tầng tân cổ điển diện tích 100m2.

4. Tại sao bạn nên chọn mẫu nhà phố 2 tầng tân cổ điển cho năm 2026?

Thực tế mà nói, có rất nhiều phong cách như Hiện đại, Indochine hay Minimalist, nhưng mẫu nhà phố 2 tầng tân cổ điển vẫn giữ vững ngôi vương vì:

  1. Vẻ đẹp không lỗi mốt: Dù 10 hay 20 năm nữa, kiến trúc vòm và phào chỉ nhẹ vẫn luôn có giá trị thẩm mỹ cao.

  2. Khẳng định vị thế: Nhìn vào một mẫu nhà phố 2 tầng tân cổ điển, người ta thấy được sự đầu tư và gu thẩm mỹ tinh tế của chủ nhân.

  3. Sự thông thoáng: Thiết kế này cho phép mở các ô cửa lớn, tận dụng tối đa ánh sáng tự nhiên.

Góc nghiêng mẫu nhà phố 2 tầng tân cổ điển


5. Báo giá thiết kế và thi công (Tham khảo 2026)

Để bạn có cái nhìn tổng quan về chi phí đầu tư cho một mẫu nhà phố 2 tầng tân cổ điển tương tự chị Hồng tại Bắc Ninh, Techhome xin đưa ra bảng giá dự kiến:

Hạng mục Đơn giá (VNĐ/m2) Ghi chú
Thiết kế kiến trúc  108.000 Tùy vào độ phức tạp của phào chỉ.
Thi công phần thô 3.800.000 – 4.200.000 Bao gồm nhân công và vật tư thô.
Thi công hoàn thiện 2.500.000 – 4.500.000 Tùy thuộc vào vật liệu (gạch, sơn, thiết bị vệ sinh).
Trọn gói (Chìa khóa trao tay) 7.000.000 – 8.500.000 Mức giá phổ biến cho phân khúc tân cổ điển.

Lưu ý: Đây chỉ là mức chi phí ước tính. Để nhận được báo giá chính xác và chi tiết nhất cho công trình của bạn, vui lòng liên hệ trực tiếp với chúng tôi. Hoặc để tìm hiểu rõ hơn về tiêu chuẩn vật liệu xây dựng và các yếu tố ảnh hưởng đến chi phí, bạn có thể tham khảo thêm tại các bài viết chuyên sâu về vật liệu xây dựng cao cấp trên Wikipedia.

Phối cảnh từ trên cao nhìn xuống tổng thể mẫu nhà phố 2 tầng tân cổ điển có sân thượng thoáng đãng.
Phối cảnh từ trên cao nhìn xuống tổng thể mẫu nhà phố 2 tầng tân cổ điển có sân thượng thoáng đãng.

6. Lời khuyên từ chuyên gia Techhome

Để mẫu nhà phố 2 tầng tân cổ điển của bạn thực sự hoàn hảo, tôi có một vài lưu ý nhỏ từ kinh nghiệm thực chiến:

  • Đừng quá lạm dụng phào chỉ: Với nhà phố diện tích hẹp (5m ngang), nếu đắp quá nhiều hoa văn sẽ khiến ngôi nhà trông nặng nề và “sến”. Hãy chọn phong cách “Neo-classic” tối giản như nhà chị Hồng.

  • Chú ý hệ thống thoát nước: Các chi tiết vòm và phào chỉ nếu thi công không khéo rất dễ đọng nước, gây rêu mốc sau vài mùa mưa. Hãy chọn đơn vị thi công có tâm.

Mẫu nhà phố 2 tầng tân cổ điển không chỉ là một công trình xây dựng, đó là một tác phẩm nghệ thuật đại diện cho phong cách sống của gia chủ. Tại Techhome, chúng tôi không chỉ vẽ ra những bản vẽ, chúng tôi kiến tạo những không gian hạnh phúc.

Hy vọng qua dự án của chị Hồng tại Bắc Ninh, bạn đã có thêm ý tưởng cho ngôi nhà tương lai của mình. Nếu bạn cũng đang ấp ủ một mẫu nhà phố 2 tầng tân cổ điển độc bản, đừng ngần ngại nhắn tin cho Techhome nhé!

Tổng thể mẫu nhà phố 2 tầng tân cổ điển


CÔNG TY CỔ PHẦN KIẾN TRÚC VÀ XÂY DỰNG TECHHOME

Để lại một bình luận

Email của bạn sẽ không được hiển thị công khai. Các trường bắt buộc được đánh dấu *

    Vui lòng nhấn nút YÊU CẦU TƯ VẤN và đợi 1 - 2 giây đến khi thấy thông báo thành công

    YÊU CẦU TƯ VẤN