Mẫu Nhà Ống 3 Tầng Đẹp Tại Bắc Ninh: Sự Kết Hợp Hoàn Hảo Giữa Thẩm Mỹ Và Công Năng

Bạn đang sở hữu một mảnh đất phố với diện tích khiêm tốn và đang loay hoay tìm kiếm một mẫu nhà ống 3 tầng đẹp vừa hiện đại, vừa thoáng đãng lại không bị lỗi mốt? Đừng tìm đâu xa, hôm nay Techhome sẽ đưa bạn ghé thăm công trình của anh Dũng tại Bắc Ninh – một “siêu phẩm” thực thụ từ đội ngũ KTS Techhome. Đây không chỉ là một ngôi nhà, mà là tổ ấm được “may đo” riêng cho những ai yêu thích sự tinh tế và tiện nghi.

Phối cảnh mặt tiền mẫu nhà ống 3 tầng đẹp kiến trúc hiện đại, ban công bo góc tinh tế tại Bắc Ninh.
Phối cảnh mặt tiền mẫu nhà ống 3 tầng đẹp kiến trúc hiện đại, ban công bo góc tinh tế tại Bắc Ninh.

1. Câu chuyện đằng sau mẫu nhà ống 3 tầng đẹp tại Bắc Ninh

Anh Dũng tìm đến Techhome với một trăn trở rất đời thường: “Nhà mình ở phố, đất không quá rộng nhưng muốn có đủ 3 phòng ngủ, phòng khách phải sang và đặc biệt là phải có không gian để thở, không được bí bách.” Sau nhiều lần thảo luận, phương án mã số 0163 đã ra đời, chinh phục hoàn toàn gia chủ ngay từ cái nhìn đầu tiên.

Việc thiết kế một mẫu nhà ống 3 tầng đẹp không khó, nhưng để nó thực sự “sống” và hài hòa với nhu cầu của gia đình mới là thử thách. Tại Techhome, chúng tôi không chỉ vẽ nhà, chúng tôi vẽ nên phong cách sống.

Góc nghiêng mẫu nhà ống 3 tầng đẹp

2. Phân tích chi tiết mặt bằng công năng: Tối ưu đến từng centimet

Một ngôi nhà đẹp trước hết phải là một ngôi nhà thông minh. Hãy cùng soi kỹ cách các KTS Techhome phân bổ không gian cho gia đình anh Dũng nhé.

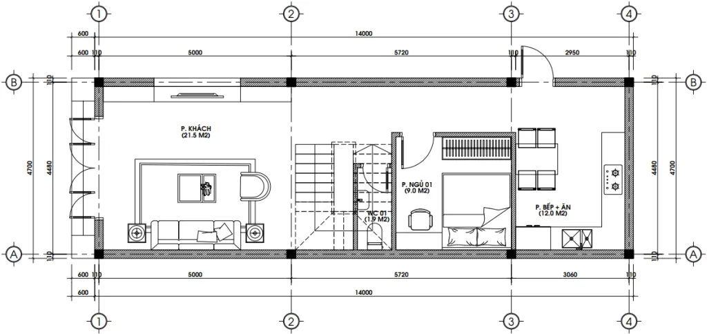
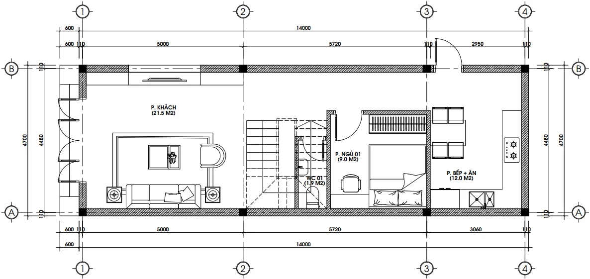
Tầng 1: Không gian sinh hoạt chung ấm cúng

Với tổng diện tích sàn 68.0m2, tầng 1 được thiết kế với chiều cao tầng lên tới 3.7m, tạo cảm giác cực kỳ thoáng đãng.

  • Phòng khách (21.5m2): Bước vào từ cửa chính là không gian đón khách rộng rãi. Với thiết kế này, bạn hoàn toàn có thể đặt một bộ sofa lớn mà vẫn có lối đi lại thoải mái.

  • Phòng bếp + Ăn (12.0m2): Được ngăn cách tinh tế với phòng khách, được đặt cuối nhà tạo sự riêng tư khi nấu nướng.

  • Phòng ngủ 01 (9.0m2): Đây là điểm cộng lớn cho mẫu nhà ống 3 tầng đẹp này, rất phù hợp cho người lớn tuổi trong gia đình không tiện leo cầu thang.

  • WC 01 (1.9m2): Bố trí gọn gàng dưới chân cầu thang để tiết kiệm diện tích.

  • Cầu thang: 21 bậc với chiều cao mỗi bậc 176mm, đảm bảo chuẩn phong thủy và độ dốc vừa phải.

Bản vẽ mặt bằng tầng 1 mẫu nhà ống 3 tầng đẹp diện tích 68m2 gồm phòng khách 21.5m2 và phòng bếp.
Bản vẽ mặt bằng tầng 1 mẫu nhà ống 3 tầng đẹp diện tích 68m2 gồm phòng khách 21.5m2 và phòng bếp.

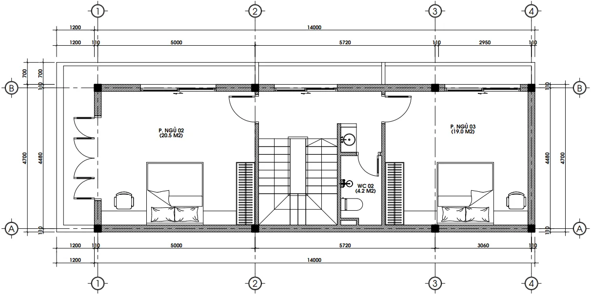
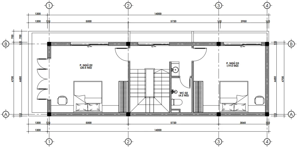
Tầng 2: Thế giới riêng tư lý tưởng

Tầng 2 tiếp tục duy trì diện tích 68.0m2 nhưng tập trung hoàn toàn cho việc nghỉ ngơi với chiều cao tầng 3.5m.

  • Phòng ngủ 02 (20.5m2): Một không gian Master thực thụ với ban công rộng, nơi bạn có thể nhâm nhi ly cafe mỗi sáng.

  • Phòng ngủ 03 (19.0m2): Diện tích cực kỳ thoải mái cho con cái .

  • WC 02 (4.2m2): Nhà vệ sinh chung rộng rãi, trang bị đầy đủ thiết bị hiện đại.

  • Hệ thống cầu thang 21 bậc với độ cao bậc 166mm giúp việc di chuyển giữa các tầng nhẹ nhàng hơn.

Bản vẽ mặt bằng tầng 2 mẫu nhà ống 3 tầng đẹp diện tích 68m2 gồm 2 phòng ngủ.
Bản vẽ mặt bằng tầng 2 mẫu nhà ống 3 tầng đẹp diện tích 68m2 gồm 2 phòng ngủ.

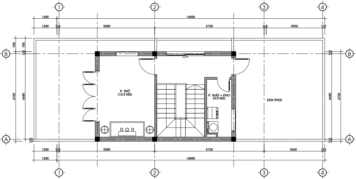
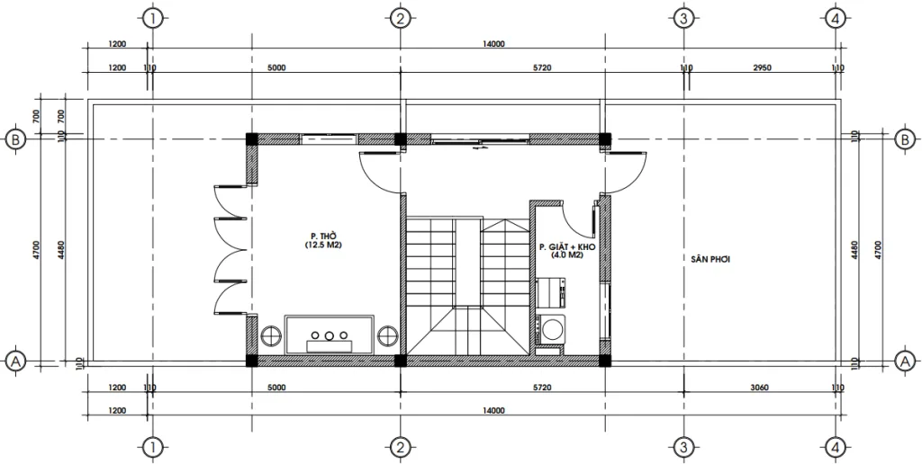
Tầng 3: Nơi giao thoa tâm linh và tiện ích

Tầng 3 có diện tích xây dựng 37.0m2, phần còn lại dành cho không gian ngoài trời.

  • Phòng thờ (12.5m2): Được đặt ở vị trí trang trọng nhất, hướng ra mặt tiền, đảm bảo sự yên tĩnh và tôn nghiêm. Đây là yếu tố không thể thiếu trong bất kỳ mẫu nhà ống 3 tầng đẹp nào của người Việt.

  • Phòng giặt + Kho (4.0m2): Giải quyết vấn đề lưu trữ đồ đạc lỉnh kỉnh.

  • Sân phơi: Rộng rãi, lộng gió, giúp quần áo luôn thơm tho mùi nắng.

Bản vẽ mặt bằng tầng 3 mẫu nhà ống 3 tầng đẹp diện tích 37m2 gồm phòng thờ.
Bản vẽ mặt bằng tầng 3 mẫu nhà ống 3 tầng đẹp diện tích 37m2 gồm phòng thờ.

3. Kiến trúc ngoại thất: Hiện đại, sang trọng và đầy sức sống

Nhìn vào phối cảnh 3D, bạn sẽ thấy đây là một mẫu nhà ống 3 tầng đẹp mang đậm phong cách kiến trúc hiện đại. Techhome đã sử dụng các đường nét hình khối vuông vắn nhưng không hề thô cứng nhờ những đường bo góc mềm mại ở phần ban công.

  • Vật liệu cao cấp: Sự kết hợp giữa đá ốp giả vân mây ở tầng 1 và gỗ nhựa ngoài trời tạo nên vẻ đẹp bền bỉ với thời gian.

  • Hệ thống cửa: Toàn bộ là cửa nhôm kính Xingfa cao cấp, giúp lấy sáng tối đa cho căn nhà. Bạn sẽ không bao giờ phải lo lắng về việc nhà phố bị tối hay bí.

  • Cây xanh: KTS đã khéo léo lồng ghép các khoảng xanh ở ban công mỗi tầng, mang lại nguồn năng lượng tích cực và không gian “chill” đúng nghĩa. Một mẫu nhà ống 3 tầng đẹp thì không thể thiếu hơi thở của thiên nhiên, đúng không nào?

Chính diện mẫu nhà ống 3 tầng đẹp

4. Tại sao bạn nên chọn Techhome để hiện thực hóa ước mơ?

Trên thị trường có rất nhiều đơn vị thiết kế, nhưng tại sao khách hàng như anh Dũng lại tin tưởng Công ty Cổ phần Kiến trúc và Xây dựng Techhome?

  1. Hồ sơ thiết kế tỉ mỉ: Như bạn thấy trong ảnh, từ bản vẽ mặt bằng đến chi tiết kỹ thuật đều cực kỳ rõ ràng, giúp nhà thầu thi công dễ dàng, tránh sai sót.

  2. Đội ngũ chuyên nghiệp: Được chủ trì bởi KTS cùng các kỹ sư dày dạn kinh nghiệm.

  3. Tối ưu chi phí: Chúng tôi tư vấn dựa trên ngân sách thực tế của bạn, cam kết không phát sinh vô lý.

  4. Hỗ trợ kỹ thuật 24/7: Số hotline 0364042222 – 0387603333 luôn sẵn sàng giải đáp mọi thắc mắc của chủ đầu tư trong quá trình xây dựng.

Thực tế, một mẫu nhà ống 3 tầng đẹp chỉ thực sự hoàn hảo khi nó được thi công đúng như bản vẽ. Techhome đồng hành cùng bạn từ lúc đặt bút ký hợp đồng cho đến khi chìa khóa trao tay.

Tổng thể mẫu nhà ống 3 tầng đẹp nhìn từ trên cao, bố trí hệ thống bồn nước và năng lượng mặt trời.
Tổng thể mẫu nhà ống 3 tầng đẹp nhìn từ trên cao, bố trí hệ thống bồn nước và năng lượng mặt trời.

5. Báo giá tham khảo thiết kế và thi công (Cập nhật 2026)

Để bạn dễ dàng hình dung và chuẩn bị tài chính cho một mẫu nhà ống 3 tầng đẹp tương tự, Techhome xin đưa ra bảng giá tham khảo như sau:

Hạng mục Đơn giá tham khảo Ghi chú
Thiết kế kiến trúc 108.000 VNĐ/m2

Bao gồm hồ sơ thi công, 3D, điện nước.

Thi công phần thô 3.800.000 – 4.200.000 VNĐ/m2 Tùy vào giá vật liệu thời điểm xây dựng.
Thi công trọn gói 7.000.000 – 8.000.000 VNĐ/m2 Chìa khóa trao tay, vật liệu khá – tốt.

Lưu ý: Đây chỉ là mức chi phí ước tính. Để nhận được báo giá chính xác và chi tiết nhất cho công trình của bạn, vui lòng liên hệ trực tiếp với chúng tôi. Hoặc để tìm hiểu rõ hơn về tiêu chuẩn vật liệu xây dựng và các yếu tố ảnh hưởng đến chi phí, bạn có thể tham khảo thêm tại các bài viết chuyên sâu về vật liệu xây dựng cao cấp trên Wikipedia.

Tổng thể mẫu nhà ống 3 tầng đẹp

6. Lời kết

Ngôi nhà không chỉ là nơi để che nắng che mưa, mà là nơi lưu giữ những khoảnh khắc hạnh phúc của cả gia đình. Hy vọng mẫu nhà ống 3 tầng đẹp của anh Dũng tại Bắc Ninh đã tiếp thêm cảm hứng cho kế hoạch xây dựng tổ ấm của bạn.

Nếu bạn đang cần một bản vẽ vừa có tâm, vừa có tầm, hãy để Techhome đồng hành. Chúng tôi tự tin biến mọi ý tưởng của bạn thành hiện thực, tạo nên những mẫu nhà ống 3 tầng đẹp mang bản sắc riêng.

CÔNG TY CỔ PHẦN KIẾN TRÚC VÀ XÂY DỰNG TECHHOME

🏠 Website: https://nhadeptechhome.vn/

☎️ Hotline: 036.273.2222

📍 Địa chỉ: B1.1 LK18 Ô 3 – KĐT Thanh Hà – Cienco 5 – Thanh Oai- Hà Nội.

Để lại một bình luận

Email của bạn sẽ không được hiển thị công khai. Các trường bắt buộc được đánh dấu *

    Vui lòng nhấn nút YÊU CẦU TƯ VẤN và đợi 1 - 2 giây đến khi thấy thông báo thành công

    YÊU CẦU TƯ VẤN