Ngắm Mẫu Thiết Kế Nội Thất Hiện Đại Nhà Mái Nhật 3 Phòng Ngủ Tại Bắc Ninh – CĐT Anh Mạnh Hà

Chào các bạn! Hôm nay, Kiến trúc Techhome muốn dẫn các bạn dạo quanh một vòng căn nhà “trong mơ” mà đội ngũ chúng mình vừa hoàn thiện khâu thiết kế cho gia đình anh Mạnh Hà.

Nếu bạn đang sở hữu một mảnh đất rộng và muốn xây nhà theo kiểu mái Nhật nhưng bên trong phải thật “sang – xịn – mịn” thì đừng bỏ qua bài viết này. Đây không chỉ là một thiết kế nội thất hiện đại, mà là tâm huyết để tạo nên một không gian sống đậm chất cá nhân.

thiết kế nội thất hiện đại nhà mái nhật 1 tầng

1. Tổng quan mặt bằng: Sự logic trong cách phân chia không gian

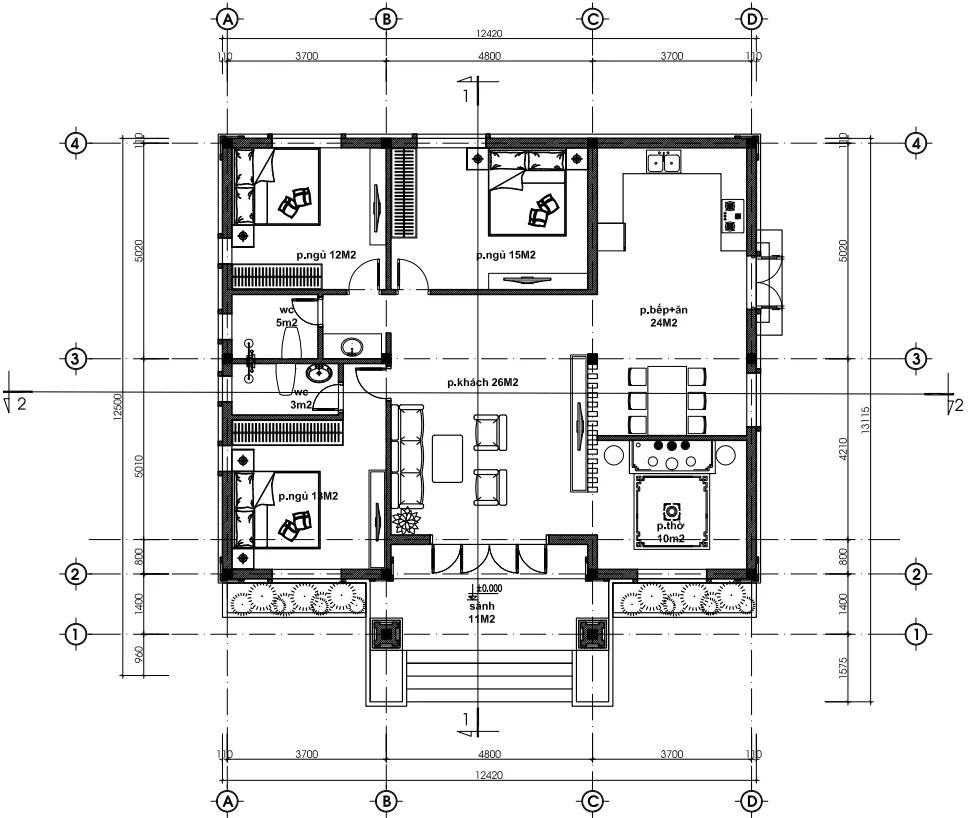
Trước khi xem ảnh 3D, chúng ta hãy nhìn qua bản vẽ kỹ thuật một chút. Căn nhà của anh Hà có diện tích xây dựng khoảng 125m², được bố trí cực kỳ khoa học trên nền tảng nhà cấp 4 mái Nhật.

Bản thiết kế bao gồm:

  • Phòng khách: 26m² – Nằm ngay trung tâm, là “trái tim” của ngôi nhà.

  • Phòng bếp & ăn: 24m² – Thiết kế mở, tạo sự thông thoáng.

  • 3 Phòng ngủ: Diện tích từ 12m² đến 15m², đủ không gian riêng tư cho từng thành viên.

  • Phòng thờ: 10m² – Được đặt ở vị trí trang nghiêm nhưng vẫn có sự liên kết với không gian chung.

Sự kết hợp giữa kiến trúc ngoại thất truyền thống và thiết kế nội thất hiện đại bên trong chính là điểm mấu chốt tạo nên sự đẳng cấp cho công trình này.

Bản vẽ mặt bằng bố trí nội thất nhà mái Nhật 3 phòng ngủ diện tích 125m2
Bản vẽ mặt bằng bố trí nội thất nhà mái Nhật 3 phòng ngủ diện tích 125m2

2. Phòng khách: Đẳng cấp đến từ sự tối giản

Bước từ sảnh chính 11m² vào, bạn sẽ bị choáng ngợp bởi không gian phòng khách. Anh Hà là một người trẻ, thích sự gọn gàng nhưng phải tinh tế. Chính vì thế, Techhome đã tư vấn phong cách thiết kế nội thất hiện đại với tông màu xám, trắng và gỗ trầm làm chủ đạo.

Điểm nhấn đáng chú ý:

  • Hệ vách tivi: Không dùng kệ rời truyền thống, chúng mình sử dụng hệ tủ kịch trần kết hợp vách nan gỗ. Điều này không chỉ giúp tối ưu diện tích lưu trữ mà còn tạo cảm giác trần nhà cao hơn.

  • Ánh sáng: Ngoài đèn âm trần, hệ đèn led thanh nhôm định hình chạy dọc vách tường tạo nên những đường nét ánh sáng cực kỳ nghệ thuật.

  • Nội thất: Bộ sofa chữ L màu trắng kem kết hợp cùng bàn trà đá marble vân mây tạo nên sự tương phản nhẹ nhàng nhưng rất sang.

Nội thất phòng khách hiện đại 26m2 sang trọng với vách nan gỗ và sofa trắng.
Nội thất phòng khách hiện đại 26m2 sang trọng với vách nan gỗ và sofa trắng.

3. Phòng bếp: Nơi “giữ lửa” đầy tiện nghi

Với Techhome, bếp không chỉ là nơi nấu ăn mà còn là nơi gắn kết gia đình. Trong mẫu thiết kế nội thất hiện đại này, phòng bếp của anh Hà được trang bị đầy đủ các thiết bị thông minh.

  • Tủ bếp: Sử dụng chất liệu MDF lõi xanh chống ẩm phủ Acrylic bóng gương cho tủ trên và Laminate vân gỗ cho tủ dưới. Sự phối hợp này giúp bếp vừa sạch sẽ, vừa ấm cúng.

  • Thiết bị: Tủ lạnh Side-by-side Haier, lò nướng, lò vi sóng được thiết kế âm tủ cực kỳ gọn gàng.

  • Quầy bar nhỏ: Là nơi anh Hà có thể nhâm nhi ly rượu vang sau một ngày làm việc căng thẳng.

Phải thừa nhận rằng, việc áp dụng thiết kế nội thất hiện đại vào gian bếp giúp người nội trợ cảm thấy hứng thú hơn rất nhiều. Mọi thứ đều nằm trong tầm tay, tinh gọn và khoa học.

Thiết kế nội thất phòng bếp hiện đại 24m2 với tủ bếp kịch trần và thiết bị âm tủ.
Thiết kế nội thất phòng bếp hiện đại 24m2 với tủ bếp kịch trần và thiết bị âm tủ.

4. Phòng ngủ: Không gian cá nhân hóa

Căn nhà có 3 phòng ngủ, và mỗi phòng lại mang một màu sắc riêng nhưng vẫn thống nhất trong ngôn ngữ thiết kế nội thất hiện đại.

Phòng ngủ Master : Nơi dành cho vợ chồng anh Hà với hệ cửa sổ lớn đón ánh sáng tự nhiên. Điểm đặc biệt là vách đầu giường được ốp nỉ kết hợp đèn thả trần decor, tạo không gian lãng mạn như khách sạn 5 sao.

Phòng ngủ cho con (Giường tầng thông minh) : Đây có lẽ là phần “chất” nhất trong bản vẽ. Techhome thiết kế hệ giường tầng tích hợp. Tầng dưới là giường đôi rộng rãi, tầng trên là không gian chơi hoặc ngủ cho bé. Đặc biệt, chiếc đồng hồ điện tử khổng lồ gắn tường không chỉ để xem giờ mà còn là món đồ decor cực lạ mắt. Đây chính là minh chứng cho việc thiết kế nội thất hiện đại có thể biến những diện tích nhỏ trở nên đa năng.

Mẫu giường tầng thông minh trong thiết kế nội thất phòng ngủ trẻ em hiện đại.
Mẫu giường tầng thông minh trong thiết kế nội thất phòng ngủ trẻ em hiện đại.

5. Phòng thờ: Sự giao thoa giữa truyền thống và hiện đại

Dù tổng thể căn nhà theo hướng tân tiến, nhưng khu vực tâm linh vẫn được anh Hà và Techhome chăm chút theo lối truyền thống để giữ gìn nét văn hóa.

  • Án gian: Được chạm khắc tinh xảo từ gỗ tự nhiên cao cấp.

  • Vách hậu: Sử dụng vách CNC chữ Vạn và tranh đèn trúc chỉ vàng rực rỡ, mang lại sự ấm cúng và phong thủy tốt cho gia chủ.

Dù vậy, khi đặt cạnh không gian chung, nó vẫn không bị “vênh” nhờ cách xử lý màu sắc gỗ đồng điệu với hệ thống thiết kế nội thất hiện đại của toàn nhà.

Nội thất phòng thờ 10m2 trang nghiêm với án gian gỗ và tranh trúc chỉ.
Nội thất phòng thờ 10m2 trang nghiêm với án gian gỗ và tranh trúc chỉ.

6. Báo giá tham khảo thi công nội thất (Cập nhật 2026)

Để các bạn dễ hình dung và chuẩn bị ngân sách, Techhome xin đưa ra bảng báo giá dự kiến cho gói thiết kế nội thất hiện đại tương tự nhà anh Hà:

Hạng mục Chất liệu chính Đơn giá dự kiến (VNĐ)
Phòng khách Vách gỗ MDF An Cường, Sofa da, Bàn trà đá 80.000.000 – 120.000.000
Phòng bếp Tủ bếp Acrylic/Laminate, Phụ kiện Eurogold 60.000.000 – 90.000.000
Phòng ngủ Master Giường, tủ quần áo kịch trần, bàn trang điểm 45.000.000 – 65.000.000
Phòng ngủ con Giường tầng thông minh, bàn học 35.000.000 – 50.000.000
Phòng thờ Gỗ gõ đỏ/gỗ hương, tranh trúc chỉ 40.000.000 – 70.000.000
Tổng cộng ~260.000.000 – 395.000.000

Lưu ý: Đây chỉ là mức chi phí ước tính. Để nhận được báo giá chính xác và chi tiết nhất cho công trình của bạn, vui lòng liên hệ trực tiếp với chúng tôi. Hoặc để tìm hiểu rõ hơn về tiêu chuẩn vật liệu xây dựng và các yếu tố ảnh hưởng đến chi phí, bạn có thể tham khảo thêm tại các bài viết chuyên sâu về vật liệu xây dựng cao cấp trên Wikipedia.

thiết kế nội thất hiện đại


7. Tại sao nên chọn Techhome cho thiết kế nội thất hiện đại?

Trên thị trường có rất nhiều đơn vị, nhưng tại Techhome, chúng mình cam kết:

  1. Sát thực tế: Bản vẽ 3D thế nào, thi công ra đúng như vậy. Chúng mình không vẽ “trên mây” để rồi ra thực tế không làm được.

  2. Tối ưu chi phí: Với kinh nghiệm dày dặn, chúng mình biết cách chọn vật liệu để có thiết kế nội thất hiện đại đẹp nhất với giá thành hợp lý nhất.

  3. Hợp phong thủy: Kiến trúc sư của Techhome không chỉ giỏi về thẩm mỹ mà còn am hiểu về hướng nắng, hướng gió và cung mệnh gia chủ.

Việc đầu tư vào thiết kế nội thất hiện đại ngay từ đầu sẽ giúp bạn tránh được những chi phí sửa chữa, thay thế lặt vặt sau này. Một căn nhà đẹp là một căn nhà có sự tính toán kỹ lưỡng.

thiết kế nội thất hiện đại


8. Kết luận

Căn nhà của anh Mạnh Hà là một ví dụ điển hình cho xu hướng sống mới: Bên ngoài bình yên với mái Nhật, bên trong năng động với thiết kế nội thất hiện đại. Nếu bạn cũng muốn sở hữu một không gian “đáng sống” như thế này, đừng ngần ngại liên hệ với chúng mình.

Thông tin liên hệ:

  • Kiến trúc Techhome

  • Hotline: 036.273.2222

  • Website: https://nhadeptechhome.vn/

  • Địa chỉ: B1.1 LK18 Ô 3 – KĐT Thanh Hà – Cienco 5 – Thanh Oai- Hà Nội.

Sự tin tưởng của khách hàng chính là động lực để Techhome tiếp tục sáng tạo nên những mẫu thiết kế nội thất hiện đại dẫn đầu xu hướng. Hãy để chúng mình cùng bạn xây dựng tổ ấm!

Để lại một bình luận

Email của bạn sẽ không được hiển thị công khai. Các trường bắt buộc được đánh dấu *

    Vui lòng nhấn nút YÊU CẦU TƯ VẤN và đợi 1 - 2 giây đến khi thấy thông báo thành công

    YÊU CẦU TƯ VẤN