Bạn đang tìm kiếm một mẫu nhà phố 2 tầng hiện đại tại Hải Phòng để hiện thực hóa giấc mơ về một tổ ấm vừa sang, vừa tiện? Đừng bỏ qua bài viết này. Hôm nay, Techhome sẽ dẫn bạn về phố Trần Liễu – Hải Phòng để tham quan thực tế công trình của gia đình anh Khánh – một siêu phẩm kiến trúc hiện đại, tối ưu công năng trên diện tích 243m2.
1. Cái “duyên” của Techhome và anh Khánh tại đất Cảng
Hải Phòng luôn là vùng đất của những gia chủ có gu thẩm mỹ rất riêng: thích sự phóng khoáng nhưng phải thực tế và bền bỉ. Anh Khánh tìm đến Techhome qua website nhadeptechhome.vn với một yêu cầu khá “gắt”: “Nhà anh diện tích đất dài (7x21m), anh muốn một không gian thoáng nhưng phải kín đáo, hiện đại nhưng không được lỗi mốt.”
Và thế là, đội ngũ KTS Techhome đã bắt tay vào thiết kế. Kết quả không chỉ là một bản vẽ, mà là một mẫu nhà phố 2 tầng hiện đại tại Hải Phòng nhận được cái gật đầu mãn nguyện ngay từ phương án đầu tiên.

2. Phân tích kiến trúc: Khi sự tối giản lên ngôi
Nhìn từ bên ngoài, ngôi nhà của anh Khánh gây ấn tượng bởi những khối hình học vuông vức, khỏe khoắn. Đây chính là đặc trưng của mẫu nhà phố 2 tầng hiện đại tại Hải Phòng mà Techhome đang theo đuổi.
-
Vật liệu ngoại thất: Chúng tôi ưu tiên sử dụng gạch ốp giả đá tông xám trung tính. Loại gạch này không chỉ sang mà còn cực kỳ sạch, bất chấp thời tiết mưa ẩm đặc trưng của Hải Phòng.
-
Điểm nhấn gỗ: Để làm mềm những khối bê tông, phần trần ban công và các diện tường trang trí được ốp nhựa giả gỗ cao cấp. Sự kết hợp giữa xám đá và nâu gỗ tạo nên cảm giác ấm áp ngay từ cái nhìn đầu tiên.
-
Hệ thống cổng và tường rào: Anh em có thể thấy, hệ cổng được thiết kế đồng điệu với kiến trúc nhà. Sử dụng nan sắt sơn tĩnh điện kết hợp họa tiết gỗ, vừa đảm bảo an ninh, vừa tạo được sự thông thoáng cho phần sân trước.
Để tìm hiểu rõ hơn về tiêu chuẩn vật liệu xây dựng và các yếu tố ảnh hưởng đến chi phí, bạn có thể tham khảo thêm tại các bài viết chuyên sâu về vật liệu xây dựng cao cấp trên Wikipedia.

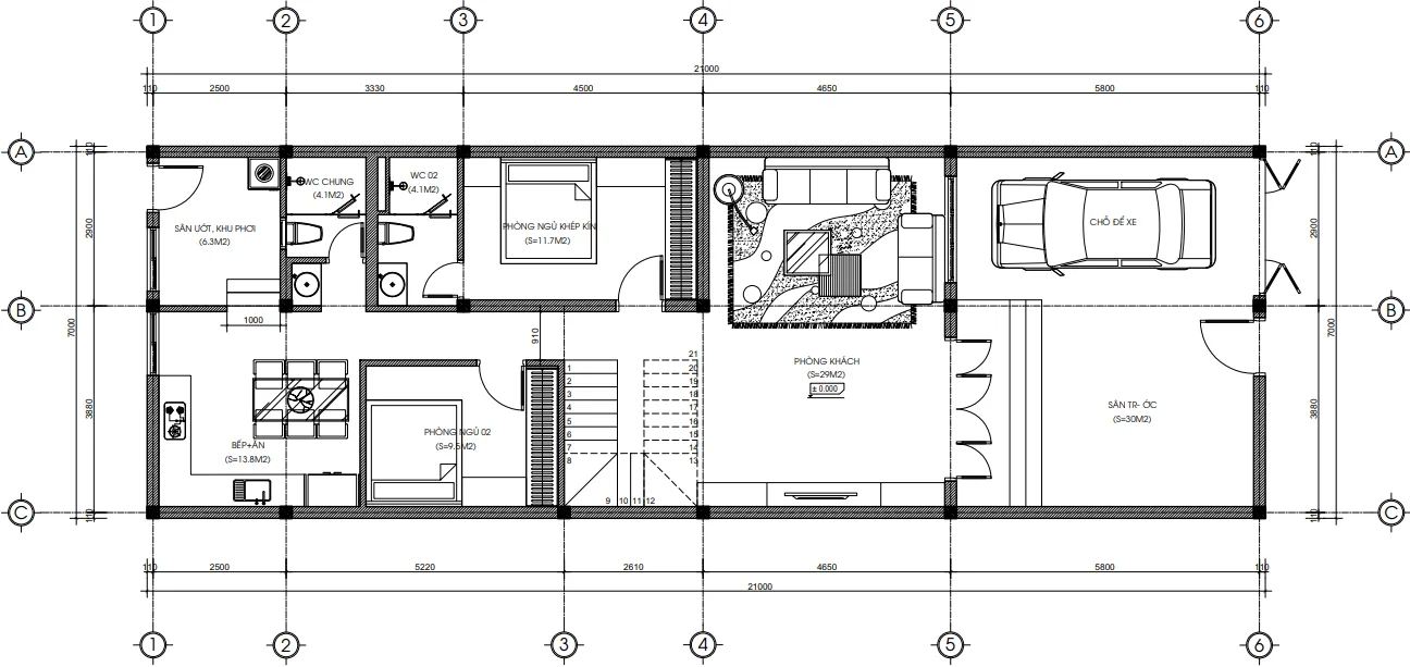
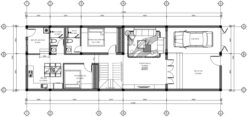
3. Mặt bằng công năng Tầng 1: Không gian sống “không góc chết” (147m2)
Với diện tích sàn tầng 1 lên đến 147m2, bài toán đặt ra là phân bổ sao cho hợp lý, tránh việc nhà quá dài gây cảm giác “hun hút”.
-
Sân trước & Khu vực để xe: Khoảng sân rộng 30m2 đủ sức chứa một chiếc oto 7 chỗ và vài chiếc xe máy cho khách khứa.
-
Phòng khách (29m2): Bước qua cửa chính là không gian tiếp khách rộng rãi. Điểm đặc biệt là hệ cửa kính lớn giúp lấy trọn ánh sáng tự nhiên từ sân trước.
-
Phòng ngủ khép kín (11.7m2): Đây là phòng ngủ dành cho gia chủ, có WC riêng tư. Việc bố trí phòng ngủ tầng 1 là xu hướng cực thịnh trong các mẫu nhà phố 2 tầng hiện đại tại Hải Phòng hiện nay để thuận tiện đi lại.
- Thêm 1 phòng ngủ 9,5m2 ở tầng 1 dành cho ông bà hoặc gia chủ tiện lợi, tránh việc leo cầu thang.
-
Bếp và bàn ăn: Khu vực này được đặt cuối nhà, tạo sự riêng tư khi gia đình dùng bữa.
-
Sân sau & Khu phơi: Techhome luôn chú trọng đến sự đối lưu không khí. Khu sân ướt phía sau không chỉ là nơi sơ chế thực phẩm mà còn là “giếng trời” tự nhiên cho cả ngôi nhà.

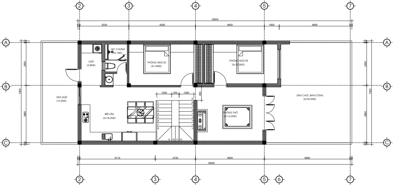
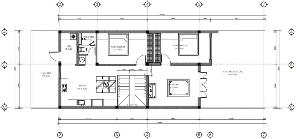
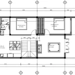
4. Tầng 2: Nơi nghỉ ngơi và tâm linh (96m2)
Nếu tầng 1 là sự náo nhiệt, tiếp đãi thì tầng 2 là khoảng lặng riêng tư của gia đình.
-
Phòng thờ (16.2m2): Được đặt ở vị trí trang trọng nhất, hướng ra ban công mặt tiền. Đây là không gian tâm linh linh thiêng, đảm bảo sự yên tĩnh và thông thoáng.
-
Hệ thống 2 phòng ngủ: Các phòng ngủ đều có cửa sổ đón sáng. Diện tích được tối ưu để kê đủ giường , tủ quần áo và bàn làm việc.
-
Sân chơi & Ban công rộng: Đây là góc “chill” mỗi tối của gia đình anh Khánh. Với lan can kính cường lực, view từ đây ra phố Trần Liễu cực kỳ thoáng đãng.

5. Những thông số kỹ thuật “biết nói”
Để tạo nên một mẫu nhà phố 2 tầng hiện đại tại Hải Phòng chuẩn chỉnh, Techhome tính toán đến từng milimet:
-
Chiều cao tầng 1: 3.7m. Đây là chiều cao lý tưởng để làm trần thạch cao mà nhà vẫn thoáng.
-
Số bậc cầu thang: 21 bậc. Trong phong thủy, 21 rơi vào cung “Sinh”, mang lại may mắn và sức khỏe cho gia chủ.
-
Chiều cao bậc: 169mm. Độ cao này giúp việc leo cầu thang trở nên nhẹ nhàng, không bị mỏi gối, đặc biệt an toàn cho trẻ em.

6. Tại sao Techhome lại được các gia chủ Hải Phòng tin tưởng?
Thực tế, có rất nhiều đơn vị thiết kế, nhưng để tạo ra một mẫu nhà phố 2 tầng hiện đại tại Hải Phòng vừa đúng ý gia chủ, vừa đúng kỹ thuật không phải dễ.
-
Sát sao thực tế: Chúng tôi không chỉ vẽ trên máy tính. KTS Techhome sẽ xuống tận khu đất ở Trần Liễu để đo đạc, xem hướng nắng, hướng gió.
-
Minh bạch chi phí: Làm việc với Techhome, bạn sẽ không lo bị “đội vốn”. Mọi thứ từ gạch ốp, thiết bị vệ sinh đều được kê khai rõ ràng.
-
Hỗ trợ kỹ thuật 24/7: Hotline 0364.042.222 luôn sẵn sàng giải đáp mọi thắc mắc của anh em trong suốt quá trình thi công.

7. Báo giá tham khảo xây dựng mẫu nhà phố 2 tầng hiện đại tại Hải Phòng
Techhome hiểu rằng, ngoài vẻ đẹp thì chi phí là điều anh em quan tâm nhất. Dưới đây là bảng dự toán sơ bộ dựa trên quy mô 243m2 của nhà anh Khánh (áp dụng đơn giá năm 2026 tại Hải Phòng):
| Hạng mục | Đơn giá tham khảo (VNĐ/m2) | Tổng chi phí dự kiến (VNĐ) |
| Thiết kế kiến trúc | 108.000 | 26.244.000 |
| Thi công phần thô & Nhân công | 3.800.000 – 4.200.000 | 920.000.000 – 1.020.000.000 |
| Xây nhà trọn gói (Chìa khóa trao tay) | 6.500.000 – 7.500.000 | 1.580.000.000 – 1.820.000.000 |
Lưu ý: Báo giá trên chỉ mang tính chất tham khảo tại thời điểm bài viết. Chi phí thực tế sẽ phụ thuộc vào chủng loại vật liệu và thời điểm khởi công. Để có báo giá chính xác cho mẫu nhà phố 2 tầng hiện đại tại Hải Phòng của bạn, hãy liên hệ trực tiếp với Techhome.

8. Đánh giá từ gia chủ – Anh Khánh (Hải Phòng)
“Lúc đầu cũng lo lắm, vì đất mình dài mà bề ngang có 7m. Nhưng khi nhận bản phối cảnh mẫu nhà phố 2 tầng hiện đại tại Hải Phòng từ Techhome, cả nhà mình đều ưng. Nhất là cái khoảng sân thượng và cách bố trí phòng ngủ tầng 1 cho bà nội, rất tinh tế và tâm lý.”
Ngôi nhà không chỉ là nơi để che nắng che mưa, nó là niềm tự hào của một đời người. Mẫu nhà phố 2 tầng hiện đại tại Hải Phòng của anh Khánh là minh chứng cho sự kết hợp giữa tâm hồn gia chủ và óc sáng tạo của KTS.
Nếu bạn thích phong cách này, đừng ngần ngại nhắn tin cho Techhome. Chúng mình luôn ở đây để biến ý tưởng của bạn thành những viên gạch vững chãi trên đất Cảng!
CÔNG TY CỔ PHẦN KIẾN TRÚC VÀ XÂY DỰNG TECHHOME
🏠 Website: https://nhadeptechhome.vn/
☎️ Hotline: 036.273.2222
📍 Địa chỉ: B1.1 LK18 Ô 3 – KĐT Thanh Hà – Cienco 5 – Thanh Oai- Hà Nội.
