Bạn đang sở hữu một mảnh đất ở quê và muốn xây dựng một không gian sống vừa ấm cúng, vừa sang trọng như biệt thự phố? Bạn phân vân không biết bố trí công năng thế nào để tối ưu diện tích? Hôm nay, TechHome xin giới thiệu đến bạn một “siêu phẩm” : Mẫu nhà cấp 4 mái Nhật 3 phòng ngủ của gia đình anh Điệp tại Như Quỳnh, Hưng Yên. Đây là mẫu nhà đang “làm mưa làm gió” trên các diễn đàn kiến trúc bởi vẻ ngoài tinh tế và nội thất cực kỳ khoa học.
1. Câu chuyện về ngôi nhà của anh Điệp tại Như Quỳnh
Khi tìm đến TechHome, anh Điệp chia sẻ rằng anh muốn có một ngôi nhà mà ở đó, mọi thành viên trong gia đình đều cảm thấy thoải mái nhất. Không cần quá cao tầng để tránh việc leo trèo vất vả, nhưng phải đủ rộng rãi và hiện đại. Sau nhiều lần trao đổi, đội ngũ kiến trúc sư tại TechHome đã phác thảo nên Mẫu nhà cấp 4 mái Nhật 3 phòng ngủ với tổng diện tích sàn là 145m2.
Ngôi nhà không chỉ là nơi để che mưa che nắng, mà còn thể hiện cái “gu” rất riêng của gia chủ. Tại Hưng Yên, giữa những nếp nhà truyền thống, công trình của anh Điệp hiện lên như một điểm sáng đầy kiêu hãnh với phong cách kiến trúc hiện đại, tối giản nhưng vô cùng cuốn hút.

2. Kiến trúc ngoại thất: Sự kết hợp hoàn hảo giữa màu sắc và vật liệu
Nhìn vào phối cảnh 3D, điểm ấn tượng đầu tiên chính là hệ mái Nhật màu xám đen sang trọng. Khác với mái Thái có độ dốc lớn, Mẫu nhà cấp 4 mái Nhật 3 phòng ngủ này có độ dốc vừa phải, giúp thoát nước tốt nhưng vẫn giữ được vẻ thanh thoát, nhẹ nhàng.
-
Tông màu chủ đạo: Ngôi nhà sử dụng tone màu ghi xám kết hợp với trắng sứ. Đây là cặp bài trùng trong kiến trúc hiện đại, vừa bền màu với thời gian, vừa tạo cảm giác sạch sẽ, cao ráo.
-
Vật liệu ốp mặt tiền: TechHome sử dụng gạch ốp giả đá vân mây cho phần mặt tiền. Những mảng tường xám đá xen kẽ với các đường kẻ chỉ âm tường tạo nên chiều sâu cho tổng thể công trình.
-
Hệ thống cửa: Toàn bộ cửa chính và cửa sổ đều sử dụng nhôm kính Xingfa cao cấp. Điều này giúp tận dụng tối đa ánh sáng tự nhiên, khiến ngôi nhà luôn thông thoáng và tràn đầy năng lượng.
Thực tế, việc lựa chọn Mẫu nhà cấp 4 mái Nhật 3 phòng ngủ không chỉ giúp gia chủ tiết kiệm chi phí xây dựng hơn so với nhà cao tầng mà còn mang lại vẻ đẹp cân đối, hài hòa với cảnh quan sân vườn xung quanh.

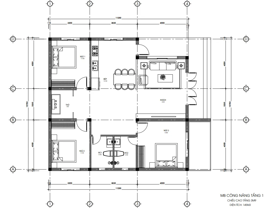
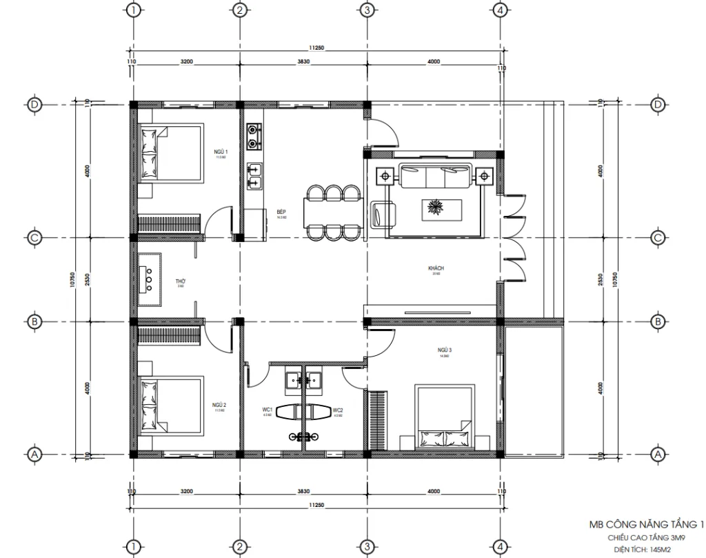
3. Bản vẽ mặt bằng công năng: Tối ưu đến từng centimet
Với diện tích 145m2 và chiều cao tầng lý tưởng 3,9m, các kiến trúc sư của TechHome đã bố trí không gian cực kỳ hợp lý như sau:
-
Phòng khách (20m2): Nằm ngay sau sảnh chính, là không gian rộng mở để tiếp đón khách khứa.
-
Phòng thờ (3m2): Được đặt ở vị trí trang trọng, tách biệt một chút để đảm bảo sự yên tĩnh và tôn nghiêm.
-
Khu vực bếp và phòng ăn (14,5m2): Thiết kế dạng mở, nối liền với phòng khách tạo cảm giác không gian rộng mênh mông.
-
3 Phòng ngủ:
-
Phòng ngủ 1 (11,5m2) dành cho con.
-
Phòng ngủ 2 (11,5m2) cũng dành cho con hoặc khách.
-
Phòng ngủ 3 (14,5m2) là phòng master rộng rãi dành cho vợ chồng anh Điệp, kết hợp Wc khép kín tiện lợi.
-
-
Hệ thống vệ sinh: Bao gồm 2 nhà vệ sinh (WC1 và WC2) được bố trí kín đáo nhưng thuận tiện cho sinh hoạt chung và riêng.
Việc sắp xếp các phòng trong Mẫu nhà cấp 4 mái Nhật 3 phòng ngủ này tuân thủ nguyên tắc phong thủy: “Tọa cát, hướng cát”, giúp gia chủ đón tài lộc và bình an.

4. Tại sao Mẫu nhà cấp 4 mái Nhật 3 phòng ngủ lại là xu hướng năm 2026?
Không phải ngẫu nhiên mà từ khóa Mẫu nhà cấp 4 mái Nhật 3 phòng ngủ lại đứng top tìm kiếm trên Facebook và TikTok. Có 3 lý do chính:
Sự tiện nghi: Tất cả các phòng đều nằm trên một mặt sàn, giúp các thành viên dễ dàng tương tác với nhau. Đặc biệt gia đình có người già và trẻ nhỏ sẽ rất an toàn khi di chuyển.
Chi phí hợp lý: Thay vì đổ dồn tiền xây cao tầng để bỏ trống phòng, gia chủ tập trung vào chất lượng vật liệu và nội thất cho một mặt sàn, từ đó nâng tầm đẳng cấp không gian sống.
Khả năng chống nóng, chống thấm: Hệ mái Nhật với kết cấu nhiều lớp giúp điều hòa nhiệt độ cực tốt, mùa hè mát mẻ, mùa đông ấm áp.
Nếu bạn đang tìm kiếm một thiết kế vừa thực dụng vừa thẩm mỹ, thì Mẫu nhà cấp 4 mái Nhật 3 phòng ngủ diện tích từ 120m2 – 150m2 là lựa chọn không thể bỏ qua.
5. Báo giá chi tiết xây dựng (Tham khảo)
Tại TechHome, chúng tôi luôn minh bạch về tài chính để khách hàng yên tâm. Với Mẫu nhà cấp 4 mái Nhật 3 phòng ngủ diện tích 145m2 của anh Điệp, đơn giá dự kiến như sau:
Chi phí thiết kế
-
Gói kiến trúc + kết cấu + điện nước: 108.000đ/m2.
-
Tổng chi phí thiết kế: 15.660.000 VNĐ.
Chi phí thi công hoàn thiện (Chìa khóa trao tay)
-
Suất đầu tư trung bình khá: 6.500.000đ – 7.000.000đ/m2.
-
Tổng chi phí xây dựng: 145m2 x 6.500.000 = 950 triệu đồng (Chưa bao gồm nội thất rời và sân vườn).
-
Nếu sử dụng vật liệu cao cấp (đá tự nhiên, gỗ quý, thiết bị thông minh), chi phí có thể dao động từ 1,1 – 1,3 tỷ đồng.
Lưu ý: Đây chỉ là mức chi phí ước tính. Để nhận được báo giá chính xác và chi tiết nhất cho công trình của bạn, vui lòng liên hệ trực tiếp với chúng tôi. Hoặc để tìm hiểu rõ hơn về tiêu chuẩn vật liệu xây dựng và các yếu tố ảnh hưởng đến chi phí, bạn có thể tham khảo thêm tại các bài viết chuyên sâu về vật liệu xây dựng cao cấp trên Wikipedia.

6. Góc nhìn chuyên gia: Những lưu ý “vàng” khi xây dựng
Với kinh nghiệm hàng trăm công trình, chuyên gia của TechHome có một vài lời khuyên dành cho bạn khi chọn Mẫu nhà cấp 4 mái Nhật 3 phòng ngủ:
-
Đừng tiết kiệm diện tích cửa sổ: Hãy dùng cửa nhôm kính lớn để “ăn gian” diện tích và lấy sáng. Ngôi nhà cấp 4 nếu thiếu sáng sẽ rất dễ bị ẩm mốc.
-
Chú trọng chiều cao tầng: Với nhà mái Nhật, chiều cao tầng khoảng 3,6m đến 3,9m là đẹp nhất. Thấp quá sẽ bị bí, cao quá sẽ làm mất cân đối với hệ mái Nhật phía trên.
-
Lựa chọn đơn vị uy tín: Hồ sơ thiết kế kỹ thuật thi công rất quan trọng. Một bản vẽ chi tiết sẽ giúp thợ vườn không làm sai kết cấu, tránh nứt nẻ về sau.
Thiết kế Mẫu nhà cấp 4 mái Nhật 3 phòng ngủ của anh Điệp là minh chứng cho việc: Nhà đẹp không nhất thiết phải cao tầng, quan trọng là sự tinh tế trong cách phối màu và khoa học trong cách chia phòng.
7. Giải pháp sân vườn cho nhà cấp 4 mái Nhật
Một điểm cộng cho Mẫu nhà cấp 4 mái Nhật 3 phòng ngủ chính là không gian sân vườn xung quanh. Với nhà anh Điệp, TechHome tư vấn lát gạch sân màu xám đồng điệu với mái nhà, kết hợp với các bồn hoa sát chân tường. Một vài cây bonsai hay tiểu cảnh nước phía trước sảnh sẽ làm ngôi nhà sinh động hơn rất nhiều.
Khi bạn sống trong một ngôi nhà có khoảng sân xanh mát, cảm giác mệt mỏi sau ngày dài làm việc sẽ tan biến ngay lập tức. Đó là giá trị tinh thần mà Mẫu nhà cấp 4 mái Nhật 3 phòng ngủ mang lại.

8. Quy trình làm việc chuyên nghiệp tại TechHome
Để có được một ngôi nhà như ý, TechHome luôn tuân thủ quy trình chặt chẽ:
-
Khảo sát hiện trạng khu đất tại Hưng Yên hoặc các tỉnh thành khác.
-
Lên ý tưởng mặt bằng công năng theo nhu cầu của gia đình.
-
Dựng phối cảnh 3D ngoại thất Mẫu nhà cấp 4 mái Nhật 3 phòng ngủ.
-
Triển khai hồ sơ kỹ thuật thi công (kiến trúc, kết cấu, điện nước).
-
Giám sát tác giả, hỗ trợ kỹ thuật trong suốt quá trình xây dựng.
Sự hài lòng của anh Điệp chính là động lực để đội ngũ KTS và các cộng sự không ngừng sáng tạo thêm nhiều Mẫu nhà cấp 4 mái Nhật 3 phòng ngủ độc đáo hơn nữa.

9. Kết luận
Ngôi nhà của anh Điệp tại Như Quỳnh là một mẫu hình lý tưởng cho những ai yêu thích vẻ đẹp hiện đại và sự tiện dụng. Với 145m2, chúng ta hoàn toàn có thể sở hữu một không gian sống “trong mơ” nếu có sự đầu tư bài bản về thiết kế.
Hy vọng qua bài viết này, bạn đã có thêm ý tưởng cho tổ ấm tương lai của mình. Nếu bạn đang mơ về một Mẫu nhà cấp 4 mái Nhật 3 phòng ngủ chuẩn đẹp, chuẩn kỹ thuật, đừng ngần ngại gọi ngay cho TechHome nhé!
THÔNG TIN LIÊN HỆ:
-
Công ty Cổ phần Kiến trúc và Xây dựng TechHome
-
Website: https://nhadeptechhome.vn/
-
Hotline : 036.273.2222
-
Địa chỉ: B1.1 LK18 Ô 3 – KĐT Thanh Hà – Cienco 5 – Thanh Oai- Hà Nội.
Bạn có muốn sở hữu bản vẽ chi tiết của Mẫu nhà cấp 4 mái Nhật 3 phòng ngủ này để bắt tay vào xây dựng ngay trong năm nay không? Hãy để lại bình luận hoặc nhắn tin trực tiếp cho chúng tôi để được tư vấn miễn phí!
