Bạn đang sở hữu một mảnh đất phân lô dài và hẹp? Bạn đau đầu vì gia đình đông thành viên nhưng diện tích xây dựng lại có hạn? Đừng lo, câu chuyện xây tổ ấm của anh Kiên tại Hoa Lư, Ninh Bình mà Techhome vừa thực hiện xong phương án thiết kế dưới đây chính là câu trả lời thỏa đáng nhất. Mẫu nhà ống 2 tầng 4 phòng ngủ này không chỉ tối ưu về mặt không gian mà còn sở hữu diện mạo hiện đại, chuẩn gu “nhà phố” năm 2026.
1. Tại sao mẫu nhà ống 2 tầng 4 phòng ngủ lại trở thành “cơn sốt” tại Ninh Bình?
Ninh Bình những năm gần đây phát triển rất nhanh, đặc biệt là các khu vực như Hoa Lư hay TP. Ninh Bình. Đất phân lô 5m ngang ngày càng phổ biến. Với những gia đình có từ 2-3 thế hệ cùng chung sống, việc bố trí đủ không gian riêng tư là bài toán khó.
Khi anh Kiên tìm đến Techhome, anh chia sẻ: “Mình muốn một ngôi nhà trông phải sang, hiện đại nhưng quan trọng nhất là phải có đủ 4 phòng ngủ cho bố mẹ, vợ chồng và hai con. Diện tích sàn mỗi tầng chỉ khoảng 90m2, liệu có bí bách quá không?”.
Sau khi khảo sát và lên phương án, đội ngũ KTS Techhome đã khẳng định: mẫu nhà ống 2 tầng 4 phòng ngủ hoàn toàn có thể “giải quyết” gọn gàng yêu cầu này nếu biết cách sắp xếp luồng giao thông và tận dụng ánh sáng tự nhiên.

2. Kiến trúc ngoại thất: Hiện đại, tối giản và đầy quyền uy
Nhìn vào phối cảnh 3D của công trình 0113 này, bạn sẽ thấy ngay sự tinh tế trong cách phối màu. Không quá cầu kỳ, tham lam chi tiết, Techhome sử dụng tông màu trung tính chủ đạo là trắng, xám và các mảng nhấn giả đá.
Tầng 1: Sự vững chãi từ vật liệu đá
Mặt tiền tầng 1 được ốp đá marble xám vân mây cao cấp. Việc sử dụng đá tự nhiên không chỉ giúp ngôi nhà trông sang trọng hơn mà còn cực kỳ bền bỉ với thời tiết khắc nghiệt của miền Bắc. Bạn sẽ không phải lo lắng về việc tường bị thấm mốc hay bong tróc sơn sau vài năm sử dụng.
Tầng 2: Điểm nhấn kiến trúc hình khối
Điểm đắt giá nhất của mẫu nhà ống 2 tầng 4 phòng ngủ này chính là khối đua ở tầng 2. KTS đã tạo ra một “khung tranh” trắng bao bọc lấy hệ cửa kính lớn. Thiết kế này vừa có tác dụng che nắng, vừa tạo chiều sâu cho mặt tiền. Hệ ban công kính cường lực kết hợp cùng những bồn cây xanh nhỏ xinh giúp ngôi nhà “thở” giữa phố thị chật chội.
Hệ mái tôn chống nóng thông minh
Qua hình ảnh flycam, bạn có thể thấy Techhome sử dụng hệ mái tôn lạnh màu xanh xám. Đây là lựa chọn kinh tế nhưng cực kỳ hiệu quả cho các mẫu nhà phố. Chúng mình đã tính toán độ dốc tối ưu để thoát nước nhanh và bố trí khu vực đặt bồn nước, thái dương năng cực kỳ gọn gàng.

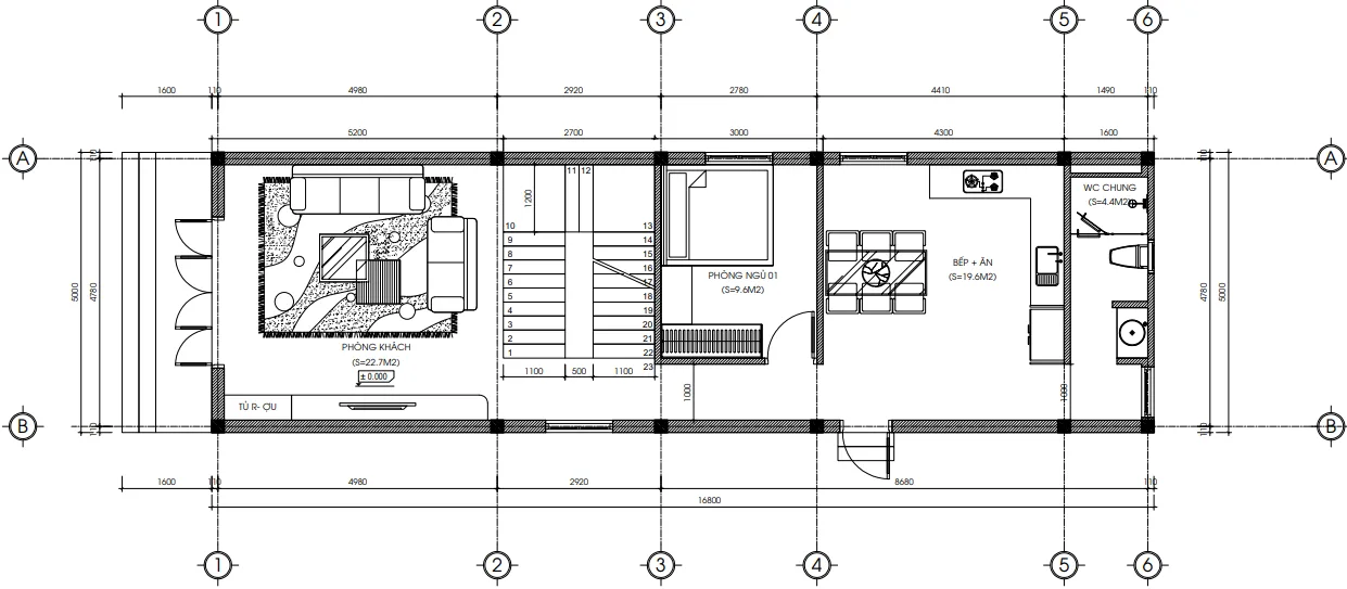
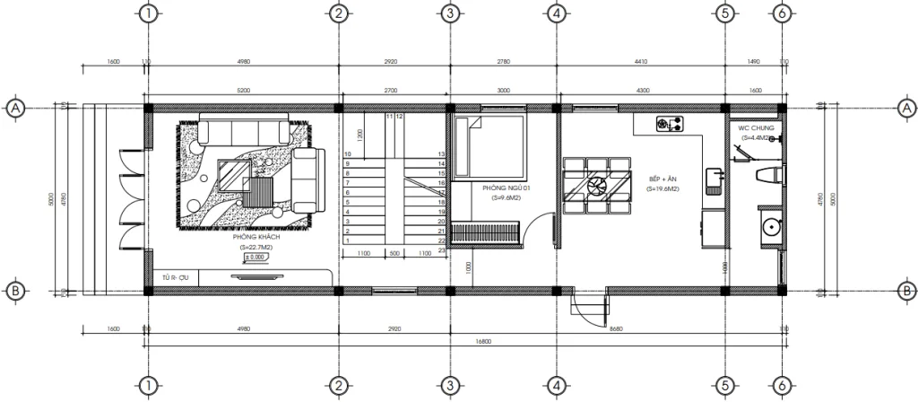
3. Phân tích công năng chi tiết: 183m2 sử dụng cho 4 phòng ngủ
Nhiều người e ngại rằng xây mẫu nhà ống 2 tầng 4 phòng ngủ trên diện tích sàn hơn 90m2 sẽ làm các phòng bị nhỏ. Nhưng hãy nhìn vào bản vẽ kỹ thuật của Techhome:
Tầng 1: Không gian sinh hoạt chung ấm cúng (92m2)
-
Phòng khách (22.7m2): Ngay từ cửa chính đi vào là không gian tiếp khách rộng rãi. Hệ cửa nhôm kính 4 cánh giúp đón trọn ánh sáng tự nhiên.
-
Phòng bếp & ăn (19.6m2): Bố trí cuối nhà, tạo sự riêng tư khi nấu nướng. Có cửa sổ và cửa phụ giúp thoát mùi nhanh và tiện lợi khi đi chợ về không phải mang thức ăn qua phòng khách.
-
Phòng ngủ 01 (9.6m2): Đây là phòng ngủ dành cho ông bà hoặc khách. Việc đặt một phòng ngủ ở tầng 1 trong mẫu nhà ống 2 tầng 4 phòng ngủ là vô cùng cần thiết để thuận tiện cho người già không phải leo cầu thang.
-
WC chung: Bố trí cuối nhà, kín đáo và sạch sẽ.

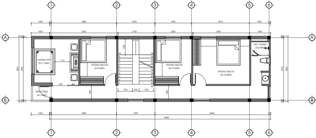
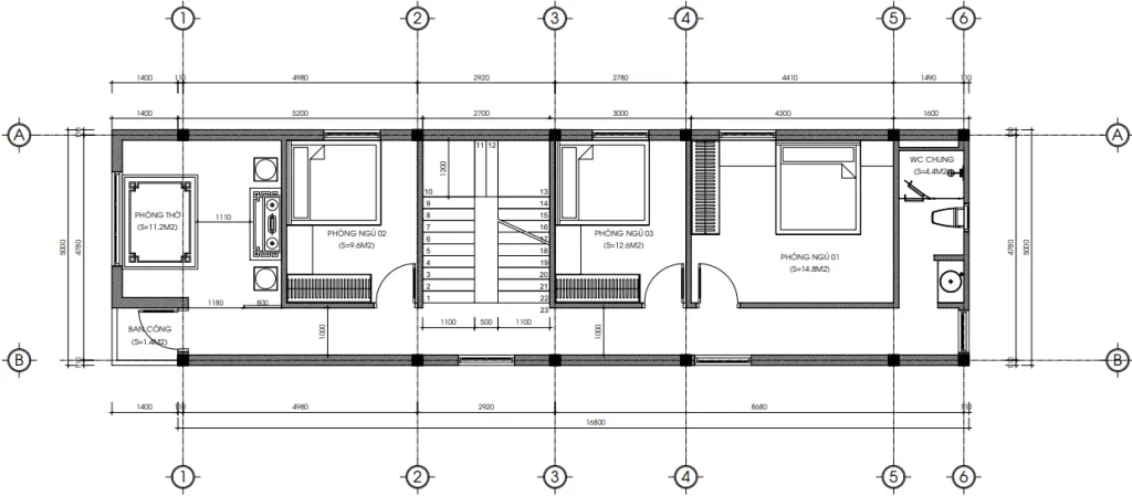
Tầng 2: Khu vực nghỉ ngơi riêng tư (91m2)
Tầng này là nơi tập trung của các thành viên còn lại:
-
Phòng thờ (11.2m2): Đặt ở vị trí trang trọng nhất hướng ra mặt tiền, có cửa thông ra ban công.
-
Phòng ngủ 01 (14.8m2): Phòng ngủ Master dành cho vợ chồng anh Kiên với diện tích rộng nhất, cửa sổ lớn nhìn ra sau nhà.
-
Phòng ngủ 02 & 03: Dành cho hai con. Mỗi phòng đều được tính toán vị trí đặt tủ quần áo và bàn học hợp lý.
-
WC chung: Nằm cuối nhà, tối ưu diện tích sử dụng cho mẫu nhà ống 2 tầng 4 phòng ngủ. Cùng trục với WC tầng 1.

4. Bảng dự toán chi phí xây dựng (Tham khảo năm 2026)
Tại Techhome, chúng mình luôn minh bạch về giá cả để chủ đầu tư chủ động tài chính. Với mẫu nhà ống 2 tầng 4 phòng ngủ diện tích 183m2 (tính cả 2 sàn), chi phí dự kiến như sau:
| Hạng mục | Đơn giá (VNĐ/m2) | Thành tiền (Ước tính) |
| Thiết kế kiến trúc | Hiện đại: 108.000
Tân cổ điển: 130.000 |
19.764.000
23.790.000 |
| Thi công phần thô & nhân công | 3.800.000 – 4.200.000 | ~ 730.000.000 |
| Thi công trọn gói (Chìa khóa trao tay) | 6.500.000 – 7.500.000 | 1,2 – 1,4 Tỷ đồng |
Lưu ý: Đây chỉ là mức chi phí ước tính. Để nhận được báo giá chính xác và chi tiết nhất cho công trình của bạn, vui lòng liên hệ trực tiếp với chúng tôi. Hoặc để tìm hiểu rõ hơn về tiêu chuẩn vật liệu xây dựng và các yếu tố ảnh hưởng đến chi phí, bạn có thể tham khảo thêm tại các bài viết chuyên sâu về vật liệu xây dựng cao cấp trên Wikipedia.

5. Chuyên gia Techhome gợi ý: Cách để mẫu nhà ống 2 tầng 4 phòng ngủ luôn thoáng đãng
Là người trực tiếp tham gia tư vấn nhiều công trình, mình có một vài “bí kíp” muốn chia sẻ để mẫu nhà ống 2 tầng 4 phòng ngủ của bạn không bị cảm giác chật chội:
-
Sử dụng giếng trời: Đây là “lá phổi” của nhà ống. Một khoảng thông tầng nhỏ ở giữa cầu thang hoặc cuối nhà sẽ giúp khí lưu thông, nhà không bao giờ bị ám mùi thức ăn.
-
Nội thất thông minh: Với các phòng ngủ diện tích từ 10-12m2, hãy ưu tiên giường có hộc kéo hoặc tủ kịch trần.
-
Hệ thống chiếu sáng: Đừng chỉ dùng một bóng đèn chính. Hãy kết hợp đèn led âm trần, đèn hắt để tạo chiều sâu cho không gian. Trong mẫu nhà ống 2 tầng 4 phòng ngủ, ánh sáng vàng nhẹ ở phòng ngủ sẽ giúp thư giãn tốt hơn.
-
Màu sơn: Ưu tiên các tông màu lạnh hoặc pastel. Chúng có tác dụng “đánh lừa” thị giác, giúp căn phòng trông rộng hơn thực tế.

6. Tại sao bạn nên chọn Techhome làm đơn vị đồng hành?
Xây nhà là việc cả đời. Một bản vẽ mẫu nhà ống 2 tầng 4 phòng ngủ đẹp trên giấy là chưa đủ, nó cần được tính toán dựa trên thực tế sử dụng và phong thủy của gia chủ.
-
Kinh nghiệm thực chiến: Chúng mình đã thi công hàng trăm công trình tại Ninh Bình, Nam Định, Hà Nội… hiểu rõ đặc tính đất đai và khí hậu địa phương.
-
Quy trình chuyên nghiệp: Từ khảo sát, lên ý tưởng đến bàn giao hồ sơ đều có sự kiểm duyệt chặt chẽ, mọi khâu từ thiết kế đến kiểm duyệt đều có chữ ký xác nhận rõ ràng.
-
Hỗ trợ 24/7: Hotline của Techhome luôn sẵn sàng giải đáp mọi thắc mắc về kỹ thuật xây dựng cho khách hàng.
Ngôi nhà của anh Kiên tại Hoa Lư chính là minh chứng cho việc: Không cần một quỹ đất quá rộng, bạn vẫn có thể sở hữu một mẫu nhà ống 2 tầng 4 phòng ngủ đẳng cấp, tiện nghi nếu đặt niềm tin đúng chỗ.
Mẫu nhà ống 2 tầng 4 phòng ngủ không chỉ là một công trình kiến trúc, đó là nơi nuôi dưỡng những giấc mơ và gắn kết tình cảm gia đình. Bạn có muốn sở hữu một không gian sống như thế này không?
Nếu bạn đang có ý định xây dựng hoặc cần tìm kiếm thêm các mẫu nhà ống 2 tầng 4 phòng ngủ phù hợp với ngân sách của mình, đừng ngần ngại truy cập website nhadeptechhome.vn hoặc gọi trực tiếp cho Techhome nhé!

Thông tin liên hệ:
-
Công ty Cổ phần Kiến trúc và Xây dựng Techhome
-
Hotline: 036.273.2222
-
Địa chỉ: B1.1 LK18 Ô 3 – KĐT Thanh Hà – Cienco 5 – Thanh Oai- Hà Nội.
