Mẫu Nhà Phố 2 Tầng Hiện Đại Tại Tuyên Quang: Bản Giao Hưởng Của Những Đường Cong

Chào các bạn, lại là Techhome đây! Hôm nay mình muốn dắt các bạn về thăm mảnh đất Tuyên Quang đầy nắng và gió để chiêm ngưỡng một “siêu phẩm” vừa mới ra lò từ bàn tay của đội ngũ KTS Techhome. Đó chính là dự án mẫu nhà phố 2 tầng hiện đại của gia đình anh Chế.

Nếu bạn đang sở hữu một mảnh đất hình ống và loay hoay không biết làm sao để căn nhà vừa thoáng, vừa sang mà lại không “đụng hàng” với hàng xóm, thì bài viết này chính là dành cho bạn. Đừng rời mắt nhé, vì những thông tin sắp tới sẽ cực kỳ “đắt giá” đấy!

Tổng thể mặt trước mẫu nhà phố 2 tầng hiện đại

1. Thông tin chung về dự án

Trước khi đi sâu vào vẻ đẹp của em nó, hãy cùng mình điểm qua vài thông tin “hồ sơ lý lịch” cực kỳ ấn tượng này:

  • Chủ đầu tư: Anh Chế.

  • Địa điểm: Tuyên Quang.

  • Đơn vị thiết kế & thi công: Công ty Cổ phần Kiến trúc và Xây dựng Techhome.

  • Loại hình: Nhà ở gia đình.

  • Hạng mục: Thiết kế kiến trúc.

  • Diện tích sàn: 107 m2/sàn.

  • Tổng diện tích sử dụng: 214 m2.

Đây là một mẫu nhà phố 2 tầng hiện đại điển hình với mặt tiền 5m và chiều sâu lên tới 20m. Một diện tích khá phổ biến tại các đô thị hiện nay.

Phối cảnh mặt tiền chính diện mẫu nhà phố 2 tầng hiện đại diện tích 107m2 tại Tuyên Quang.
Phối cảnh mặt tiền chính diện mẫu nhà phố 2 tầng hiện đại diện tích 107m2 tại Tuyên Quang.

2. Ngoại thất: Khi những đường cong lên tiếng

Nhìn vào phối cảnh 3D, điều gì đập vào mắt bạn đầu tiên? Với mình, đó chính là sự mềm mại của những đường bo cong tại ban công tầng 2. Trong thiết kế kiến trúc, việc sử dụng các hình khối vuông vức đã quá quen thuộc, nhưng để biến một mẫu nhà phố 2 tầng hiện đại trở nên có “gu” hơn, các KTS Techhome đã khéo léo lồng ghép những đường vát tròn tinh tế.

Sự kết hợp màu sắc tối giản nhưng đầy quyền lực:

  • Màu trắng chủ đạo: Tạo cảm giác căn nhà trông rộng hơn và luôn mới mẻ dưới ánh nắng.

  • Gạch ốp giả đá xám nhẹ ở tầng 1: Tạo sự vững chãi và sạch sẽ cho khu vực mặt tiền.

  • Màu nâu gỗ từ trần ban công: Mang lại cảm giác ấm áp, cân bằng lại sự hiện đại của các mảng khối.

Một điểm cộng cực lớn cho mẫu nhà phố 2 tầng hiện đại này chính là hệ thống đèn hắt tường và đèn downlight âm trần. Các bạn cứ tưởng tượng xem, vào ban đêm, khi ánh đèn vàng dịu nhẹ được bật lên, ngôi nhà sẽ lung linh chẳng kém gì một căn biệt thự nghỉ dưỡng hạng sang.

Góc nghiêng mẫu nhà phố 2 tầng hiện đại


3. Giải mã mặt bằng công năng: Tối ưu đến từng centimet

Một ngôi nhà đẹp thôi là chưa đủ, nó phải là nơi “dễ sống” và thoải mái cho mọi thành viên. Hãy cùng mình “soi” kỹ bản vẽ kỹ thuật của Techhome để xem cách bố trí phòng ốc nhé.

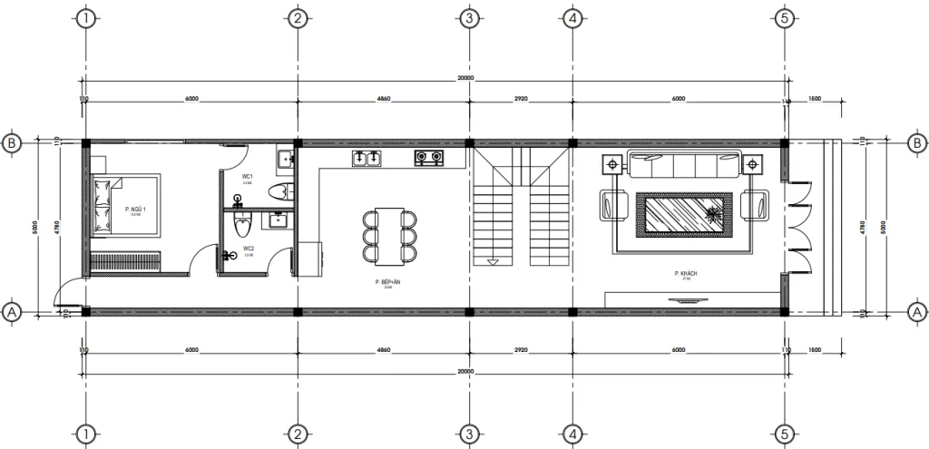
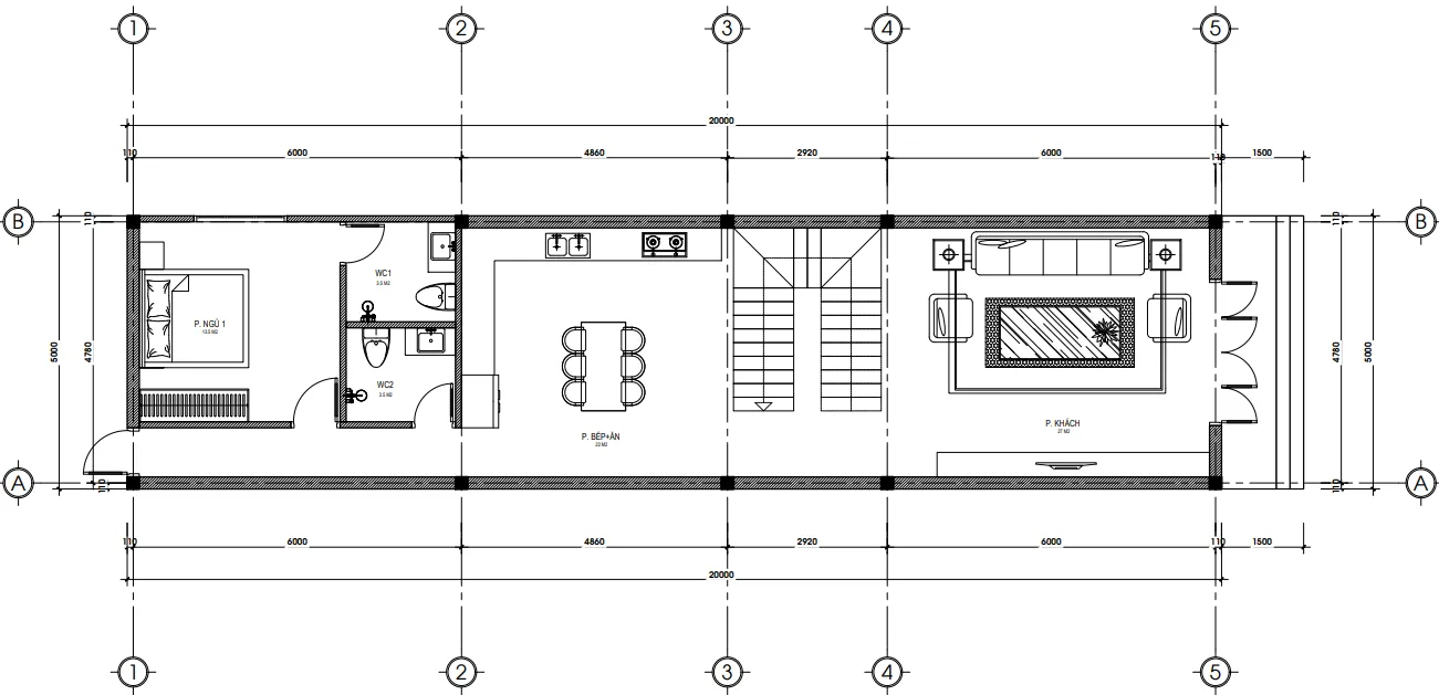
Tầng 1: Không gian sinh hoạt chung ấm cúng

Với diện tích 107 m2, tầng 1 được thiết kế theo lối không gian mở, giúp luồng khí lưu thông tốt từ trước ra sau:

  • Phòng khách (P. Khách): Ngay sau cửa chính là khu vực đón khách rộng rãi. Với chiều cao tầng lên tới 3.9m, không gian này cực kỳ thoáng đãng, không hề có cảm giác bí bách thường thấy ở nhà ống.

  • Cầu thang: Nằm ở vị trí trung tâm, ngăn cách phòng khách và bếp. Đặc biệt, cầu thang được thiết kế với 25 bậc, mỗi bậc cao 156mm. Đây là con số “vàng” trong phong thủy (cung Sinh) và cực kỳ vừa tầm bước chân của người Việt, đảm bảo an toàn cho cả người già và trẻ nhỏ.

  • Phòng bếp & Ăn (P. Bếp+Ăn): Khu vực này đủ rộng để đặt một bộ bàn ăn 6 người thoải mái.

  • Phòng ngủ 1 (P. Ngủ 1): Được bố trí phía cuối nhà, đảm bảo sự yên tĩnh và riêng tư tuyệt đối cho ông bà hoặc gia chủ.

  • Hệ thống vệ sinh: Tầng 1 có 2 WC, một cái nằm trong phòng ngủ 1 và một cái sử dụng chung, cực kỳ tiện lợi.

Phải công nhận, việc bố trí mẫu nhà phố 2 tầng hiện đại như thế này giúp tận dụng tối đa ánh sáng tự nhiên và gió trời thông qua các khoảng thông tầng và giếng trời.

Bản vẽ chi tiết bố trí công năng tầng 1 mẫu nhà phố 2 tầng hiện đại diện tích 107m2 với phòng khách rộng.
Bản vẽ chi tiết bố trí công năng tầng 1 mẫu nhà phố 2 tầng hiện đại diện tích 107m2 với phòng khách rộng.

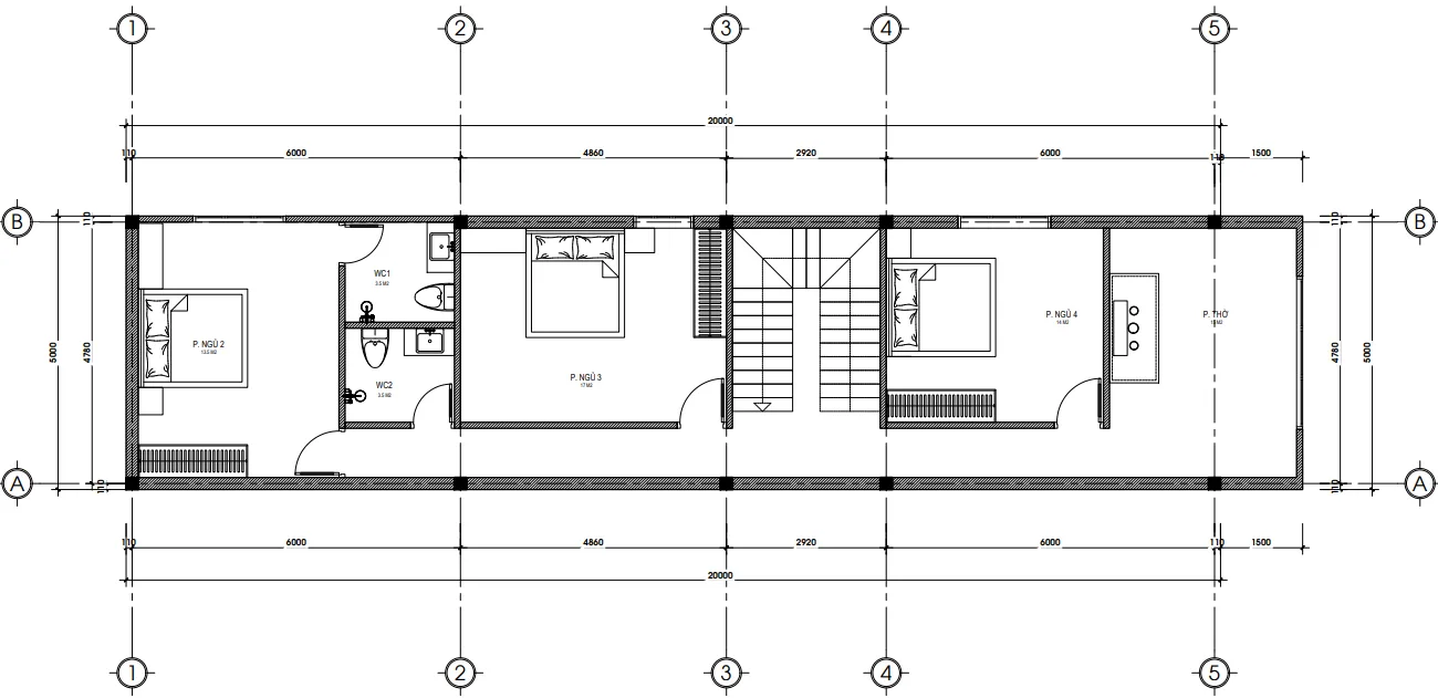
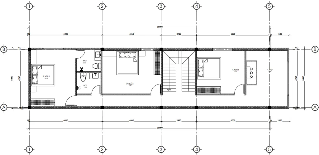
Tầng 2: Nơi nghỉ ngơi lý tưởng

Tầng 2 cũng có diện tích 107 m2 nhưng được chia nhỏ hơn để phục vụ nhu cầu nghỉ ngơi:

  • 3 Phòng ngủ: Gồm P. Ngủ 2, P. Ngủ 3 và P. Ngủ 4. Cách bố trí này cực phù hợp với những gia đình có đông thành viên hoặc nhiều thế hệ cùng chung sống.

  • Phòng thờ (P. Thờ): Được đặt ở vị trí trang trọng nhất phía trước nhà, hướng ra ban công. Đây là khu vực tâm linh quan trọng, thể hiện sự thành kính của gia chủ.

  • Ban công “sống ảo”: Như mình đã nói ở trên, khu vực ban công của mẫu nhà phố 2 tầng hiện đại này không chỉ đẹp về thẩm mỹ mà còn là nơi tuyệt vời để anh Chế trồng cây xanh, thưởng trà vào mỗi sáng sớm.

Bản vẽ chi tiết bố trí công năng tầng 2 mẫu nhà phố 2 tầng hiện đại diện tích 107m2
Bản vẽ chi tiết bố trí công năng tầng 2 mẫu nhà phố 2 tầng hiện đại diện tích 107m2

4. Những chi tiết kỹ thuật “biết nói”

Là một chuyên gia, mình đánh giá rất cao hồ sơ thiết kế kỹ thuật của Techhome. Không chỉ vẽ cho đẹp, các thông số đều được tính toán khoa học:

  1. Chiều cao tầng: Tầng 1 cao 3.9m , tầng 2 cao 3.6m. Tổng chiều cao nhà vừa đủ để tạo sự bề thế mà vẫn tiết kiệm chi phí làm mát.

  2. Mái che: Sử dụng hệ mái bằng kết hợp tấm lợp chống nóng và bồn nước, thái dương năng phía trên. Điều này giúp ngôi nhà luôn mát mẻ trong những ngày hè oi ả của Tuyên Quang.

  3. Cầu thang: Việc duy trì 25 bậc cho cả hai tầng là một sự tính toán đồng bộ, giúp việc di chuyển trong mẫu nhà phố 2 tầng hiện đại trở nên nhịp nhàng hơn.

Góc nghiêng mẫu nhà phố 2 tầng hiện đại


5. Tại sao bạn nên chọn Techhome để hiện thực hóa ước mơ?

Khi xây dựng một mẫu nhà phố 2 tầng hiện đại, điều lo lắng nhất của chủ nhà là “hình ảnh một đằng, thi công một nẻo”. Nhưng với Techhome, bạn có thể hoàn toàn yên tâm:

  • Chuyên nghiệp từ bản vẽ: Hồ sơ kỹ thuật thi công được thực hiện bởi đội ngũ KTS giàu kinh nghiệm.

  • Hỗ trợ tận tình: Techhome cung cấp hotline hỗ trợ kỹ thuật 24/7 (0364.042.222 – 0387.603.333) để giải đáp mọi thắc mắc của chủ nhà và thợ xây tại công trường.

  • Minh bạch: Mọi thông số từ diện tích, số bậc thang đến vật liệu đều được thể hiện rõ ràng trong hợp đồng thiết kế.

Phối cảnh tổng thể từ trên cao mẫu nhà phố 2 tầng hiện đại sử dụng hệ mái lợp chống nóng tiện nghi.
Phối cảnh tổng thể từ trên cao mẫu nhà phố 2 tầng hiện đại sử dụng hệ mái lợp chống nóng tiện nghi.

6. Báo giá tham khảo thiết kế & thi công (Năm 2026)

Mình hiểu rằng, ngoài vẻ đẹp, chi phí chính là điều bạn quan tâm hàng đầu. Dưới đây là bảng giá ước tính cho một mẫu nhà phố 2 tầng hiện đại tương tự dự án anh Chế:

Bảng giá thiết kế kiến trúc

Hạng mục Đơn giá (VNĐ/m2) Thành tiền (Tạm tính 214m2)
Gói thiết kế Kiến trúc Phong cách Hiện đại: 108.000 

Tân cổ điển: 130.000

 23.112.000

 27.820.000

Gói thiết kế Nội thất 150.000  32.100.000 

Bảng giá thi công trọn gói (Chìa khóa trao tay)

Loại hình vật tư Đơn giá (VNĐ/m2) Ưu điểm
Gói tiêu chuẩn 6.500.000 – 7.000.000 Phù hợp gia đình trẻ, vật liệu bền bỉ.
Gói cao cấp 7.500.000 – 8.500.000 Vật liệu nhập khẩu, hoàn thiện tinh xảo.

Lưu ý: Đây chỉ là mức chi phí ước tính. Để nhận được báo giá chính xác và chi tiết nhất cho công trình của bạn, vui lòng liên hệ trực tiếp với chúng tôi. Hoặc để tìm hiểu rõ hơn về tiêu chuẩn vật liệu xây dựng và các yếu tố ảnh hưởng đến chi phí, bạn có thể tham khảo thêm tại các bài viết chuyên sâu về vật liệu xây dựng cao cấp trên Wikipedia.

Tổng thể mặt sau mẫu nhà phố 2 tầng hiện đại


7. Lời kết

Mẫu nhà phố 2 tầng hiện đại của anh Chế tại Tuyên Quang không chỉ là một công trình xây dựng, nó là tổ ấm, là nơi lưu giữ những khoảnh khắc hạnh phúc của gia đình. Với sự tận tâm của Techhome, chúng mình tin rằng mỗi viên gạch đặt xuống đều mang theo tâm huyết và trách nhiệm cao nhất.

Nếu bạn đang nhen nhóm ý định xây nhà, đừng ngần ngại nhấc máy lên và gọi cho chúng mình. Techhome luôn sẵn sàng lắng nghe và biến ý tưởng của bạn thành hiện thực!

CÔNG TY CỔ PHẦN KIẾN TRÚC VÀ XÂY DỰNG TECHHOME

🏠 Website: https://nhadeptechhome.vn/

☎️ Hotline: 036.273.2222

📍 Địa chỉ: B1.1 LK18 Ô 3 – KĐT Thanh Hà – Cienco 5 – Thanh Oai- Hà Nội.

Để lại một bình luận

Email của bạn sẽ không được hiển thị công khai. Các trường bắt buộc được đánh dấu *

    Vui lòng nhấn nút YÊU CẦU TƯ VẤN và đợi 1 - 2 giây đến khi thấy thông báo thành công

    YÊU CẦU TƯ VẤN