Chào các bạn! Trong xu hướng xây dựng năm 2026, nhà cấp 4 không còn là khái niệm về những ngôi nhà đơn sơ ở nông thôn nữa. Thay vào đó, nó đã trở thành biểu tượng của sự tinh tế và tận hưởng cuộc sống. Hôm nay, Techhome sẽ cùng các bạn “mổ xẻ” dự án thiết kế nội thất hiện đại mẫu nhà cấp 4 mà Tech Home vừa hoàn thiện cho gia đình anh Linh tại Quảng Yên, Quảng Ninh. Đây là một công trình mà từ bản vẽ kỹ thuật đến hình ảnh thực tế đều toát lên vẻ sang trọng, ấm cúng.
1. Bản sắc truyền thống trong dòng chảy hiện đại
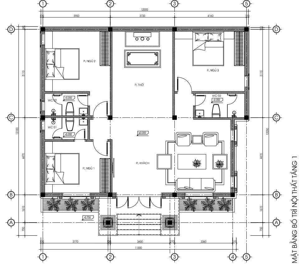
Ngay khi bước vào sảnh chính, điều khiến bất cứ ai cũng phải choáng ngợp chính là khu vực phòng thờ (P. Thờ). Trong các phương án thiết kế nội thất hiện đại mẫu nhà cấp 4 hiện nay, việc bố trí nơi thờ tự sao cho vừa trang nghiêm vừa hòa hợp với kiến trúc tổng thể là một bài toán khó.
Tại nhà anh Linh, KTS đã chọn chất liệu gỗ tự nhiên cao cấp với những đường chạm trổ tinh xảo. Hệ vách gỗ bao quanh kết hợp với đôi lục bình gốm sứ xanh trắng tạo nên một không gian linh thiêng, tách biệt nhưng vẫn nằm trong dòng chảy chung của ngôi nhà. Nhìn vào bản vẽ, bạn sẽ thấy P. Thờ được đặt ở vị trí trung tâm, là “trái tim” gắn kết các không gian khác.
2. Phòng khách: Nơi khẳng định gu thẩm mỹ của gia chủ
Phòng khách (P. Khách) luôn là linh hồn của mỗi ngôi nhà. Với thiết kế nội thất hiện đại mẫu nhà cấp 4, Tech Home chú trọng vào sự thông thoáng và ánh sáng tự nhiên.
Điểm nhấn đắt giá nhất ở đây chính là bức tranh trống đồng vàng rực rỡ được treo trên nền đá marble vân mây trắng xám. Sự kết hợp giữa biểu tượng văn hóa dân tộc và vật liệu hiện đại tạo nên một vẻ đẹp không thể lẫn lộn. Bộ sofa khung gỗ với nệm bọc cao cấp được bố trí theo hình chữ U, tạo cảm giác quây quần, hiếu khách. Đây chính là một gợi ý tuyệt vời cho những ai đang tìm kiếm ý tưởng thiết kế nội thất hiện đại mẫu nhà cấp 4 cho gia đình mình.

3. Không gian riêng tư: Sự tối giản lên ngôi
Ngôi nhà của anh Linh được bố trí 3 phòng ngủ (P. Ngủ 1, 2, 3) để đảm bảo không gian riêng cho từng thành viên. Trong xu hướng thiết kế nội thất hiện đại mẫu nhà cấp 4 năm 2026, chúng tôi ưu tiên sự tối giản để mang lại cảm giác nghỉ ngơi tuyệt đối.
-
Phòng ngủ Master: Sử dụng tông màu kem xám chủ đạo, hệ cửa sổ lớn đón ánh sáng tràn ngập. Toàn bộ tủ quần áo được thiết kế kịch trần với cửa kính trong suốt, giúp không gian trông rộng rãi và sang chảnh như một khách sạn 5 sao.
-
Phòng ngủ nhỏ: Vẫn đảm bảo đầy đủ tiện nghi với giường nệm êm ái, bàn làm việc và hệ thống chiếu sáng thông minh. Tin mình đi, một phương án thiết kế nội thất hiện đại mẫu nhà cấp 4 tốt là khi mỗi góc nhỏ đều khiến bạn muốn trở về sau một ngày dài làm việc.
4. Khu vực vệ sinh: Đẳng cấp đến từng chi tiết
Đừng bao giờ coi nhẹ khu vực vệ sinh (WC) khi thực hiện thiết kế nội thất hiện đại mẫu nhà cấp 4. Tại dự án này, anh Linh đã đầu tư rất kỹ cho 3 phòng vệ sinh.
Hình ảnh thực tế cho thấy sự sang trọng đến từ những chi tiết nhỏ nhất:
-
Vòi sen và phụ kiện phòng tắm màu đen mờ tạo sự tương phản mạnh mẽ với nền gạch Granite xám.
-
Gương tròn tích hợp đèn LED hiện đại không chỉ để soi mà còn là một vật trang trí đắt lực.
-
Bồn cầu khối trắng muốt, thiết kế tối giản giúp việc vệ sinh dễ dàng hơn. Bản vẽ thể hiện rất rõ cách bố trí thiết bị vệ sinh khoa học, đảm bảo không gian sử dụng thoải mái nhất.
5. Phòng bếp: “Giữ lửa” hạnh phúc gia đình
Khu vực bếp được Tech Home thiết kế tách biệt nhẹ nhàng nhưng vẫn đảm bảo sự kết nối. Một bộ hồ sơ thiết kế nội thất hiện đại mẫu nhà cấp 4 hoàn chỉnh không thể thiếu chi tiết khu bếp. Tại đây, mặt bếp được ốp đá Granite màu đen kim sa bền bỉ, hệ tủ bếp trên dưới sử dụng vật liệu chống ẩm cao cấp, đảm bảo sự sạch sẽ và tiện dụng cho người nội trợ.
6. Tại sao Tech Home lại được tin tưởng tại Quảng Ninh?
Việc chọn một đơn vị để giao phó thiết kế nội thất hiện đại mẫu nhà cấp 4 là quyết định quan trọng. Tech Home chinh phục khách hàng bằng:
-
Sự minh bạch: Mọi bản vẽ kỹ thuật từ mặt bằng định vị đến chi tiết cửa đều rõ ràng, chuẩn xác.
-
Đội ngũ KTS tâm huyết: luôn lắng nghe để thấu hiểu câu chuyện của từng gia chủ.
-
Hỗ trợ kỹ thuật 24/7: Số hotline 0364042222 luôn sẵn sàng giải đáp mọi thắc mắc của bạn.
Thực tế, một thiết kế nội thất hiện đại mẫu nhà cấp 4 đẹp không chỉ ở hình ảnh 3D lung linh mà phải thi công được và bền vững. Chúng tôi cam kết đưa ra những giải pháp vật liệu thực tế nhất, phù hợp với ngân sách của bạn.

7. Báo giá thiết kế nội thất hiện đại mẫu nhà cấp 4 (Năm 2026)
Để các bạn có cái nhìn tổng quan về chi phí đầu tư cho một thiết kế nội thất hiện đại mẫu nhà cấp 4, Tech Home xin gửi đến bảng giá tham khảo năm 2026:
| Gói dịch vụ | Đơn giá (VNĐ/m2) | Nội dung công việc |
| Gói Thiết kế Cơ bản | 150.000 | Mặt bằng nội thất, phối cảnh 3D các phòng chính. |
| Gói Thiết kế Cao cấp | 200.000 – 250.000 | Trọn bộ hồ sơ thi công, chỉ định vật liệu, bóc tách khối lượng. |
| Thi công nội thất trọn gói | Từ 150.000.000 | Tùy thuộc vào diện tích và chất liệu gỗ (MDF, Gỗ sồi, Gỗ gõ…). |
Lưu ý: Báo giá trên mang tính chất tham khảo. Với mỗi dự án thiết kế nội thất hiện đại mẫu nhà cấp 4 cụ thể, chúng tôi sẽ có báo giá chi tiết sau khi khảo sát thực tế. Để tìm hiểu rõ hơn về tiêu chuẩn vật liệu xây dựng và các yếu tố ảnh hưởng đến chi phí, bạn có thể tham khảo thêm tại các bài viết chuyên sâu về vật liệu xây dựng cao cấp trên Wikipedia.
8. Những lưu ý “vàng” từ chuyên gia Tech Home
Với góc độ là người làm nghề, Tôi muốn nhắn nhủ các bạn khi chuẩn bị làm thiết kế nội thất hiện đại mẫu nhà cấp 4:
-
Ưu tiên ánh sáng: Nhà cấp 4 thường có diện tích sàn lớn, hãy tận dụng giếng trời hoặc các ô kính lớn để nhà luôn sáng.
-
Vật liệu là then chốt: Đừng ham rẻ mà chọn loại gỗ kém chất lượng. Ở môi trường nóng ẩm như Việt Nam, vật liệu tốt sẽ giúp bạn tiết kiệm chi phí bảo trì sau này.
-
Phong thủy hài hòa: Một thiết kế nội thất hiện đại mẫu nhà cấp 4 đẹp phải đi đôi với sự an tâm về tâm linh. Hãy chú ý hướng giường, hướng bếp sao cho phù hợp với bản mệnh của mình.

9. Kết luận
Dự án của anh Linh tại Quảng Yên là một ví dụ điển hình cho sự thành công của thiết kế nội thất hiện đại mẫu nhà cấp 4. Nó không chỉ là nơi để ở, mà là nơi để tận hưởng những phút giây hạnh phúc bên người thân.
Nếu bạn cũng đang ấp ủ về một không gian sống mơ ước, đừng ngần ngại liên hệ với Tech Home. Chúng tôi không chỉ mang đến một bản vẽ, chúng tôi mang đến một tổ ấm thực sự. Hãy để chúng tôi đồng hành cùng bạn trên hành trình tạo nên những thiết kế nội thất hiện đại mẫu nhà cấp 4 độc bản và đẳng cấp nhất.
CÔNG TY CỔ PHẦN KIẾN TRÚC VÀ XÂY DỰNG TECHHOME
-
Hotline tư vấn: 036.273.2222
-
Website: nhadeptechhome.vn
-
Trụ sở: B1.1 LK18 Ô 3 – KĐT Thanh Hà – Cienco 5 – Thanh Oai- Hà Nội.

























