Nói về hệ mái Nhật, đây không phải là cái tên quá xa lạ, nhưng để thiết kế sao cho “ra chất” thì không phải đơn giản. Với công trình của anh Thứ, mẫu nhà cấp 4 mái Nhật 3 phòng ngủ sử dụng tone màu xanh ghi chủ đạo kết hợp cùng sắc trắng tinh khôi của tường.
1. Ngoại thất ấn tượng – Điểm chạm từ cái nhìn đầu tiên
Nhìn vào phối cảnh 3D, các bác có thể thấy hệ mái Nhật có độ dốc vừa phải, giúp thoát nước cực tốt với khí hậu mưa nhiều ở miền Bắc. Điểm nhấn nằm ở các chi tiết phào chỉ tối giản nhưng dứt khoát trên thân cột và diện tường.
-
Hệ thống cửa: Toàn bộ cửa chính và cửa sổ sử dụng nhôm kính xingfa cao cấp. Điều này không chỉ giúp căn nhà trông trẻ trung hơn mà còn tận dụng tối đa ánh sáng tự nhiên, giúp tiết kiệm điện năng đáng kể.
-
Chân tường: Được ốp đá thẻ màu xám đậm. Cách làm này cực kỳ thực tế vì nó giúp bảo vệ nhà khỏi rêu mốc, bụi bẩn từ đất cát – một nỗi lo thường trực khi làm nhà vườn.
-
Phụ trợ: Trên mái còn được bố trí sẵn vị trí cho bồn nước và thái dương năng, vừa gọn gàng vừa đảm bảo công năng sử dụng lâu dài.
Đây chính là lý do vì sao mẫu nhà cấp 4 mái Nhật 3 phòng ngủ luôn nằm trong danh sách tìm kiếm hàng đầu của các chủ đầu tư yêu thích sự tinh tế.

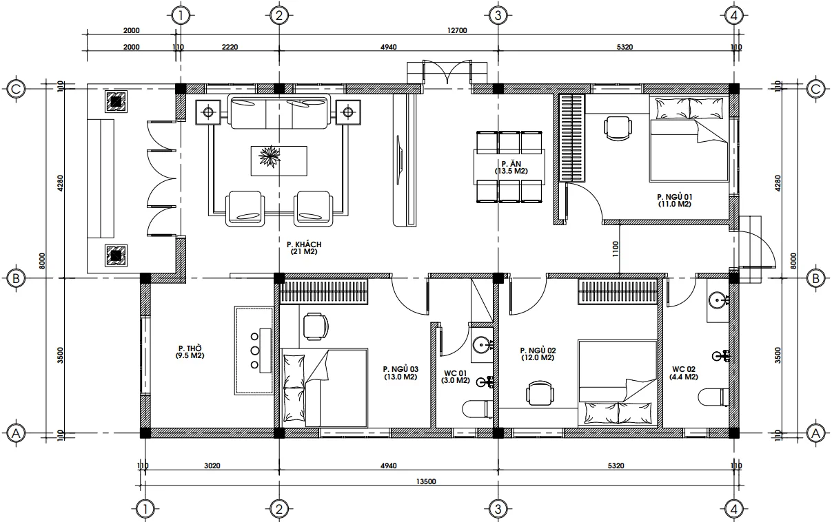
2. Chi tiết công năng “vàng” trên diện tích 120m2
Nhiều bác cứ lo 120m2 mà làm 3 phòng ngủ thì bí. Nhưng các bác nhìn bản vẽ mặt bằng của Techhome mà xem, mọi thứ đều được tính toán “chuẩn không cần chỉnh”.
Phân bổ không gian khoa học
Căn nhà có kích thước mặt tiền 8m và chiều sâu 13.5m (tính cả sảnh là khoảng 15m). Tổng diện tích sàn 120m2 được chia nhỏ cực kỳ hợp lý:
-
Phòng khách (21m2): Nằm ngay sau sảnh chính, không gian đủ rộng để đón tiếp họ hàng vào dịp lễ Tết.
-
Phòng thờ (9.5m2): Được đặt ở vị trí trang trọng, có cửa sổ riêng thông thoáng, thể hiện sự hiếu kính của gia chủ. Đây là điểm cộng lớn trong mẫu nhà cấp 4 mái Nhật 3 phòng ngủ này.
-
Khu vực bếp & ăn (13.5m2): Thiết kế liên thông với phòng khách qua hệ lam gỗ hoặc khoảng thoáng, tạo cảm giác nhà rộng hơn thực tế rất nhiều. Đặc biệt có cửa phụ đi ra bên hông nhà, cực kỳ tiện khi đi chợ về mà không muốn đi qua phòng khách.
-
03 Phòng ngủ: * Phòng ngủ 01 (11m2).
-
Phòng ngủ 02 (12m2).
-
Phòng ngủ 03 (13m2).
-
Diện tích này đủ để kê giường, tủ quần áo và bàn làm việc mà vẫn có lối đi thoải mái.
-
-
Hệ thống vệ sinh: Gồm 2 nhà vệ sinh (3m2 và 4.4m2) được bố trí kín đáo, tiện lợi cho sinh hoạt chung và riêng.
Sự sắp xếp này giúp mẫu nhà cấp 4 mái Nhật 3 phòng ngủ đáp ứng tốt nhu cầu của gia đình 2-3 thế hệ cùng chung sống.

3. Tại sao mẫu nhà cấp 4 mái Nhật 3 phòng ngủ lại là “chân ái” tại Ninh Bình?
Xây nhà ở Ninh Bình, ngoài việc đẹp thì còn phải chịu được cái nắng, cái gió của vùng đất này. Techhome đã tư vấn anh Thứ chọn mẫu nhà cấp 4 mái Nhật 3 phòng ngủ vì 3 lý do “xương máu”:
-
Phù hợp quỹ đất: Với các bác có mảnh vườn rộng, kiểu nhà này giúp “khoe” được toàn bộ vẻ đẹp của kiến trúc mà không bị lọt thỏm giữa không gian.
-
Chi phí hợp lý: So với nhà cao tầng, nhà cấp 4 giúp tiết kiệm chi phí làm cầu thang, móng cũng bớt phức tạp hơn, từ đó dồn tiền vào hoàn thiện nội thất xịn sò.
-
Gần gũi thiên nhiên: Chỉ cần mở cửa ra là thấy cây xanh, sân vườn. Cảm giác này những nhà phố chật hẹp không bao giờ có được.
Nếu bác đang tìm kiếm một bản vẽ vừa đẹp vừa thực dụng, đừng bỏ qua mẫu nhà cấp 4 mái Nhật 3 phòng ngủ này của chúng em.

4. Bảng báo giá thi công trọn gói dự kiến (Cập nhật 2026)
Để các bác dễ hình dung và chuẩn bị tài chính, em xin gửi bảng báo giá tham khảo cho mẫu nhà cấp 4 mái Nhật 3 phòng ngủ với diện tích 120m2:
| Hạng mục | Đơn giá dự kiến (VNĐ/m2) | Tổng chi phí (Tạm tính) |
| Thi công phần thô (Vật tư + Nhân công) | 3.800.000 – 4.200.000 | ~ 480.000.000 |
| Gói hoàn thiện cơ bản (Sơn, gạch, thiết bị vệ sinh) | 2.000.000 – 2.500.000 | ~ 270.000.000 |
| Hệ mái Nhật (Khung kèo + Ngói màu) | Tính trọn gói theo diện tích mái | ~ 120.000.000 |
| TỔNG CỘNG (Chìa khóa trao tay) | 6.500.000 – 7.500.000 | ~ 850.000.000 – 950.000.000 |
Lưu ý: Đơn giá có thể thay đổi tùy vào thời điểm, giá vật liệu xây dựng và địa chất công trình cụ thể tại địa phương. Để tìm hiểu rõ hơn về tiêu chuẩn vật liệu xây dựng và các yếu tố ảnh hưởng đến chi phí, bạn có thể tham khảo thêm tại các bài viết chuyên sâu về vật liệu xây dựng cao cấp trên Wikipedia.
Sở hữu một mẫu nhà cấp 4 mái Nhật 3 phòng ngủ với mức đầu tư dưới 1 tỷ đồng là một bài toán kinh tế cực kỳ thông minh trong năm 2026 này.

5. Gợi ý từ chuyên gia: Cách để ngôi nhà của bạn “đẳng cấp” hơn
Với kinh nghiệm viết bài và tư vấn kiến trúc lâu năm, em có vài “mẹo” nhỏ cho các bác đang có ý định xây mẫu nhà cấp 4 mái Nhật 3 phòng ngủ:
-
Đừng tiếc tiền cho hệ thống chống thấm: Nhà mái Nhật đẹp nhưng nếu thi công không chuẩn, các vị trí giao nhau giữa các mái rất dễ thấm dột. Hãy chọn đơn vị thi công có tâm.
-
Tối ưu hóa “Phong thủy”: Trong mẫu nhà cấp 4 mái Nhật 3 phòng ngủ, vị trí bếp và bàn thờ là cực kỳ quan trọng. Nên nhờ kiến trúc sư xem xét kỹ hướng nắng, hướng gió theo tuổi gia chủ.
-
Chọn màu sơn thông minh: Đừng chạy theo xu hướng quá đà. Những tone màu trung tính như của nhà anh Thứ sẽ bền màu với thời gian và không bao giờ lỗi mốt.
-
Cây xanh là linh hồn: Một ngôi nhà đẹp mà thiếu đi mảng xanh thì chỉ là một đống gạch đá vô tri. Hãy dành một khoảng ngân sách nhỏ cho việc làm tiểu cảnh, sân vườn.
Thực tế, mẫu nhà cấp 4 mái Nhật 3 phòng ngủ không chỉ là nơi để ở, mà nó còn là nơi để các bác hưởng thụ cuộc sống sau những giờ làm việc mệt mỏi.

6. Techhome – Người bạn đồng hành tin cậy cho tổ ấm của bạn
Tại sao anh Thứ và hàng trăm khách hàng khác lại tin tưởng lựa chọn chúng em?
-
Minh bạch: Hồ sơ thiết kế kỹ thuật thi công cực kỳ chi tiết, từ bản vẽ kiến trúc đến điện nước.
-
Sáng tạo: Luôn cập nhật những xu hướng mới nhất như mẫu nhà cấp 4 mái Nhật 3 phòng ngủ để tư vấn cho khách hàng.
-
Trách nhiệm: Hỗ trợ tư vấn kỹ thuật 24/7 qua hotline: 0364.04.2222 – 0387.60.3333.
Nếu các bác đang loay hoay không biết bắt đầu từ đâu, hãy để Techhome giúp các bác hiện thực hóa ý tưởng về một mẫu nhà cấp 4 mái Nhật 3 phòng ngủ hoàn mỹ nhất.

Xây nhà là việc cả đời, đừng để những sai lầm nhỏ làm hỏng đi giấc mơ lớn. Hy vọng qua bài viết này, các bác đã có cái nhìn rõ nét hơn về mẫu nhà cấp 4 mái Nhật 3 phòng ngủ tại Ninh Bình của anh Thứ.
Nếu bác muốn tham khảo thêm nhiều mẫu đẹp khác hoặc cần một bản vẽ mang đậm dấu ấn cá nhân, đừng ngần ngại truy cập website: nhadeptechhome.vn hoặc gọi trực tiếp cho Techhome nhé!
Mẫu nhà cấp 4 mái Nhật 3 phòng ngủ – Đẹp, sang và cực kỳ xứng tầm!
CÔNG TY CỔ PHẦN KIẾN TRÚC VÀ XÂY DỰNG TECHHOME
☎️ Hotline: 036.273.2222
📍 Địa chỉ: B1.1 LK18 Ô 3 – KĐT Thanh Hà – Cienco 5 – Thanh Oai- Hà Nội.
