Bạn đang sở hữu một mảnh đất ở quê hoặc ngoại ô và muốn xây dựng một tổ ấm vừa túi tiền nhưng phải toát lên vẻ hiện đại, không lỗi mốt? Bạn ngại những kiểu mái Thái cầu kỳ hay mái Nhật đã quá quen thuộc? Vậy thì mẫu nhà cấp 4 mái bằng hiện đại của gia đình anh Hải tại Bắc Giang chính là “chân ái” mà bạn đang tìm kiếm.
Tại Techhome, chúng tôi không chỉ vẽ nên những bức tường, chúng tôi kiến tạo không gian sống. Hãy cùng tôi khám phá chi tiết tại sao mẫu thiết kế này lại gây sốt đến vậy nhé!
1. Ngoại thất gây thương nhớ: Đường cong mềm mại trên nền khối hộp vững chãi
Điểm chạm đầu tiên khi nhìn vào mẫu nhà cấp 4 mái bằng hiện đại này chính là sự phá cách trong hình khối. Thay vì những góc cạnh vuông vức khô cứng, các kiến trúc sư Techhome đã khéo léo đưa vào những đường bo góc tròn trịa ở phần sê-nô mái và mảng tường trang trí phía trước mặt tiền.
-
Tông màu chủ đạo: Sự kết hợp giữa trắng sứ tinh khôi và xám trung tính tạo nên một diện mạo thanh lịch, bền màu với thời gian.
-
Điểm nhấn kiến trúc: Mảng tường phía trái được thiết kế như một khung tranh lớn với đường viền bo cong, ôm trọn cửa sổ kính cường lực. Đây chính là nét “nghệ” giúp căn nhà khác biệt hoàn toàn so với các mẫu nhà cấp 4 mái bằng hiện đại đại trà hiện nay.
-
Hệ thống cửa: Chúng tôi sử dụng hệ cửa nhôm kính Xingfa màu đen cao cấp. Cửa chính được thiết kế dạng vòm nhẹ, đồng bộ với ngôn ngữ thiết kế chung, giúp đón trọn ánh sáng tự nhiên vào không gian nội thất bên trong.

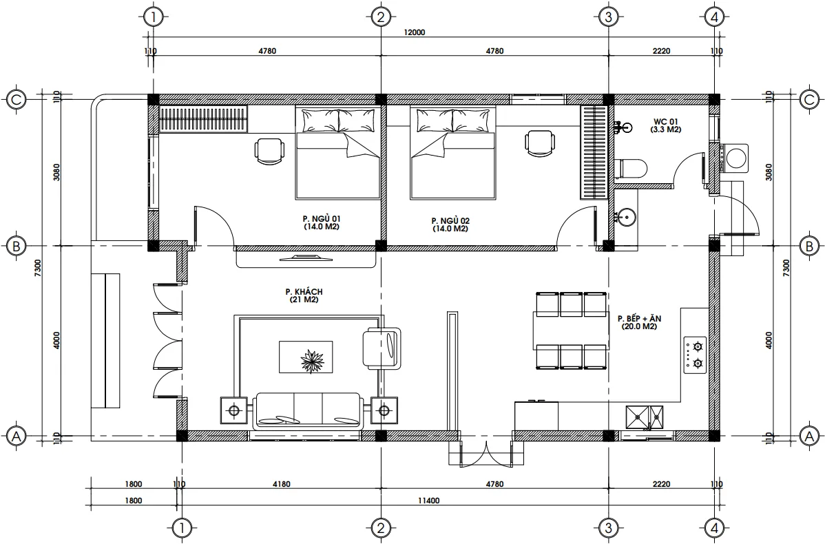
2. Mặt bằng công năng: Tối ưu đến từng milimet cho diện tích 90m2
Một ngôi nhà đẹp trước hết phải là một ngôi nhà tiện nghi. Với diện tích sàn chính xác là 90.0m2 và chiều cao tầng thông thủy 3.9m, căn nhà của anh Hải được phân chia công năng cực kỳ khoa học, đáp ứng trọn vẹn nhu cầu của gia đình 3-4 thành viên.
Chi tiết các phòng chức năng:
Dựa trên hồ sơ thiết kế kỹ thuật, mặt bằng được bố trí như sau:
-
Phòng khách (21m2): Nằm ngay sau cửa chính, là không gian rộng rãi nhất để tiếp khách và sinh hoạt chung. Với diện tích này, bạn hoàn toàn có thể đặt một bộ sofa lớn và kệ tivi hiện đại mà vẫn có lối đi thoải mái.
-
Phòng bếp + ăn (20m2): Thiết kế liên thông với phòng khách tạo cảm giác không gian được mở rộng tối đa. Khu vực này có cửa ngách đi ra bên hông, giúp lưu thông không khí và tránh ám mùi thức ăn khi nấu nướng.
-
Hệ thống 02 phòng ngủ (14m2 mỗi phòng): Hai phòng ngủ được đặt cạnh nhau, đảm bảo sự yên tĩnh và riêng tư. Diện tích 14m2 là con số “vàng” để bố trí đầy đủ giường đôi, tủ quần áo và bàn làm việc/bàn học.
-
Nhà vệ sinh chung (3.3m2): Được đặt ở vị trí cuối nhà, thuận tiện cho cả khách và thành viên gia đình sử dụng.
Rõ ràng, việc lựa chọn mẫu nhà cấp 4 mái bằng hiện đại 90m2 giúp gia chủ tiết kiệm chi phí xây dựng nhưng vẫn sở hữu đầy đủ các phòng chức năng như một căn hộ chung cư cao cấp.

3. Tại sao mẫu nhà cấp 4 mái bằng hiện đại lại là xu hướng của năm 2026?
Không phải ngẫu nhiên mà anh Hải lại chốt phương án thiết kế này ngay từ lần đầu tiên làm việc với Techhome. Dưới góc độ chuyên gia, tôi đánh giá mẫu nhà cấp 4 mái bằng hiện đại sở hữu 3 ưu điểm vượt trội:
-
Khả năng chống chịu thiên tai tốt: Với kết cấu mái bê tông cốt thép đổ bằng, ngôi nhà cực kỳ vững chắc trước các cơn bão lớn – điều mà mái tôn hay mái ngói khó lòng so bì được.
-
Tối ưu diện tích sử dụng mái: Phần mái bằng không chỉ để che mưa nắng. Như trong bản vẽ phối cảnh chim ưng, anh Hải có thể tận dụng một phần làm nơi đặt bồn nước, hệ thống thái dương năng, hoặc sau này có thể cải tạo thành sân thượng trồng rau sạch, góc chill uống trà buổi tối.
-
Tiết kiệm chi phí trang trí: Thay vì đầu tư hàng trăm triệu vào hệ mái phức tạp, chúng tôi tập trung kinh phí vào vật liệu hoàn thiện như sơn giả đá, đèn led trang trí mặt tiền và hệ cửa kính. Điều này giúp mẫu nhà cấp 4 mái bằng hiện đại trông sang trọng hơn hẳn số tiền thực tế bạn bỏ ra.

4. Báo giá thi công trọn gói mẫu nhà 90m2 (Tham khảo năm 2026)
Để bạn dễ dàng hình dung và chuẩn bị tài chính, Techhome xin đưa ra bảng dự toán sơ bộ cho mẫu nhà cấp 4 mái bằng hiện đại diện tích 90m2 tại khu vực Bắc Giang và các tỉnh lân cận:
| Hạng mục | Đơn giá tham khảo (VNĐ/m2) | Thành tiền (Dự kiến) |
| Gói thiết kế | Hiện đại: 108.000
Tân cổ điển: 130.000 |
9.720.000
11.700.000 |
| Thi công phần thô & nhân công hoàn thiện | 3.800.000 – 4.200.000 | 342 – 378 triệu |
| Thi công trọn gói (Chìa khóa trao tay) | 6.500.000 – 7.500.000 | 585 – 675 triệu |
Lưu ý: Đây chỉ là mức chi phí ước tính. Để nhận được báo giá chính xác và chi tiết nhất cho công trình của bạn, vui lòng liên hệ trực tiếp với chúng tôi. Hoặc để tìm hiểu rõ hơn về tiêu chuẩn vật liệu xây dựng và các yếu tố ảnh hưởng đến chi phí, bạn có thể tham khảo thêm tại các bài viết chuyên sâu về vật liệu xây dựng cao cấp trên Wikipedia.

5. Góc chuyên gia: 3 bí kíp để xây nhà cấp 4 đẹp như phối cảnh
Nhiều khách hàng tâm sự với Tôi rằng: “Tại sao nhìn ảnh thiết kế đẹp mà xây xong trông cứ… sai sai?”. Để mẫu nhà cấp 4 mái bằng hiện đại của bạn hoàn hảo như tranh vẽ, hãy lưu ý:
-
Đừng tiếc tiền cho hệ thống đèn: Bạn thấy những ánh sáng vàng ấm áp trong ảnh không?. Đó là hệ đèn downlight âm trần sê-nô và đèn hắt tường. Thiếu ánh sáng trang trí, ngôi nhà sẽ mất đi 50% vẻ đẹp vào buổi tối.
-
Xử lý chống thấm mái cực kỹ: Nhược điểm của mái bằng là dễ đọng nước nếu thi công không chuẩn. Hãy yêu cầu nhà thầu sử dụng phụ gia chống thấm loại tốt và tạo độ dốc thoát nước chuẩn xác. Một mẫu nhà cấp 4 mái bằng hiện đại hoàn hảo phải là một ngôi nhà “không tì vết” dưới những cơn mưa.
-
Chọn màu sơn chuẩn: Màu xám trên bản vẽ thường là xám ghi đậm để tạo chiều sâu. Khi ra thực tế, hãy test màu sơn trên diện tích nhỏ trước khi sơn toàn bộ nhà để đảm bảo đúng tông màu bạn mong muốn.

6. Lời kết từ Techhome
Ngôi nhà không chỉ là nơi để che mưa che nắng, đó là nơi bão dừng sau cánh cửa. Mẫu nhà cấp 4 mái bằng hiện đại của anh Hải tại Bắc Giang là minh chứng cho việc: Không cần quá phô trương, sự tinh tế trong đường nét và khoa học trong bố trí mặt bằng sẽ tạo nên một không gian sống đáng mơ ước.
Nếu bạn cũng yêu thích sự trẻ trung, năng động của mẫu nhà cấp 4 mái bằng hiện đại này, đừng ngần ngại liên hệ với đội ngũ kiến trúc sư tại Techhome. Chúng tôi luôn sẵn sàng lắng nghe và hiện thực hóa ngôi nhà trong mơ của bạn với mức chi phí tối ưu nhất.

CÔNG TY CỔ PHẦN KIẾN TRÚC VÀ XÂY DỰNG TECHHOME
-
Website: nhadeptechhome.vn
-
Hotline : 036.273.2222
-
Địa chỉ: B1.1 LK18 Ô 3 – KĐT Thanh Hà – Cienco 5 – Thanh Oai- Hà Nội.
