Mẫu nhà cấp 4 mái Nhật 3 phòng ngủ 140m2: Tuyệt phẩm hiện đại tại Hưng Yên

Bạn đang sở hữu một mảnh đất rộng ở quê và muốn xây dựng một không gian sống vừa hiện đại, vừa gần gũi với thiên nhiên? Bạn băn khoăn không biết bố trí công năng thế nào để vừa có đủ 3 phòng ngủ, vừa có không gian thờ tự trang nghiêm?

Hôm nay, Techhome xin giới thiệu đến bạn hồ sơ thiết kế kỹ thuật thi công công trình nhà ở gia đình của anh Thắng tại Hưng Yên. Đây là một mẫu nhà cấp 4 mái Nhật 3 phòng ngủ điển hình cho xu hướng kiến trúc bền vững, tối giản nhưng cực kỳ sang trọng.


1. Tổng quan dự án: Sự kết hợp hoàn hảo giữa công năng và thẩm mỹ

Khi nhận yêu cầu từ anh Thắng, đội ngũ kiến trúc sư của Techhome đã dành nhiều thời gian nghiên cứu địa hình và hướng gió tại Hưng Yên để đưa ra phương án tối ưu nhất. Với diện tích sàn 140m2, căn nhà không quá đồ sộ nhưng lại toát lên vẻ thanh thoát nhờ hệ mái Nhật đặc trưng.

Thông tin chung về công trình:

  • Chủ đầu tư: Anh Thắng.

  • Địa điểm xây dựng: Hưng Yên.

  • Đơn vị thiết kế: Công ty Cổ phần Kiến trúc và Xây dựng Techhome.

  • Diện tích xây dựng: 140m2.

  • Chiều cao tầng: 4,1m.

  • Phong cách: Hiện đại, hệ mái Nhật.

Cái hay của mẫu nhà cấp 4 mái Nhật 3 phòng ngủ này chính là sự cân bằng. Không quá cầu kỳ như tân cổ điển, cũng không quá cứng nhắc như nhà ống, nó mang lại cảm giác “nhà là nơi để về” đúng nghĩa.

Phối cảnh chính diện mẫu nhà cấp 4 mái Nhật hiện đại diện tích 140m2 tại Hưng Yên.
Phối cảnh chính diện mẫu nhà cấp 4 mái Nhật hiện đại diện tích 140m2 tại Hưng Yên.

2. Phân tích mặt bằng công năng: Tối ưu đến từng centimet

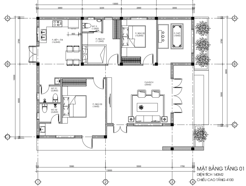
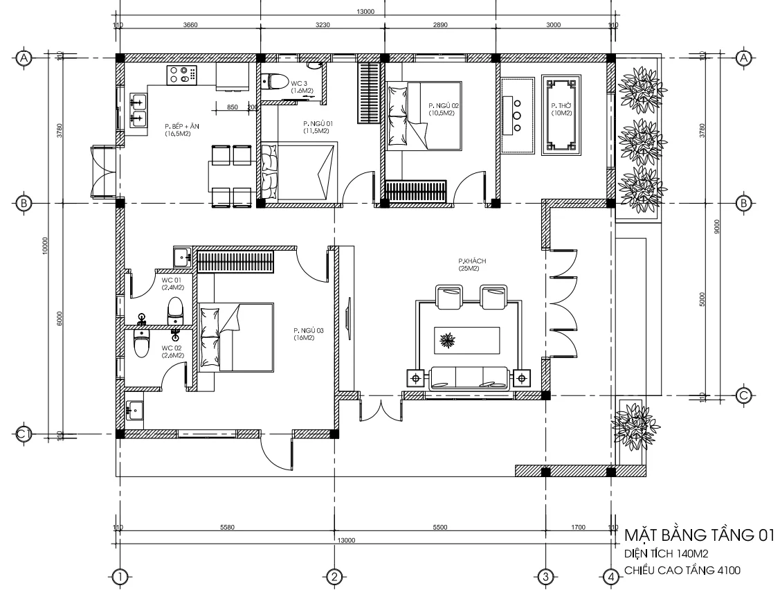
Một bản vẽ đẹp trên giấy chỉ có giá trị khi nó thực sự tiện nghi trong sinh hoạt hàng ngày. Mời bạn cùng “soi” kỹ mặt bằng tầng 01 mà chúng tôi đã thiết kế cho anh Thắng.

Không gian sinh hoạt chung (Phòng khách & Bếp)

  • Phòng khách (25m2): Được đặt ngay vị trí trung tâm, đón ánh sáng trực tiếp từ cửa chính và hệ cửa sổ lớn. Với diện tích 25m2, đây là không gian đủ rộng để gia đình quây quần hoặc tiếp đón khách quý vào dịp lễ Tết.

  • Phòng bếp + Ăn (16,5m2): Thiết kế cuối nhà, có sự tách biệt tinh tế để tránh mùi thức ăn. Khu vực này có cửa phụ đi ra ngoài, giúp không gian luôn thoáng đãng và không bị ám mùi thức ăn khi nấu nướng.

Không gian riêng tư (3 Phòng ngủ)

Điểm nhấn của mẫu nhà cấp 4 mái Nhật 3 phòng ngủ chính là cách sắp xếp các phòng ngủ để đảm bảo tính riêng tư nhưng vẫn gắn kết:

  • Phòng ngủ 01 (11,5m2): Phù hợp cho con cái kết hợp vệ sinh khép kín.

  • Phòng ngủ 02 (10,5m2): Không gian ấm cúng, dễ dàng bài trí nội thất thông minh.

  • Phòng ngủ 03 (16m2): Đây là phòng ngủ Master với diện tích ưu tiên kết hợp vệ sinh riêng, có cửa sổ lớn nhìn ra sân vườn, tạo cảm giác thư giãn tuyệt đối.

Không gian tâm linh và phụ trợ

  • Phòng thờ (10m2): Một khu vực không thể thiếu trong văn hóa người Việt. Phòng thờ được đặt ở vị trí trang trọng, yên tĩnh, tách biệt với sự ồn ào của phòng khách.

  • Hệ thống WC: Nhà được bố trí 3 phòng vệ sinh (1,6m2 – 2,6m2) được đặt tại các vị trí chiến lược, đảm bảo sự tiện lợi trong sinh hoạt mà vẫn chuẩn phong thủy.

Chi tiết bản vẽ mặt bằng tầng 01 nhà cấp 4 mái Nhật 3 phòng ngủ diện tích 140m2.
Chi tiết bản vẽ mặt bằng tầng 01 nhà cấp 4 mái Nhật 3 phòng ngủ diện tích 140m2.

3. Kiến trúc ngoại thất: Đẳng cấp đến từ sự đơn giản

Nhìn vào phối cảnh 3D, bạn sẽ thấy mẫu nhà cấp 4 mái Nhật 3 phòng ngủ này sử dụng tông màu trắng chủ đạo kết hợp với hệ cửa nhôm kính màu đen xám hiện đại.

Hệ mái Nhật với độ dốc vừa phải không chỉ giúp thoát nước mưa nhanh mà còn có khả năng chống nóng tuyệt vời cho khí hậu miền Bắc. Phía trên mái còn được tích hợp hệ thống bồn nước và năng lượng mặt trời (thái dương năng), giúp gia đình tiết kiệm điện năng đáng kể.

Góc nhìn chuyên gia: Hệ mái Nhật có độ bền cao hơn mái Thái về khả năng chịu gió bão nhờ cấu trúc thấp dần và các cạnh tiếp giáp chắc chắn. Đây là lý do tại sao các chủ đầu tư tại Hưng Yên rất ưa chuộng phong cách này.


4. Báo giá thi công trọn gói (Tham khảo năm 2026)

Để bạn dễ hình dung và chuẩn bị tài chính, Techhome xin đưa ra bảng dự toán sơ bộ cho mẫu nhà cấp 4 mái Nhật 3 phòng ngủ với quy mô 140m2.

Hạng mục Đơn giá (VNĐ/m2) Thành tiền (VNĐ)
Phần thô & Nhân công 3.800.000 – 4.200.000 ~ 560.000.000
Hoàn thiện cơ bản 2.000.000 – 2.500.000 ~ 310.000.000
Hệ mái Nhật (Ngói màu) Tính theo diện tích mái ~ 120.000.000
TỔNG CỘNG ~ 990.000.000

Lưu ý: Đây chỉ là mức chi phí ước tính. Để nhận được báo giá chính xác và chi tiết nhất cho công trình của bạn, vui lòng liên hệ trực tiếp với chúng tôi. Hoặc để tìm hiểu rõ hơn về tiêu chuẩn vật liệu xây dựng và các yếu tố ảnh hưởng đến chi phí, bạn có thể tham khảo thêm tại các bài viết chuyên sâu về vật liệu xây dựng cao cấp trên Wikipedia.

Góc nghiêng mẫu nhà cấp 4 mái Nhật 3 phòng ngủ


5. Tại sao nên chọn Mẫu nhà cấp 4 mái Nhật 3 phòng ngủ của Techhome?

Có rất nhiều đơn vị thiết kế trên thị trường, nhưng tại sao anh Thắng lại tin tưởng trao gửi niềm tin cho Techhome?

  1. Thiết kế cá nhân hóa: Chúng tôi không “copy-paste”. Mỗi bản vẽ là một sự nghiên cứu kỹ lưỡng về thói quen sinh hoạt của chủ nhà.

  2. Hồ sơ kỹ thuật chi tiết: Từ mặt bằng, mặt đứng đến chi tiết điện nước đều được các kiến trúc sư kiểm duyệt khắt khe.

  3. Tư vấn tận tâm: Hotline 0364042222 luôn sẵn sàng hỗ trợ tư vấn kỹ thuật xây dựng cho khách hàng mọi lúc, mọi nơi.

  4. Tối ưu chi phí: Chúng tôi giúp bạn quản lý vật tư, tránh thất thoát và phát sinh không đáng có trong quá trình xây dựng mẫu nhà cấp 4 mái Nhật 3 phòng ngủ.

Góc nghiêng mẫu nhà cấp 4 mái Nhật 3 phòng ngủ


6. Lời khuyên từ chuyên gia khi xây dựng nhà mái Nhật

Xây nhà là việc cả đời. Với góc độ là một chuyên gia thiết kế, tôi muốn chia sẻ thêm với bạn một vài lưu ý để mẫu nhà cấp 4 mái Nhật 3 phòng ngủ của bạn trở nên hoàn hảo hơn:

  • Độ dốc mái: Mái Nhật thường có độ dốc thấp hơn mái Thái (khoảng dưới 40%). Hãy đảm bảo thợ thi công đo đạc chính xác để tạo ra tỉ lệ vàng cho ngôi nhà.

  • Ánh sáng tự nhiên: Đừng tiết kiệm cửa sổ. Hãy sử dụng hệ kính cường lực lớn để kết nối không gian bên trong với sân vườn. Một ngôi nhà đẹp là ngôi nhà tràn ngập ánh nắng.

  • Phong thủy màu sắc: Tông màu trắng và xám của mẫu nhà cấp 4 mái Nhật 3 phòng ngủ này thuộc hành Kim và Thủy, rất hợp với những gia chủ mệnh Thủy hoặc Mộc.

  • Sân vườn: Với nhà cấp 4, khoảng sân phía trước rất quan trọng. Bạn nên bố trí thêm các bồn hoa sát chân tường để tạo điểm nhấn xanh mát.

Tổng thể từ trên cao nhà mái Nhật 1 tầng có hệ thống năng lượng mặt trời hiện đại.
Tổng thể từ trên cao nhà mái Nhật 1 tầng có hệ thống năng lượng mặt trời hiện đại.

7. Quy trình làm việc chuyên nghiệp tại Techhome

Để có được một bản thiết kế hoàn thiện như hồ sơ của anh Thắng tại Hưng Yên, chúng tôi thực hiện theo quy trình 5 bước nghiêm ngặt:

  1. Tiếp nhận & Khảo sát: Lắng nghe mong muốn của gia chủ về mẫu nhà cấp 4 mái Nhật 3 phòng ngủ.

  2. Lên ý tưởng 2D: Bố trí mặt bằng công năng tối ưu dựa trên diện tích đất.

  3. Dựng phối cảnh 3D: Giúp khách hàng hình dung rõ nét về ngôi nhà tương lai.

  4. Triển khai kỹ thuật: Hoàn thiện hồ sơ điện, nước, kết cấu chi tiết.

  5. Bàn giao & Hỗ trợ: Đồng hành cùng gia chủ trong suốt quá trình thi công.

Ngôi nhà của anh Thắng với chiều cao tầng 4,1m tạo nên sự thông thoáng tuyệt đối, tránh cảm giác bí bách thường thấy ở các mẫu nhà trần thấp. Đây chính là giá trị cốt lõi mà Techhome mang lại – sự thoải mái trong từng nhịp thở.

Tổng thể từ trên cao mẫu nhà cấp 4 mái Nhật 3 phòng ngủ


8. Kết luận: Nhà không chỉ là nơi để ở, mà là nơi hưởng thụ

Mẫu thiết kế dành cho anh Thắng tại Hưng Yên là minh chứng cho việc: Không cần quá nhiều tầng, chỉ cần một mẫu nhà cấp 4 mái Nhật 3 phòng ngủ được thiết kế bài bản là đủ để khẳng định vị thế và gu thẩm mỹ của gia chủ.

Nếu bạn đang tìm kiếm một đơn vị uy tín để biến ý tưởng về ngôi nhà mơ ước thành hiện thực, đừng ngần ngại liên hệ với chúng tôi. Techhome cam kết mang đến những công trình “Chất lượng trong thi công – Đẳng cấp trong thiết kế”.

Mẫu nhà cấp 4 mái Nhật 3 phòng ngủ diện tích 140m2 này liệu có phải là chân ái của bạn? Hãy để lại bình luận hoặc gọi ngay hotline để được tư vấn miễn phí nhé!


Thông tin liên hệ Techhome:

Để lại một bình luận

Email của bạn sẽ không được hiển thị công khai. Các trường bắt buộc được đánh dấu *

    Vui lòng nhấn nút YÊU CẦU TƯ VẤN và đợi 1 - 2 giây đến khi thấy thông báo thành công

    YÊU CẦU TƯ VẤN