Mẫu nhà phố 2 tầng hiện đại tại Thái Bình: Tuyệt phẩm kiến trúc 5x20m của gia đình anh Biên

Nếu bạn đang sở hữu một mảnh đất hình ống với chiều sâu lớn nhưng chưa biết phân chia công năng sao cho thoáng đãng, thì câu chuyện xây nhà của anh Biên tại Thái Thụy, Thái Bình dưới đây chính là nguồn cảm hứng tuyệt vời nhất. Không cầu kỳ, rườm rà, mẫu nhà phố 2 tầng hiện đại mà TechHome giới thiệu hôm nay là minh chứng cho vẻ đẹp đến từ sự tinh tế và giải pháp không gian thông minh.

1. Thông tin tổng quan dự án

Trước khi đi sâu vào chi tiết, mời quý khách hàng cùng điểm qua những thông số kỹ thuật ấn tượng của công trình này:

Hạng mục Thông tin chi tiết
Chủ đầu tư

Anh Biên

Địa điểm

Thái Thụy – Thái Bình

Đơn vị thiết kế

Công ty Cổ phần Kiến trúc và Xây dựng TECH HOME

Kích thước đất

5m x 20m 

Diện tích xây dựng

222 m2 (Tổng diện tích sàn)

Công năng Tầng 1

104 m2: P.Khách, Bếp + Ăn, 1 P.Ngủ, WC chung

Công năng Tầng 2

118 m2: P.Thờ, 3 P.Ngủ (1 Master), WC chung, Sân phơi

Phong cách Mẫu nhà phố 2 tầng hiện đại, mái bằng
Phối cảnh mặt tiền mẫu nhà phố 2 tầng hiện đại rộng 5m kiến trúc mái bằng tại Thái Bình.
Phối cảnh mặt tiền mẫu nhà phố 2 tầng hiện đại rộng 5m kiến trúc mái bằng tại Thái Bình.

2. Câu chuyện sau bản vẽ: Khi “đất dài” cần một giải pháp “thoáng”

Vào một buổi sáng đẹp trời, anh Biên tìm đến Tech Home với một tập hồ sơ đất và rất nhiều trăn trở. Mảnh đất của gia đình anh tại Thái Thụy có đặc điểm là chiều sâu lên tới 23m nhưng chiều ngang chỉ khoảng 5.2m. Đây là kích thước điển hình của nhà ống, và nỗi lo lớn nhất của anh là sự bí bách, thiếu sáng – “bệnh mãn tính” của các ngôi nhà phố.

Anh chia sẻ: “Anh muốn một ngôi nhà đơn giản thôi, nhưng phải sang. Quan trọng nhất là bước vào nhà phải thấy gió lùa, thấy nắng, chứ không được hun hút như cái hang.”

Thấu hiểu điều đó, các KTS của Tech Home đã họp bàn và quyết định lựa chọn mẫu nhà phố 2 tầng hiện đại với ngôn ngữ thiết kế tối giản, tập trung vào việc lấy sáng từ giếng trời và bố trí hành lang giao thông mạch lạc. Đây không chỉ là nơi ở, mà là chốn về bình yên cho cả gia đình 3 thế hệ.

Góc nghiêng mẫu nhà phố 2 tầng hiện đại

3. Phối cảnh ngoại thất: Vẻ đẹp từ sự tối giản và hình khối mạnh mẽ

Nhìn vào phối cảnh mặt tiền, bạn sẽ thấy mẫu nhà phố 2 tầng hiện đại của anh Biên toát lên sự trẻ trung và vững chãi. Thay vì sử dụng các phào chỉ rườm rà của kiến trúc tân cổ điển, chúng tôi sử dụng các hình khối vuông vức, đường nét dứt khoát.

Điểm nhấn kiến trúc mặt tiền

Mặt tiền tầng 2 là điểm “ăn tiền” nhất của ngôi nhà. Khối đua ban công được thiết kế rộng rãi, kết hợp với bồn cây xanh mát tạo nên một lớp đệm thiên nhiên lọc bụi và tiếng ồn. Lan can sử dụng sắt sơn tĩnh điện thanh mảnh, vừa an toàn vừa không cản tầm nhìn.

Màu sắc chủ đạo là trắng sứ kết hợp với màu ghi xám của đá ốp và màu gỗ của trần ban công. Sự tương phản nhẹ nhàng này giúp mẫu nhà phố 2 tầng hiện đại trở nên nổi bật giữa khu phố mà không cần quá phô trương. Hệ cửa kính Xingfa khổ lớn hình vòm ở tầng 2 không chỉ giúp lấy sáng tối đa mà còn làm mềm đi sự cứng cáp của các khối bê tông.

Giải pháp mái bằng hiện đại

Với khí hậu miền Bắc, đặc biệt là vùng ven biển Thái Bình, mái bằng là lựa chọn tối ưu về kinh tế và công năng. Hệ mái của mẫu nhà phố 2 tầng hiện đại này được xử lý chống thấm kỹ lưỡng, có độ dốc thu nước tiêu chuẩn, giúp gia chủ hoàn toàn yên tâm trước những cơn mưa bão.

Góc nghiêng mẫu nhà phố 2 tầng hiện đại

4. Khám phá công năng: Bài toán chia phòng trên diện tích 222m2

Sự thành công của một mẫu nhà phố 2 tầng hiện đại không chỉ nằm ở cái “vỏ” đẹp, mà nằm ở cái “ruột” tiện nghi. Với tổng diện tích thiết kế 222m2, việc phân bổ không gian cho gia đình anh Biên được tính toán chi tiết từng milimet.

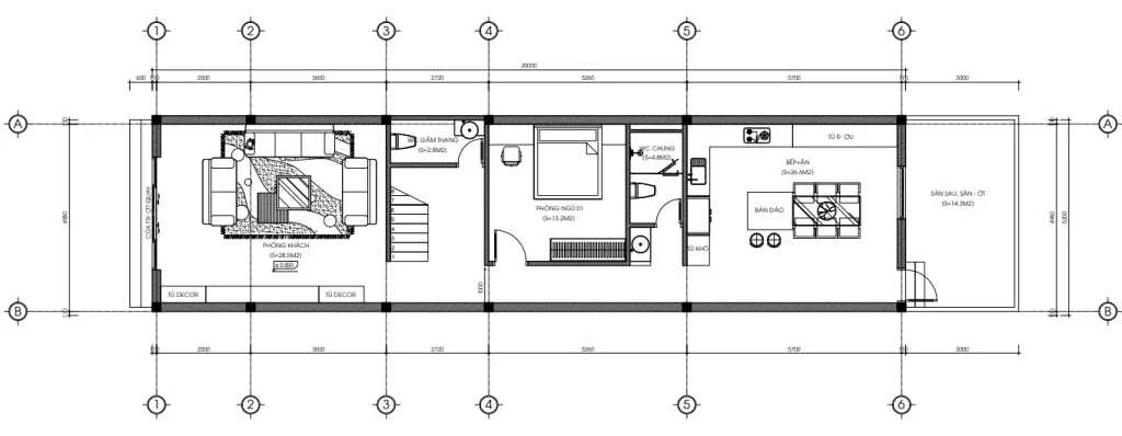
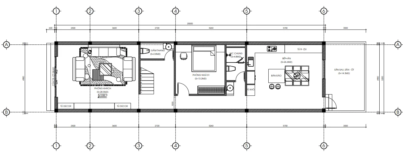
Tầng 1: Không gian kết nối (Diện tích 104m2)

Bước qua khoảng sân trước rộng rãi dùng để xe, chúng ta tiến vào không gian chính:

  • Phòng khách: Được bố trí ngay cửa chính, rộng rãi và sang trọng.

  • Cầu thang: Hệ thống cầu thang 25 bậc với chiều cao bậc 164mm – đây là tỉ lệ vàng giúp bước chân người già và trẻ nhỏ không bị mỏi. Gầm thang được tận dụng làm WC 2.8m2.

  • Bếp & Phòng ăn: Đây là trái tim của ngôi nhà. Khu vực bếp được thiết kế hiện đại với bàn đảo (bar mini), tạo sự ngăn cách nhẹ nhàng nhưng vẫn kết nối với phòng ăn.

  • Phòng ngủ 01: Một phòng ngủ nhỏ được bố trí phía sau cầu thang, thích hợp cho ông bà để tránh leo trèo.

  • Sân ướt & WC: Phía cuối nhà là khu vực sân ướt và vệ sinh chung được đặt cạnh phòng ngủ, đảm bảo sự tách biệt và sạch sẽ.

Bản vẽ bố trí công năng tầng 1 mẫu nhà phố 2 tầng hiện đại có phòng ngủ ông bà tiện dụng.
Bản vẽ bố trí công năng tầng 1 mẫu nhà phố 2 tầng hiện đại có phòng ngủ ông bà tiện dụng.

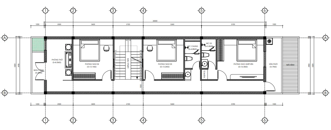
Tầng 2: Không gian nghỉ ngơi riêng tư (Diện tích 118m2)

Đi theo lối cầu thang lên tầng 2, không gian được mở rộng bất ngờ:

  • Phòng thờ: Đặt ở vị trí trang trọng nhất phía trước nhà, hướng ra ban công để đón vượng khí.

  • 3 Phòng ngủ: Tầng này bố trí tới 3 phòng ngủ. Trong đó có 1 phòng ngủ Master khép kín (có WC riêng) dành cho vợ chồng anh Biên , và 2 phòng ngủ thường dành cho các con.

  • Giếng trời: Điểm đắt giá nằm ở khu vực giữa nhà. Giếng trời giúp đối lưu không khí, đưa ánh sáng tự nhiên len lỏi vào các phòng ngủ phía trong, giải quyết triệt để vấn đề thiếu sáng của nhà ống.

  • Khu giặt phơi: Được bố trí kín đáo phía sau cùng, đảm bảo thẩm mỹ cho mặt tiền.

Cách bố trí này biến mẫu nhà phố 2 tầng hiện đại thành một tổ hợp không gian sống lý tưởng, nơi mỗi thành viên đều có khoảng trời riêng nhưng vẫn dễ dàng kết nối với nhau.

Chi tiết mặt bằng tầng 2 mẫu nhà phố 2 tầng hiện đại bố trí 3 phòng ngủ và phòng thờ trang nghiêm.
Chi tiết mặt bằng tầng 2 mẫu nhà phố 2 tầng hiện đại bố trí 3 phòng ngủ và phòng thờ trang nghiêm.

5. Tại sao “Mẫu nhà phố 2 tầng hiện đại” lại là xu hướng 2026?

Không phải ngẫu nhiên mà anh Biên và hàng trăm khách hàng khác của Tech Home lại lựa chọn mẫu nhà phố 2 tầng hiện đại. Dưới góc nhìn chuyên gia, chúng tôi phân tích 3 lý do chính:

  1. Tối ưu chi phí xây dựng: So với kiến trúc cổ điển đắp vẽ hoa văn tốn kém nhân công, phong cách hiện đại tập trung vào vật liệu và hình khối, giúp tiết kiệm từ 15-20% chi phí hoàn thiện.

  2. Không lỗi mốt: Vẻ đẹp của sự đơn giản là vẻ đẹp trường tồn. Một mẫu nhà phố 2 tầng hiện đại được xây dựng năm nay vẫn sẽ giữ được vẻ thời thượng sau 10-20 năm nữa.

  3. Linh hoạt trong vật liệu: Bạn có thể dễ dàng kết hợp gỗ, kính, đá, bê tông trần… để tạo nên cá tính riêng mà không bị gò bó bởi các quy tắc khắt khe.

6. Gợi ý chuyên gia: Làm sao để nhà phố 5m mặt tiền rộng như 7m?

Là những người trực tiếp kiến tạo nên mẫu nhà phố 2 tầng hiện đại này, Tech Home xin mách bạn một vài thủ thuật nhỏ mà chúng tôi đã áp dụng cho nhà anh Biên:

  • Sử dụng vách ngăn kính: Thay vì xây tường gạch kín mít ngăn cách phòng khách và bếp, hãy dùng vách kính hoặc lam gỗ thoáng.

  • Màu sắc đánh lừa thị giác: Sơn tường màu trắng hoặc kem, trần nhà cao và sử dụng gạch lát nền khổ lớn (80x80cm hoặc 60x120cm) sẽ tạo cảm giác không gian được nới rộng đáng kể.

  • Tận dụng ánh sáng: Đừng tiếc chi phí cho giếng trời. Một mẫu nhà phố 2 tầng hiện đại có giếng trời sẽ tiết kiệm cho bạn hàng triệu tiền điện thắp sáng và điều hòa mỗi năm nhờ khả năng làm mát tự nhiên.

Để tìm hiểu rõ hơn về tiêu chuẩn vật liệu xây dựng và các yếu tố ảnh hưởng đến chi phí, bạn có thể tham khảo thêm tại các bài viết chuyên sâu về vật liệu xây dựng cao cấp trên Wikipedia.

Tổng thể mẫu nhà phố 2 tầng hiện đại kích thước 5x20m nhìn từ trên cao với giếng trời lấy sáng.
Tổng thể mẫu nhà phố 2 tầng hiện đại kích thước 5x20m nhìn từ trên cao với giếng trời lấy sáng.

7. Báo giá thiết kế và thi công (Tham khảo 2026)

Rất nhiều khách hàng khi ngắm nhìn mẫu nhà phố 2 tầng hiện đại này đều thắc mắc: “Đẹp thế này chắc đắt lắm?”. Thực tế, Tech Home luôn có giải pháp cân đối tài chính cho từng gia chủ.

Dưới đây là bảng khái toán chi phí xây dựng cho ngôi nhà có tổng diện tích sàn 222m2 như nhà anh Biên (Lưu ý: Giá có thể thay đổi tùy thời điểm và vật liệu thực tế):

7.1. Chi phí thiết kế

  • Đơn giá thiết kế kiến trúc: 108.000 VNĐ/m2.

  • Thành tiền: Khoảng 24 triệu đồng.

7.2. Chi phí thi công phần thô

Bao gồm: Móng, khung cột, sàn bê tông, xây trát tường, điện nước âm tường.

  • Đơn giá: 4.200.000 – 4.500.000 VNĐ/m2.

  • Tổng chi phí phần thô: ~ 930 triệu – 1 tỷ đồng.

7.3. Chi phí hoàn thiện

Bao gồm: Gạch ốp lát, sơn bả, trần thạch cao, cửa nhôm kính, thiết bị vệ sinh…

  • Gói cơ bản: 2.000.000 – 2.500.000 VNĐ/m2.

  • Gói khá (như nhà anh Biên): 3.000.000 – 3.500.000 VNĐ/m2.

  • Tổng chi phí hoàn thiện: ~ 600 – 700 triệu đồng.

Tổng mức đầu tư dự kiến (Chìa khóa trao tay): Khoảng 1.6 tỷ – 1.7 tỷ đồng.

Đây là mức giá cực kỳ hợp lý để sở hữu một mẫu nhà phố 2 tầng hiện đại, công năng 4 phòng ngủ tiện nghi tại Thái Bình.

Tổng thể mẫu nhà phố 2 tầng hiện đại

8. Quy trình làm việc tại TechHome – Nơi niềm tin được đặt đúng chỗ

Để ra đời được mẫu nhà phố 2 tầng hiện đại hoàn hảo như hồ sơ của anh Biên, Tech Home áp dụng quy trình 6 bước chặt chẽ:

  1. Tiếp nhận thông tin: Lắng nghe mong muốn, khảo sát hiện trạng đất thực tế.

  2. Tư vấn sơ bộ & Báo giá: Đưa ra phương án mặt bằng và dự toán tài chính.

  3. Ký hợp đồng thiết kế: Cam kết tiến độ và chất lượng.

  4. Triển khai bản vẽ 3D & Kỹ thuật: Khách hàng được xem trước ngôi nhà tương lai qua hình ảnh 3D sắc nét.

  5. Bàn giao hồ sơ: Đầy đủ các hạng mục Kiến trúc, Kết cấu, Điện nước.

  6. Giám sát tác quyền: Hỗ trợ kỹ thuật xây dựng 24/7 qua hotline 0364.04.2222 để đảm bảo thợ thi công đúng bản vẽ.

Chúng tôi hiểu rằng, xây một mẫu nhà phố 2 tầng hiện đại là tâm huyết cả đời người. Vì vậy, mỗi nét vẽ của KTS và đội ngũ Tech Home đều chứa đựng sự tận tâm và trách nhiệm cao nhất.

9. Lời khuyên về phong thủy cho nhà phố hiện đại

Khi thiết kế mẫu nhà phố 2 tầng hiện đại, yếu tố phong thủy không bị xem nhẹ mà được lồng ghép khéo léo.

  • Hướng bếp: Bếp nhà anh Biên được đặt “tọa hung hướng cát”, nhìn về hướng tốt cho gia chủ.

  • Cầu thang: Số bậc 25 rơi vào cung “Sinh” trong vòng luân hồi “Sinh – Lão – Bệnh – Tử”, mang lại sức khỏe và may mắn.

  • Phòng thờ: Đặt tại vị trí cao nhất, trang nghiêm nhất, tránh việc bị các không gian sinh hoạt khác đè lên.

Sự kết hợp giữa khoa học kiến trúc và phong thủy truyền thống giúp mẫu nhà phố 2 tầng hiện đại không chỉ đẹp mà còn mang lại vượng khí, tài lộc cho gia chủ.

Tổng quát mẫu nhà phố 2 tầng hiện đại

10. Kết luận

Câu chuyện về ngôi nhà của anh Biên tại Thái Thụy là minh chứng rõ nét cho năng lực của Tech Home trong việc kiến tạo không gian sống. Một mẫu nhà phố 2 tầng hiện đại đẹp không cần phải quá đắt đỏ, nó chỉ cần được thiết kế bởi những người thực sự thấu hiểu nhu cầu của bạn.

Nếu bạn đang sở hữu một mảnh đất tương tự và mơ ước về một tổ ấm tiện nghi, đừng ngần ngại chia sẻ với chúng tôi. Tech Home sẵn sàng biến ý tưởng của bạn thành hiện thực, giống như cách chúng tôi đã làm hài lòng gia đình anh Biên.

Với kinh nghiệm thực chiến hàng trăm công trình, chúng tôi tự tin mang đến cho bạn mẫu nhà phố 2 tầng hiện đại tối ưu nhất, tiết kiệm nhất và đáng sống nhất.


CÔNG TY CỔ PHẦN KIẾN TRÚC VÀ XÂY DỰNG TECH HOME

Bạn đã sẵn sàng sở hữu một mẫu nhà phố 2 tầng hiện đại cho riêng mình? Hãy liên hệ ngay với Tech Home để được tư vấn miễn phí ngay hôm nay!

Để lại một bình luận

Email của bạn sẽ không được hiển thị công khai. Các trường bắt buộc được đánh dấu *

    Vui lòng nhấn nút YÊU CẦU TƯ VẤN và đợi 1 - 2 giây đến khi thấy thông báo thành công

    YÊU CẦU TƯ VẤN