Chiêm ngưỡng mẫu nhà cấp 4 mái Nhật 4 phòng ngủ đẹp mê hồn tại Thanh Hóa. Thiết kế 160m2 sang trọng, tiện nghi của gia đình anh Hưng do Techhome thực hiện. Xem ngay báo giá và bản vẽ chi tiết!
1. Mở đầu: Khi vẻ đẹp truyền thống gặp gỡ kiến trúc hiện đại
Giữa nhịp sống hối hả, xu hướng tìm về sự bình yên với những mẫu nhà vườn rộng rãi đang lên ngôi mạnh mẽ. Không cần cao tầng chót vót, không cần thang máy cầu kỳ, một ngôi nhà cấp 4 mái Nhật bề thế, nằm vững chãi giữa khuôn viên đất rộng luôn mang lại cảm giác an yên khó tả.
Hôm nay, Kiến trúc Techhome xin giới thiệu đến quý khách hàng một “siêu phẩm” tâm huyết mà chúng tôi vừa bàn giao hồ sơ thiết kế cho gia đình anh Hưng tại Thanh Hóa. Đây không đơn thuần là một ngôi nhà, đây là tổ ấm 160m2 chứa đựng bao tâm huyết, là điển hình cho mẫu nhà cấp 4 mái Nhật 4 phòng ngủ đang “làm mưa làm gió” trên thị trường kiến trúc Việt năm 2026.

2. Thông tin tổng quan dự án tại Thanh Hóa
Trước khi đi sâu vào chi tiết vẻ đẹp ngoại thất và công năng, Techhome xin cung cấp những thông số kỹ thuật chính xác từ hồ sơ thiết kế kỹ thuật thi công để quý vị dễ dàng hình dung quy mô của công trình này:
-
Chủ đầu tư: Anh Hưng.
-
Địa điểm xây dựng: Thanh Hóa.
-
Đơn vị tư vấn thiết kế: Công ty Cổ phần Kiến trúc và Xây dựng Techhome.
-
Loại hình: Nhà ở gia đình (Nhà vườn 1 tầng).
-
Diện tích sàn chính: 160m2 (chưa bao gồm sảnh).
-
Khu vực bếp: 25m2 (thiết kế tách biệt hoặc nối liền sảnh phụ).
-
Chiều cao tầng: 4.1m – Chiều cao lý tưởng cho sự thông thoáng.
-
Công năng chính: 1 Phòng khách lớn, 1 Phòng thờ, 4 Phòng ngủ: khép kín và thường, 2 WC chung/riêng.
Với diện tích xây dựng lên tới gần 200m2 (tính cả bếp), mẫu nhà cấp 4 mái Nhật này thực sự là một cơ ngơi bề thế, đáp ứng hoàn hảo nhu cầu sinh hoạt cho gia đình đa thế hệ (từ 6-8 thành viên).

3. Phối cảnh ngoại thất: Vẻ đẹp “vạn người mê” của nhà mái Nhật
3.1. Kiến trúc mái Nhật – Linh hồn của ngôi nhà
Nhìn vào phối cảnh 3D, điểm thu hút đầu tiên chính là hệ mái Nhật màu xanh than lịch lãm, nổi bật trên nền sơn trắng sứ tinh khôi. Khác với mái Thái dốc cao, nhà cấp 4 mái Nhật (hay còn gọi là mái lùn) có độ dốc vừa phải, mở rộng ra các hướng, tạo nên sự cân đối và thanh thoát.
Hệ mái của nhà anh Hưng được Techhome thiết kế giật cấp tinh tế. Phần mái sảnh chính đua rộng, được nâng đỡ bởi hai cột trụ vuông vức, khỏe khoắn, tạo nên sự uy nghi ngay từ cái nhìn đầu tiên. Mái Nhật không chỉ đẹp về thẩm mỹ mà còn cực kỳ phù hợp với khí hậu Thanh Hóa: tản nhiệt tốt vào mùa hè và thoát nước nhanh vào mùa mưa bão.
3.2. Sự phối hợp màu sắc và vật liệu hiện đại
Để mẫu nhà cấp 4 mái Nhật này không bị đơn điệu, các kiến trúc sư Techhome đã khéo léo sử dụng các đường phào chỉ chạy dọc thân tường và hệ thống chân tường ốp đá thẻ màu ghi xám.
-
Cửa chính: Sử dụng gỗ Lim Nam Phi hoặc cửa thép vân gỗ cao cấp, kết hợp pano kính, vừa giữ được nét sang trọng truyền thống, vừa đón sáng tự nhiên.
-
Cửa sổ: Hệ nhôm kính Xingfa màu đen tuyền hiện đại, tạo độ tương phản mạnh mẽ với tường trắng, giúp không gian nội thất luôn tràn ngập ánh sáng và gió trời.
-
Sân vườn: Khoảng sân rộng được lát gạch chống trơn màu ghi sáng, kết hợp với hệ thống tường rào kiên cố nhưng vẫn thoáng đãng nhờ các ô thoáng sắt mỹ thuật.
Có thể nói, nhà cấp 4 mái Nhật của anh Hưng là sự giao thoa hoàn hảo: đủ hiện đại để không lỗi thời, nhưng cũng đủ truyền thống để mang lại cảm giác ấm cúng, gần gũi “nhà cao cửa rộng” của người Việt.

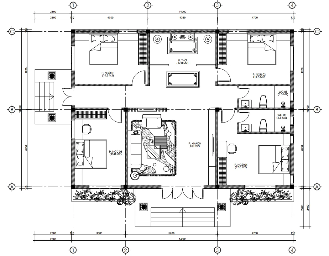
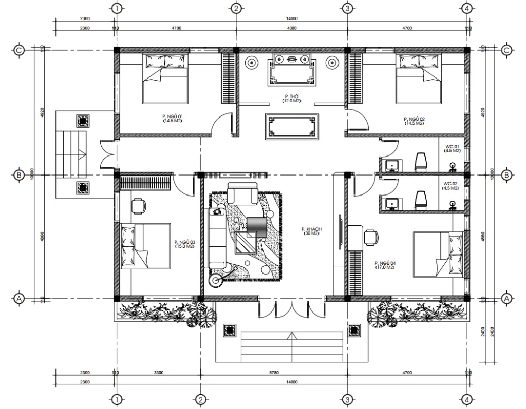
4. Mặt bằng công năng: Đỉnh cao của sự sắp xếp khoa học
Vẻ đẹp bên ngoài thu hút ánh nhìn, nhưng công năng bên trong mới là yếu tố giữ chân gia chủ. Với diện tích 160m2, bài toán đặt ra cho Techhome là bố trí 4 phòng ngủ sao cho rộng rãi nhưng vẫn đảm bảo tính kết nối. Hãy cùng xem các KTS đã giải bài toán này như thế nào.
Từ sảnh chính bước vào là không gian Phòng Khách rộng 30m2. Đây là “bộ mặt” của ngôi nhà, nơi anh Hưng dự định đặt bộ sofa gỗ sồi Nga bề thế. Không gian này nằm ở trung tâm, kết nối trực tiếp với các khu vực còn lại.
Đi sâu vào trong, ngay trục chính diện là Phòng Thờ trang nghiêm rộng 12m2. Trong văn hóa người Việt, phòng thờ luôn được đặt ở vị trí trang trọng nhất. Việc thiết kế phòng thờ riêng biệt thay vì kết hợp phòng khách cho thấy sự thành tâm và chú trọng lễ nghi của gia chủ.
Điểm đắt giá nhất của mẫu nhà cấp 4 mái Nhật này chính là hệ thống 4 phòng ngủ được bố trí xung quanh, đảm bảo sự riêng tư tuyệt đối:
-
Phòng ngủ 01: Diện tích 14.5m2.
-
Phòng ngủ 02: Diện tích 14.5m2.
-
Phòng ngủ 03: Diện tích 15.0m2.
-
Phòng ngủ 04: Diện tích lớn nhất 17.0m2 kết hợp vệ sinh khép kín 4,5m2, đây có thể là phòng ngủ Master dành cho vợ chồng anh Hưng.
- WC chung 4.5m2
Đặc biệt, khu vực Bếp nấu + Ăn rộng 25m2 được thiết kế tách khối hoặc tiếp nối phía sau (có lối đi riêng bên hông nhà). Thiết kế này cực kỳ thông minh, giúp mùi thức ăn không bay ngược lên phòng khách, đồng thời tạo ra không gian quây quần ấm cúng cho những bữa cơm gia đình.
Rõ ràng, với cách bố trí này, mẫu nhà cấp 4 mái Nhật của anh Hưng đã tối ưu hóa từng mét vuông đất, không có diện tích thừa, tạo nên luồng giao thông đi lại trong nhà cực kỳ thuận tiện.

5. Tại sao mẫu nhà cấp 4 mái Nhật 4 phòng ngủ lại là xu hướng 2026?
Không phải ngẫu nhiên mà anh Hưng tại Thanh Hóa lại “chốt” phương án nhà cấp 4 mái Nhật ngay từ lần trình bày đầu tiên. Dưới đây là những lý do khiến mẫu nhà này trở thành “quốc dân”:
-
Tiết kiệm chi phí xây dựng: So với nhà cao tầng, nhà cấp 4 giúp gia chủ tiết kiệm đáng kể chi phí móng, cầu thang và thời gian thi công.
-
Kết nối thành viên: Sống trong một mặt sàn giúp các thành viên trong gia đình tương tác với nhau nhiều hơn. Ông bà không phải leo cầu thang, trẻ con vui chơi trong tầm mắt bố mẹ.
-
Thẩm mỹ trường tồn: Kiến trúc mái Nhật đề cao sự tối giản nhưng tinh tế. Nó không quá phô trương như kiến trúc Cổ điển, nên rất khó bị lỗi mốt theo thời gian.
-
Gần gũi thiên nhiên: Nhà cấp 4 mái Nhật thường đi kèm với hệ thống sân vườn, tiểu cảnh, mang lại không gian sống xanh, tốt cho sức khỏe.

6. Quy trình thiết kế và thi công chuẩn chỉ của Techhome
Để ra được bộ hồ sơ thiết kế kỹ thuật thi công dày dặn và chi tiết như của nhà anh Hưng (bao gồm đầy đủ Kiến trúc, Kết cấu, Điện nước), đội ngũ Techhome đã làm việc với quy trình 6 bước nghiêm ngặt:
-
Khảo sát hiện trạng thực tế tại Thanh Hóa.
-
Lên phương án mặt bằng định vị công trình và phong thủy.
-
Dựng phối cảnh 3D ngoại thất.
-
Triển khai hồ sơ kỹ thuật thi công (bổ kỹ thuật).
-
Bàn giao hồ sơ và dự toán chi phí.
-
Giám sát tác giả (hỗ trợ tư vấn kỹ thuật từ xa qua Hotline 0364.04.2222 ).
Chúng tôi hiểu rằng, xây nhà là chuyện cả đời. Vì vậy, mỗi nét vẽ trong bản thiết kế nhà cấp 4 mái Nhật đều chứa đựng trách nhiệm và cái tâm của người làm nghề.

7. Báo giá thiết kế và xây dựng nhà cấp 4 mái Nhật (Tham khảo)
Rất nhiều khách hàng khi xem mẫu nhà của anh Hưng sẽ thắc mắc: “Xây ngôi nhà đẹp thế này hết bao nhiêu tiền?”. Techhome xin đưa ra bảng khái toán chi phí (mang tính chất tham khảo tại thời điểm năm 2026, khu vực Thanh Hóa) để quý vị dễ hình dung.
Đơn giá thiết kế:
-
Thiết kế kiến trúc + kết cấu + điện nước: 108.000đ/m2.
-
Với diện tích 160m2, chi phí thiết kế trọn gói khoảng: 17,3 triệu VNĐ. (Đây là khoản đầu tư quá nhỏ để tránh rủi ro đập đi xây lại).
Đơn giá thi công xây dựng (Chìa khóa trao tay): Hiện nay, đơn giá xây dựng nhà cấp 4 mái Nhật trọn gói mức khá tốt dao động khoảng 6.500.000đ – 7.500.000đ/m2.
-
Diện tích xây dựng tạm tính: 160m2 (sàn) + 25m2 (bếp) = ~185m2 xây dựng.
-
Tổng chi phí dự kiến: Khoảng 1.2 tỷ – 1.4 tỷ VNĐ (Tùy thuộc vào chủng loại vật tư hoàn thiện như gạch ốp lát, thiết bị vệ sinh, cửa gỗ hay nhôm kính…).
Lưu ý: Đây chỉ là mức chi phí ước tính. Để nhận được báo giá chính xác và chi tiết nhất cho công trình của bạn, vui lòng liên hệ trực tiếp với chúng tôi. Hoặc để tìm hiểu rõ hơn về tiêu chuẩn vật liệu xây dựng và các yếu tố ảnh hưởng đến chi phí, bạn có thể tham khảo thêm tại các bài viết chuyên sâu về vật liệu xây dựng cao cấp trên Wikipedia.

8. Lời kết
Công trình nhà cấp 4 mái Nhật của gia đình anh Hưng tại Thanh Hóa là minh chứng rõ nét cho năng lực thiết kế của Techhome: Hiện đại, khoa học và thấu hiểu khách hàng. Một ngôi nhà đẹp không chỉ ở hình thức bên ngoài mà còn ở công năng tiện nghi bên trong, mang lại chất lượng sống đỉnh cao cho gia chủ.
Nếu bạn cũng đang ấp ủ giấc mơ về một ngôi nhà vườn mái Nhật, hay đơn giản là muốn tham khảo thêm các mẫu nhà cấp 4 mái Nhật 3 phòng ngủ, 4 phòng ngủ khác, đừng ngần ngại liên hệ với chúng tôi.
CÔNG TY CỔ PHẦN KIẾN TRÚC VÀ XÂY DỰNG TECHHOME
-
Hotline/Zalo: 0364.04.2222 / 0387.60.3333.
-
Website: https://nhadeptechhome.vn/
-
Địa chỉ: B1.1 LK18 Ô 3 – KĐT Thanh Hà – Cienco 5 – Thanh Oai- Hà Nội.
