Bạn đang tìm kiếm một không gian sống vừa mang vẻ đẹp sang trọng của kiến trúc châu Âu, vừa giữ được nét thanh lịch, gần gũi của văn hóa Á Đông? Mẫu nhà mái Nhật 2 tầng tân cổ điển của gia đình anh Trung tại Sơn Dương, Tuyên Quang chính là câu trả lời hoàn hảo nhất. Với tổng diện tích sử dụng gần 200m², đây không chỉ là nơi để che mưa che nắng mà còn là niềm tự hào, là thành quả sau bao năm nỗ lực của gia chủ.
1. Cơ duyên và ý tưởng hình thành mẫu nhà mái Nhật 2 tầng tân cổ điển
Mỗi ngôi nhà Techhome thiết kế đều bắt đầu từ một câu chuyện. Với anh Trung, anh mong muốn một tổ ấm mà ở đó, các con có không gian chạy nhảy, ông bà có nơi thư thái tuổi già, và quan trọng nhất là vẻ ngoài phải “sang” nhưng không được “sến”.
Sau nhiều lần bàn thảo, đội ngũ kiến trúc sư đã quyết định lựa chọn phong cách nhà mái Nhật 2 tầng tân cổ điển. Tại sao lại là mái Nhật? Vì độ dốc vừa phải giúp thoát nước tốt trong khí hậu nóng ẩm tại Tuyên Quang, đồng thời tạo nên vẻ thanh thoát, nhẹ nhàng. Kết hợp với các đường phào chỉ tinh tế của phong cách tân cổ điển, ngôi nhà hiện lên như một dinh thự mini giữa lòng Sơn Dương.

2. Thông tin chi tiết dự án
Trước khi đi sâu vào vẻ đẹp kiến trúc, hãy cùng điểm qua các thông số kỹ thuật ấn tượng của công trình này:
-
Chủ đầu tư: Anh Trung
-
Địa điểm: Sơn Dương – Tuyên Quang
-
Đơn vị tư vấn: Công ty Cổ phần Kiến trúc và Xây dựng Techhome
-
Diện tích tầng 1: 103 m²
-
Diện tích tầng 2: 95 m²
-
Tổng diện tích thiết kế: 198 m²
-
Phong cách: Nhà mái Nhật 2 tầng tân cổ điển

3. Ngoại thất hút hồn: Sự giao thoa giữa trắng tinh khôi và xanh thanh lịch
Nhìn vào phối cảnh 3D, điểm gây ấn tượng đầu tiên chính là hệ mái Nhật màu xanh dương đậm nổi bật trên nền sơn tường trắng sứ. Đây là cách phối màu kinh điển giúp ngôi nhà không bao giờ lỗi mốt.
Các kiến trúc sư đã khéo léo sử dụng các cột trụ vuông vức ở tầng 1 để tạo cảm giác vững chãi, uy nghi. Lên đến tầng 2, hệ cột mềm mại kết hợp cùng các ban công uốn cong điệu nghệ với lan can sắt nghệ thuật màu vàng kim giúp mẫu nhà mái Nhật 2 tầng tân cổ điển trở nên mềm mại và quyến rũ hơn hẳn.
Hệ thống cửa sổ khung nhôm xingfa đen cao cấp không chỉ giúp lấy sáng tự nhiên tối đa mà còn tạo nên nét hiện đại, đối lập thú vị với các chi tiết hoa văn đắp nổi cầu kỳ. Đặc biệt, chiếc cổng nhôm đúc vàng đồng đồ sộ chính là “lớp áo giáp” sang trọng, khẳng định vị thế của gia chủ ngay từ cái nhìn đầu tiên.

4. Phân tích công năng: Khoa học và tối ưu diện tích
Một ngôi nhà đẹp trước hết phải là một ngôi nhà tiện dụng. Với diện tích 198m², Techhome đã bố trí công năng cực kỳ khéo léo để đảm bảo sự riêng tư nhưng vẫn gắn kết các thành viên.
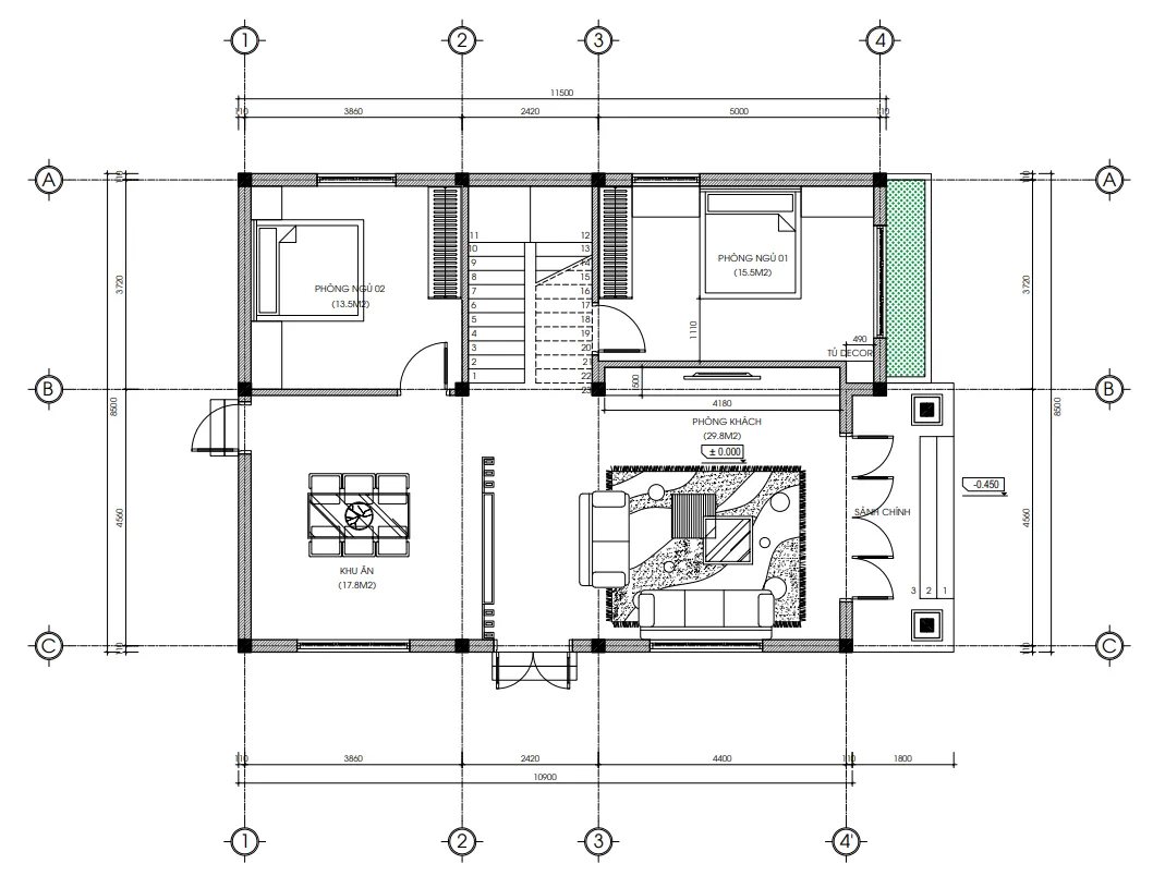
Tầng 1: Không gian sinh hoạt chung ấm cúng
Tầng 1 có diện tích 103 m², là nơi diễn ra các hoạt động chung của gia đình:
-
Phòng khách (29.8 m²): Bước qua cửa chính là không gian phòng khách rộng rãi, nơi gia chủ đón tiếp bạn bè. Với thiết kế trần cao 3m9, căn phòng luôn thoáng đãng.
-
Khu bếp ăn (17.8 m²): Được ngăn cách tinh tế với phòng khách, tạo không gian riêng biệt để chị nhà trổ tài nấu nướng.
-
2 Phòng ngủ (15.5 m² và 13.5 m²): Phù hợp cho người lớn tuổi trong gia đình để thuận tiện đi lại, không phải leo cầu thang.
-
Cầu thang: Gồm 23 bậc, chiều cao mỗi bậc là 169mm, được tính toán kỹ lưỡng theo chuẩn phong thủy “Sinh – Lão – Bệnh – Tử”.

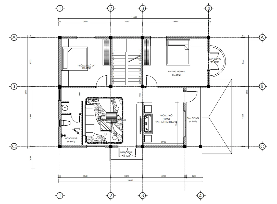
Tầng 2: Nơi nghỉ ngơi và thờ tự linh thiêng
Tầng 2 rộng 95 m², tập trung vào sự yên tĩnh:
-
Phòng thờ (13 m²): Đặt ở vị trí trang trọng nhất, có hướng nhìn ra ban công thoáng đãng, thể hiện lòng thành kính của con cháu.
-
2 Phòng ngủ lớn (17.6 m² và 13.5 m²): Dành cho vợ chồng anh Trung và các con, mỗi phòng đều có cửa sổ lớn đón gió.
-
Ban công (4.8 m²): Nơi anh Trung có thể nhâm nhi tách trà vào sáng sớm hoặc ngắm cảnh phố phường Sơn Dương về đêm.
-
WC chung: Được bố trí kín đáo nhưng thuận tiện cho tất cả các phòng.
Việc lựa chọn thiết kế nhà mái Nhật 2 tầng tân cổ điển giúp tối ưu hóa không gian phía dưới mái, làm cho tầng 2 luôn mát mẻ vào mùa hè và ấm áp vào mùa đông.

5. Tại sao các gia đình tại Tuyên Quang lại chuộng nhà mái Nhật 2 tầng tân cổ điển?
Không phải ngẫu nhiên mà mẫu nhà này lại trở thành “trend” trong những năm gần đây. Có 3 lý do chính:
-
Vẻ đẹp vượt thời gian: Sự kết hợp giữa cổ điển và hiện đại giúp ngôi nhà luôn giữ được giá trị thẩm mỹ, không bị lỗi thời sau 10-20 năm.
-
Phù hợp khí hậu: Mái Nhật có khả năng chống nóng và thoát nước cực tốt, rất phù hợp với thời tiết miền Bắc Việt Nam.
-
Chi phí hợp lý: So với những tòa lâu đài cầu kỳ, nhà mái Nhật 2 tầng tân cổ điển tiết kiệm chi phí thi công hơn nhưng vẫn đảm bảo sự sang trọng cần thiết.

6. Góc nhìn chuyên gia: Lưu ý khi xây dựng nhà mái Nhật 2 tầng tân cổ điển
Với kinh nghiệm nhiều năm trong nghề, Techhome khuyên bạn:
-
Chọn đơn vị thi công uy tín: Những đường phào chỉ, hoa văn tân cổ điển đòi hỏi tay thợ phải rất chắc và tỉ mỉ. Nếu làm không khéo, ngôi nhà trông sẽ rất “nặng nề”.
-
Ưu tiên vật liệu bền bỉ: Vì đây là tài sản cả đời, hãy sử dụng sơn ngoại thất chống thấm tốt, nhôm kính tiêu chuẩn và ngói màu cao cấp để mái nhà luôn tươi mới.
-
Chú trọng ánh sáng: Nhà mái Nhật 2 tầng tân cổ điển sẽ đẹp nhất khi có sự hỗ trợ của đèn trang trí ngoại thất vào ban đêm. Hãy bố trí các đèn hắt cột để tôn vinh các đường nét kiến trúc.

7. Báo giá thi công nhà mái Nhật 2 tầng tân cổ điển (Tham khảo 2026)
Để các bác dễ hình dung và chuẩn bị ngân sách, Techhome xin đưa ra bảng dự toán tham khảo cho mẫu nhà tương tự nhà anh Trung:
| Hạng mục | Đơn giá dự kiến (VNĐ/m²) | Thành tiền (Ước tính cho 198m²) |
| Gói thiết kế kiến trúc | 108.000 | 22 triệu |
| Thi công phần thô (Nhân công + Vật tư) | 3.800.000 – 4.500.000 | 750 – 900 triệu |
| Gói hoàn thiện cơ bản (Sơn, gạch, thiết bị vệ sinh) | 2.500.000 – 3.500.000 | 500 – 700 triệu |
| Hệ mái Nhật (Khung kèo + Ngói) | Tính trọn gói | 120 – 180 triệu |
| TỔNG CỘNG (Chìa khóa trao tay) | ~ 7.500.000 – 9.000.000/m² | 1.5 – 1.8 tỷ đồng |
Lưu ý: Đây chỉ là mức chi phí ước tính. Để nhận được báo giá chính xác và chi tiết nhất cho công trình của bạn, vui lòng liên hệ trực tiếp với chúng tôi. Hoặc để tìm hiểu rõ hơn về tiêu chuẩn vật liệu xây dựng và các yếu tố ảnh hưởng đến chi phí, bạn có thể tham khảo thêm tại các bài viết chuyên sâu về vật liệu xây dựng cao cấp trên Wikipedia.

8. Kết luận
Mẫu nhà mái Nhật 2 tầng tân cổ điển của anh Trung không chỉ là một công trình kiến trúc đẹp tại Tuyên Quang mà còn là minh chứng cho sự tận tâm của đội ngũ Techhome. Chúng tôi luôn lắng nghe và biến những ý tưởng sơ khai của bạn thành những bản vẽ sống động và thực tế nhất.
Ngôi nhà không chỉ là nơi để ở, đó là nơi lưu giữ hạnh phúc. Nếu bạn cũng đang ấp ủ dự định xây dựng một căn nhà mái Nhật 2 tầng tân cổ điển, đừng ngần ngại liên hệ với chúng tôi.
Thông tin liên hệ Techhome:
-
Website: nhadeptechhome.vn
-
Hotline hỗ trợ kỹ thuật: 0364042222 – 0387603333
-
Địa chỉ văn phòng: B1.1 LK18 Ô 3 – KĐT Thanh Hà – Cienco 5 – Thanh Oai- Hà Nội.
