Trong guồng quay hối hả của cuộc sống hiện đại, xu hướng tìm về những giá trị bình yên, gần gũi với thiên nhiên đang lên ngôi. Không phải những tòa nhà cao tầng chọc trời, chính những mẫu nhà cấp 4 mái Nhật với kiến trúc hài hòa, công năng tiện nghi mới đang là “chân ái” của nhiều gia đình Việt.
Hôm nay, mời bạn cùng Techhome về thăm mảnh đất Hưng Yên, chiêm ngưỡng công trình tâm huyết mà chúng tôi vừa hoàn thiện hồ sơ thiết kế cho gia đình anh Hiệu. Đây chắc chắn là gợi ý tuyệt vời cho những ai đang ấp ủ dự định xây dựng tổ ấm trong năm nay.
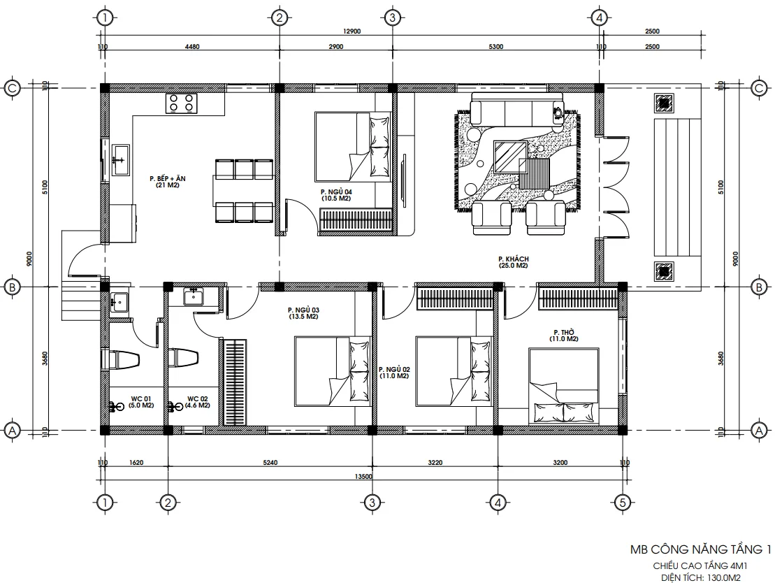
1. Khám phá công năng: 130m2 bố trí khoa học đến từng centimet
Một ngôi nhà đẹp không chỉ ở “lớp áo” bên ngoài mà quan trọng nhất là sự tiện nghi bên trong. Với tổng diện tích xây dựng khoảng 130m2, các KTS Techhome đã giải bài toán công năng cho gia đình anh Hiệu một cách xuất sắc.
Dưới đây là chi tiết mặt bằng công năng tầng 1:
-
Phòng Khách (25m2): Bước từ sảnh chính vào là phòng khách rộng rãi. Đây là “bộ mặt” của ngôi nhà, thiết kế cửa chính 4 cánh cùng cửa sổ tạo cảm giác không gian mở nhưng vẫn trang trọng.
-
Bếp + Ăn (21m2): Được đặt ở cuối ngôi nhà, tách biệt tương đối với phòng khách . Diện tích 21m2 đủ rộng cho một hệ tủ bếp chữ L hiện đại và bàn ăn lớn cho 6-8 người. Cửa phụ bên hông bếp giúp việc đi chợ, nấu nướng không ảnh hưởng đến khu vực tiếp khách.
-
Khu vực nghỉ ngơi (4 Phòng ngủ):
-
Phòng ngủ 01 và 02 (11m2) & Phòng ngủ 03 (13.5m2): Thiết kế liền kề nhau, vuông vắn, dễ dàng kê giường tủ. Phòng ngủ 3 có vệ sinh khép kín WC 02 (4,6m2).
-
Phòng ngủ 04 (10.5m2): Tuy diện tích nhỏ hơn nhưng được bố trí cửa sổ thoáng đãng, thích hợp cho con cái.
-
-
Khu vực vệ sinh: Nhà được bố trí 2 nhà vệ sinh (WC1: 5m2, WC2: 4.6m2) đặt ở cuối nhà, kín đáo và sạch sẽ.
Cách bố trí này biến mẫu nhà cấp 4 mái Nhật thành một căn hộ chung cư cao cấp trên mặt đất, nơi mọi sinh hoạt đều diễn ra trên một mặt sàn, cực kỳ thuận tiện cho người già và trẻ nhỏ.

2. Cơ duyên đến với Techhome và bài toán của gia chủ Hưng Yên
Anh Hiệu tìm đến Techhome vào một ngày đầu năm với mong muốn rất rõ ràng: “Anh cần một ngôi nhà không cần quá cao sang lộng lẫy, nhưng phải ấm cúng. Nhà là nơi để về, để các thành viên kết nối với nhau. Anh thích kiểu mái Nhật vì nó nhìn sang mà lại bền dáng.”
Thấu hiểu tâm tư đó, đội ngũ KTS Techhome đã về tận nơi khảo sát. Với diện tích đất rộng rãi tại Hưng Yên, chúng tôi tư vấn cho anh mẫu nhà cấp 4 mái Nhật hiện đại. Giải pháp này không chỉ tiết kiệm chi phí xây dựng móng (so với nhà cao tầng) mà còn tạo ra không gian sinh hoạt tập trung, gắn kết tình cảm gia đình – điều mà kiến trúc nhà ống hay nhà tầng khó làm được.

3. Vẻ đẹp ngoại thất: Sự giao thoa giữa hiện đại và truyền thống
Nhìn vào phối cảnh mặt tiền, bạn sẽ bị thu hút ngay bởi hệ mái Nhật đồ sộ màu xanh than. Đây là điểm nhấn “đắt giá” nhất của mẫu nhà cấp 4 mái Nhật này.
Kiến trúc mái Nhật – Linh hồn của ngôi nhà
Khác với mái Thái cao vút, mái Nhật (hay còn gọi là mái lùn) có độ dốc vừa phải, mở rộng ra các hướng khác nhau. Thiết kế này không chỉ giúp thoát nước mưa nhanh, chống nóng hiệu quả vào mùa hè Hưng Yên oi ả, mà còn mang lại vẻ đẹp thanh thoát, cân đối. Hệ mái màu xanh than nổi bật trên nền sơn trắng sứ chủ đạo tạo nên sự tương phản sang trọng, bền bỉ với thời gian.
Mặt tiền thoáng đạt và tinh tế
Mặt tiền ngôi nhà rộng 9m được xử lý khéo léo. Hệ cột vuông vức, khỏe khoắn được ốp đá phần chân cột tạo cảm giác vững chãi. Bậc tam cấp ốp đá đen kim sa dẫn lên sảnh chính rộng rãi, thể hiện sự hiếu khách của gia chủ.
Hệ thống cửa sổ sử dụng nhôm kính xingfa cao cấp, giúp ngôi nhà luôn tràn ngập ánh sáng tự nhiên và gió trời. Đây là tiêu chuẩn không thể thiếu trong các mẫu nhà cấp 4 mái Nhật do Techhome thiết kế.

4. Tại sao “Mẫu nhà cấp 4 mái Nhật” lại trở thành xu hướng quốc dân?
Không ngẫu nhiên mà anh Hiệu và hàng ngàn khách hàng của Techhome lại lựa chọn phong cách này.
-
Tiết kiệm chi phí: So với nhà 2-3 tầng, mẫu nhà cấp 4 mái Nhật giảm thiểu chi phí móng, cầu thang và nhân công, giúp gia chủ tiết kiệm từ 20-30% ngân sách.
-
Thi công nhanh chóng: Thời gian hoàn thiện chỉ từ 3-4 tháng, gia chủ sớm có nhà mới để ở.
-
Không gian sống xanh: Kiểu nhà này thường kết hợp với sân vườn, tiểu cảnh, mang lại chất lượng sống thư thái, an nhiên – điều xa xỉ ở phố thị.
-
Phong thủy tốt: Quan niệm “nhà cao cửa rộng”, không gian thoáng đãng giúp lưu thông vượng khí, mang lại tài lộc cho gia chủ.

5. Bảng báo giá thiết kế và thi công nhà cấp 4 mái Nhật (Cập nhật 2025)
Chi phí luôn là vấn đề được quan tâm hàng đầu. Techhome xin gửi tới quý khách hàng bảng báo giá tham khảo để bạn dễ dàng dự trù kinh phí cho mẫu nhà cấp 4 mái Nhật tương tự nhà anh Hiệu.
(Lưu ý: Giá có thể thay đổi tùy thuộc vào thời điểm, vị trí địa lý và chủng loại vật tư)
| Hạng mục | Đơn giá (VNĐ) | Ghi chú |
| Thiết kế Kiến trúc | 108.000đ/m2 | Bao gồm bản vẽ 3D, kết cấu, điện nước |
| Thiết kế Nội thất | 150.000đ/m2 | Phối cảnh 3D nội thất chi tiết |
| Thi công phần thô | 3.800.000 – 4.200.000đ/m2 | Bao gồm vật tư thô và nhân công |
| Thi công trọn gói | 6.500.000 – 7.500.000đ/m2 | Chìa khóa trao tay (Vật tư khá – tốt) |
Ví dụ tính toán sơ bộ cho nhà 130m2:
-
Chi phí xây thô: ~ 130m2 x 4.000.000đ = 520.000.000 VNĐ
-
Chi phí trọn gói (dự kiến): ~ 130m2 x 7.000.000đ = 910.000.000 VNĐ
Lưu ý: Đây chỉ là mức chi phí ước tính. Để nhận được báo giá chính xác và chi tiết nhất cho công trình của bạn, vui lòng liên hệ trực tiếp với chúng tôi. Hoặc để tìm hiểu rõ hơn về tiêu chuẩn vật liệu xây dựng và các yếu tố ảnh hưởng đến chi phí, bạn có thể tham khảo thêm tại các bài viết chuyên sâu về vật liệu xây dựng cao cấp trên Wikipedia.
6. Techhome – Đơn vị kiến tạo những công trình “Từ Tâm”
Hồ sơ thiết kế nhà anh Hiệu không chỉ là những bản vẽ vô tri, mà là tâm huyết của cả tập thể Techhome. Chúng tôi cam kết:
-
Tư vấn thực tế: Không vẽ vời hoa mỹ gây tốn kém, tập trung vào công năng thực dụng.
-
Hồ sơ chi tiết: Bản vẽ dễ đọc, dễ hiểu, thợ địa phương dễ dàng thi công.
-
Đồng hành dài lâu: Hỗ trợ giám sát tác giả, giải đáp thắc mắc trong suốt quá trình xây dựng.

Nếu bạn đã trót yêu vẻ đẹp bình dị mà sang trọng của mẫu nhà cấp 4 mái Nhật này, đừng ngần ngại nhấc máy lên. Hãy để Techhome cùng bạn vẽ nên ngôi nhà mơ ước!
CÔNG TY CỔ PHẦN KIẾN TRÚC VÀ XÂY DỰNG TECHHOME
-
Hotline: 0364.04.2222 – 0387.60.3333
-
Website: https://nhadeptechhome.vn/
-
Địa chỉ: B1.1 LK18 Ô 3 – KĐT Thanh Hà – Cienco 5 – Thanh Oai- Hà Nội.


