Có một sự thật là khi nhắc đến hai chữ “nhà ống”, nhiều người trong chúng ta thường nghĩ ngay đến những khối bê tông dựng đứng, vuông vức và thiếu sáng. Nhưng hôm nay, Techhome sẽ kể cho bạn nghe câu chuyện về một mẫu nhà ống 2 tầng 1 tum tại Bắc Ninh, nơi mà sự bí bách đã hoàn toàn biến mất, nhường chỗ cho những đường cong nghệ thuật và không gian xanh mát.
Đây là hồ sơ thiết kế Techhome vừa bàn giao cho gia đình anh Hùng. Một công trình mà anh em kiến trúc sư chúng tôi cực kỳ tâm đắc, không phải vì nó quá hoành tráng, mà vì nó giải quyết quá tốt bài toán “sống chất” trên diện tích đất phố thị.
Thông tin dự án: Đề bài khó và lời giải hay
Trước khi đi dạo một vòng quanh ngôi nhà, mình xin tóm tắt sơ bộ để các bạn dễ hình dung mức độ đầu tư của mẫu nhà ống 2 tầng 1 tum này:
-
Chủ đầu tư: Anh Hùng.
-
Địa điểm xây dựng: Bắc Ninh.
-
Đơn vị thực hiện: Công ty Cổ phần Kiến trúc và Xây dựng Techhome.
-
Kích thước xây dựng: Mặt tiền 5,1m, chiều sâu xây dựng 13m (trên tổng đất dài hơn 14.69m).
-
Công năng: 4 Phòng ngủ, Phòng khách, Bếp, Phòng thờ, Sân chơi rộng rãi.

1. Mặt tiền: “Cú lột xác” của kiến trúc nhà ống
Thông thường, các mẫu nhà ống 2 tầng 1 tum đại trà thường ốp đá kín mít hoặc làm ban công vuông sắc cạnh cho… dễ thi công. Nhưng với ngôi nhà của anh Hùng, Techhome đã chọn một lối đi khác.
Nhìn vào phối cảnh 3D, bạn sẽ bị thu hút ngay bởi những đường bo cong mềm mại ở ban công tầng 2 và hệ lam mái che tầng tum. Đây chính là xu hướng Kiến trúc mềm đang làm mưa làm gió năm 2025. Nó làm cho mẫu nhà ống 2 tầng 1 tum trở nên duyên dáng hơn, bớt đi vẻ thô cứng của bê tông cốt thép.
Màu sơn trắng sứ kết hợp với màu xám ghi của gạch thẻ ốp tường tạo nên sự tương phản hiện đại. Đặc biệt, Techhome không tham lam chi tiết. Chúng tôi sử dụng cửa kính lớn hệ nhôm Xingfa để “hứng” trọn ánh sáng tự nhiên, biến mặt tiền ngôi nhà thành một bức tranh mở.

2. Mặt bằng công năng: Đỉnh cao của sự sắp đặt
Điều khiến mẫu nhà ống 2 tầng 1 tum này trở thành “hàng hot” được nhiều khách hàng hỏi thăm nhất tháng qua chính là cách bố trí nội thất bên trong. Với chiều dài xây dựng 13m, việc chia phòng sao cho không bị vụn vặt là cả một nghệ thuật.
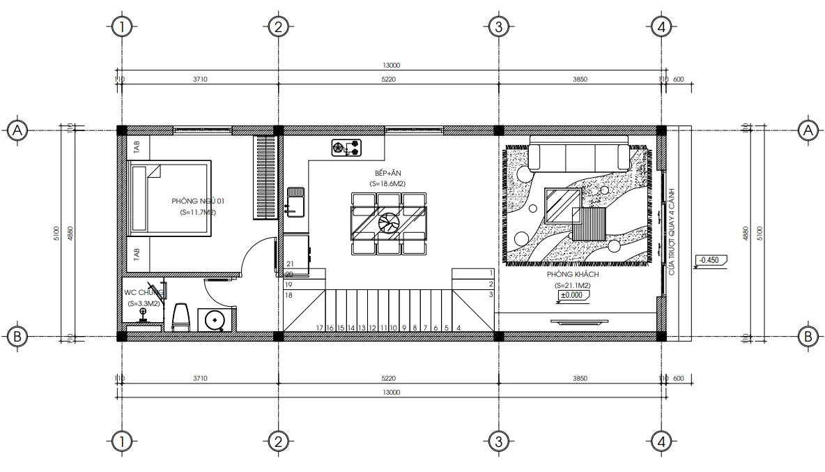
Tầng 1: Sự kết nối không khoảng cách
Bước qua sảnh chính, chúng ta đến với phòng khách rộng 21.1m2. Đây là diện tích lý tưởng cho một mẫu nhà ống 2 tầng 1 tum, đủ để đặt bộ sofa lớn và kệ tivi hiện đại mà lối đi vẫn thoáng.
Kế đến là khu vực “giữ lửa” – Phòng Bếp + Ăn rộng 18.6m2. Cầu thang được đặt nép dọc nhà giúp tiết kiệm diện tích tối đa.
Điểm cộng lớn nhất: Techhome đã bố trí được một Phòng ngủ (01) rộng 11.7m2 ở cuối nhà. Nhà có người lớn tuổi thì đây là “chân ái”. Ông bà không cần leo cầu thang, lại có không gian yên tĩnh phía sau để nghỉ ngơi. Một WC chung 3.3m2 được đặt kín đáo cạnh phòng ngủ này.

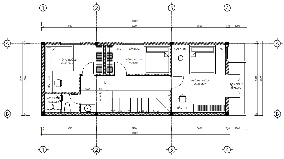
Tầng 2: Bài toán 3 phòng ngủ được giải quyết thế nào?
Rất nhiều gia chủ lo lắng mẫu nhà ống 2 tầng 1 tum sẽ thiếu phòng ngủ cho con cái. Nhưng hãy nhìn cách Techhome xử lý không gian tầng 2 nhà anh Hùng:
-
Phòng ngủ Master (04): Dành cho vợ chồng anh Hùng, diện tích 17.4m2. Phòng này hướng ra ban công mặt tiền rộng 3.9m2, buổi sáng mở cửa ra là đón gió trời lồng lộng.
-
Phòng ngủ cho con (02 & 03): Dù diện tích khiêm tốn hơn (11.1m2 và 9m2), nhưng nhờ thiết kế vuông vức, các bé vẫn có góc học tập và tủ quần áo riêng biệt.
-
Cả tầng sử dụng chung 1 WC rộng 4.5m2. Nhiều người sẽ thắc mắc “Sao không làm WC khép kín?”. Câu trả lời là: Với mẫu nhà ống 2 tầng 1 tum diện tích có hạn, việc gom về 1 WC rộng, tiện nghi sẽ tốt hơn là chia nhỏ thành 2 WC chật chội, khó sinh hoạt.

Tầng Tum: Không gian “Chữa lành”
Đây là lý do tại sao mẫu nhà ống 2 tầng 1 tum lại được ưa chuộng hơn nhà 2 tầng mái bằng truyền thống. Tầng tum chính là khoảng thở của ngôi nhà.
-
Phòng thờ: Trang nghiêm, rộng 15.8m2, tách biệt hoàn toàn với không gian sinh hoạt.
-
Sân chơi phía trước: Rộng tới 24.1m2. Anh Hùng dự định sẽ đặt một bộ bàn ghế đá và trồng dàn hoa giấy tại đây.
-
Sân phơi phía sau: 17.5m2, kín đáo và thuận tiện.

3. Giải mã sức hút của mẫu nhà ống 2 tầng 1 tum
Tại sao giữa hàng trăm kiểu nhà, anh Hùng và rất nhiều khách hàng lại chốt phương án mẫu nhà ống 2 tầng 1 tum?
-
Thứ nhất – Tiết kiệm chi phí: So với nhà 3 tầng, mẫu nhà ống 2 tầng 1 tum giảm được đáng kể chi phí nhân công và vật liệu phần mái và móng, trong khi công năng sử dụng gần như tương đương (chỉ bớt đi 1 phòng ngủ).
-
Thứ hai – Chống nóng hiệu quả: Phần tum và sân thượng đóng vai trò như một lớp cách nhiệt khổng lồ. Các phòng ngủ ở tầng 2 sẽ mát hơn rất nhiều so với việc bạn xây nhà 2 tầng mái bằng và bị nắng chiếu trực tiếp lên trần.
-
Thứ ba – Thẩm mỹ vượt thời gian: Như bạn thấy đấy, mẫu nhà ống 2 tầng 1 tum có tỷ lệ hình khối rất cân đối. Nó không quá cao lênh khênh, cũng không quá thấp bé, tạo cảm giác vững chãi và ấm cúng.

4. Bảng dự toán chi phí xây dựng (Cập nhật 2025)
“Đẹp thì có đẹp, nhưng túi tiền có lo nổi không?”. Techhome hiểu đây là trăn trở lớn nhất của bạn. Dựa trên thiết kế của mẫu nhà ống 2 tầng 1 tum nhà anh Hùng (Tổng diện tích sàn khoảng 170m2 ), chúng tôi xin gửi đến bạn bảng khái toán thực tế:
(Lưu ý: Đơn giá mang tính tham khảo tại khu vực Bắc Ninh và các tỉnh lân cận, có thể thay đổi tùy thời điểm)
| Hạng mục | Đơn giá ước tính | Thành tiền dự kiến (170m2) |
| Chi phí thiết kế | 108.000 đ/m2 | ~ 19 Triệu |
| Thi công phần thô | 3.900.000 – 4.200.000 đ/m2 | ~ 660 – 715 Triệu |
| Gói hoàn thiện cơ bản | 6.000.000 – 6.500.000 đ/m2 | ~ 1 Tỷ – 1.1 Tỷ |
| Gói chìa khóa trao tay (Cao cấp) | > 7.000.000 đ/m2 | > 1.2 Tỷ |
Như vậy, để sở hữu một mẫu nhà ống 2 tầng 1 tum đẹp như mơ này, bạn cần chuẩn bị tài chính trong khoảng 1,1 tỷ đến 1.3 tỷ đồng. Đây là mức đầu tư cực kỳ hợp lý cho một cơ ngơi để đời.
Lưu ý: Đây chỉ là mức chi phí ước tính. Để nhận được báo giá chính xác và chi tiết nhất cho công trình của bạn, vui lòng liên hệ trực tiếp với chúng tôi. Hoặc để tìm hiểu rõ hơn về tiêu chuẩn vật liệu xây dựng và các yếu tố ảnh hưởng đến chi phí, bạn có thể tham khảo thêm tại các bài viết chuyên sâu về vật liệu xây dựng cao cấp trên Wikipedia.
5. Những lưu ý “xương máu” khi xây nhà ống 2 tầng 1 tum
Là những người làm nghề lâu năm, Techhome muốn mách nhỏ bạn vài điều để mẫu nhà ống 2 tầng 1 tum của bạn hoàn hảo nhất:
-
Đừng quên giếng trời: Nhà ống sợ nhất là thiếu sáng. Hãy nhìn bản vẽ mái của nhà anh Hùng, chúng tôi bố trí mái kính lấy sáng ngay trên cầu thang. Nó là “lá phổi” giúp ngôi nhà hô hấp.
-
Chú trọng chống thấm sàn mái: Tầng tum có sân chơi lộ thiên, nắng mưa trực tiếp. Nếu chọn mẫu nhà ống 2 tầng 1 tum, hãy yêu cầu thầu thợ sử dụng Sika hoặc màng khò nóng chống thấm thật kỹ ngay từ đầu. Đừng để “mất bò mới lo làm chuồng”.
-
Nội thất thông minh: Với các phòng ngủ nhỏ (như phòng 9m2 của con anh Hùng), hãy dùng giường có ngăn kéo hoặc bàn học liền giá sách. Nó giúp không gian rộng ra trông thấy.

Kết luận
Câu chuyện về ngôi nhà của anh Hùng ở Bắc Ninh hy vọng đã tiếp thêm động lực cho bạn trên hành trình xây dựng tổ ấm. Mẫu nhà ống 2 tầng 1 tum không chỉ là một trào lưu nhất thời, mà là giải pháp kiến trúc bền vững, cân bằng giữa thẩm mỹ và công năng.
Nếu bạn đang sở hữu một mảnh đất phố và cũng muốn có một mẫu nhà ống 2 tầng 1 tum mang đậm dấu ấn cá nhân như thế này, hãy liên hệ Techhome , Chúng tôi luôn sẵn sàng lắng nghe và hiện thực hóa giấc mơ của bạn.
Đừng ngần ngại, liên hệ ngay để nhận tư vấn miễn phí và báo giá chi tiết nhất!
CÔNG TY CỔ PHẦN KIẾN TRÚC VÀ XÂY DỰNG TECHHOME
-
Hotline: 0364.04.2222 – 0387.60.3333
-
Website: nhadeptechhome.vn
-
Địa chỉ: B1.1 LK18 Ô 3 – KĐT Thanh Hà – Cienco 5 – Thanh Oai- Hà Nội.


