Mẫu Nhà Vườn Mái Nhật 1 Tầng 4 Phòng Ngủ Hiện Đại Tại Hậu Lộc – Thanh Hóa

Nếu có dịp ghé thăm vùng đất Hậu Lộc – Thanh Hóa thời gian gần đây, chắc hẳn bạn sẽ ấn tượng với xu hướng xây dựng nhà ở đang thay đổi mạnh mẽ. Không còn là những ngôi nhà ngói đỏ truyền thống đơn sơ, thay vào đó là những công trình nhà vườn mái Nhật 1 tầng 4 phòng ngủ khang trang, vừa giữ được nét bình yên của làng quê, vừa mang tiện nghi của biệt thự nghỉ dưỡng.

Hôm nay, Kiến trúc Techhome xin giới thiệu đến quý khách hàng một “siêu phẩm” tâm huyết mà đội ngũ KTS và các cộng sự vừa hoàn thiện hồ sơ thiết kế kỹ thuật thi công cho gia đình anh Thực. Đây là minh chứng rõ nét cho việc: Nhà đẹp không cần quá cao, chỉ cần rộng, thoáng và bố trí công năng thông minh.

1. Câu chuyện thiết kế: Khi sự tiện nghi giao hòa cùng thiên nhiên

Anh Thực tìm đến Techhome với một đề bài vừa dễ mà lại vừa khó. Dễ là bởi anh sở hữu một khuôn đất khá rộng rãi tại Hậu Lộc, Thanh Hóa. Nhưng khó ở chỗ, anh muốn một ngôi nhà phải thật sự gắn kết. Anh không muốn xây nhà cao tầng vì ngại việc leo cầu thang, và quan trọng hơn, anh muốn 4 phòng ngủ phải được bố trí trên một mặt sàn để các thành viên trong gia đình luôn cảm thấy gần gũi.

Thấu hiểu tâm tư đó, giải pháp nhà vườn mái Nhật 1 tầng 4 phòng ngủ đã được đưa ra và nhận được cái gật đầu tâm đắc ngay từ bản vẽ sơ bộ. Với diện tích xây dựng lên tới 165m2, ngôi nhà không chỉ là nơi để ở, mà là nơi để “sống” đúng nghĩa.

Phối cảnh mặt tiền mẫu nhà vườn mái Nhật 1 tầng 4 phòng ngủ đẹp hiện đại tại Thanh Hóa.
Phối cảnh mặt tiền mẫu nhà vườn mái Nhật 1 tầng 4 phòng ngủ đẹp hiện đại tại Thanh Hóa.

2. Vẻ đẹp ngoại thất: Sang trọng, bề thế nhưng không phô trương

Nhìn vào phối cảnh mặt tiền, điểm nhấn đầu tiên thu hút thị giác chính là hệ mái Nhật màu xanh than lịch lãm. Khác với mái Thái cao vút, hệ mái Nhật của nhà anh Thực có độ dốc vừa phải, mở rộng ra các hướng, tạo cảm giác che chở, vững chãi.

Màu sơn chủ đạo được lựa chọn là sắc trắng sứ tinh khôi, làm nền hoàn hảo cho các chi tiết trang trí. Các kiến trúc sư Techhome đã khéo léo lược bỏ những chi tiết phào chỉ rườm rà, thay vào đó là những đường kẻ chỉ lõm chạy ngang tường, tạo nên nét chấm phá hiện đại, khỏe khoắn.

Phần chân tường được ốp đá thẻ màu ghi xám, không chỉ giúp công trình thêm phần vững chãi mà còn bảo vệ ngôi nhà khỏi rêu mốc, bụi bẩn – một chi tiết nhỏ nhưng cho thấy sự tinh tế trong thiết kế nhà vườn mái Nhật 1 tầng 4 phòng ngủ của Techhome.

Hệ thống cửa chính sử dụng gỗ tự nhiên kết hợp pano kính, vừa giữ được nét sang trọng truyền thống, vừa giúp lấy sáng tự nhiên cho khu vực đại sảnh. Trong khi đó, toàn bộ hệ thống cửa sổ được sử dụng nhôm hệ kính cường lực, giúp mở rộng tầm nhìn ra khu vườn xanh mát bên ngoài.

nhà vườn mái Nhật 1 tầng 4 phòng ngủ

3. Khám phá công năng “chuẩn mực” bên trong ngôi nhà

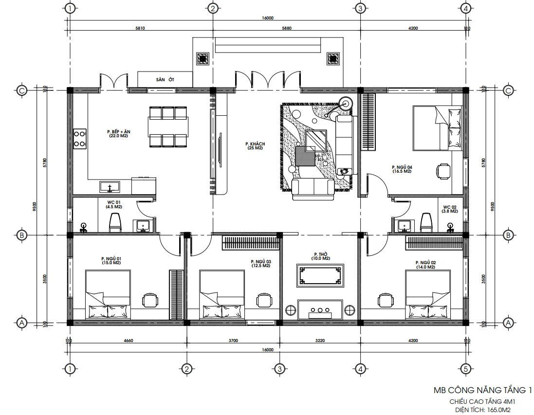
Điều làm nên giá trị thực sự của mẫu nhà vườn mái Nhật 1 tầng 4 phòng ngủ này chính là cách bố trí mặt bằng công năng. Trên diện tích sàn 165m2, mọi ngóc ngách đều được tính toán tỉ mỉ để không lãng phí một centimet nào.

Mời bạn cùng xem qua bản vẽ mặt bằng định vị công trình để hình dung rõ hơn:

  • Phòng Khách (25m2): Bước qua sảnh chính là không gian phòng khách rộng 25m2. Đây là “bộ mặt” của ngôi nhà, được đặt ở vị trí trung tâm, vuông vắn và sang trọng.

  • Phòng Thờ (10m2): Nằm ngay cạnh phòng khách, hướng ra mặt tiền là phòng thờ trang nghiêm rộng 10m2. Vị trí này đảm bảo sự tôn nghiêm và thuận tiện cho việc hương khói của gia chủ.

  • Bếp + Ăn (22m2): Khu vực bếp và phòng ăn được thiết kế liên thông rộng 22m2 , có cửa phụ mở ra sảnh (sân ướt) bên hông. Thiết kế này cực kỳ đắt giá, giúp việc sơ chế thức ăn sống hay đi chợ về không cần đi qua phòng khách, giữ vệ sinh sạch sẽ cho ngôi nhà.

  • 4 Phòng Ngủ :

    • Phòng ngủ 01: Diện tích 15.0m2, rộng rãi, thoáng mát.

    • Phòng ngủ 02: Diện tích 14.0m2, bố trí khoa học.

    • Phòng ngủ 03: Diện tích 12.5m2, ấm cúng dành cho con cái.

    • Phòng ngủ 04: Diện tích lớn nhất 16.5m2, có thể dành cho vợ chồng gia chủ.

  • Khu vệ sinh: Nhà được bố trí 2 nhà vệ sinh (WC 01: 4.5m2 và WC 02: 3.8m2). Vị trí các nhà vệ sinh được đặt khéo léo giữa các phòng ngủ để tiện sinh hoạt chung mà không làm mất mỹ quan.

Chiều cao thông thủy của tầng là 4.1m, một chiều cao lý tưởng giúp ngôi nhà luôn mát mẻ vào mùa hè và ấm áp vào mùa đông, đặc trưng khí hậu của miền Bắc Trung Bộ.

Bản vẽ mặt bằng công năng nhà vườn mái Nhật 1 tầng 4 phòng ngủ diện tích 165m2.
Bản vẽ mặt bằng công năng nhà vườn mái Nhật 1 tầng 4 phòng ngủ diện tích 165m2.

4. Tại sao mẫu nhà vườn mái Nhật 1 tầng 4 phòng ngủ lại là xu hướng?

Không phải ngẫu nhiên mà anh Thực và rất nhiều khách hàng của Techhome lại “chốt” phương án nhà vườn mái Nhật 1 tầng 4 phòng ngủ. Dưới đây là những lý do thực tế nhất:

  • Tiết kiệm chi phí thi công: So với nhà cao tầng, việc thi công nhà 1 tầng giúp giảm bớt chi phí làm móng, cốp pha, giàn giáo và nhân công vận chuyển vật liệu lên cao.

  • Kết nối thành viên: Trong thời đại công nghệ, việc cả gia đình sinh hoạt trên một mặt sàn giúp tăng cường sự giao tiếp, chăm sóc lẫn nhau, đặc biệt là với gia đình có người già và trẻ nhỏ.

  • Thời gian thi công nhanh: Với quy mô như nhà anh Thực, thời gian hoàn thiện chỉ mất khoảng 3 – 4 tháng, giúp gia chủ sớm an cư lạc nghiệp.

  • Yếu tố phong thủy: Thế đất vuông vắn, nhà nở hậu, mái Nhật tượng trưng cho sự thanh thoát, cao ráo, giúp thu hút vượng khí cho gia chủ.

nhà vườn mái Nhật 1 tầng 4 phòng ngủ

5. Dự toán chi phí xây dựng nhà vườn mái Nhật 1 tầng 4 phòng ngủ (Năm 2026)

Đây chắc hẳn là phần mà nhiều quý khách hàng quan tâm nhất. “Đẹp thì có đẹp, nhưng giá có đắt không?”. Techhome xin đưa ra bảng báo giá tham khảo dựa trên mức đầu tư trung bình khá trên thị trường hiện nay cho mẫu nhà tương tự như của anh Thực (Diện tích 165m2).

(Lưu ý: Đơn giá có thể thay đổi tùy thuộc vào thời điểm, giá vật liệu tại địa phương Hậu Lộc – Thanh Hóa và chủng loại vật tư gia chủ lựa chọn).

Bảng khái toán chi phí xây dựng:

Hạng mục Đơn giá tham khảo (VNĐ/m2) Diện tích (m2) Thành tiền ước tính (VNĐ)
Thiết kế kiến trúc 108.000 165 ~ 18.000.000 
Xây dựng phần thô 3.800.000 – 4.200.000 165 (+ mái) ~ 750.000.000 – 850.000.000
Trọn gói (Chìa khóa trao tay) 6.500.000 – 7.500.000 165 (+mái) ~ 1.2 tỷ – 1.4 tỷ

Chi tiết vật tư tham khảo cho gói hoàn thiện:

  • Sắt thép: Hòa Phát, Việt Nhật.

  • Xi măng: Hoàng Thạch, Bỉm Sơn.

  • Gạch ốp lát: Viglacera, Prime (Loại 1).

  • Sơn tường: Dulux, Jotun.

  • Hệ thống cửa: Nhôm Xingfa nhập khẩu hoặc gỗ Lim Nam Phi (tùy chọn).

Với mẫu nhà vườn mái Nhật 1 tầng 4 phòng ngủ, Techhome cam kết minh bạch trong từng hạng mục báo giá, không phát sinh chi phí vô lý sau khi ký hợp đồng.

Để tìm hiểu rõ hơn về tiêu chuẩn vật liệu xây dựng và các yếu tố ảnh hưởng đến chi phí, bạn có thể tham khảo thêm tại các bài viết chuyên sâu về vật liệu xây dựng cao cấp trên Wikipedia.

6. Quy trình làm việc tại Kiến trúc Techhome

Để ra đời được bộ hồ sơ chất lượng như nhà anh Thực, Techhome áp dụng quy trình làm việc 6 bước chuyên nghiệp:

  1. Tiếp nhận thông tin: Lắng nghe nhu cầu, diện tích đất, hướng đất và tuổi gia chủ.

  2. Khảo sát hiện trạng: Đội ngũ kỹ sư về tận nơi (Hậu Lộc – Thanh Hóa) để đo đạc, bay flycam khảo sát.

  3. Lên phương án mặt bằng: Bố trí công năng 2D, đảm bảo phong thủy và tiện dụng.

  4. Dựng phối cảnh 3D: Giúp gia chủ hình dung ngôi nhà thực tế trong tương lai.

  5. Triển khai hồ sơ kỹ thuật: Bao gồm kiến trúc, kết cấu, điện nước 

  6. Bàn giao và giám sát: Hỗ trợ giải đáp kỹ thuật trong suốt quá trình thi công qua hotline.

Thiết kế cổng và tường rào nhà vườn mái Nhật 1 tầng sang trọng, an toàn.
Thiết kế cổng và tường rào nhà vườn mái Nhật 1 tầng sang trọng, an toàn.

7. Lời kết

Ngôi nhà vườn mái Nhật 1 tầng 4 phòng ngủ của gia đình anh Thực tại Hậu Lộc không chỉ là một công trình xây dựng, mà là tổ ấm, là nơi “bão dừng sau cánh cửa”.

Nếu bạn cũng đang sở hữu một mảnh đất rộng và yêu thích cuộc sống bình yên, gần gũi với thiên nhiên nhưng vẫn đầy đủ tiện nghi, thì mẫu thiết kế này là một gợi ý không thể bỏ qua. Đừng ngần ngại liên hệ với Techhome để được tư vấn miễn phí giải pháp tối ưu nhất cho ngôi nhà của bạn.

CÔNG TY CỔ PHẦN KIẾN TRÚC VÀ XÂY DỰNG TECHHOME

Techhome – Kiến tạo không gian, vun đắp hạnh phúc.

Để lại một bình luận

Email của bạn sẽ không được hiển thị công khai. Các trường bắt buộc được đánh dấu *

    Vui lòng nhấn nút YÊU CẦU TƯ VẤN và đợi 1 - 2 giây đến khi thấy thông báo thành công

    YÊU CẦU TƯ VẤN