Bạn đang đau đầu tìm kiếm một mẫu nhà vừa túi tiền, vừa hiện đại lại không lo lỗi mốt? Bạn muốn một không gian sống mà ở đó, bố mẹ già có phòng riêng yên tĩnh, con cái có chỗ vui chơi, còn vợ chồng bạn thì hãnh diện mỗi khi khách đến chơi nhà?
Vậy thì hãy cùng TechHome ghé thăm công trình nhà 2 tầng mái Nhật siêu đẹp mà chúng tôi vừa bàn giao hồ sơ thiết kế cho gia đình anh Bình tại Hưng Châu, Nghệ An nhé. Tin tôi đi, đây chính xác là “tổ ấm trong mơ” của rất nhiều gia đình trẻ hiện nay đấy!
1. Thông tin tổng quan dự án
Trước khi đi sâu vào chi tiết, mời bạn điểm qua vài thông số kỹ thuật “biết nói” của ngôi nhà này để thấy sự tài tình của đội ngũ KTS TechHome:
-
Chủ đầu tư: Anh Bình
-
Địa điểm xây dựng: Hưng Châu, Nghệ An
-
Đơn vị thiết kế: Công ty Cổ phần Kiến trúc và Xây dựng TechHome
-
Diện tích thiết kế : 71m2/tầng
-
Tổng diện tích sử dụng: Khoảng 142 m2
-
Loại hình: Nhà 2 tầng mái Nhật hiện đại.

2. Vì sao nhà 2 tầng mái Nhật lại trở thành “cơn sốt” tại các vùng quê?
Thú thật với các bạn, khoảng 3 năm trở lại đây, đi đến đâu từ Bắc vào Nam, tôi cũng thấy người ta kháo nhau làm nhà 2 tầng mái Nhật. Không phải tự nhiên mà mẫu nhà này lại “hot” đến thế đâu.
Nhìn vào phối cảnh nhà anh Bình, bạn sẽ thấy ngay lý do. Hệ mái Nhật có độ dốc vừa phải, không quá cao vút như mái Thái nhưng đủ để thoát nước mưa cực tốt – điều này cực kỳ quan trọng với khí hậu “sáng nắng chiều mưa” như ở Nghệ An. Hơn nữa, vẻ đẹp của nhà 2 tầng mái Nhật nằm ở sự thanh thoát, nhẹ nhàng nhưng cực kỳ sang trọng. Nó không phô trương, cầu kỳ nhưng nhìn vào là thấy ngay sự bề thế, vững chãi của gia chủ.
Với tông màu chủ đạo là xanh ghi kết hợp với trắng sứ, ngôi nhà trông cực kỳ mát mắt. Hệ thống cửa sổ nhôm kính lớn giúp lấy sáng tối đa, làm cho ngôi nhà lúc nào cũng thoáng đãng, tràn ngập năng lượng dương.

3. “Mổ xẻ” công năng: Bài toán diện tích nhỏ nhưng tiện nghi lớn
Với diện tích sàn khoảng 71m2, làm sao để bố trí đủ phòng cho cả gia đình 3 thế hệ? Đây là bài toán khó mà anh Bình đặt ra cho TechHome. Và dưới đây là lời giải đáp khiến anh Bình gật đầu ngay từ phương án đầu tiên.
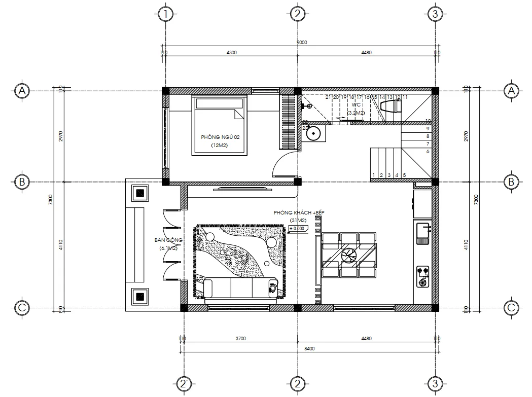
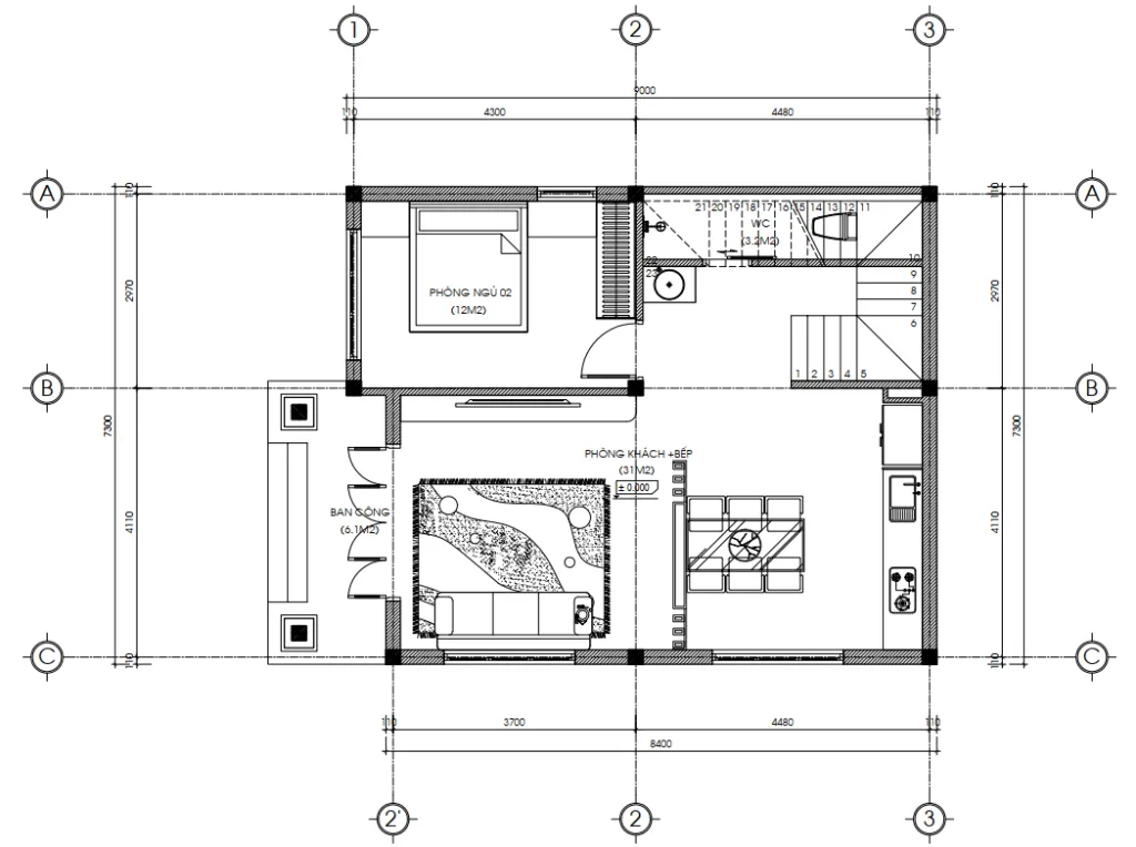
Tầng 1: Sự kết nối ấm cúng
Bước vào từ sảnh chính, chúng ta sẽ bắt gặp ngay không gian Phòng Khách kết hợp Bếp ăn rộng hơn 31m2.
-
Nhiều người e ngại việc để bếp chung với khách sẽ bị mùi. Tuy nhiên, với thiết kế nhà 2 tầng mái Nhật hiện đại, hệ thống cửa phụ và cửa sổ được bố trí đối lưu không khí cực tốt, mùi thức ăn sẽ bay đi nhanh chóng.
-
Việc gộp chung này giúp không gian nhìn rộng thênh thang, trẻ con tha hồ chạy nhảy, mà khi nấu nướng người vợ vẫn có thể trò chuyện với chồng con đang xem tivi.
-
Đặc biệt, tầng 1 được bố trí một phòng ngủ (Phòng ngủ 02) rộng 12m2. Đây là thiết kế cực kỳ tâm lý dành cho ông bà lớn tuổi, giúp hạn chế việc leo cầu thang, đảm bảo an toàn tuyệt đối.
-
Một nhà vệ sinh chung được đặt khéo léo dưới gầm cầu thang , vừa tiết kiệm diện tích vừa đảm bảo thẩm mỹ.

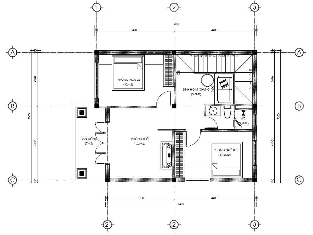
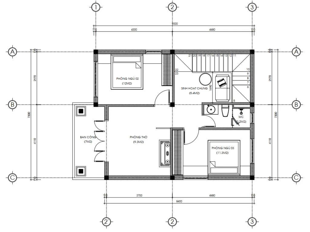
Tầng 2: Không gian riêng tư và tâm linh
Leo lên 21 bậc cầu thang chuẩn phong thủy, chúng ta đến với không gian sinh hoạt của tầng 2.
-
Tại đây, TechHome bố trí thêm 2 phòng ngủ nữa. Phòng ngủ 02 (12m2) và Phòng ngủ 03 (11.3m2). Diện tích này tuy không quá lớn nhưng vuông vắn, đủ để kê giường tủ, bàn học thoải mái.
-
Điểm nhấn của tầng này là Phòng Thờ trang nghiêm rộng 9.3m2 hướng ra mặt tiền, đón vượng khí cho cả dòng họ.
-
Một góc Sinh hoạt chung nhỏ xinh khoảng 5.4m2 ngay sảnh thang. Đây sẽ là nơi bố mẹ ngồi đọc sách hoặc cả nhà cùng nhau hát karaoke vào cuối tuần.
-
Cuối cùng là khu vực ban công rộng 7m2 – góc “chill” đắt giá nhất của mẫu nhà 2 tầng mái Nhật này. Buổi chiều ra đây làm tách trà, ngắm cảnh làng quê Hưng Châu thì còn gì bằng.

4. Dự toán chi phí xây dựng nhà 2 tầng mái Nhật (Cập nhật 2026)
Đây chắc chắn là phần các bạn mong chờ nhất đúng không? “Đẹp thế này chắc đắt lắm?” – Không hề nhé! Mẫu nhà 2 tầng mái Nhật được mệnh danh là mẫu nhà “quốc dân” chính bởi chi phí xây dựng rất hợp lý.
TechHome xin đưa ra bảng khái toán chi phí xây dựng cho mẫu nhà tương tự nhà anh Bình (Tổng diện tích sàn ~142m2) để các bạn tham khảo. Lưu ý: Giá có thể thay đổi tùy thời điểm và giá vật liệu tại địa phương.
Bảng báo giá thi công trọn gói (Tham khảo)
| Hạng mục | Đơn giá (VNĐ/m2) | Thành tiền ước tính (VNĐ) | Ghi chú |
| Thi công phần thô | 3.800.000 – 4.200.000 | ~ 540.000.000 – 600.000.000 | Bao gồm móng, khung cột, xây trát, điện nước đi ngầm. |
| Gói hoàn thiện cơ bản | 5.500.000 – 6.000.000 | ~ 780.000.000 – 850.000.000 | Gạch ốp lát, sơn bả, thiết bị vệ sinh cơ bản, cửa nhôm kính. |
| Gói hoàn thiện khá | 6.500.000 – 7.500.000 | ~ 920.000.000 – 1.065.000.000 | Vật liệu tốt, thiết bị vệ sinh cao cấp, cửa gỗ, trần thạch cao đẹp. |
Chi tiết vật tư phần thô gợi ý cho nhà 2 tầng mái Nhật:
-
Sắt thép: Hòa Phát, Việt Nhật.
-
Xi măng: Hoàng Thạch, Bỉm Sơn (tùy vùng miền).
-
Gạch xây: Gạch tuynel loại 1 nhà máy địa phương.
-
Ống nước: Tiền Phong.
-
Dây điện: Trần Phú.
Nếu bạn khéo léo quản lý vật tư hoặc thuê nhân công địa phương và chỉ thuê TechHome thiết kế, giám sát, bạn hoàn toàn có thể sở hữu mẫu nhà 2 tầng mái Nhật này với chi phí chỉ từ 900 triệu đồng cho phần hoàn thiện cơ bản để dọn vào ở. Một con số quá lý tưởng cho một cơ ngơi bề thế!
Lưu ý: Đây chỉ là mức chi phí ước tính. Để nhận được báo giá chính xác và chi tiết nhất cho công trình của bạn, vui lòng liên hệ trực tiếp với chúng tôi. Hoặc để tìm hiểu rõ hơn về tiêu chuẩn vật liệu xây dựng và các yếu tố ảnh hưởng đến chi phí, bạn có thể tham khảo thêm tại các bài viết chuyên sâu về vật liệu xây dựng cao cấp trên Wikipedia.

5. Kinh nghiệm “xương máu” khi xây nhà 2 tầng mái Nhật
Là người trong nghề, tôi khuyên thật lòng các bạn vài điều sau để tránh “tiền mất tật mang”:
-
Đừng ham vẽ vời quá nhiều phào chỉ: Bản chất nhà 2 tầng mái Nhật đẹp ở hình khối. Việc đắp quá nhiều hoa văn rườm rà vừa tốn nhân công, vừa tốn tiền sơn, mà sau này vệ sinh bụi bẩn rất cực. Hãy cứ đơn giản, hiện đại như nhà anh Bình là đẹp nhất, 10 năm nữa nhìn vẫn sang.
-
Chú trọng phần mái: Hệ mái Nhật nhìn đơn giản nhưng kỹ thuật thi công kèo mè, lợp ngói cần độ chính xác cao để tránh dột và đảm bảo độ thoát nước. Đừng tiếc tiền thuê thợ mái “cứng tay”.
-
Lựa chọn màu sơn: Như bạn thấy, nhà anh Bình dùng tông xanh – trắng. Đây là cặp màu “huyền thoại” cho nhà 2 tầng mái Nhật. Nó giúp ngôi nhà luôn tươi mới và rất sạch. Tránh dùng các màu quá nóng như vàng đậm, đỏ cam cho ngoại thất vì sẽ tạo cảm giác bức bối vào mùa hè.
-
Phong thủy là khoa học: Đừng đặt bếp dưới phòng ngủ, đừng đặt bàn thờ dựa lưng vào nhà vệ sinh. Những lỗi cơ bản này nếu không có KTS tư vấn, thợ vườn rất hay mắc phải.

6. Tại sao anh Bình và hàng trăm khách hàng chọn TechHome?
Giữa “ma trận” các đơn vị thiết kế, tại sao anh Bình ở Nghệ An lại tin tưởng giao phó ngôi nhà 2 tầng mái Nhật của mình cho TechHome?
-
Chúng tôi lắng nghe, không áp đặt: TechHome hiểu rằng ngôi nhà là của bạn. Chúng tôi dùng chuyên môn để hiện thực hóa mong muốn của bạn chứ không bắt bạn phải sống theo ý thích của KTS.
-
Hồ sơ chi tiết, dễ hiểu: Nhìn vào bản vẽ mặt bằng, từ kích thước từng viên gạch, vị trí ổ cắm điện đều được thể hiện rõ ràng. Thợ quê nhìn vào cũng thi công được ngay mà không cần hỏi lại nhiều.
-
Hỗ trợ kỹ thuật 24/7: Dù công trình ở xa, nhưng bất cứ khi nào thợ thắc mắc, chỉ cần gọi hotline 0364.04.2222, kỹ sư TechHome sẽ gọi video zalo hướng dẫn trực tiếp.

7. Lời kết
Xây nhà là chuyện hệ trọng cả đời. Một ngôi nhà 2 tầng mái Nhật đẹp không chỉ là nơi che mưa che nắng, mà còn là niềm tự hào, là động lực để bạn phấn đấu mỗi ngày.
Nếu bạn đã “phải lòng” mẫu thiết kế của nhà anh Bình hay đang ấp ủ một ý tưởng nhà 2 tầng mái Nhật độc đáo cho riêng mình, đừng ngần ngại nhấc máy lên. TechHome luôn sẵn sàng lắng nghe và cùng bạn kiến tạo nên những tổ ấm vững bền.
Đừng để ước mơ chỉ nằm trên giấy, hãy để Tech Home giúp bạn đặt viên gạch đầu tiên!
CÔNG TY CỔ PHẦN KIẾN TRÚC VÀ XÂY DỰNG TECH HOME
-
Hotline/Zalo: 0364.04.2222 – 0387.60.3333
-
Website: https://nhadeptechhome.vn/
-
Địa chỉ: B1.1 LK18 Ô 3 – KĐT Thanh Hà – Cienco 5 – Thanh Oai- Hà Nội.
