Khám phá mẫu thiết kế nội thất nhà ống 2 tầng 1 tum đẹp hoàn hảo theo phong cách Hiện đại Tinh tế. Techhome chia sẻ 5 bí quyết bố trí công năng, chọn vật liệu và dự toán chi phí chi tiết để bạn sở hữu tổ ấm mơ ước!
💎 Giới Thiệu Chung Về Nội Thất Nhà Ống 2 Tầng 1 Tum Hiện Đại Tinh Tế
Chào mừng bạn đến với một trong những dự án thiết kế nội thất tiêu biểu, minh chứng cho sự kết hợp hoàn hảo giữa thẩm mỹ cao cấp và công năng tối ưu của Techhome. Đây là mẫu thiết kế dành riêng cho loại hình nhà ống 2 tầng 1 tum – một kiểu kiến trúc phổ biến tại các khu đô thị lớn và thành phố.
Phong cách chủ đạo của dự án là Hiện đại, nhưng được nâng tầm với sự tinh tế, sang trọng thông qua việc sử dụng các gam màu trung tính như Trắng, Xám, Đen, và Nâu đất . Sự cân bằng màu sắc này không chỉ tạo nên một không gian thoáng đãng mà còn toát lên vẻ đẳng cấp, thời thượng. Đặc biệt, việc ứng dụng các chi tiết vật liệu công nghiệp như đá Marble vân mây, kim loại đen và gỗ công nghiệp vân óc chó đã mang lại chiều sâu và điểm nhấn thị giác mạnh mẽ cho toàn bộ không gian.
Mục tiêu của Techhome trong dự án nội thất nhà ống 2 tầng 1 tum này là giải quyết triệt để bài toán về ánh sáng và độ thoáng cho nhà ống, đồng thời kiến tạo các khu vực chức năng liền mạch, tiện nghi, phù hợp với lối sống hiện đại, bận rộn. Nếu bạn đang tìm kiếm ý tưởng nội thất nhà ống 2 tầng 1 tum vừa đẹp, vừa khoa học, đây chính là bài viết không thể bỏ qua.

🛋️ Phối Cảnh Nội Thất Nhà Ống 2 Tầng 1 Tum – Không Gian Sống Tối Giản và Sang Trọng
Phối cảnh nội thất của căn nhà ống này là một minh chứng rõ ràng cho nguyên tắc “ít hơn là nhiều hơn” trong phong cách Hiện đại.
- Khu vực Phòng Khách:
- Sofa chữ L lớn, màu xám đậm (Anthracite Grey) là trung tâm, mang lại cảm giác ấm cúng, vững chãi.
- Tường TV được ốp lát tinh tế bằng đá Marble trắng vân mây kết hợp với hệ tủ rượu/trang trí bằng kính và gỗ sẫm màu, tạo nên một bố cục đối xứng, cực kỳ bắt mắt.
- Điểm nhấn nổi bật là lò sưởi giả (electric fireplace) hiện đại, không chỉ thêm nét lãng mạn mà còn nâng tầm sự xa hoa cho không gian.
- Ánh sáng được xử lý khéo léo với hệ thống đèn downlight âm trần, đèn ray trượt, và một chiếc quạt trần có đèn chùm trang trí, vừa đảm bảo chiếu sáng vừa là vật dụng décor đắt giá.
- Khu vực Bàn Ăn và Bếp:
- Bàn ăn mặt đá chữ nhật lớn với ghế bọc da/nỉ màu nâu nhạt (Taupe) thể hiện sự thanh lịch, mời gọi. Bàn ăn được đặt gần cửa sổ lớn với rèm cuốn ngang (zebra blinds), dễ dàng điều chỉnh ánh sáng tự nhiên.
- Khu vực bếp liền kề được thiết kế gọn gàng, sử dụng tủ bếp gỗ công nghiệp với tông màu ấm áp và mặt đá bếp sạch sẽ, phản ánh sự tiện nghi tối đa cho người sử dụng.

- Thiết kế Cầu thang:
- Điểm nhấn kiến trúc là cầu thang với lan can sắt nghệ thuật màu đen, uốn cong mềm mại, tạo sự tương phản nổi bật trên nền tường ốp đá hoặc bê tông trần. Gầm cầu thang được tận dụng làm tủ trưng bày rượu hoặc tủ kho, thể hiện sự tối ưu không gian đặc trưng của nhà ống.
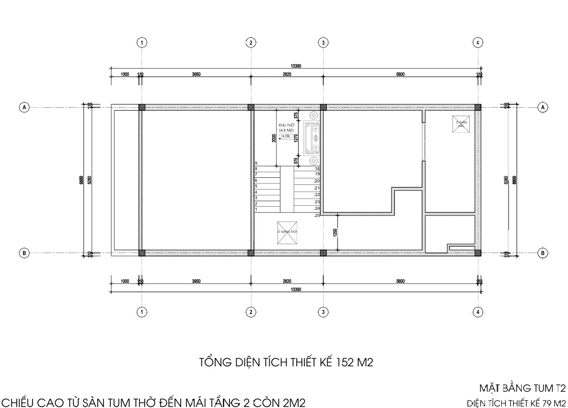
🧘 Không Gian Phòng Thờ Tầng Tum: Nét Đẹp Tâm Linh Giữa Lòng Hiện Đại
Trong mẫu nội thất nhà ống 2 tầng 1 tum này, phòng thờ được ưu tiên bố trí tại tầng tum – vị trí cao nhất, trang nghiêm nhất và ít bị ảnh hưởng bởi sinh hoạt chung nhất.
Phòng thờ thể hiện sự kết hợp hài hòa giữa nét truyền thống và tính thẩm mỹ cao cấp:
- Vật liệu chủ đạo là Gỗ Sẫm Màu: Toàn bộ không gian được ốp gỗ tự nhiên hoặc gỗ công nghiệp cao cấp vân gỗ tối, tạo cảm giác ấm cúng, trang trọng tuyệt đối.
- Bàn Thờ và Tấm Chắn: Được chạm khắc tinh xảo với hoa văn truyền thống, thể hiện sự thành kính và tỉ mỉ trong từng chi tiết.
- Trang trí Điển hình: Sử dụng cặp lục bình gốm sứ lớn, kết hợp với tượng hạc đồng và ánh sáng vàng dịu từ đèn lồng chạm khắc, mang lại không khí linh thiêng và tĩnh tại.
- Ánh Sáng Tự Nhiên: Phòng thờ được bố trí cạnh ban công tầng tum, giúp không gian luôn thông thoáng, đón được ánh sáng tự nhiên một cách nhẹ nhàng.
Phòng thờ này không chỉ là nơi thờ cúng mà còn là một điểm nhấn kiến trúc, cho thấy sự tôn trọng giá trị truyền thống trong một tổng thể thiết kế hiện đại.
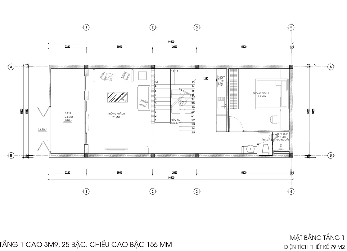
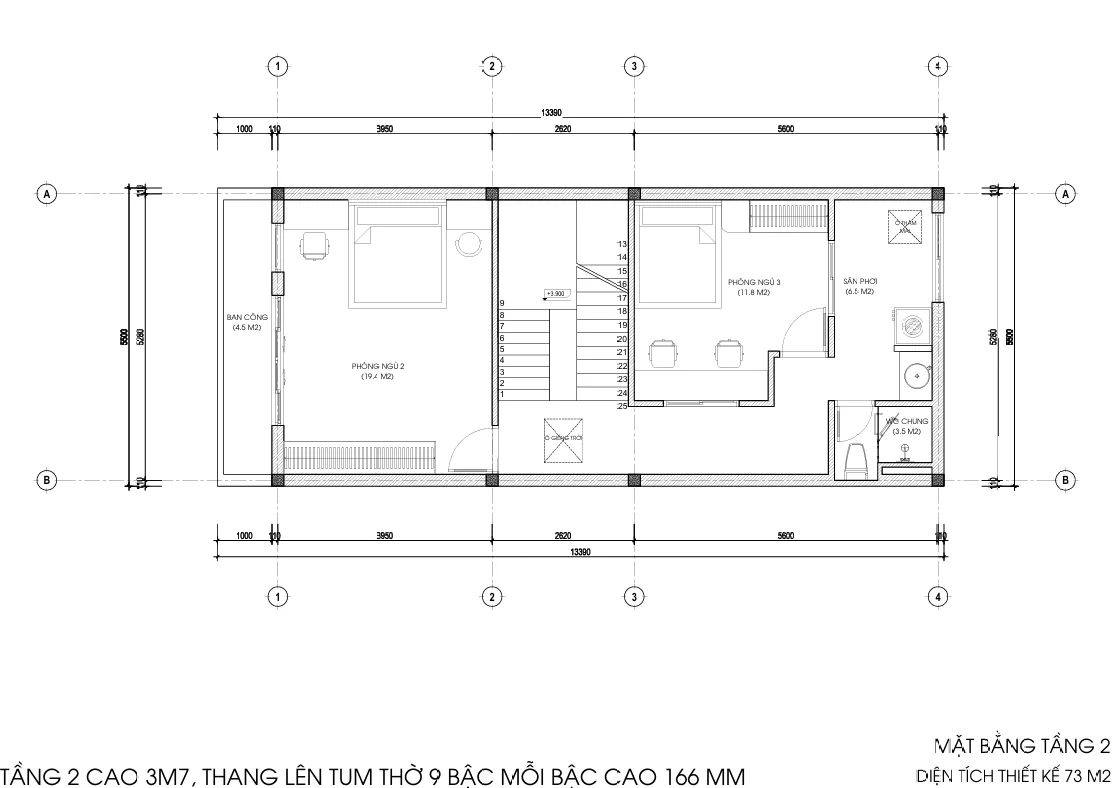
📐 Phân Tích Bố Trí Mặt Bằng Công Năng Khoa Học
Với đặc điểm hình học dài và hẹp của nhà ống 2 tầng 1 tum, việc phân chia công năng đòi hỏi sự tính toán kỹ lưỡng để tối đa hóa diện tích và đảm bảo lưu thông không khí.
- Tầng Trệt (Gia đình):
- Phòng Khách và Bàn Ăn Liền Mạch: Thiết kế mở giữa phòng khách và khu vực ăn uống là giải pháp tối ưu cho không gian hẹp. Sự liền mạch này giúp căn nhà trở nên rộng rãi hơn, dễ dàng tổ chức các hoạt động sinh hoạt chung.
- Bếp và Vệ Sinh: Khu vực bếp được đặt phía sau cùng để đảm bảo thoát mùi. Vệ sinh chung được bố trí kín đáo, tiện lợi.
- Gầm Cầu Thang: Được biến thành các tủ lưu trữ hoặc tủ rượu sang trọng, giải phóng không gian cho các phòng chính.
- Tầng Lầu (Riêng tư):
- Tầng 2 thường là khu vực bố trí 2-3 phòng ngủ chính. Việc sử dụng giếng trời hoặc các ô cửa sổ lớn được tính toán để lấy sáng tự nhiên cho hành lang và các phòng.
- Tầng Tum (Giải trí/Thờ cúng):
- Tầng tum lý tưởng cho phòng thờ cúng (được thiết kế truyền thống với gỗ sẫm màu), phòng giặt phơi, và sân thượng. Đây là không gian linh hoạt, vừa đáp ứng yếu tố tâm linh, vừa phục vụ nhu cầu giải trí ngoài trời.
Sự bố trí này đảm bảo tính khoa học, tách biệt rõ ràng giữa không gian sinh hoạt chung (tầng trệt) và không gian nghỉ ngơi riêng tư (tầng lầu), mang lại trải nghiệm sống tiện nghi, thoải mái nhất cho gia chủ.
🔨 Đánh Giá về Vật Liệu Thiết Kế Cao Cấp
Để đạt được chất lượng và vẻ đẹp sang trọng , Techhome luôn ưu tiên các loại vật liệu có độ bền cao và tính thẩm mỹ vượt trội:
- Sàn: Sử dụng gạch Porcelain vân đá lớn (Large-format stone-look Porcelain tile) màu xám nhạt, tạo cảm giác liền mạch, dễ vệ sinh và chống trơn trượt hiệu quả.
- Tường Ốp Trang Trí:
- Đá Marble tự nhiên/nhân tạo cao cấp: Ốp vách TV, mặt bàn, mang lại sự mát mẻ và vân mây độc đáo, không trùng lặp.
- Tấm Ốp Lam Sóng và Vách Panel: Được dùng để trang trí tường, tạo hiệu ứng 3D chiều sâu và tăng tính hiện đại, đồng thời che giấu các khuyết điểm về điện, dây cáp.
- Nội Thất Gỗ:
- Sử dụng Gỗ Công Nghiệp cao cấp (MDF/HDF lõi xanh chống ẩm) phủ Melamine, Laminate hoặc Acrylic với tông màu vân gỗ óc chó hoặc màu đơn sắc sẫm, đảm bảo độ bền, chống cong vênh và mang lại vẻ ngoài sang trọng như gỗ tự nhiên.
- Phụ kiện Kim Loại: Lan can cầu thang, chân bàn, khung tủ được sử dụng sắt sơn tĩnh điện màu đen mờ, tạo điểm nhấn công nghiệp mạnh mẽ và độ bền bỉ theo thời gian.
Sự kết hợp vật liệu này không chỉ tạo nên vẻ ngoài hoàn mỹ mà còn đảm bảo độ bền vững, khả năng chống ẩm mốc đặc trưng cần có cho môi trường nhà ống tại Việt Nam.

🥇 Lợi Ích và Giá Trị Khi Chọn Techhome
Techhome tự hào là đơn vị tiên phong trong lĩnh vực thiết kế và thi công nội thất nhà ống, mang đến những giá trị khác biệt:
- Thiết Kế Độc Bản, Cá Nhân Hóa: Chúng tôi không chỉ sao chép mẫu mà kiến tạo không gian dựa trên Gu thẩm mỹ, Thói quen sinh hoạt và Ngân sách của riêng bạn. Mẫu nội thất nhà ống 2 tầng 1 tum này là một ví dụ điển hình về khả năng cá nhân hóa không gian hẹp.
- Đội Ngũ Chuyên Gia Giàu Kinh Nghiệm: Đội ngũ kiến trúc sư và kỹ sư của Techhome có chuyên môn sâu trong việc giải quyết các thách thức về ánh sáng, thông gió, và bố trí công năng đặc trưng của nhà ống.
- Quy Trình Thi Công Chuẩn Xác: Chúng tôi sở hữu xưởng sản xuất nội thất riêng, cam kết sử dụng vật liệu đúng chuẩn, đúng nguồn gốc, đảm bảo sự đồng bộ từ bản vẽ đến thực tế.
- Cam Kết Chất Lượng và Bảo Hành Dài Hạn: Techhome áp dụng chế độ bảo hành cấu trúc và bảo trì nội thất chi tiết, giúp khách hàng hoàn toàn yên tâm trong suốt quá trình sử dụng.
- Tối Ưu Chi Phí, Minh Bạch Báo Giá: Chúng tôi cung cấp bảng dự toán chi phí chi tiết, giúp bạn kiểm soát ngân sách hiệu quả mà không phát sinh chi phí ẩn.
💰 Thiết Kế Nội Thất Nhà Ống 2 Tầng 1 Tum Có Giá Bao Nhiêu?
Chi phí thiết kế và thi công nội thất nhà ống 2 tầng 1 tum phụ thuộc vào nhiều yếu tố: Diện tích tổng thể, Phong cách thiết kế, Loại vật liệu nội thất (ví dụ: Gỗ tự nhiên so với gỗ công nghiệp cao cấp, đá tự nhiên so với đá nhân tạo).
1. Chi Phí Thiết Kế:
- Đơn giá: Dao động từ 180.000 VNĐ – 250.000 VNĐ/m² sàn xây dựng.
- Với một căn nhà ống có diện tích sàn khoảng 150m2 – 200m2 (chưa tính tum và ban công), chi phí thiết kế sẽ khoảng 27 triệu – 50 triệu VNĐ.
2. Chi Phí Thi Công (Chi Phí Đầu Tư Nội Thất):
- Phân khúc Trung cấp: Khoảng 4 – 6 triệu VNĐ/m² sàn xây dựng.
- Phân khúc Cao cấp (như mẫu này): Khoảng 6.5 – 9 triệu VNĐ/m² sàn xây dựng (do sử dụng nhiều vật liệu ốp đá, hệ tủ cao cấp, thiết bị bếp nhập khẩu).
- Ước tính Tổng Chi Phí Nội Thất: Với diện tích sàn 150m2 – 200m2, tổng đầu tư cho nội thất cao cấp sẽ dao động từ 975 triệu – 1.8 tỷ VNĐ.
Lưu ý: Đây chỉ là mức chi phí ước tính. Để nhận được báo giá chính xác và chi tiết nhất cho công trình của bạn, vui lòng liên hệ trực tiếp với chúng tôi. Hoặc để tìm hiểu rõ hơn về tiêu chuẩn vật liệu xây dựng và các yếu tố ảnh hưởng đến chi phí, bạn có thể tham khảo thêm tại các bài viết chuyên sâu về vật liệu xây dựng cao cấp trên Wikipedia.

📞 Kết Luận
Mẫu thiết kế nội thất nhà ống 2 tầng 1 tum phong cách Hiện đại Tinh tế này không chỉ là một không gian sống, mà là một tác phẩm nghệ thuật kiến trúc, thể hiện rõ nét cá tính và đẳng cấp của gia chủ. Sự cân bằng giữa công năng, thẩm mỹ và vật liệu cao cấp chính là chìa khóa thành công của dự án này.
Đừng để ngôi nhà ống của bạn bị giới hạn bởi không gian hẹp!
Hãy để Techhome biến tổ ấm của bạn thành một không gian SANG TRỌNG – KHOA HỌC – BỀN VỮNG.
Liên hệ ngay với đội ngũ chuyên gia Techhome để nhận tư vấn thiết kế nội thất nhà ống 2 tầng 1 tum Miễn Phí và Báo Giá Chi Tiết nhất:
HOTLINE: 0364042222 / 0387603333
Xem thêm các dự án nội thất nhà ống tiêu biểu khác của chúng tôi tại đây https://nhadeptechhome.vn/



















