Giữa lòng Hà Nội tấp nập, tìm được một chốn đi về bình yên, vừa vặn công năng mà vẫn toát lên vẻ sang trọng là mơ ước của bao người. Hôm nay, TechHome xin phép được ngồi lại, kể cho các bạn nghe về hành trình kiến tạo nên tổ ấm của gia đình anh Chung. Đây không chỉ là một công trình xây dựng, đó là tâm huyết, là một mẫu nhà 2 tầng mái Nhật điển hình cho xu hướng kiến trúc hiện đại, tinh tế mà chúng tôi vô cùng tâm đắc.
1. Duyên Lành Với Mẫu Nhà 2 Tầng Mái Nhật Của Gia Đình Anh Chung
Câu chuyện bắt đầu vào những ngày Hà Nội trở gió. Anh Chung tìm đến TechHome với một đề bài vừa dễ mà lại vừa khó. Anh sở hữu mảnh đất có kích thước khá đẹp tại Hà Nội, muốn xây dựng một ngôi nhà cho gia đình đa thế hệ. “Anh cần sự đơn giản nhưng phải sang, các phòng phải rộng rãi vì nhà đông người, và quan trọng nhất là phải thoáng,” anh Chung chia sẻ.
Sau khi khảo sát thực địa và lắng nghe tâm tư của gia chủ, đội ngũ kiến trúc sư (KTS) đã chốt phương án: Một mẫu nhà 2 tầng mái Nhật hiện đại, kết hợp chút hơi hướng tân cổ điển nhẹ nhàng. Tại sao lại là mái Nhật? Bởi hệ mái này có độ dốc vừa phải, thoát nước tốt, chống nóng hiệu quả cho mùa hè miền Bắc, lại mang vẻ đẹp thanh thoát, không quá phô trương nhưng đủ để ai đi qua cũng phải ngước nhìn.

2. Vẻ Đẹp Ngoại Thất: Sự Giao Thoa Giữa Hiện Đại Và Truyền Thống
Nhìn vào phối cảnh 3D, bạn sẽ thấy mẫu nhà 2 tầng mái Nhật này hiện lên sừng sững và bề thế. Không quá cầu kỳ với những hoa văn rồng phượng, ngôi nhà khoác lên mình lớp sơn trắng sứ tinh khôi – gam màu “quốc dân” không bao giờ lỗi mốt.
Hệ mái Nhật màu xanh than đẳng cấp
Điểm nhấn đắt giá nhất của mẫu nhà 2 tầng mái Nhật chính là hệ mái ngói màu xanh than (Blue). Màu xanh này khi kết hợp với nền tường trắng tạo nên sự tương phản mạnh mẽ, hút mắt cực kỳ. Hệ mái được thiết kế giật cấp nhẹ, đua ra vừa phải, che chắn cho ban công và sảnh chính khỏi mưa nắng khắc nghiệt của thời tiết Hà Nội.
Hình khối vững chãi và chi tiết tinh tế
Mặt tiền ngôi nhà rộng khoảng 8m được chia làm hai khối chính phụ rõ ràng. Hệ cột trụ vuông vắn nâng đỡ ban công tầng 2 tạo cảm giác vững chãi, an tâm. Các KTS TechHome đã khéo léo điểm xuyết những đường phào chỉ chạy ngang tường, một đặc trưng của tân cổ điển, giúp mẫu nhà 2 tầng mái Nhật trở nên mềm mại hơn, xóa tan sự cứng nhắc của các khối bê tông.
Ban công tầng 2 sử dụng lan can sắt mỹ thuật uốn cong nhẹ nhàng kết hợp với các lam bê tông, vừa đảm bảo an toàn, vừa là nơi lý tưởng để anh Chung đặt vài chậu cây xanh, tạo nên góc “chill” mỗi buổi chiều về.

3. Khám Phá Công Năng: Bài Toán 95m2 Được Giải Quyết Ra Sao?
Một mẫu nhà 2 tầng mái Nhật đẹp không chỉ ở cái vỏ bên ngoài, mà quan trọng là “nội thất” bên trong phải phục vụ tối đa cho cuộc sống sinh hoạt đời thường. Với diện tích sàn xây dựng khoảng 95m2 mỗi tầng, TechHome đã bố trí công năng như thế nào?
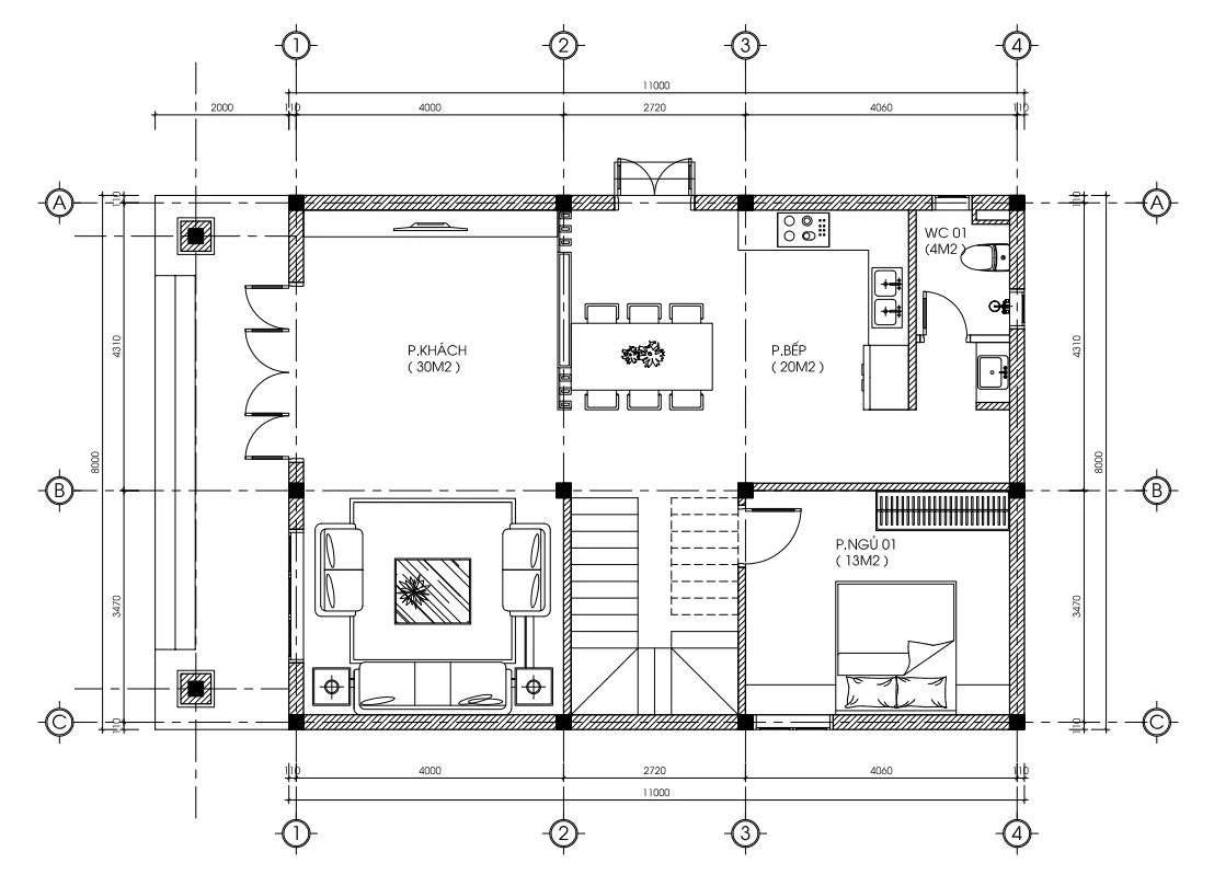
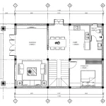
Mặt bằng tầng 1: Không gian kết nối (95m2)
Bước qua sảnh chính là Phòng Khách rộng mênh mông với diện tích lên tới 30m2. Đây là “bộ mặt” của ngôi nhà, nơi anh Chung dự định đặt bộ sofa gỗ sồi lớn để tiếp đón bạn bè, họ hàng mỗi dịp lễ Tết.
Đi sâu vào bên trong là khu vực Bếp và Phòng ăn rộng 20m2. Điểm hay của thiết kế này là sự liên thông nhưng vẫn có sự tách biệt nhất định. Mùi thức ăn sẽ không ám quá nhiều vào phòng khách nhờ hệ thống cửa sổ và cửa phụ thông ra sân ướt bên hông.
Đặc biệt, tầng 1 được bố trí 01 Phòng ngủ (13m2). Trong các mẫu nhà 2 tầng mái Nhật mà TechHome tư vấn, chúng tôi luôn khuyên gia chủ nếu có người lớn tuổi thì nên đặt phòng ngủ ở tầng 1. Điều này giúp ông bà hạn chế leo cầu thang, đảm bảo an toàn tuyệt đối. Kế bên là 1 WC chung (4m2) tiện lợi.

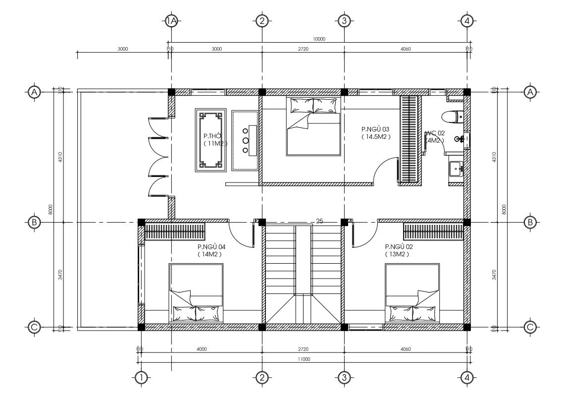
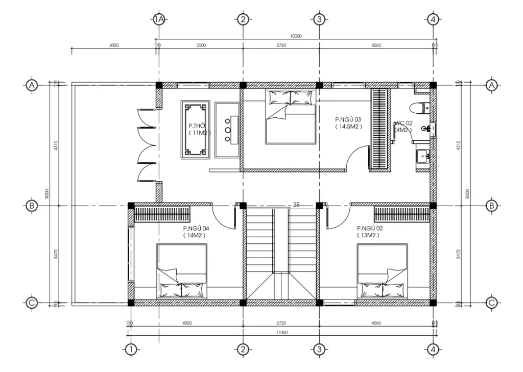
Mặt bằng tầng 2: Không gian nghỉ ngơi riêng tư
Leo lên 25 bậc cầu thang, chúng ta đến với không gian sinh hoạt riêng tư của tầng 2. Tại đây, sự ưu việt của mẫu nhà 2 tầng mái Nhật tiếp tục được phát huy với khả năng bố trí phòng ốc vuông vắn.
-
Phòng thờ (11m2): Đặt ở vị trí trang trọng nhất, hướng ra mặt tiền, đảm bảo yếu tố phong thủy và tâm linh.
-
03 Phòng ngủ: Gồm Phòng ngủ 02 (13m2), Phòng ngủ 03 (14.5m2) và Phòng ngủ 04 (14m2). Việc bố trí tới 3 phòng ngủ trên một sàn giúp các thành viên trong gia đình anh Chung (vợ chồng và các con) được ở gần nhau, dễ dàng quan tâm, chăm sóc.
-
Vệ sinh: 01 WC chung (4m2) được đặt ở vị trí thuận tiện giao thông cho cả 3 phòng.
Tổng cộng, ngôi nhà này sở hữu tới 4 phòng ngủ – một con số lý tưởng cho gia đình 3 thế hệ mà vẫn đảm bảo sự rộng rãi, không hề tù túng.

4. Tại Sao Mẫu Nhà 2 Tầng Mái Nhật Lại Là “Vua” Của Các Xu Hướng?
Không phải ngẫu nhiên mà khi lướt Facebook hay TikTok, bạn thấy cụm từ mẫu nhà 2 tầng mái Nhật xuất hiện dày đặc.
Thứ nhất, nó thực dụng. So với mái Thái chóp nhọn đắt đỏ và thi công phức tạp, mái Nhật có độ dốc thấp hơn, tiết kiệm chi phí nhân công và vật tư ngói hơn, nhưng vẫn đảm bảo thoát nước cực tốt.
Thứ hai, nó “dễ tính”. Mẫu nhà 2 tầng mái Nhật có thể kết hợp với sân vườn rộng ở quê, cũng có thể xây gọn gàng trên đất phố như nhà anh Chung tại Hà Nội. Nó cân bằng giữa chiều cao và chiều rộng, tạo cảm giác đầm ấm, sum vầy.
Thứ ba, tính thẩm mỹ bền vững. Mười năm hay hai mươi năm nữa, nhìn lại ngôi nhà này, bạn sẽ vẫn thấy nó đẹp. Sự đơn giản chính là đỉnh cao của sự tinh tế.

5. Báo Giá Thiết Kế Và Thi Công Mẫu Nhà 2 Tầng Mái Nhật (Cập Nhật 2026)
Đây chắc chắn là phần các bạn mong chờ nhất. “Đẹp thế này thì hết bao nhiêu tiền?”. TechHome xin đưa ra bảng khái toán chi phí dựa trên thị trường năm 2026 và thực tế công trình 95m2 sàn của anh Chung để bạn dễ hình dung. Lưu ý, đây là con số tham khảo, giá thực tế phụ thuộc vào thời điểm và loại vật liệu bạn chọn.
a. Chi phí thiết kế:
Hiện tại, TechHome đang thiết kế (Kiến trúc, Kết cấu, Điện nước) cho mẫu nhà 2 tầng mái Nhật:
-
Đơn giá: 108.000đ/m2.
-
Tổng chi phí thiết kế: Khoảng 21 triệu đồng. (Một khoản đầu tư quá nhỏ để tránh rủi ro đập đi xây lại).
b. Chi phí thi công xây dựng (Trọn gói – Chìa khóa trao tay):
Với tổng diện tích sàn xây dựng khoảng 190m2 (95m2 x 2 tầng) + diện tích mái (tính theo hệ số), chúng ta có các gói sau:
| Hạng mục | Đơn giá (VNĐ/m2) | Mô tả vật tư |
| Gói Tiết Kiệm | 5.500.000 – 6.000.000 | Vật tư trung bình khá. Gạch ốp lát trong nước, sơn Maxilite/Jotun, thiết bị vệ sinh Viglacera. |
| Gói Cơ Bản | 6.200.000 – 6.800.000 | Vật tư khá. Gạch Prime/Taicera, sơn Dulux, thiết bị Inax, cửa nhôm kính Xingfa Quảng Đông. |
| Gói Cao Cấp | 7.000.000 – 8.000.000 | Vật tư tốt. Gạch nhập khẩu/Eurotile, sơn Dulux 5 trong 1, thiết bị Toto, cửa gỗ Lim Nam Phi. |
Tạm tính cho nhà anh Chung (Gói Khá):
-
Phần thô + nhân công hoàn thiện: ~ 800 triệu đồng.
-
Phần hoàn thiện (Sơn, gạch, cửa, thiết bị vệ sinh…): ~ 600 – 800 triệu đồng.
-
Tổng mức đầu tư dự kiến: Khoảng 1.3 tỷ – 1,6 tỷ đồng để dọn vào ở (chưa bao gồm nội thất rời như giường, tủ, tivi…).
Nếu bạn muốn tiết kiệm hơn, có thể chọn hình thức thuê nhân công và tự mua vật tư. Tuy nhiên, với kinh nghiệm làm hàng trăm mẫu nhà 2 tầng mái Nhật, tôi khuyên bạn nên chọn nhà thầu uy tín trọn gói để tránh phát sinh chi phí không kiểm soát được.
Lưu ý: Đây chỉ là mức chi phí ước tính. Để nhận được báo giá chính xác và chi tiết nhất cho công trình của bạn, vui lòng liên hệ trực tiếp với chúng tôi. Hoặc để tìm hiểu rõ hơn về tiêu chuẩn vật liệu xây dựng và các yếu tố ảnh hưởng đến chi phí, bạn có thể tham khảo thêm tại các bài viết chuyên sâu về vật liệu xây dựng cao cấp trên Wikipedia.

6. Những Lưu Ý “Sống Còn” Khi Xây Nhà 2 Tầng Mái Nhật
Là người trực tiếp giám sát nhiều công trình, tôi thấy nhiều gia chủ thường mắc sai lầm ở khâu chọn vật liệu mái. Với mẫu nhà 2 tầng mái Nhật, hệ vì kèo thép siêu nhẹ và ngói tráng men cao cấp là lựa chọn số 1 hiện nay. Nó nhẹ hơn nhiều so với việc dán ngói lên mái bê tông, giúp giảm tải trọng cho móng, tiết kiệm chi phí sắt thép phần thân.
Ngoài ra, hãy chú ý đến tỷ lệ. Mái Nhật đẹp ở độ dốc. Nếu dốc quá thành mái Thái, nếu bằng quá thì thành mái bằng, mất đi cái “chất” Nhật Bản. Hãy để các KTS của TechHome cân chỉnh tỷ lệ vàng cho ngôi nhà của bạn.
Hệ thống cửa cũng rất quan trọng. Như bạn thấy trong bản vẽ mặt bằng tầng 1 và tầng 2, TechHome bố trí rất nhiều cửa sổ lớn. Mẫu nhà 2 tầng mái Nhật rất cần sự thông thoáng. Đừng tiết kiệm tiền làm cửa, hãy dùng nhôm kính hệ xingfa để đón trọn ánh sáng tự nhiên, giúp ngôi nhà luôn tràn ngập sinh khí.

7. TechHome – Đơn Vị Thiết Kế & Thi Công Uy Tín
Công trình nhà anh Chung tại Hà Nội là một minh chứng rõ nét cho năng lực của TechHome. Chúng tôi không chỉ vẽ nên những mẫu nhà 2 tầng mái Nhật đẹp trên giấy, mà còn hiện thực hóa nó thành tổ ấm vững chãi ngoài đời thực.
Bộ hồ sơ thiết kế kỹ thuật thi công được thực hiện bài bản, chi tiết từ kiến trúc đến kết cấu, điện nước. Mỗi bản vẽ đều được kiểm duyệt kỹ càng bởi các KTS chủ trì giàu kinh nghiệm.
Nếu bạn đang ấp ủ dự định xây dựng một mẫu nhà 2 tầng mái Nhật cho gia đình mình, đừng ngần ngại liên hệ với chúng tôi. Dù bạn ở Hà Nội hay bất kỳ tỉnh thành nào, TechHome đều sẵn sàng phục vụ.
Thông tin liên hệ:
-
CÔNG TY CỔ PHẦN KIẾN TRÚC VÀ XÂY DỰNG TECHHOME
-
Hotline hỗ trợ tư vấn kỹ thuật: 0364.04.2222 – 0387.60.3333
-
Website: https://nhadeptechhome.vn/

Lời Kết
Xây nhà là việc lớn của đời người. Một ngôi nhà đẹp không chỉ để ngắm, mà là để sống, để yêu thương. Hy vọng qua bài viết phân tích chi tiết về mẫu nhà 2 tầng mái Nhật của gia đình anh Chung, bạn đã có thêm những ý tưởng tuyệt vời cho tổ ấm tương lai của mình.
Đừng quên, mẫu nhà 2 tầng mái Nhật vẫn sẽ là xu hướng thống trị trong nhiều năm tới. Nếu bạn yêu thích vẻ đẹp vừa hiện đại, vừa truyền thống, vừa sang trọng lại vừa gần gũi này, hãy để TechHome đồng hành cùng bạn. Cảm ơn bạn đã dành thời gian đọc bài viết này. Chúc bạn sớm sở hữu ngôi nhà mơ ước!
