Xây nhà là việc hệ trọng cả đời người. Ai trong chúng ta cũng mong muốn sở hữu một chốn đi về không chỉ bền vững theo năm tháng mà còn phải thẩm mỹ, tiện nghi và ấm cúng. Hôm nay, Kiến trúc Techhome xin giới thiệu đến quý khách hàng một công trình tâm đắc mà chúng tôi vừa hoàn thiện hồ sơ thiết kế cho gia đình cô Liên tại Đình Cao, Hưng Yên. Đây là mẫu nhà 2 tầng mái Thái mang phong cách kiến trúc tân cổ điển nhẹ kết hợp nét truyền thống, giải quyết bài toán diện tích khiêm tốn nhưng công năng tối ưu.
Nếu bạn đang tìm kiếm một ý tưởng thiết kế vừa vặn túi tiền, đẹp mắt và chuẩn phong thủy, hãy cùng Techhome phân tích chi tiết công trình này nhé.
1. Câu chuyện đằng sau bản vẽ và duyên lành với Techhome
Cô Liên tìm đến Techhome vào một ngày đẹp trời với mong muốn cải tạo không gian sống cho gia đình tại quê nhà Hưng Yên. Mảnh đất của cô không quá lớn, nhưng nhu cầu sử dụng lại cần sự linh hoạt cho gia đình đa thế hệ. Cô chia sẻ: “Cô thích sự đơn giản nhưng phải sang trọng, nhà không cần quá to nhưng phòng nào ra phòng nấy, đặc biệt là phải thoáng mát.”
Hiểu được tâm tư đó, đội ngũ KTS Techhome đã lên phương án mẫu nhà 2 tầng mái Thái. Đây là lựa chọn hoàn hảo nhất bởi hệ mái Thái không chỉ giúp công trình trông cao ráo, thanh thoát hơn mà còn có khả năng chống nóng tuyệt vời – điều cực kỳ quan trọng với khí hậu miền Bắc.

2. Vẻ đẹp ngoại thất: Sự giao thoa giữa hiện đại và tinh tế
Nhìn vào phối cảnh mặt tiền, bạn sẽ thấy ngay sự cuốn hút của mẫu nhà 2 tầng mái Thái này. Chúng tôi không lạm dụng quá nhiều chi tiết phào chỉ rườm rà của phong cách cổ điển, mà chắt lọc những đường nét tinh tế nhất của kiến trúc Tân cổ điển nhẹ nhàng.
Màu sắc và hình khối
Ngôi nhà khoác lên mình “bộ áo” màu trắng sứ chủ đạo. Đây là gam màu không bao giờ lỗi mốt, giúp làm nổi bật các chi tiết kiến trúc và tạo cảm giác ngôi nhà rộng hơn so với diện tích thực tế 75m2. Nổi bật trên nền trắng là hệ mái Thái màu xanh than sang trọng, cùng với màu gỗ tự nhiên của hệ cửa chính, tạo nên sự ấm áp, mời gọi.
Hệ mái Thái – Linh hồn của ngôi nhà
Không phải ngẫu nhiên mà từ khóa mẫu nhà 2 tầng mái Thái luôn đứng đầu lượt tìm kiếm. Hệ mái chữ A với độ dốc vừa phải giúp thoát nước mưa nhanh chóng, chống thấm dột hiệu quả. Phần mái chóp nhọn vươn lên trời xanh không chỉ mang ý nghĩa phong thủy tốt (tượng trưng cho sự phát triển) mà còn tạo nên nét duyên dáng, thanh lịch cho tổng thể công trình.

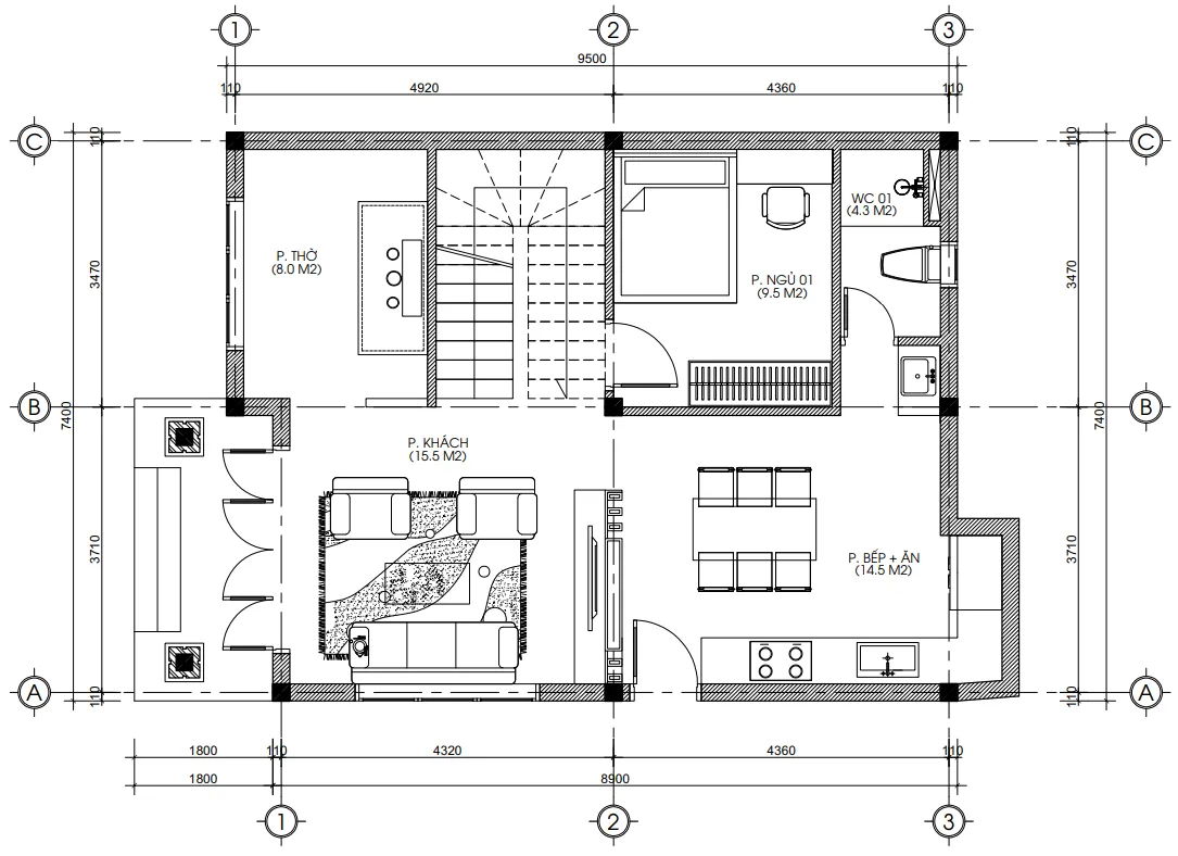
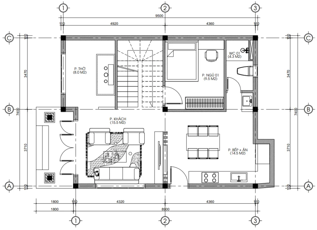
3. “Mổ xẻ” công năng: Bài toán diện tích 75m2 được giải quyết ra sao?
Nhiều người lo ngại diện tích 75m2 (kích thước khoảng 7.4m x 9.5m) sẽ khó bố trí phòng ốc. Tuy nhiên, với kinh nghiệm thực chiến, Techhome đã chứng minh điều ngược lại qua bản vẽ mặt bằng của mẫu nhà 2 tầng mái Thái nhà cô Liên.
Tầng 1: Không gian kết nối và truyền thống
Mặt bằng tầng 1 được bố trí khéo léo để đảm bảo sự tiện lợi cho sinh hoạt chung và người lớn tuổi.
-
Phòng khách (15.5m2): Bước qua sảnh chính là phòng khách rộng rãi, nơi gia chủ tiếp đón bạn bè.
-
Phòng thờ (8.0m2): Đặt ngay cạnh phòng khách, tầng 1. Đây là nét đặc trưng văn hóa ở các vùng quê, thuận tiện cho việc hương khói của người lớn tuổi mà không phải leo cao.
-
Phòng bếp + Ăn (14.5m2): Khu vực giữ lửa yêu thương, được thiết kế liên thông nhưng vẫn đủ kín đáo, có cửa phụ ra sảnh ướt giúp thoáng khí.
-
Phòng ngủ 01 (9.5m2): Dành cho ông bà hoặc người lớn tuổi, hạn chế việc leo cầu thang.
-
WC chung (4.3m2): Bố trí kín đáo ở góc nhà để tiết kiệm diện tích.
Điểm đặc biệt là chiều cao tầng 1 lên tới 3.9m, giúp không gian cực kỳ thoáng đãng, xua tan cảm giác bí bách của nhà phố/nhà ống thường thấy.

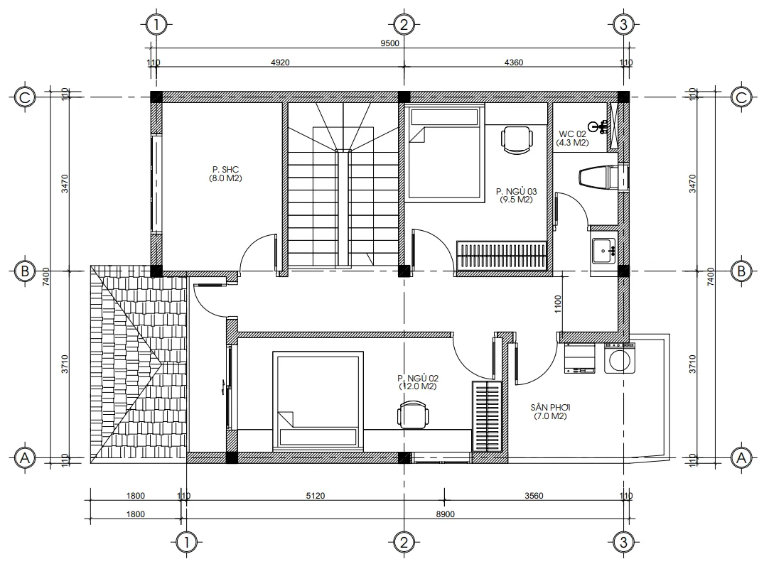
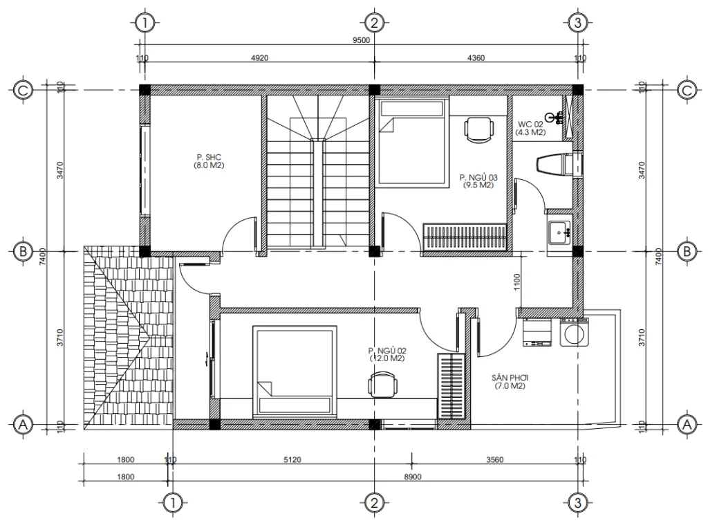
Tầng 2: Không gian nghỉ ngơi riêng tư
Bước lên 25 bậc cầu thang (số bậc rơi vào cung “Sinh” trong Sinh-Lão-Bệnh-Tử, bậc cao 156mm rất vừa chân), chúng ta đến với không gian tầng 2 của mẫu nhà 2 tầng mái Thái này.
-
Phòng sinh hoạt chung (8.0m2): Nơi cả gia đình có thể ngồi đọc sách, trò chuyện riêng tư sau bữa tối.
-
Phòng ngủ 02 (12.0m2) & Phòng ngủ 03 (9.5m2): Hai phòng ngủ dành cho con cháu, được bố trí cửa sổ lớn đón gió và ánh sáng tự nhiên.
-
Sân phơi (7.0m2): Khu vực giặt giũ và phơi đồ, đảm bảo kín đáo nhưng vẫn nhiều nắng gió.
-
WC 02 (4.3m2): Phục vụ nhu cầu sinh hoạt cho cả tầng.
Diện tích sàn tầng 2 là 65m2 với chiều cao tầng 3.6m, đảm bảo sự cân đối về hình khối kiến trúc.

4. Tại sao “Mẫu nhà 2 tầng mái Thái” lại là từ khóa hot năm 2026?
Tại sao giữa muôn vàn phong cách, mẫu nhà 2 tầng mái Thái vẫn giữ vững ngôi vương trong lòng người Việt?
-
Tính thẩm mỹ vượt thời gian: Không quá cầu kỳ như lâu đài, không quá đơn điệu như nhà mái bằng, mái Thái mang vẻ đẹp thanh thoát, cao ráo, rất hợp mắt người Á Đông.
-
Công năng thích nghi khí hậu: Việt Nam nóng ẩm, mưa nhiều. Mái Thái tản nhiệt chống nóng tốt vào mùa hè, thoát nước nhanh vào mùa mưa, bảo vệ ngôi nhà khỏi thấm dột, ẩm mốc.
-
Phong thủy vượng khí: Theo quan niệm phong thủy, mái chóp nhọn giúp tránh tích tụ hung khí, mang lại may mắn, lưu thông dòng khí tốt cho gia chủ.
-
Chi phí linh hoạt: Mẫu nhà 2 tầng mái Thái có thể xây dựng với nhiều mức ngân sách khác nhau, từ đơn giản tiết kiệm đến cầu kỳ sang trọng, phù hợp với túi tiền của đại đa số gia đình Việt.
5. Bảng báo giá thiết kế và thi công (Cập nhật 2026)
Rất nhiều khách hàng khi tham khảo mẫu nhà 2 tầng mái Thái đều băn khoăn về chi phí. Techhome xin đưa ra bảng khái toán sơ bộ dựa trên mức giá thị trường hiện tại và tiêu chuẩn kỹ thuật của công trình nhà cô Liên để bạn tham khảo.
(Lưu ý: Giá có thể thay đổi tùy thuộc vào thời điểm, vị trí địa lý và loại vật liệu gia chủ lựa chọn)
| Hạng mục | Đơn giá tham khảo (VNĐ) | Diện tích ước tính (m2) | Thành tiền ước tính (VNĐ) |
| 1. Chi phí Thiết kế | |||
| Thiết kế kiến trúc + Kết cấu + Điện nước | 108.000đ/m2 | ~140m2 | 15.000.000 – 16.000.000 |
| 2. Chi phí Thi công phần thô | |||
| Xây dựng phần thô + Nhân công hoàn thiện | 3.800.000 – 4.200.000đ/m2 | ~140m2 + 50% Mái | ~ 650.000.000 – 750.000.000 |
| 3. Chi phí Hoàn thiện (Chìa khóa trao tay) | |||
| Gói vật tư trung bình | 5.500.000 – 6.500.000đ/m2 | ~140m2 + Mái | ~ 950.000.000 – 1.100.000.000 |
| Gói vật tư khá | 6.500.000 – 7.500.000đ/m2 | ~140m2 + Mái | > 1.200.000.000 |
Đối với công trình mẫu nhà 2 tầng mái Thái của cô Liên, nhờ sự tính toán kỹ lưỡng về kết cấu và vật liệu của kỹ sư Techhome, chi phí thực tế đã được tối ưu hóa đáng kể, giảm thiểu các khoản phát sinh không đáng có.
Lưu ý: Đây chỉ là mức chi phí ước tính. Để nhận được báo giá chính xác và chi tiết nhất cho công trình của bạn, vui lòng liên hệ trực tiếp với chúng tôi. Hoặc để tìm hiểu rõ hơn về tiêu chuẩn vật liệu xây dựng và các yếu tố ảnh hưởng đến chi phí, bạn có thể tham khảo thêm tại các bài viết chuyên sâu về vật liệu xây dựng cao cấp trên Wikipedia.

6. Góc chuyên gia: Lời khuyên vàng khi xây nhà 2 tầng mái Thái
Là một người làm nghề lâu năm, đứng dưới góc độ chuyên gia, Techhome muốn chia sẻ với bạn những điều “gan ruột” khi bạn có ý định xây mẫu nhà 2 tầng mái Thái:
Thứ nhất, đừng ham “vẽ” quá nhiều mái phụ.
Nhiều người lầm tưởng càng nhiều mái giật cấp càng đẹp. Thực tế, quá nhiều mái con sẽ khiến ngôi nhà bị rối mắt, nặng nề và đặc biệt là chi phí thi công phần mái sẽ đội lên rất cao (vì hệ số mái Thái tính tiền rất đắt). Hãy nhìn ngôi nhà của cô Liên, hệ mái chính phụ rõ ràng, đơn giản mà vẫn sang.
Thứ hai, chú trọng chiều cao tầng. Đừng tiết kiệm chiều cao. Với mẫu nhà 2 tầng mái Thái, tầng 1 nên cao từ 3.9m – 4.2m. Điều này giúp ngôi nhà cân đối với hệ mái đồ sộ bên trên. Nếu làm thấp quá, ngôi nhà sẽ trông bị “lùn” và tù túng. Techhome đã thiết kế nhà cô Liên cao 3.9m là con số tỷ lệ vàng cho diện tích 75m2.
Thứ ba, lựa chọn đơn vị thiết kế có tâm. Một bản vẽ mẫu nhà 2 tầng mái Thái đẹp không chỉ ở cái mã bên ngoài. Nó phải là sự chính xác về kết cấu sắt thép, là sự bố trí điện nước khoa học để bạn dùng 10 năm, 20 năm không phải đục đẽo sửa chữa. Hồ sơ của Techhome luôn đầy đủ từ Kiến trúc, Kết cấu đến Điện nước, có đóng dấu pháp nhân và chịu trách nhiệm kỹ thuật.

7. Quy trình làm việc tại Techhome – Nơi niềm tin được khẳng định
Để ra đời một sản phẩm mẫu nhà 2 tầng mái Thái hoàn chỉnh như nhà cô Liên, Techhome tuân thủ quy trình 6 bước nghiêm ngặt:
-
Tiếp nhận thông tin: Lắng nghe mong muốn, diện tích đất, hướng đất của chủ nhà.
-
Khảo sát hiện trạng: KTS trực tiếp về nhà gia chủ để đo đạc.
-
Lên phương án mặt bằng: Bố trí công năng chuẩn phong thủy.
-
Dựng phối cảnh 3D: Giúp chủ nhà hình dung rõ nét ngôi nhà tương lai.
-
Triển khai hồ sơ kỹ thuật: Chi tiết sắt thép, điện nước, dự toán.
-
Giám sát tác giả: Hỗ trợ tư vấn kỹ thuật trong suốt quá trình thi công qua hotline 0364.04.2222.
8. Tại sao bạn nên chọn Techhome cho ngôi nhà mơ ước?
Giữa hàng trăm đơn vị thiết kế, Techhome tự tin là người bạn đồng hành tin cậy bởi:
-
Kinh nghiệm thực chiến: Chúng tôi đã thiết kế và thi công hàng trăm mẫu nhà 2 tầng mái Thái trên khắp miền Bắc.
-
Tư duy khách hàng là trung tâm: Chúng tôi không vẽ để khoe tay nghề, chúng tôi vẽ để bạn sống thoải mái nhất.
-
Hỗ trợ trọn đời: Dù công trình đã bàn giao, Techhome vẫn luôn sẵn sàng hỗ trợ tư vấn kỹ thuật khi bạn cần.

Lời kết
Ngôi nhà của cô Liên tại Hưng Yên là minh chứng rõ nét nhất cho việc: Không cần diện tích quá khủng, không cần chi phí tiền tỷ, bạn vẫn có thể sở hữu một mẫu nhà 2 tầng mái Thái sang trọng, tiện nghi nếu chọn đúng người đồng hành.
Hy vọng bài viết này đã mang đến cho bạn những thông tin hữu ích và nguồn cảm hứng để bắt tay vào xây dựng tổ ấm của mình. Nếu bạn đã trót yêu thích vẻ đẹp của mẫu nhà 2 tầng mái Thái hay bất kỳ phong cách nào khác, đừng ngần ngại liên hệ với Techhome.
Chúng tôi không chỉ bán bản vẽ, chúng tôi cùng bạn xây dựng ước mơ.
CÔNG TY CỔ PHẦN KIẾN TRÚC VÀ XÂY DỰNG TECHHOME
-
Địa chỉ: B1.1 LK18 Ô 3 – KĐT Thanh Hà – Cienco 5 – Thanh Oai- Hà Nội.
-
Hotline/Zalo: 0364.04.2222 / 0387.60.3333
-
Website: https://nhadeptechhome.vn/
Bạn đang có dự định xây nhà trong năm nay? Hãy để lại bình luận hoặc nhắn tin ngay cho Techhome để nhận được tư vấn miễn phí về mẫu nhà 2 tầng mái Thái phù hợp nhất với khổ đất nhà mình nhé!
