Siêu Phẩm Nhà Cấp 4 Mái Nhật 4 Phòng Ngủ Tại Hải Phòng – Cơ Ngơi 162m2 Của Gia Đình Anh Thắng

Có những ngôi nhà khi nhìn vào, ta không chỉ thấy gạch đá, xi măng, mà thấy cả một sự bình yên đến lạ. Đó chính là cảm giác mà mẫu nhà cấp 4 mái Nhật của gia đình anh Thắng tại Hải Phòng mang lại. Giữa xu hướng nhà cao tầng mọc lên như nấm, việc sở hữu một cơ ngơi 1 tầng trải rộng trên diện tích 162m2, công năng 4 phòng ngủ rộng rãi thực sự là niềm mơ ước của rất nhiều gia chủ yêu thích lối sống điền viên nhưng vẫn đầy đủ tiện nghi hiện đại. Hãy cùng Techhome “bóc tách” xem ngôi nhà này có gì đặc biệt mà lại khiến nhiều người mê mẩn đến vậy nhé.


1. Tại sao “nhà cấp 4 mái Nhật” lại trở thành “quốc dân” trong lòng người Việt?

Khoảng 5 năm trở lại đây, từ khóa nhà cấp 4 mái Nhật liên tục đứng đầu các bảng xếp hạng tìm kiếm về kiến trúc. Không phải ngẫu nhiên mà mẫu nhà này lại được ưu ái đến thế.

Khác với mái Thái cao vút, nhà cấp 4 mái Nhật (hay còn gọi là mái lùn) có độ dốc vừa phải, mở rộng ra các hướng khác nhau, tạo nên sự cân đối, hài hòa và cực kỳ vững chãi. Với khí hậu nóng ẩm mưa nhiều như ở Việt Nam, đặc biệt là khu vực miền Bắc và Hải Phòng, hệ mái này thoát nước tốt, chống nóng hiệu quả, giúp ngôi nhà luôn mát mẻ vào mùa hè và ấm cúng vào mùa đông.

Hơn nữa, vẻ đẹp của nhà cấp 4 mái Nhật nằm ở sự dung dị, không quá phô trương nhưng lại toát lên vẻ sang trọng, thanh lịch. Nó xóa bỏ định kiến về những căn nhà cấp 4 lụp xụp ngày xưa, thay vào đó là hình ảnh của những biệt thự vườn 1 tầng đẳng cấp.

Phối cảnh mặt tiền mẫu nhà cấp 4 mái Nhật hiện đại hệ cột vuông khỏe khoắn của anh Thắng.
Phối cảnh mặt tiền mẫu nhà cấp 4 mái Nhật hiện đại hệ cột vuông khỏe khoắn của anh Thắng.

2. Chiêm ngưỡng vẻ đẹp ngoại thất: Hiện đại, tinh tế và bề thế

Quay trở lại với công trình của anh Thắng, ngay từ cái nhìn đầu tiên qua bản phối cảnh 3D, chúng ta đã bị thu hút bởi sự phối màu cực kỳ thông minh của các kiến trúc sư Techhome.

  • Màu sắc chủ đạo: Ngôi nhà khoác lên mình “chiếc áo” màu trắng sứ tinh khôi, kết hợp với các mảng tường xanh ghi ở phần cổ trần và chân tường. Đây là gam màu không bao giờ lỗi mốt, tạo cảm giác sạch sẽ và tươi mới.

  • Hệ mái Nhật bề thế: Hệ mái màu xanh than (Blue) trùm lên toàn bộ khối nhà chính và cả phần cổng, tạo nên sự đồng bộ tuyệt đối. Độ dốc được tính toán kỹ lưỡng để vừa đảm bảo thẩm mỹ, vừa thoát nước nhanh.

  • Hình khối kiến trúc: Ngôi nhà được thiết kế theo hình chữ nhật vuông vắn, kích thước phủ bì khoảng 10m x 15.3m (tính cả sảnh). Hệ cột vuông to khỏe đỡ lấy phần mái sảnh chính, chân cột ốp đá rối màu ghi xám tạo sự vững chãi, khỏe khoắn.

  • Cửa gỗ truyền thống: Điểm nhấn “đắt giá” ở mặt tiền chính là bộ cửa đại hội bằng gỗ tự nhiên pano đặc, kết hợp với các ô kính lấy sáng. Trong khi đó, hệ thống cửa sổ lại sử dụng nhôm kính Xingfa hiện đại, giúp lấy tối đa ánh sáng tự nhiên vào trong nhà.

Nhìn tổng thể, mẫu nhà cấp 4 mái Nhật này giống như một khu nghỉ dưỡng mini ngay giữa lòng Đồ Sơn, Hải Phòng.

nhà cấp 4 mái Nhật

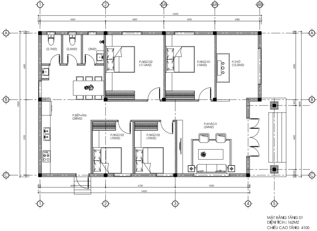
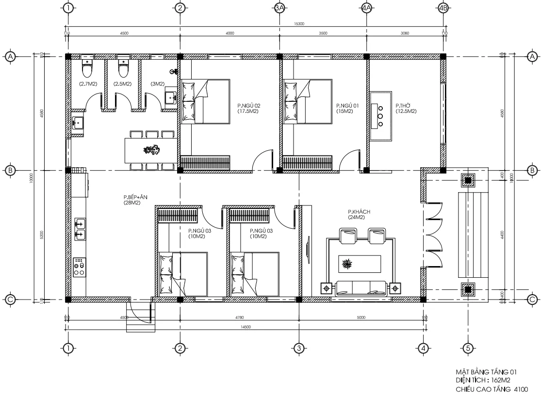
3. Mặt bằng công năng: Bài toán chia 162m2 cho 4 phòng ngủ

Điều khiến mẫu nhà cấp 4 mái Nhật của anh Thắng trở nên đặc biệt không chỉ là vẻ ngoài, mà là cách bố trí công năng bên trong cực kỳ khoa học trên diện tích sàn 162m2.

Với yêu cầu của anh Thắng là nhà đông người, cần không gian riêng tư nhưng vẫn phải có sự kết nối, Techhome đã đưa ra phương án mặt bằng như sau:

  • Phòng khách (24m2): Bước qua sảnh chính là phòng khách rộng rãi. Đây là “bộ mặt” của ngôi nhà, nơi anh Thắng tiếp đón bạn bè. Không gian này được đặt ở trung tâm, kết nối trực tiếp với sảnh đệm và khu vực thờ cúng.

  • Phòng thờ (12.5m2): Được đặt trang trọng ngay cạnh phòng khách, hướng ra mặt tiền. Việc bố trí phòng thờ ở tầng 1 trong các mẫu nhà cấp 4 mái Nhật giúp việc hương khói của người lớn tuổi trở nên thuận tiện và ấm cúng hơn rất nhiều so với nhà tầng.

  • Bếp + Ăn (28m2): Đây có lẽ là không gian “sướng” nhất của các bà nội trợ. Với diện tích lên tới 28m2, khu bếp được bố trí tách biệt về một phía, có cửa phụ đi ra sảnh phụ. Điều này giúp mùi thức ăn không bay ngược lên phòng khách, đồng thời việc đi chợ về có thể đi lối sảnh phụ rất sạch sẽ.

  • 04 Phòng ngủ riêng biệt: Đây là điểm mạnh nhất của thiết kế này. Hiếm có mẫu nhà 1 tầng nào bố trí được 4 phòng ngủ mà vẫn thoáng.

    • Phòng ngủ 01 (15m2) và Phòng ngủ 02 (17.5m2): Đây là hai phòng ngủ lớn, diện tích rất rộng, phù hợp cho vợ chồng anh Thắng và ông bà. Không gian vuông vắn, dễ kê giường tủ.

    • Phòng ngủ 03 và 04 (10m2/phòng): Hai phòng ngủ nhỏ hơn dành cho các con. Tuy diện tích khiêm tốn hơn nhưng nhờ bố trí cửa sổ hợp lý nên vẫn rất thoáng đãng.

  • Khu vệ sinh tập trung: Techhome đã khéo léo gom 3 phòng vệ sinh (diện tích 2.7m2, 2.5m2, 3m2) về khu vực cuối nhà, gần bếp. Cách bố trí này cực kỳ thông minh về mặt kỹ thuật nước (hộp kỹ thuật đi chung), giúp tiết kiệm chi phí đường ống và dễ dàng sửa chữa sau này, đồng thời giữ vệ sinh chung cho cả ngôi nhà.

Với chiều cao tầng lên tới 4.1m, bước vào ngôi nhà cấp 4 mái Nhật này, bạn sẽ cảm thấy không gian cao ráo, thoáng mát hơn hẳn những căn chung cư bí bách.

Bản vẽ bố trí công năng tầng 1 mẫu nhà cấp 4 mái Nhật diện tích 162m2 gồm 4 phòng ngủ.
Bản vẽ bố trí công năng tầng 1 mẫu nhà cấp 4 mái Nhật diện tích 162m2 gồm 4 phòng ngủ.

4. Tại sao anh Thắng chọn Techhome để gửi gắm “đứa con tinh thần”?

Khi tìm kiếm đơn vị thiết kế nhà cấp 4 mái Nhật tại Hải Phòng, anh Thắng đã tham khảo rất nhiều nơi. Tuy nhiên, anh chọn Techhome bởi sự minh bạch và chi tiết trong hồ sơ thiết kế.

Nhìn vào bản vẽ kỹ thuật thi công , bạn có thể thấy từng chi tiết nhỏ từ kích thước cửa, vị trí ổ điện, đến độ dốc mái đều được các kỹ sư và KTS tính toán tỉ mỉ. Hồ sơ thiết kế không chỉ là những tờ giấy, nó là “tấm bản đồ” giúp gia chủ tránh được những phát sinh chi phí không đáng có trong quá trình xây dựng.

Techhome không chỉ vẽ nhà, chúng tôi vẽ nên tổ ấm. Chúng tôi hiểu rằng, với nhiều người, ngôi nhà là tích góp cả đời. Vì vậy, mỗi bản vẽ nhà cấp 4 mái Nhật được xuất đi đều chứa đựng tâm huyết của cả một đội ngũ.

nhà cấp 4 mái Nhật

5. Báo giá thiết kế và thi công nhà cấp 4 mái Nhật (Cập nhật 2026)

Đây chắc chắn là phần mà các bạn đang mong chờ nhất. “Nhà đẹp thế này thì hết bao nhiêu tiền?”. Techhome xin đưa ra một bảng dự toán chi phí tham khảo để bạn dễ hình dung. Lưu ý, con số này có thể thay đổi tùy thuộc vào thời điểm, giá vật liệu tại địa phương và mức độ đầu tư của gia chủ.

a. Chi phí thiết kế:

Hiện tại, đơn giá thiết kế kiến trúc cho dòng nhà cấp 4 mái Nhật108.000đ/m2.

Với diện tích 162m2 như nhà anh Thắng, chi phí thiết kế trọn bộ hồ sơ (Kiến trúc, Kết cấu, Điện nước, 3D) sẽ khoảng: 18 triệu đồng.

Đây là khoản đầu tư “nhỏ nhưng có võ”, giúp bạn tiết kiệm hàng trăm triệu tiền vật tư lãng phí do thi công sai.

b. Chi phí thi công trọn gói (Chìa khóa trao tay):

Nếu bạn chọn gói “thi công trọn gói mức khá”, đơn giá hiện nay khoảng 6.500.000đ – 7.500.000đ/m2 xây dựng.

  • Tổng chi phí xây dựng nhà anh Thắng (162m2) ước tính: Khoảng 1,1 – 1,2 tỷ đồng.

c. Chi phí nhân công (Gia chủ tự mua vật liệu):

Đơn giá nhân công xây dựng nhà cấp 4 mái Nhật tại các vùng như Hải Phòng, Thái Bình, Nam Định hiện nay khoảng 1.100.000đ – 1.400.000đ/m2.

Bảng vật tư dự kiến cho mẫu nhà này:

Hạng mục Chủng loại vật tư đề xuất Ghi chú
Gạch xây Gạch chỉ đặc A1 hoặc Gạch lỗ Tuynel Đảm bảo cách âm, cách nhiệt
Xi măng Hoàng Thạch / Bỉm Sơn Thương hiệu uy tín
Sắt thép Hòa Phát / Việt Ý Theo thiết kế kết cấu
Mái ngói Ngói Romantic / Fuji Màu xanh than, độ bền màu cao
Sơn tường Dulux / Jotun Chống thấm, dễ lau chùi
Cửa Nhôm Xingfa nhập khẩu / Gỗ Lim Nam Phi Tùy chọn mặt tiền

Lưu ý: Đây chỉ là mức chi phí ước tính. Để nhận được báo giá chính xác và chi tiết nhất cho công trình của bạn, vui lòng liên hệ trực tiếp với chúng tôi. Hoặc để tìm hiểu rõ hơn về tiêu chuẩn vật liệu xây dựng và các yếu tố ảnh hưởng đến chi phí, bạn có thể tham khảo thêm tại các bài viết chuyên sâu về vật liệu xây dựng cao cấp trên Wikipedia.

Tổng thể mẫu nhà cấp 4 mái Nhật lợp ngói màu xanh than sang trọng nhìn từ trên cao.
Tổng thể mẫu nhà cấp 4 mái Nhật lợp ngói màu xanh than sang trọng nhìn từ trên cao.

6. Kinh nghiệm xương máu khi xây nhà cấp 4 mái Nhật

Là người làm nghề, Techhome muốn chia sẻ thêm với bạn vài lưu ý “sống còn” khi xây mẫu nhà này:

  1. Đừng tiếc tiền làm móng: Với diện tích sàn lớn (trên 100m2), tải trọng mái dồn xuống là rất lớn. Cần khảo sát địa chất kỹ. Nếu đất yếu (đất ao, đất ruộng), bắt buộc phải ép cọc bê tông. Đừng làm móng băng sơ sài kẻo sau này nứt tường thì “vô phương cứu chữa”.

  2. Lưu ý độ dốc mái Nhật: Mái Nhật có độ dốc thấp hơn mái Thái (thường dưới 40 độ). Nếu thợ tay nghề non, lợp ngói không chuẩn rất dễ bị dột khi mưa lớn kèm gió tạt. Hãy chọn đội thợ có kinh nghiệm đã từng thi công nhà cấp 4 mái Nhật.

  3. Bố trí thoát nước sàn mái: Với diện tích mái lớn như nhà anh Thắng, lượng nước mưa thu về là khổng lồ. Cần bố trí ống thoát nước đường kính lớn (D90 hoặc D110) và rải đều các góc để tránh tình trạng tràn máng xối (sê-nô).

  4. Phong thủy: Cửa chính và cửa hậu (hoặc cửa sổ lớn đối diện) không nên thông nhau một đường thẳng (xuyên tâm sát), tiền bạc vào cửa trước ra cửa sau. Trong thiết kế của Techhome, cửa chính lệch với cửa bếp, rất chuẩn phong thủy.

Nhà cấp 4 mái Nhật

7. Những câu hỏi thường gặp về nhà cấp 4 mái Nhật 4 phòng ngủ

Hỏi: Đất chiều ngang bao nhiêu thì xây được mẫu này?

Đáp: Mẫu nhà anh Thắng có chiều ngang khoảng 10m. Tuy nhiên, nếu đất bạn hẹp hơn (dưới 10m), Kiến trúc sư hoàn toàn có thể co kéo, đẩy khối phòng ngủ ra sau để phù hợp. Nhà cấp 4 mái Nhật rất linh hoạt về hình khối.

Hỏi: Xây nhà này mất bao lâu?

Đáp: Thông thường, một căn nhà cấp 4 mái Nhật diện tích 160m2 sẽ mất khoảng 3.5 – 4.5 tháng để hoàn thiện từ móng đến mái, tùy vào điều kiện thời tiết.

Hỏi: Nhà 1 tầng có sợ nóng không?

Đáp: Hoàn toàn không. Ngược lại còn rất mát. Bản thân hệ mái Nhật đã có lớp đệm không khí cách nhiệt. Cộng với chiều cao tầng 4.1m như thiết kế của Techhome, ngôi nhà luôn đối lưu không khí cực tốt.

Nhà cấp 4 mái Nhật


Lời kết

Ngôi nhà cấp 4 mái Nhật của anh Thắng tại Hải Phòng không chỉ là một công trình xây dựng, đó là tổ ấm, là nơi “bão dừng sau cánh cửa”. Với thiết kế 4 phòng ngủ tiện nghi, không gian mở hài hòa với thiên nhiên, đây thực sự là mẫu nhà lý tưởng cho các gia đình đa thế hệ tại Việt Nam hiện nay.

Nếu bạn đang sở hữu một mảnh đất rộng và ấp ủ giấc mơ về một ngôi nhà cấp 4 mái Nhật vừa đẹp, vừa sang, lại tối ưu chi phí, đừng ngần ngại liên hệ với Techhome. Chúng tôi không chỉ vẽ thuê, chúng tôi cùng bạn kiến tạo không gian sống.

CÔNG TY CỔ PHẦN KIẾN TRÚC VÀ XÂY DỰNG TECHHOME

  • Địa chỉ: B1.1 LK18 Ô 3 – KĐT Thanh Hà – Cienco 5 – Thanh Oai- Hà Nội.

  • Hotline: 0364.04.2222 / 0387.60.3333

  • Website: nhadeptechhome.vn

Hãy để lại bình luận bên dưới hoặc nhắn tin cho chúng tôi để nhận được bộ hồ sơ mẫu tham khảo miễn phí nhé! Cảm ơn bạn đã đọc bài viết của Techhome.

Để lại một bình luận

Email của bạn sẽ không được hiển thị công khai. Các trường bắt buộc được đánh dấu *

    Vui lòng nhấn nút YÊU CẦU TƯ VẤN và đợi 1 - 2 giây đến khi thấy thông báo thành công

    YÊU CẦU TƯ VẤN