Bạn biết không, trong giới kiến trúc chúng mình thường rỉ tai nhau rằng: “Xây một ngôi nhà không khó, nhưng để biến những khối bê tông thành một tổ ấm biết thở thì lại là cả một nghệ thuật”. Và dự án mẫu nhà 2 tầng hiện đại của gia đình anh Hùng tại Bắc Giang chính là minh chứng rõ nét nhất cho điều đó.
Không cầu kỳ, hoa mỹ như những lâu đài cổ điển, công trình này chinh phục người đối diện bởi sự tinh tế, gãy gọn và một phong cách sống cực kỳ “gu”. Hãy cùng Techhome khám phá xem tại sao bản thiết kế này lại đang làm mưa làm gió tại thị trường xây dựng phía Bắc nhé!
1. Tổng quan dự án: Khi sự tối giản lên ngôi
Công trình được thực hiện bởi đội ngũ KTS của Công ty Cổ phần Kiến trúc và Xây dựng Techhome. Chủ đầu tư là anh Hùng, tọa lạc tại mảnh đất Bắc Giang đầy nắng và gió. Ngay từ những buổi trao đổi đầu tiên, anh Hùng đã bày tỏ mong muốn về một mẫu nhà 2 tầng hiện đại có diện tích sử dụng vừa phải nhưng phải tối ưu hóa được công năng và đặc biệt là phải “sáng”.
Dựa trên yêu cầu đó, Techhome đã đưa ra phương án thiết kế với thông số kỹ thuật ấn tượng:
-
Diện tích thiết kế tầng 1: 99m2.
-
Diện tích thiết kế tầng 2: 111m2.
-
Phong cách: Hiện đại, mái bằng, tối ưu không gian mở.

2. Kiến trúc ngoại thất: Sự kết hợp hoàn hảo của vật liệu hiện đại
Nhìn vào phối cảnh 3D, điểm nhấn đầu tiên của mẫu nhà 2 tầng hiện đại này chính là sự phối hợp màu sắc cực kỳ thông minh. Tone màu chủ đạo là xám trung tính kết hợp với trắng tinh khôi, tạo nên một diện mạo thanh lịch nhưng không kém phần mạnh mẽ.
Hệ thống đá ốp và gạch trang trí
Toàn bộ mặt tiền tầng 1 được ốp đá vân mây xám lớn, tạo cảm giác kiên cố và sang trọng ngay từ cái nhìn đầu tiên. Việc sử dụng đá ốp không chỉ giúp công trình bền bỉ với thời gian mà còn giúp gia chủ dễ dàng vệ sinh, giữ cho ngôi nhà luôn như mới.
Ban công và khoảng thở
Lên đến tầng 2, mẫu nhà 2 tầng hiện đại này thực sự gây ấn tượng với hệ thống ban công rộng lớn và lan can kính cường lực cao cấp. Việc sử dụng kính giúp xóa nhòa ranh giới giữa bên trong và bên ngoài, đón trọn ánh sáng tự nhiên vào từng ngóc ngách của căn phòng. Đặc biệt, phần trần ban công được ốp gỗ nhựa ngoài trời cùng hệ đèn led âm trần, tạo nên vẻ ấm cúng và lung linh mỗi khi đêm về.

3. Giải mã mặt bằng công năng: Đỉnh cao của sự bài trí
Một ngôi nhà đẹp trước hết phải là một ngôi nhà tiện dụng. Với mẫu nhà 2 tầng hiện đại này, các KTS Techhome đã tính toán tỉ mỉ từng mét vuông để đảm bảo sự thuận tiện cho sinh hoạt của gia đình anh Hùng.
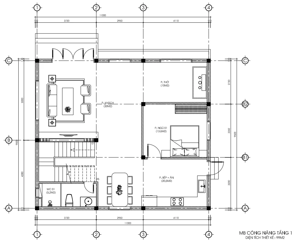
Tầng 1: Không gian kết nối (99m2)
Bước vào cửa chính là phòng khách rộng 30m2. Đây là “trái tim” của ngôi nhà, nơi đón tiếp bạn bè và cũng là không gian sinh hoạt chung ấm cúng.
-
Phòng thờ (10m2): Được đặt ngay tại tầng 1, một sự sắp xếp truyền thống nhưng cực kỳ trang trọng.
-
Phòng ngủ 01 (13.5m2): Dành cho người lớn tuổi , hạn chế việc phải leo cầu thang.
-
Phòng bếp + ăn (20.5m2): Một không gian bếp hiện đại, thông thoáng giúp bữa cơm gia đình thêm tròn vị.
-
WC 01 (5.2m2): Được bố trí kín đáo dưới gầm cầu thang, tối ưu diện tích.
Điểm đặc biệt ở đây là chiều cao tầng 1 lên tới 3.9m với hệ 25 bậc cầu thang (mỗi bậc cao 156mm). Điều này giúp không gian tầng 1 cực kỳ thoáng đãng và bề thế.

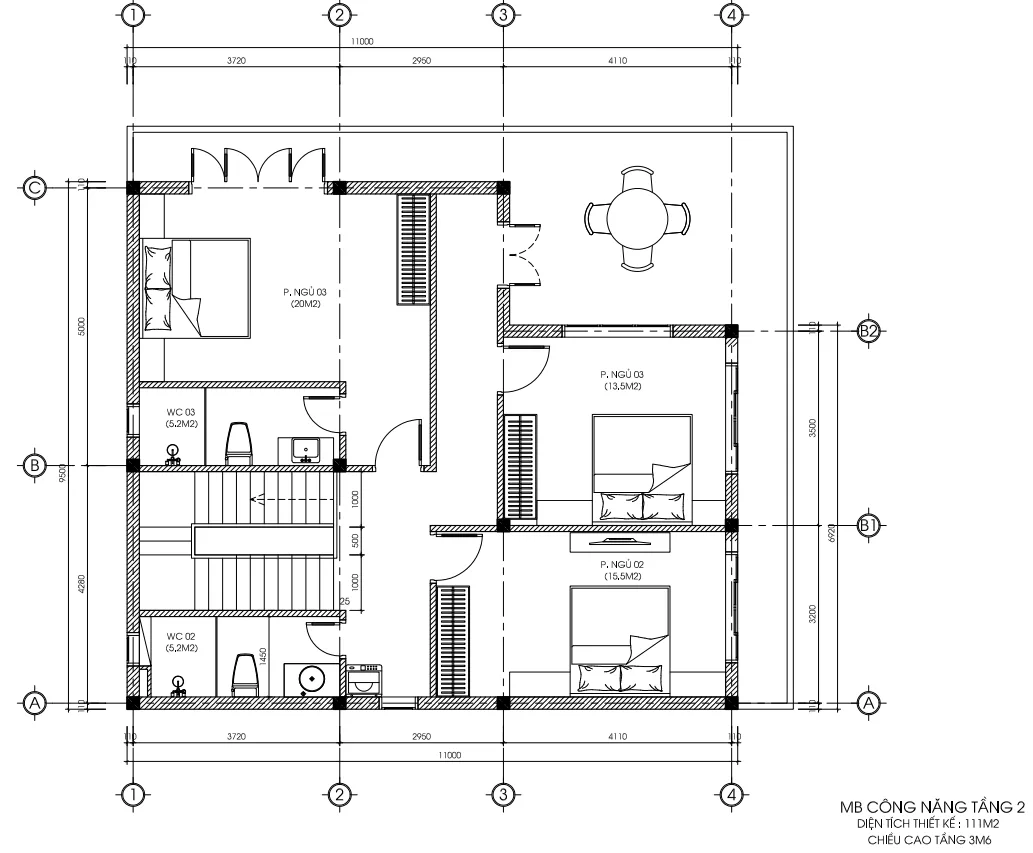
Tầng 2: Chốn riêng tư lý tưởng (111m2)
Nếu tầng 1 là nơi kết nối thì tầng 2 của mẫu nhà 2 tầng hiện đại này là không gian của sự nghỉ ngơi. Với diện tích lớn hơn tầng 1 nhờ phần ban công đua ra, tầng 2 bao gồm:
-
Phòng ngủ Master (Phòng ngủ 03 – 20m2): Không gian cực rộng với tầm nhìn ban công ra phía trước.
-
Phòng ngủ 02 (15.5m2) và Phòng ngủ 03 (13.5m2): Đảm bảo không gian riêng tư cho các thành viên.
-
Hệ thống WC (5.2m2 ): Được bố trí tiện lợi, trang thiết bị hiện đại.
Chiều cao tầng 2 là 3.6m, thấp hơn tầng 1 một chút để tạo sự ấm cúng cho các phòng ngủ nhưng vẫn đảm bảo sự thông thoáng cần thiết của một mẫu nhà 2 tầng hiện đại.

4. Tại sao mẫu nhà 2 tầng hiện đại mái bằng lại được ưa chuộng?
Nhiều gia chủ thường phân vân giữa mái Thái và mái bằng. Tuy nhiên, với xu hướng kiến trúc 2026, mẫu nhà 2 tầng hiện đại mái bằng như của anh Hùng đang chiếm ưu thế tuyệt đối vì 3 lý do:
-
Tiết kiệm chi phí: So với mái Thái hay mái Nhật cầu kỳ, mái bằng giúp giảm bớt chi phí nhân công và vật liệu phần mái.
-
Tối ưu diện tích: Bạn hoàn toàn có thể tận dụng phần sân thượng để làm vườn rau sạch, không gian chill buổi tối hoặc lắp đặt hệ thống năng lượng mặt trời.
-
Vẻ đẹp bền vững: Đường nét vuông vức của mái bằng mang lại vẻ khỏe khoắn, hiện đại và không bao giờ lỗi mốt. Đây là tiêu chí hàng đầu khi tìm kiếm một mẫu nhà 2 tầng hiện đại.

5. Báo giá thi công mẫu nhà 2 tầng hiện đại (Tham khảo 2026)
Làm nhà thì ai cũng quan tâm đến “túi tiền”. Techhome luôn minh bạch trong từng con số để gia chủ dễ dàng chuẩn bị tài chính. Với một mẫu nhà 2 tầng hiện đại có tổng diện tích sàn khoảng 210m2 như nhà anh Hùng, chi phí dự kiến sẽ như sau:
| Hạng mục | Đơn giá (VNĐ/m2) | Thành tiền (Ước tính) |
| Gói thiết kế kiến trúc & kết cấu | 108.000 | 22.680.000 |
| Thi công phần thô & nhân công | 3.800.000 – 4.200.000 | 800.000.000 – 900.000.000 |
| Thi công hoàn thiện (Gói khá) | 6.500.000 – 7.500.000 | 1.400.000.000 – 1.600.000.000 |
Lưu ý: Đây chỉ là mức chi phí ước tính. Để nhận được báo giá chính xác và chi tiết nhất cho công trình của bạn, vui lòng liên hệ trực tiếp với chúng tôi. Hoặc để tìm hiểu rõ hơn về tiêu chuẩn vật liệu xây dựng và các yếu tố ảnh hưởng đến chi phí, bạn có thể tham khảo thêm tại các bài viết chuyên sâu về vật liệu xây dựng cao cấp trên Wikipedia.

6. Techhome – Đơn vị thiết kế mẫu nhà 2 tầng hiện đại hàng đầu
Giữa hàng ngàn công ty kiến trúc, tại sao anh Hùng lại tin tưởng chọn Techhome? Câu trả lời nằm ở sự chân thật. Chúng mình không vẽ ra những thứ phi thực tế. Mỗi bản vẽ mẫu nhà 2 tầng hiện đại đều được kiểm duyệt kỹ lưỡng bởi các KTS dày dặn kinh nghiệm.
Chúng tôi cam kết:
-
Hồ sơ thiết kế chi tiết, dễ hiểu, thợ nhìn là xây được.
-
Hỗ trợ tư vấn kỹ thuật trong suốt quá trình thi công.
-
Tối ưu hóa chi phí, không phát sinh linh tinh.
Việc sở hữu một mẫu nhà 2 tầng hiện đại không chỉ là sở hữu một tài sản, mà là đầu tư cho hạnh phúc của cả gia đình. Đừng để những sai lầm trong thiết kế làm hỏng giấc mơ của bạn.

7. Góc nhìn chuyên gia: Những lưu ý “sống còn” khi xây nhà 2 tầng
Với kinh nghiệm hàng trăm công trình, Techhome muốn chia sẻ thêm với bạn một vài bí quyết để có một mẫu nhà 2 tầng hiện đại hoàn hảo:
-
Hướng nắng và gió: Đừng chỉ nhìn vào phối cảnh đẹp. Hãy chú ý đến hướng nhà để bố trí cửa sổ sao cho mùa hè mát, mùa đông ấm. Ở nhà anh Hùng, hệ cửa nhôm kính lớn được tính toán rất kỹ để đối lưu không khí.
-
Phong thủy khoa học: Đặt phòng thờ ở đâu, bếp hướng nào… đều cần sự hài hòa. Như bạn thấy, mẫu nhà 2 tầng hiện đại này đặt phòng thờ tại tầng 1 để thuận tiện cho việc cúng bái nhưng vẫn giữ được sự tôn nghiêm.
-
Lựa chọn nhà thầu: “Tiền nào của nấy”. Hãy chọn đơn vị có tâm và có tầm để bản vẽ trên giấy trở thành hiện thực lung linh nhất.
Kết luận lại, mẫu nhà 2 tầng hiện đại của anh Hùng tại Bắc Giang là một hình mẫu lý tưởng cho những gia đình trẻ yêu thích sự năng động và tối giản. Nếu bạn đang ấp ủ ý tưởng về một tổ ấm tương tự, hãy để Techhome biến nó thành hiện thực.
CÔNG TY CỔ PHẦN KIẾN TRÚC VÀ XÂY DỰNG TECHHOME
🏠 Website: https://nhadeptechhome.vn/
☎️ Hotline: 036.273.2222
📍 Địa chỉ: B1.1 LK18 Ô 3 – KĐT Thanh Hà – Cienco 5 – Thanh Oai- Hà Nội.
