Trong bối cảnh đất chật người đông tại các khu vực đang phát triển nhanh như Gia Lâm, Hà Nội, việc sở hữu một mảnh đất diện tích khoảng 44m2 là khá phổ biến. Tuy nhiên, làm sao để xây dựng một không gian sống vừa sang trọng, vừa đầy đủ tiện nghi cho nhiều thế hệ lại là một bài toán khó. Hôm nay, Kiến trúc Techhome sẽ giới thiệu đến bạn mẫu nhà ống 5 tầng đẹp của gia đình chị Hương – một công trình tiêu biểu cho sự kết hợp giữa thẩm mỹ hiện đại và công năng tối ưu.
1. Tổng quan dự án: Khi diện tích hẹp không còn là rào cản
Dự án nhà ở gia đình chị Hương được xây dựng trên khu đất có kích thước mặt tiền khoảng 4m và chiều sâu gần 11m. Với đặc thù nhà phố một mặt tiền, thách thức lớn nhất của đội ngũ kiến trúc sư Techhome là làm sao để ngôi nhà luôn thoáng đãng, không bị cảm giác “hộp” và phải tích hợp được thang máy để thuận tiện di chuyển giữa các tầng.
Thông tin chung về công trình:
-
Chủ đầu tư: Chị Hương.
-
Địa điểm: Gia Lâm – Hà Nội.
-
Đơn vị thiết kế: Công ty Cổ phần Kiến trúc và Xây dựng Techhome.
-
Quy mô: 5 tầng + 1 tum.
-
Diện tích sàn: Khoảng 44m2 – 46m2/tầng.
Đây là một mẫu nhà ống 5 tầng đẹp điển hình, nơi mà mỗi m2 đất đều được tính toán kỹ lưỡng để phục vụ nhu cầu sống thực tế của gia chủ.

2. Phân tích kiến trúc ngoại thất: Hiện đại và thanh lịch
Ngay từ cái nhìn đầu tiên, ngôi nhà gây ấn tượng bởi phong cách hiện đại với các đường nét hình khối vuông vức, khỏe khoắn.
-
Tông màu: Techhome sử dụng gam màu trắng chủ đạo kết hợp với các mảng ốp gỗ trang trí và gạch inax cao cấp. Sự phối hợp này không chỉ giúp ngôi nhà trông cao ráo hơn mà còn tạo cảm giác ấm cúng.
-
Hệ thống cửa: Toàn bộ hệ cửa mặt tiền sử dụng nhôm kính xingfa cao cấp, giúp đón tối đa ánh sáng tự nhiên vào bên trong.
-
Mảng xanh: Ở ban công các tầng và tầng tum, chúng tôi khéo léo bố trí các bồn hoa và cây leo, giúp giảm bớt sự thô cứng của bê tông và điều hòa không khí cho ngôi nhà.
Nếu bạn đang tìm kiếm một mẫu nhà ống 5 tầng đẹp có vẻ ngoài không bị lỗi mốt theo thời gian, thì thiết kế của chị Hương chính là một gợi ý tuyệt vời.

3. Giải pháp mặt bằng công năng: “May đo” cho từng nhu cầu
Điểm làm nên giá trị của một thiết kế kiến trúc chính là sự phân bổ không gian bên trong. Hãy cùng “dạo” một vòng qua các tầng của ngôi nhà này.
Tầng 1: Khu vực để xe và giao thông trục đứng
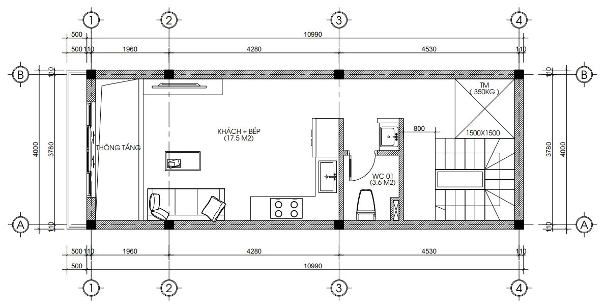
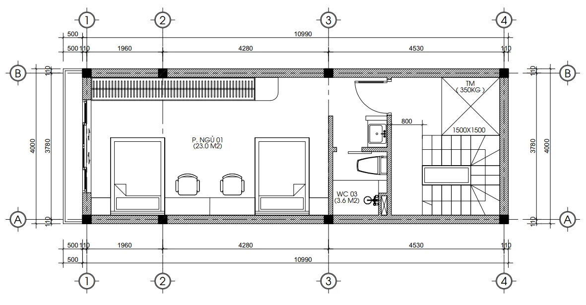
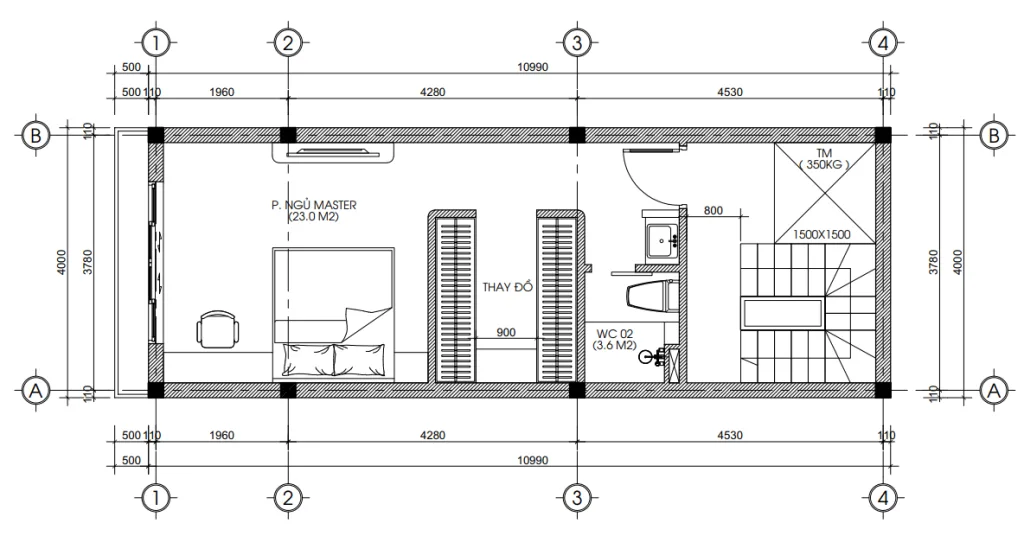
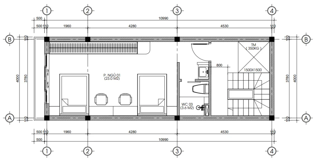
Mặt bằng tầng 1 được dành trọn vẹn 32m2 cho khu vực Garage. Với diện tích này, gia đình có thể thoải mái để 1 xe ô tô và nhiều xe máy. Điểm đặc biệt là sự xuất hiện của thang máy (TM) tải trọng 350kg ngay cạnh cầu thang bộ. Đây là yếu tố cực kỳ quan trọng trong các mẫu nhà ống 5 tầng đẹp hiện nay, giúp việc di chuyển của người già và trẻ nhỏ trở nên an toàn, nhẹ nhàng hơn.

Tầng 2: Không gian sinh hoạt chung ấm cúng
Lên đến tầng 2, bạn sẽ bắt gặp không gian phòng khách kết hợp bếp ăn rộng 17.5m2. Dù diện tích không quá lớn nhưng nhờ thiết kế “thông tầng” phía trước, căn phòng luôn ngập tràn ánh sáng và đối lưu không khí cực tốt. Một nhà vệ sinh nhỏ (WC 01) rộng 3.6m2 được bố trí tinh tế phía sau để phục vụ sinh hoạt.

Tầng 3 & 4: Những khoảng riêng tư lý tưởng
-
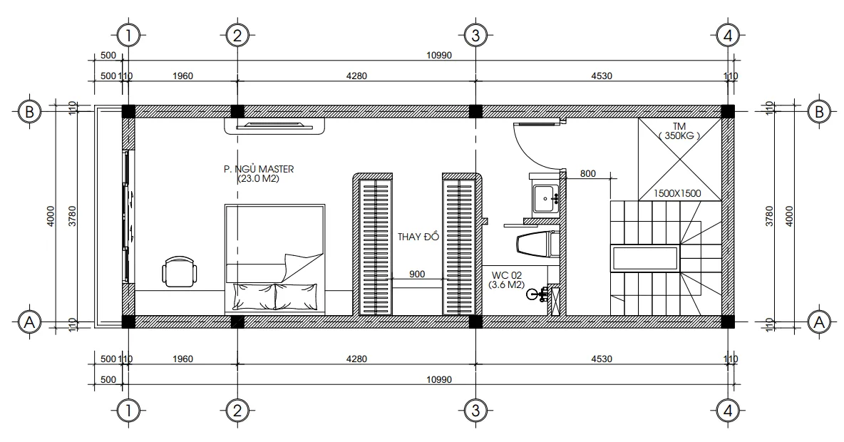
Tầng 3: Được thiết kế dành riêng cho phòng ngủ Master rộng 23m2. Điểm cộng lớn là khu vực thay đồ riêng biệt và phòng vệ sinh khép kín bên trong. Đây thực sự là không gian nghỉ ngơi tiêu chuẩn “khách sạn” ngay tại nhà.
-
Tầng 4: Bố trí thêm một phòng ngủ lớn (Phòng ngủ 01) cũng với diện tích 23m2 và WC riêng. Đây là không gian hoàn hảo cho con cái hoặc ông bà.
Việc ưu tiên diện tích lớn cho phòng ngủ trong mẫu nhà ống 5 tầng đẹp này cho thấy gia chủ rất coi trọng chất lượng giấc ngủ và sự riêng tư.
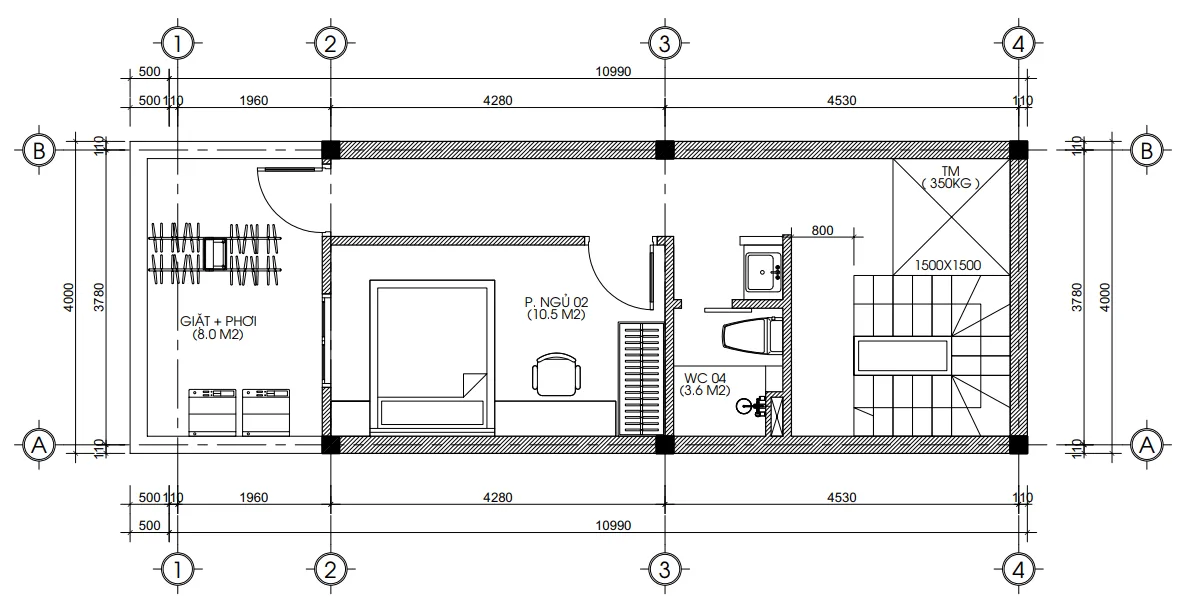
Tầng 5: Sự linh hoạt trong sử dụng
Tầng 5 bao gồm một phòng ngủ nhỏ hơn (10.5m2) và khu vực giặt phơi (8m2). Cách bố trí này rất thông minh vì giúp việc giặt giũ gần với sân thượng, tận dụng được ánh nắng tự nhiên để quần áo luôn thơm tho.

Tầng Tum: Nơi giao thoa tâm linh và thư giãn
Tầng cao nhất của ngôi nhà được dành cho phòng thờ (24.5m2) và sân chơi phía trước. Phòng thờ ở vị trí cao nhất thể hiện sự tôn nghiêm, trong khi sân chơi là nơi gia đình có thể trồng cây, uống trà và ngắm nhìn toàn cảnh khu vực Gia Lâm từ trên cao.

4. Tại sao bạn nên chọn mẫu nhà ống 5 tầng đẹp có thang máy?
Qua công trình của chị Hương, có thể thấy 3 ưu điểm vượt trội:
-
Tăng giá trị bất động sản: Một ngôi nhà có thiết kế bài bản và tích hợp thang máy luôn có giá trị chuyển nhượng cao hơn hẳn.
-
Tối ưu diện tích: Thay vì xây rộng, chúng ta xây cao. Việc xếp chồng các công năng theo chiều dọc là lựa chọn duy nhất cho nhà phố hẹp.
-
Thoáng đãng: Nhờ hệ thống thông tầng và các ô cửa kính lớn, mẫu nhà ống 5 tầng đẹp này không hề bí bách như người ta thường nghĩ về nhà ống.
5. Báo giá thiết kế và thi công (Tham khảo năm 2026)
Để quý khách hàng dễ dàng hình dung ngân sách, Techhome xin gửi bảng báo giá sơ bộ cho các dòng mẫu nhà ống 5 tầng đẹp tương tự:
| Hạng mục | Đơn giá (VNĐ/m2) | Ghi chú |
| Thiết kế kiến trúc | 108.000 |
Bao gồm 3D, hồ sơ kỹ thuật, điện nước |
| Thi công phần thô | 3.800.000 – 4.200.000 | Vật tư loại khá, nhân công trọn gói |
| Thi công trọn gói | 6.500.000 – 8.500.000 | Chìa khóa trao tay (Tùy mức độ nội thất) |
| Lắp đặt thang máy | 300.000.000 – 500.000.000 |
Tùy vào thương hiệu và tải trọng |
Lưu ý: Đây chỉ là mức chi phí ước tính. Để nhận được báo giá chính xác và chi tiết nhất cho công trình của bạn, vui lòng liên hệ trực tiếp với chúng tôi. Hoặc để tìm hiểu rõ hơn về tiêu chuẩn vật liệu xây dựng và các yếu tố ảnh hưởng đến chi phí, bạn có thể tham khảo thêm tại các bài viết chuyên sâu về vật liệu xây dựng cao cấp trên Wikipedia.

6. Góc nhìn chuyên gia: Những lưu ý “sống còn” khi xây nhà ống 5 tầng
Dưới góc độ là kiến trúc sư trực tiếp triển khai nhiều dự án, tôi có vài lời khuyên chân thành cho bạn khi tham khảo các mẫu nhà ống 5 tầng đẹp:
-
Đừng tiết kiệm diện tích cho giếng trời: Nhiều gia đình muốn tận dụng tối đa đất nên xây kín mít. Đó là sai lầm! Một khoảng thông tầng như nhà chị Hương sẽ giúp “giải cứu” ngôi nhà khỏi mùi thức ăn và sự ngột ngạt.
-
Lựa chọn thang máy phù hợp: Với nhà diện tích ~45m2, thang máy 350kg là vừa đủ. Hãy chọn loại thang không phòng máy để tiết kiệm chiều cao tầng tum.
-
Phong thủy trong nhà ống: Với mẫu nhà ống 5 tầng đẹp, việc bố trí phòng thờ tại tầng tum và tránh đặt nhà vệ sinh đè lên khu vực bếp hay giường ngủ là điều cần đặc biệt lưu tâm.
-
Ánh sáng nhân tạo: Đừng chỉ dùng đèn tuýp. Hãy kết hợp đèn led âm trần, đèn ray và đèn hắt khe rèm để tạo chiều sâu cho không gian vốn nhỏ hẹp.

7. Kết luận
Ngôi nhà của chị Hương tại Gia Lâm không chỉ là một công trình xây dựng, mà là thành quả của sự thấu hiểu giữa gia chủ và kiến trúc sư. Đây minh chứng rõ nét rằng: Chỉ cần có một phương án thiết kế tốt, dù đất hẹp bạn vẫn hoàn toàn có thể sở hữu một mẫu nhà ống 5 tầng đẹp, sang trọng và đầy đủ tiện nghi.
Kiến trúc Techhome luôn sẵn sàng lắng nghe và biến ngôi nhà trong mơ của bạn thành hiện thực. Chúng tôi không chỉ bán bản vẽ, chúng tôi kiến tạo không gian sống hạnh phúc.
Nếu bạn đang có ý định tìm hiểu sâu hơn về mẫu nhà ống 5 tầng đẹp này hoặc cần tư vấn phương án mặt bằng riêng cho mảnh đất của mình, đừng ngần ngại liên hệ với chúng tôi.
Thông tin liên hệ:
-
Hotline: 036.273.2222
-
Website: nhadeptechhome.vn
-
Văn phòng: B1.1 LK18 Ô 3 – KĐT Thanh Hà – Cienco 5 – Thanh Oai- Hà Nội.


