Xây nhà là việc đại sự cả đời. Tôi hiểu, khi bạn đang lướt xem bài viết này, có lẽ bạn đang đứng trước rất nhiều sự lựa chọn: Hiện đại thì sợ nhanh lỗi mốt, cổ điển quá thì sợ rườm rà, tốn kém. Vậy thì hãy dừng lại một chút ở mẫu nhà ống 2 tầng tân cổ điển mã số 523 mà Techhome vừa hoàn thiện hồ sơ thiết kế. Đây không chỉ là một ngôi nhà, đó là một “tác phẩm” cân bằng hoàn hảo giữa thẩm mỹ quý tộc và công năng sử dụng đời thường cho gia đình 2-3 thế hệ.
1. Tại sao mẫu nhà ống 2 tầng tân cổ điển lại “lên ngôi” năm 2026?
Năm 2026, xu hướng kiến trúc không còn chạy theo những gì quá hào nhoáng nhưng rỗng tuếch. Khách hàng của Techhome tìm kiếm sự bền vững. Mẫu nhà ống 2 tầng tân cổ điển chính là lời giải. Với mặt tiền 7m – một kích thước khá lý tưởng tại các khu đô thị mới hoặc vùng ven – phong cách tân cổ điển giúp ngôi nhà trông bề thế hơn hẳn so với diện tích thực tế.
Sự kết hợp giữa những đường phào chỉ thanh mảnh, hệ cột trụ vững chãi và mái chữ A vát nhọn tạo nên một diện mạo không thể nhầm lẫn. Nó vừa có cái uy quyền của kiến trúc Pháp, vừa có sự thanh thoát, trẻ trung của nhịp sống hiện đại.

2. Phân tích kiến trúc ngoại thất: Đẳng cấp nằm ở chi tiết
Nhìn vào phối cảnh 3D của mẫu nhà ống 2 tầng tân cổ điển này, điểm đầu tiên “va” vào mắt người xem chính là gam màu trắng sứ chủ đạo. Trong nghề kiến trúc, chúng tôi gọi đây là “màu sắc vĩnh cửu”. Nó giúp làm nổi bật các họa tiết phù điêu trên đầu hồi mái và hệ ban công sắt nghệ thuật màu vàng đồng.
Hệ cột và điểm nhấn đá tự nhiên
Hai cột trụ tròn lớn xuyên suốt tầng 2 tạo cảm giác cao ráo và thanh thoát. Để tăng thêm vẻ sang trọng, phần chân cột được chúng tôi tư vấn ốp đá Granite vân mây tối màu. Điều này không chỉ giúp ngôi nhà trông vững chãi mà còn cực kỳ sạch sẽ, chống rêu mốc – một vấn đề mà các gia chủ ở Việt Nam rất lo ngại.
Cửa gỗ đại thụ – “Gương mặt” của gia đình
Điểm nhấn đắt giá nhất ở tầng 1 của mẫu nhà ống 2 tầng tân cổ điển này chính là hệ cửa chính bằng gỗ tự nhiên cao cấp với những đường chạm khắc tinh xảo. Cánh cửa dày dạn, màu nâu ấm áp đối lập với sắc trắng của tường tạo nên một cái nhìn cực kỳ sang trọng ngay từ cái chạm mắt đầu tiên.

3. Giải pháp công năng: “Nhà cao cửa rộng” thôi chưa đủ, phải thông minh!
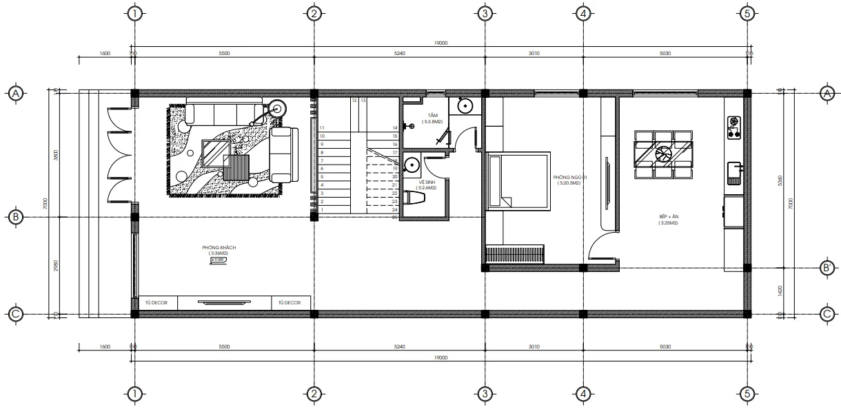
Một chuyên gia giỏi không chỉ vẽ nên một ngôi nhà đẹp, mà phải vẽ nên một không gian sống. Với diện tích xây dựng khoảng 135m2 mỗi sàn (7 x 19m), Techhome đã tính toán kỹ lưỡng từng mét vuông.
Tầng 1: Không gian kết nối gia đình
Bước qua bậc tam cấp đại sảnh của mẫu nhà ống 2 tầng tân cổ điển, bạn sẽ choáng ngợp với phòng khách rộng tới 36m2. Đây là không gian “đối ngoại” chính, nơi gia chủ thể hiện gu thẩm mỹ với những bộ sofa tân cổ điển bề thế.
-
Phòng khách (36m2): Thiết kế mở, liên thông tạo cảm giác mênh mông.
-
Phòng ngủ 01 (20.5m2): Chúng tôi đặc biệt bố trí một phòng ngủ lớn ngay dưới tầng 1. Đây là giải pháp cực kỳ tâm lý cho các gia đình có người lớn tuổi, giúp ông bà đi lại thuận tiện, không cần leo cầu thang.
-
Bếp & Phòng ăn (25m2): Tách biệt phía sau để tránh mùi thức ăn ám lên phòng khách, nhưng vẫn đảm bảo sự thông thoáng nhờ hệ cửa sổ mở ra.

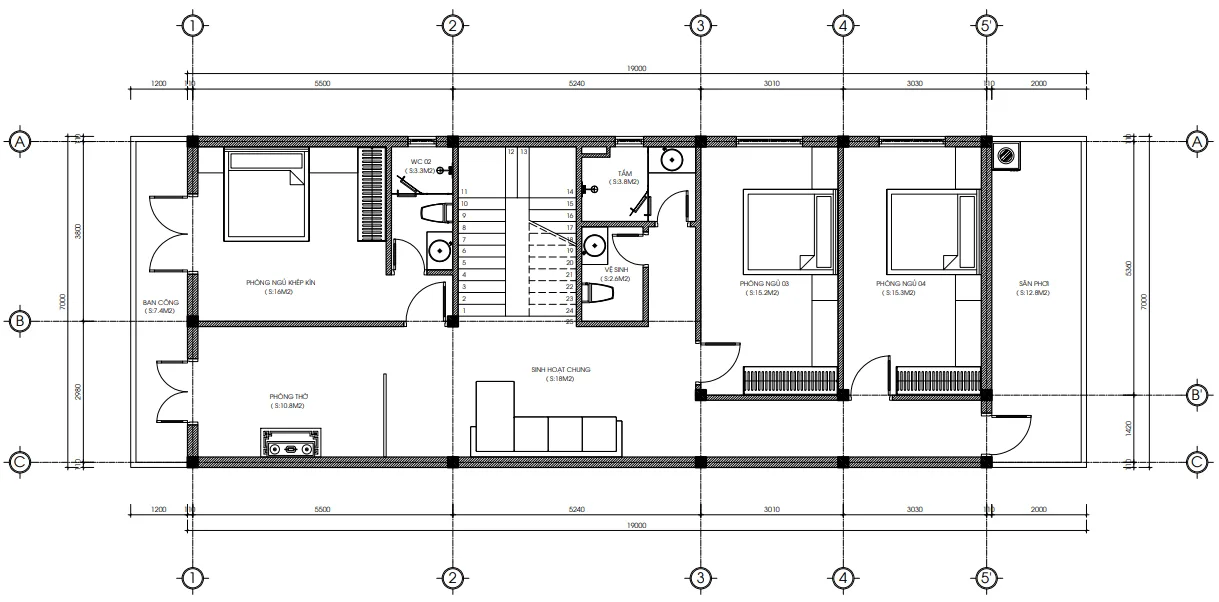
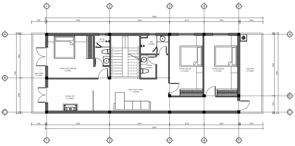
Tầng 2: Sự riêng tư và tĩnh lặng
Nếu tầng 1 là nơi náo nhiệt thì tầng 2 của mẫu nhà ống 2 tầng tân cổ điển là chốn trở về yên bình.
-
Phòng thờ (10.8m2): Được đặt ở vị trí trang trọng nhất, hướng ra ban công chính, đảm bảo yếu tố phong thủy và sự tôn nghiêm.
-
Phòng sinh hoạt chung (18m2): Nơi cả nhà quây quần xem phim hoặc trò chuyện mỗi tối trước khi đi ngủ.
-
Hệ thống 3 phòng ngủ: Gồm 1 phòng Master có WC khép kín và 2 phòng ngủ nhỏ cho con cái. Tất cả đều được lấy sáng tự nhiên.
-
Sân phơi (12.8m2): Bố trí phía sau kín đáo, đảm bảo thẩm mỹ cho mặt tiền ngôi nhà.

4. Những lưu ý “vàng” khi xây dựng mẫu nhà ống 2 tầng tân cổ điển
Với tư cách là người trong nghề, tôi muốn chia sẻ thật lòng với bạn: Để xây dựng được một mẫu nhà ống 2 tầng tân cổ điển đẹp, không chỉ cần tiền mà cần sự tinh tế.
-
Đừng quá lạm dụng phù điêu: Nhiều gia chủ cứ nghĩ đắp càng nhiều hoa văn càng sang. Sai lầm! Tân cổ điển là sự tiết chế. Hãy để những đường chỉ phào lên tiếng thay vì những khối bê tông nặng nề.
-
Ánh sáng là linh hồn: Hệ thống đèn hắt tường và đèn chùm pha lê là phụ kiện không thể thiếu. Vào ban đêm, mẫu nhà ống 2 tầng tân cổ điển phải lung linh như một cung điện nhỏ nhờ hiệu ứng ánh sáng vàng ấm.
-
Chọn vật liệu chuẩn: Lan can ban công nên dùng sắt mỹ thuật sơn tĩnh điện hoặc nhôm đúc để tránh bị han gỉ theo thời gian.
Để tìm hiểu rõ hơn về tiêu chuẩn vật liệu xây dựng và các yếu tố ảnh hưởng đến chi phí, bạn có thể tham khảo thêm tại các bài viết chuyên sâu về vật liệu xây dựng cao cấp trên Wikipedia.

5. Báo giá thiết kế và thi công (Cập nhật 2026)
Mức giá dưới đây mang tính chất tham khảo cho mẫu nhà ống 2 tầng tân cổ điển với mức đầu tư trung bình khá. Chi phí thực tế sẽ phụ thuộc vào chủng loại vật liệu và thời điểm thi công.
A. Đơn giá thiết kế (Gói chuyên sâu)
-
Thiết kế kiến trúc + Kết cấu + Điện nước: 108.000 VNĐ/m2.
-
Thiết kế nội thất 3D: 150.000 VNĐ/m2.
B. Dự toán thi công trọn gói (Chìa khóa trao tay)
Đối với dòng mẫu nhà ống 2 tầng tân cổ điển, suất đầu tư thường cao hơn nhà hiện đại do chi phí nhân công đắp phào chỉ và vật liệu trang trí.
| Hạng mục | Đơn giá ước tính | Ghi chú |
| Phần thô & Nhân công hoàn thiện | 3.800.000 – 4.200.000 đ/m2 | Bao gồm sắt thép, xi măng, gạch xây, phào chỉ thô. |
| Gói hoàn thiện (Trung bình khá) | 6.500.000 – 7.500.000 đ/m2 | Thiết bị vệ sinh, gạch ốp lát, sơn nước, cửa gỗ. |
| Gói cao cấp (Luxury) | > 8.500.000 đ/m2 | Đá tự nhiên, gỗ quý, thiết bị thông minh, nhôm đúc. |
Tổng mức đầu tư dự kiến: Đối với ngôi nhà diện tích 7 x 19m (tổng diện tích 271m2 cả mái), chi phí trọn gói thường dao động từ 1,7 tỷ đến 2,1 tỷ đồng.

6. Tại sao bạn nên chọn Kiến trúc Techhome?
Chúng tôi không bán bản vẽ, chúng tôi bán giải pháp an cư. Khi thực hiện mẫu nhà ống 2 tầng tân cổ điển, đội ngũ kiến trúc sư của Techhome luôn tuân thủ 3 nguyên tắc:
-
Chính xác: Bản vẽ kỹ thuật chi tiết đến từng mm, thợ nhìn vào là xây được ngay, không sai lệch.
-
Chân thật: Hình ảnh phối cảnh 3D giống thực tế đến 95%. Chúng tôi nói không với việc vẽ “ảo” rồi thực tế không thi công được.
-
Tận tâm: Hỗ trợ giám sát tác giả trong suốt quá trình đổ móng, đổ sàn để đảm bảo chất lượng tốt nhất cho gia chủ.
Xây dựng một mẫu nhà ống 2 tầng tân cổ điển là một hành trình dài. Có những lúc bạn sẽ mệt mỏi vì chọn gạch, chọn sơn, nhưng hãy tin tôi, cảm giác đứng trước ngôi nhà hoàn thiện, uy nghi và sang trọng, bạn sẽ thấy mọi nỗ lực đều xứng đáng.

7. Góc nhìn chuyên gia: Lời khuyên để đời
Để mẫu nhà ống 2 tầng tân cổ điển của bạn thực sự hoàn hảo, hãy chú ý đến phần sân vườn và cổng tường rào. Như trong hình ảnh thiết kế bạn thấy, hệ cổng rào được làm rất đồng điệu với kiến trúc nhà. Một chiếc cổng nhôm đúc họa tiết hoa lá Tây sẽ là “dấu gạch nối” tuyệt vời dẫn lối vào không gian sang trọng bên trong.
Ngoài ra, việc bố trí giếng trời hoặc khoảng thông tầng ở khu vực cầu thang là điều tôi luôn khuyên khách hàng làm. Với chiều dài nhà 19m, nếu không có giếng trời, phần giữa nhà sẽ rất bí và tối. Trong mẫu nhà ống 2 tầng tân cổ điển này, chúng tôi đã khéo léo đặt hệ thống lấy sáng phía trên cầu thang để khí tài lộc luôn lưu thông.
Hy vọng bài phân tích chi tiết về mẫu nhà ống 2 tầng tân cổ điển này đã giúp bạn có cái nhìn rõ nét hơn về ngôi nhà tương lai của mình. Đừng ngần ngại liên hệ với Techhome để được tư vấn dựa trên chính mảnh đất và nhu cầu riêng biệt của gia đình bạn.
Kiến trúc Techhome – Kiến tạo không gian, nâng tầm cuộc sống.
CÔNG TY CỔ PHẦN KIẾN TRÚC VÀ XÂY DỰNG TECHHOME
🏠 Website: https://nhadeptechhome.vn/
☎️ Hotline: 036.273.2222
📍 Địa chỉ: B1.1 LK18 Ô 3 – KĐT Thanh Hà – Cienco 5 – Thanh Oai- Hà Nội.
