Sở hữu một mảnh đất phân lô tại Thủ đô với chiều ngang 4.3m là một lợi thế, nhưng cũng là bài toán cân não về việc phân bổ ánh sáng và công năng. Hôm nay, Techhome xin giới thiệu đến bạn hồ sơ thiết kế kỹ thuật thi công cho công trình nhà ở gia đình của Anh Duy tại Hà Nội. Đây là một Mẫu nhà phố 3 tầng hiện đại điển hình, tập trung vào sự tiện nghi, thông thoáng và vẻ ngoài tinh tế.
1. Phân tích kiến trúc ngoại thất: Sự giao thoa giữa đá và gỗ
Nhìn vào phối cảnh 3D, bạn sẽ thấy ngay sự chỉn chu mà các kiến trúc sư Techhome gửi gắm. Mặt tiền tầng 1 được ốp đá marble xám vân mây sang trọng, không chỉ tạo cảm giác vững chãi mà còn giúp gia chủ dễ dàng vệ sinh, tránh ẩm mốc – một vấn đề nan giải với khí hậu nồm ẩm của Hà Nội.
Điểm nhấn đắt giá của Mẫu nhà phố 3 tầng hiện đại này chính là hệ trần ban công ốp nan gỗ nhựa kết hợp đèn LED âm trần. Sự ấm áp của màu gỗ hòa quyện cùng ánh sáng vàng nhẹ nhàng vào buổi tối sẽ khiến ngôi nhà trở nên lung linh và nổi bật nhất phố. Lan can sắt sơn tĩnh điện đen với các thanh dọc mảnh giúp tổng thể ngôi nhà trông cao ráo và thanh thoát hơn hẳn.

2. Chi tiết mặt bằng công năng: Tối ưu đến từng centimet
Một ngôi nhà đẹp trước hết phải là một ngôi nhà tiện dụng. Hãy cùng soi kỹ bản vẽ mặt bằng mà Techhome đã thực hiện cho anh Duy.
Tầng 1: Không gian sinh hoạt chung ấm cúng
Với diện tích sàn 55m2, tầng 1 được chia thành 4 khu vực chính:
-
Phòng khách (20m2): Nằm ngay sau cửa chính, rộng rãi đủ để bài trí một bộ sofa lớn và kệ tivi hiện đại.
-
Phòng bếp (12.5m2): Ngăn cách với phòng khách bằng cầu thang bộ 21 bậc. Khu vực này được thiết kế theo dạng chữ L để tiết kiệm diện tích.
-
Phòng ngủ 01 (8m2): Một không gian nghỉ ngơi nhỏ gọn tại tầng 1, rất phù hợp cho người lớn tuổi trong gia đình .
-
WC 01 (1.9m2): Được đặt khéo léo phía cuối nhà để đảm bảo tính thẩm mỹ và riêng tư.

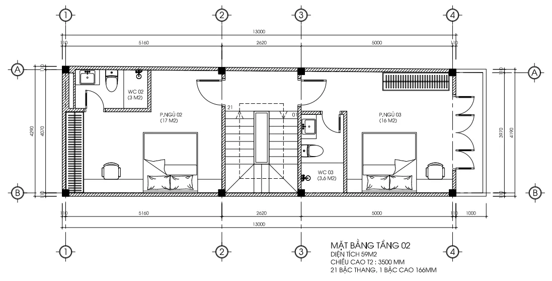
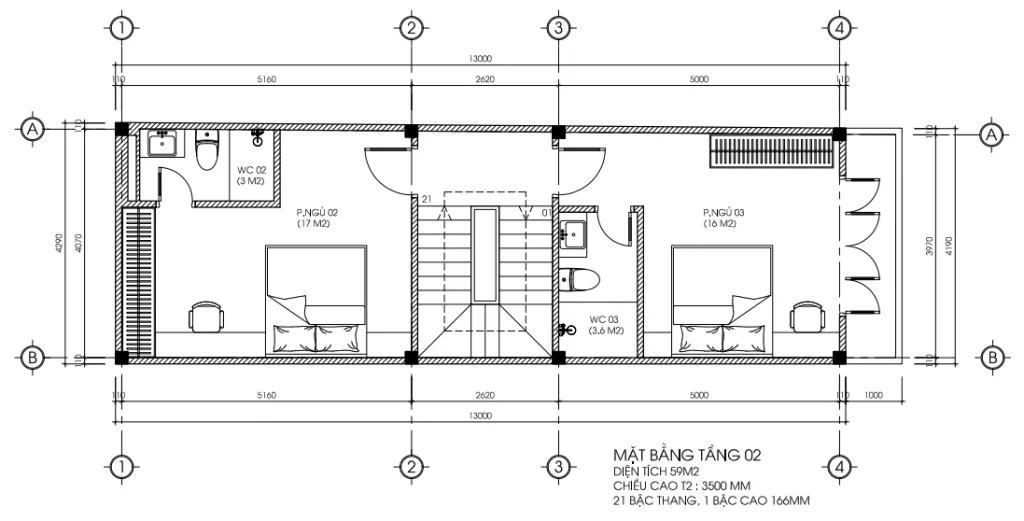
Tầng 2: “Pháo đài” riêng tư của các thành viên
Lên đến tầng 2, diện tích sàn được mở rộng lên 59m2 nhờ phần ban công đua ra. Đây là nơi nghỉ ngơi chính với:
-
Phòng ngủ 02 (17m2): Đi kèm WC 02 (3m2) khép kín, không gian hoàn hảo cho con cái học tập và nghỉ ngơi.
-
Phòng ngủ 03 (16m2): Đi kèm WC 03 (3.6m2), dành cho vợ chồng anh Duy với tầm nhìn hướng ra mặt tiền.
Việc bố trí mỗi phòng ngủ một nhà vệ sinh riêng trong Mẫu nhà phố 3 tầng hiện đại này cho thấy sự ưu tiên cao độ về tính cá nhân và tiện lợi trong sinh hoạt hằng ngày.

Tầng 3: Nơi kết nối tâm linh và tiện ích
Tầng 3 có diện tích xây dựng 35m2, phần còn lại là khoảng sân thượng thoáng đãng:
-
Phòng thờ (10m2): Được đặt ở vị trí trang trọng nhất, hướng ra phía trước nhà.
-
Kho (6.5m2): Nơi lưu trữ những vật dụng ít dùng, giúp nhà cửa luôn gọn gàng.
-
Khu vực kỹ thuật: Trên mái được bố trí bồn nước và hệ thống thái dương năng, giúp gia đình tiết kiệm điện năng đáng kể.

3. Báo giá thiết kế và thi công (Tham khảo 2025 – 2026)
Để bạn có cái nhìn thực tế về chi phí khi đầu tư vào Mẫu nhà phố 3 tầng hiện đại, Techhome xin đưa ra bảng dự toán cơ bản:
| Hạng mục | Đơn giá (VNĐ/m2) | Ghi chú |
| Thiết kế kiến trúc | 108.000 |
Bao gồm 3D, kết cấu, điện nước. |
| Thi công phần thô | 3.800.000 – 4.200.000 | Nhân công + vật tư thô. |
| Thi công hoàn thiện | 6.500.000 – 7.500.000 | Tùy vào mức độ cao cấp của vật liệu. |
Lưu ý: Đây chỉ là mức chi phí ước tính. Để nhận được báo giá chính xác và chi tiết nhất cho công trình của bạn, vui lòng liên hệ trực tiếp với chúng tôi. Hoặc để tìm hiểu rõ hơn về tiêu chuẩn vật liệu xây dựng và các yếu tố ảnh hưởng đến chi phí, bạn có thể tham khảo thêm tại các bài viết chuyên sâu về vật liệu xây dựng cao cấp trên Wikipedia.

4. Tại sao bạn nên chọn Techhome cho ngôi nhà của mình?
Giữa hàng ngàn công ty kiến trúc, Techhome vẫn khẳng định được vị thế nhờ sự tận tâm và chuyên nghiệp. Mỗi bản vẽ như Mẫu nhà phố 3 tầng hiện đại của anh Duy đều trải qua quy trình kiểm duyệt khắt khe bởi các kiến trúc sư giàu kinh nghiệm.
Chúng tôi không chỉ bán bản vẽ, chúng tôi bán giải pháp sống. Techhome cam kết:
-
Minh bạch về vật liệu và chi phí.
-
Hỗ trợ tư vấn kỹ thuật xuyên suốt quá trình xây dựng.
-
Thiết kế chuẩn phong thủy, tối ưu ánh sáng và thông gió tự nhiên.

5. Góc chuyên gia: 3 Bí kíp giúp nhà phố luôn “đáng sống”
Dưới góc độ là những người làm nghề lâu năm, chúng tôi muốn chia sẻ thêm với bạn một vài lưu ý nhỏ nhưng cực kỳ quan trọng khi xây dựng Mẫu nhà phố 3 tầng hiện đại:
-
Đừng “tham” xây hết diện tích: Hãy dành một khoảng nhỏ làm giếng trời hoặc sân sau. Ánh sáng tự nhiên và luồng khí đối lưu sẽ giúp ngôi nhà không bao giờ bị bí bách, tiết kiệm đáng kể tiền điện chạy điều hòa.
-
Đầu tư cho hệ thống chống thấm: Nhà phố Hà Nội thường chung tường với hàng xóm. Hãy xử lý chống thấm kỹ ngay từ phần thô để tránh những tranh chấp và hư hỏng về sau.
-
Lựa chọn nội thất thông minh: Với các phòng ngủ có diện tích vừa phải như 8m2, hãy ưu tiên các loại giường có hộc kéo hoặc tủ kịch trần để tối ưu không gian lưu trữ.
Mẫu nhà phố 3 tầng hiện đại không chỉ là một khối bê tông, đó là nơi nuôi dưỡng cảm xúc của cả gia đình. Nếu bạn cũng đang ấp ủ một tổ ấm riêng, đừng ngần ngại chia sẻ ý tưởng với Techhome. Chúng tôi luôn sẵn sàng lắng nghe và biến giấc mơ của bạn thành hiện thực.

Câu hỏi thường gặp (FAQ)
Hỏi: Diện tích 4.3x13m thì xây nhà 3 tầng có quá hẹp không? Trả lời: Hoàn toàn không. Như Mẫu nhà phố 3 tầng hiện đại của anh Duy, việc bố trí cầu thang giữa giúp phân bổ các phòng chức năng rất hợp lý, tạo cảm giác thông thoáng và vẫn đầy đủ 3 phòng ngủ.
Hỏi: Thời gian thiết kế một hồ sơ hoàn chỉnh là bao lâu?
Trả lời: Thông thường từ 15-25 ngày tùy vào yêu cầu chỉnh sửa của chủ đầu tư. Techhome luôn đảm bảo tiến độ để bạn kịp khởi công đúng ngày lành tháng tốt.
Hỏi: Tôi muốn thay đổi công năng tầng 1 thành văn phòng kinh doanh được không?
Trả lời: Chắc chắn rồi! Với kiến trúc của Mẫu nhà phố 3 tầng hiện đại, việc đẩy khu vực bếp lên tầng lửng hoặc tầng 3 để dành trọn diện tích tầng 1 cho kinh doanh là phương án rất khả thi mà chúng tôi thường xuyên tư vấn cho khách hàng.

Techhome – Xây dựng từ tâm, kiến tạo tầm vóc.
-
Website: nhadeptechhome.vn
-
Hotline : 0364042222
-
Địa chỉ: B1.1 LK18 Ô 3 – KĐT Thanh Hà – Cienco 5 – Thanh Oai- Hà Nội.
