Trong năm 2025, nhà phố mái Mansard nhiều tầng đang trở thành xu hướng được các gia chủ thành thị đặc biệt quan tâm. Đây không chỉ là giải pháp tối ưu không gian sống trong những khu đất hẹp, mà còn là lựa chọn hoàn hảo để kết hợp giữa ở và kinh doanh. Với thiết kế sang trọng, đậm chất châu Âu, mái Mansard mang đến sự bề thế, khẳng định đẳng cấp gia chủ đồng thời giúp không gian sống thông thoáng, tiện nghi và bền vững theo thời gian.
Trong bài viết này, Techhome sẽ phân tích chi tiết về ưu điểm, công năng, chi phí, cũng như các mẫu nhà phố mái Mansard nhiều tầng hot nhất 2025, giúp gia chủ dễ dàng lựa chọn phương án phù hợp.

1. Xu hướng nhà phố mái Mansard nhiều tầng năm 2025
-
Thiết kế bề thế: Mái Mansard có nguồn gốc từ Pháp, nổi bật với dáng mái vuông vức, sang trọng, giúp ngôi nhà trông cao ráo và bề thế hơn.
-
Đáp ứng nhu cầu đô thị hóa: Quỹ đất ngày càng hạn chế, đặc biệt tại thành phố, việc xây nhà nhiều tầng tối ưu diện tích là lựa chọn tất yếu.
-
Kết hợp để ở và kinh doanh: Tầng trệt có thể tận dụng làm cửa hàng, showroom, văn phòng… trong khi các tầng trên phục vụ nhu cầu sinh hoạt gia đình.
-
Phong cách kiến trúc đa dạng: Từ tân cổ điển đến hiện đại, mái Mansard đều có thể biến tấu linh hoạt.
👉 Đây chính là lý do mà cụm từ “nhà phố mái Mansard nhiều tầng 2025” đang được tìm kiếm nhiều trên Google, trở thành từ khóa hot của ngành xây dựng.




2. Ưu điểm vượt trội của nhà phố mái Mansard nhiều tầng
2.1. Tối ưu không gian
-
Tận dụng chiều cao để bố trí nhiều công năng: gara, cửa hàng, phòng khách, phòng ngủ, văn phòng làm việc.
-
Tầng tum dưới mái Mansard có thể biến thành phòng thờ, phòng đọc sách hoặc kho chứa đồ tiện lợi.
2.2. Thẩm mỹ sang trọng
-
Kiến trúc Mansard mang dáng vẻ quyền quý, đậm chất Pháp.
-
Các chi tiết phào chỉ, ban công hoa văn, lan can sắt nghệ thuật tạo điểm nhấn tinh tế.
2.3. Bền bỉ và phù hợp khí hậu Việt Nam
-
Mái Mansard có độ dốc hợp lý, thoát nước nhanh, chống nóng tốt.
-
Không gian áp mái giúp cách nhiệt hiệu quả, tăng tuổi thọ cho công trình nhà phố mansard nhiều tầng.
2.4. Đa công năng – vừa ở vừa kinh doanh
-
Gia chủ có thể cho thuê mặt bằng tầng 1 – 2 để kinh doanh.
-
Các tầng trên giữ sự riêng tư cho gia đình, tách biệt không gian sống và công việc.
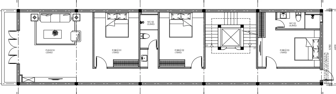
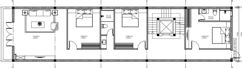
3. Công năng mẫu nhà phố mái Mansard 5 tầng tại thành phố
Một mẫu nhà phố mái Mansard 5 tầng điển hình gồm:
-
Tầng 1: Gara + không gian kinh doanh (cửa hàng, quán café, văn phòng).
-
Tầng 2: Phòng khách sang trọng + bếp ăn.
-
Tầng 3 – 4: Các phòng ngủ master và phòng ngủ phụ, bố trí khoa học, đảm bảo riêng tư.
-
Tầng 5 (mái Mansard): Phòng thờ + sân thượng + kho + không gian sinh hoạt chung.
👉 Sự phân chia hợp lý này đáp ứng trọn vẹn nhu cầu “vừa ở – vừa kinh doanh – vừa tận hưởng”.

4. Báo giá xây dựng nhà phố mái Mansard nhiều tầng 2025
Chi phí xây dựng phụ thuộc vào diện tích, vật liệu và mức đầu tư. Techhome đưa ra mức tham khảo:
-
Thiết kế kiến trúc: 100.000đ/m².
-
Thi công trọn gói: 6 – 10 triệu/m².
-
Nội thất cao cấp: 4,5 – 7 triệu/m².
Ví dụ:
-
Nhà phố mái Mansard 5 tầng, diện tích 80m²/sàn (tổng 400m²).
-
Chi phí thi công trọn gói: khoảng 2,4 – 3,2 tỷ VNĐ.
👉 So với nhà mái bằng hoặc mái thái, mái Mansard có chi phí nhỉnh hơn, nhưng giá trị thẩm mỹ và công năng vượt trội, xứng đáng đầu tư.
Lưu ý: Đây chỉ là mức chi phí ước tính. Để nhận được báo giá chính xác và chi tiết nhất cho công trình của bạn, vui lòng liên hệ trực tiếp với chúng tôi. Hoặc để tìm hiểu rõ hơn về tiêu chuẩn vật liệu xây dựng và các yếu tố ảnh hưởng đến chi phí, bạn có thể tham khảo thêm tại các bài viết chuyên sâu về vật liệu xây dựng cao cấp trên Wikipedia.
5. Xu hướng thiết kế nhà phố mái Mansard 2025
-
Kết hợp phong cách tân cổ điển: sử dụng cột, phào chỉ, ban công hoàng gia.
-
Mái Mansard hiện đại: tối giản chi tiết, nhấn mạnh hình khối, phù hợp gia chủ trẻ.
-
Không gian xanh: bố trí cây xanh ở ban công, sân thượng tạo cảm giác thoáng mát.
-
Ứng dụng công nghệ thông minh: khóa cửa điện tử, hệ thống chiếu sáng tự động, camera an ninh.
6. Vì sao nên chọn Techhome thiết kế & thi công nhà phố mái Mansard nhiều tầng?
-
Kinh nghiệm thực chiến: Hàng trăm công trình nhà phố, biệt thự, nhà vườn đã bàn giao.
-
Đội ngũ KTS chuyên nghiệp: Luôn bắt trend, sáng tạo nhưng vẫn chuẩn phong thủy.
-
Thi công trọn gói – chìa khóa trao tay: Gia chủ không phải lo lắng về tiến độ hay chất lượng.
-
Bảo hành dài hạn: Cam kết đồng hành cùng khách hàng trong suốt quá trình sử dụng.
📍 Văn phòng: B1.1 LK17 ô số 4 – KĐT Thanh Hà, Thanh Oai, Hà Nội
📞 Hotline: 0364 042 222 – 0387 603 333
🌐 Xem thêm các dự án nổi bật khác của Techhome tại https://nhadeptechhome.vn/
7. Kết luận
Nhà phố mái Mansard nhiều tầng 2025 chính là lựa chọn hoàn hảo để tối ưu không gian sống và kết hợp kinh doanh. Với vẻ đẹp sang trọng, công năng linh hoạt, mái Mansard sẽ tiếp tục trở thành xu hướng hot trong kiến trúc đô thị hiện đại.
Nếu bạn đang tìm kiếm một giải pháp “đẳng cấp – bền vững – tối ưu chi phí”, hãy để Techhome đồng hành và biến bản vẽ thành hiện thực.
