Xu hướng nhà vườn mái Nhật 1 tầng 2025

Trong những năm gần đây, nhà vườn mái Nhật 1 tầng đang trở thành lựa chọn hàng đầu của nhiều gia đình Việt. Với thiết kế sang trọng, không gian thoáng đãng và tính ứng dụng cao, kiểu nhà này không chỉ mang lại sự tiện nghi mà còn đảm bảo yếu tố phong thủy hài hòa. Đặc biệt, năm 2025 đánh dấu xu hướng bùng nổ của mẫu nhà này khi ngày càng nhiều chủ đầu tư tại nông thôn và thành phố quan tâm.
Trong bài viết hôm nay, Techhome sẽ chia sẻ bí quyết thiết kế nhà vườn mái Nhật 1 tầng chuẩn phong thủy, vừa đẹp từng góc nhìn, vừa tối ưu công năng và chi phí xây dựng.



Ưu điểm nổi bật của nhà vườn mái Nhật 1 tầng
Mẫu nhà vườn mái Nhật 1 tầng sở hữu nhiều lợi thế vượt trội so với các kiểu kiến trúc khác:
-
✅ Phong cách hiện đại – thanh thoát: Mái Nhật có độ dốc vừa phải, tạo sự nhẹ nhàng nhưng vẫn sang trọng.
-
✅ Không gian xanh mát: Thiết kế vườn bao quanh giúp gia chủ tận hưởng không khí trong lành, gần gũi thiên nhiên.
-
✅ Công năng tiện lợi: Tất cả không gian được bố trí trên cùng một mặt sàn, phù hợp với gia đình có trẻ nhỏ hoặc người lớn tuổi.
-
✅ Đa dạng diện tích: Phù hợp từ nhà 80m², 100m² đến 200m², tùy nhu cầu sử dụng.
-
✅ Chuẩn phong thủy: Nhà vườn mái Nhật 1 tầng thường chú trọng hướng cửa, thế đất và phân bổ phòng, giúp gia chủ thu hút tài lộc.
Bí quyết thiết kế nhà vườn mái Nhật 1 tầng chuẩn phong thủy
1. Lựa chọn hướng nhà hợp mệnh
Trong phong thủy, hướng nhà đóng vai trò quan trọng quyết định tài lộc và sức khỏe. Gia chủ cần chọn hướng theo mệnh:
-
Đông tứ mệnh hợp hướng: Đông, Nam, Bắc, Đông Nam.
-
Tây tứ mệnh hợp hướng: Tây, Tây Bắc, Tây Nam, Đông Bắc.
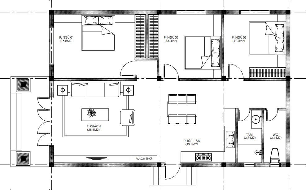
2. Phân chia công năng khoa học
Một bản vẽ chuẩn của nhà vườn mái Nhật 1 tầng thường bao gồm:
-
Phòng khách rộng thoáng, đặt ở trung tâm.
-
2 – 4 phòng ngủ, sắp xếp cân đối hai bên trục nhà.
-
Phòng bếp và ăn đặt phía sau hoặc bên hông để hạn chế mùi.
-
Nhà vệ sinh bố trí hợp lý, tránh đặt đối diện cửa chính hoặc phòng ngủ.
3. Bố trí nội thất hài hòa
-
Màu sắc: Sử dụng gam trung tính như trắng, be, ghi xám kết hợp gỗ tự nhiên.
-
Nội thất: Ưu tiên sự đơn giản, gọn gàng, không lạm dụng đồ đạc.
-
Ánh sáng: Tận dụng ánh sáng tự nhiên qua hệ thống cửa kính rộng.
4. Thiết kế mái Nhật hợp phong thủy
-
Độ dốc vừa phải, tránh quá cao hoặc quá thấp.
-
Màu mái thường là xanh ghi, nâu, hoặc đen xám, tượng trưng cho sự vững bền.
-
Mái mở rộng ra ngoài để che chắn, bảo vệ ngôi nhà và tạo cảm giác vững chãi.
Các mẫu nhà vườn mái Nhật 1 tầng đẹp 2025
1. Mẫu nhà vườn mái Nhật 1 tầng 3 phòng ngủ
-
Diện tích: 120m²
-
Công năng: Phòng khách, bếp – ăn, 3 phòng ngủ, 2 WC.
-
Phù hợp gia đình 3 – 5 thành viên.
2. Mẫu nhà mái Nhật 1 tầng có gara
-
Diện tích: 150m²
-
Điểm nhấn: Gara ô tô liền kề, thuận tiện cho gia chủ.
-
Công năng hiện đại, phù hợp gia đình trẻ.
3. Mẫu nhà vườn mái Nhật 1 tầng 100m²
-
Thiết kế nhỏ gọn nhưng đầy đủ tiện ích.
-
Chi phí xây dựng chỉ từ 800 triệu – 1,2 tỷ.
4. Mẫu nhà vườn mái Nhật 1 tầng kiểu biệt thự mini
-
Sang trọng, đẳng cấp với sân vườn rộng, hồ cá, tiểu cảnh.
-
Thích hợp gia đình muốn nghỉ dưỡng ngay tại quê hương.

Chi phí xây dựng nhà vườn mái Nhật 1 tầng năm 2025
Chi phí xây dựng phụ thuộc vào diện tích, vật liệu và phong cách thiết kế:
-
Nhà 80 – 100m²: 800 triệu – 1,2 tỷ.
-
Nhà 120 – 150m²: 1,2 – 1,8 tỷ.
-
Nhà 180 – 200m²: 2 – 3 tỷ.
👉 Techhome luôn cam kết thi công trọn gói với chi phí tối ưu, minh bạch, đảm bảo chất lượng bền vững.
Lưu ý: Đây chỉ là mức chi phí ước tính. Để nhận được báo giá chính xác và chi tiết nhất cho công trình của bạn, vui lòng liên hệ trực tiếp với chúng tôi. Hoặc để tìm hiểu rõ hơn về tiêu chuẩn vật liệu xây dựng và các yếu tố ảnh hưởng đến chi phí, bạn có thể tham khảo thêm tại các bài viết chuyên sâu về vật liệu xây dựng cao cấp trên Wikipedia.
Vì sao nên chọn Techhome khi xây dựng nhà vườn mái Nhật 1 tầng?
-
🎯 Thiết kế chuẩn phong thủy, tối ưu công năng.
-
🎯 Đội ngũ kiến trúc sư giàu kinh nghiệm.
-
🎯 Thi công trọn gói – không phát sinh chi phí.
-
🎯 Bảo hành dài hạn – đồng hành cùng gia chủ.
Kết luận
Mẫu nhà vườn mái Nhật 1 tầng không chỉ mang lại vẻ đẹp thanh thoát, sang trọng mà còn là không gian sống lý tưởng cho mọi gia đình. Khi được thiết kế chuẩn phong thủy, ngôi nhà sẽ giúp gia chủ đón tài lộc, thịnh vượng và bình an.
Nếu anh/chị đang tìm kiếm một đơn vị thiết kế và thi công trọn gói, hãy liên hệ ngay Techhome để nhận tư vấn chi tiết và bản vẽ miễn phí.
Hotline: 0364 042 222 – 0387 603 333
Xem thêm các dự án nổi bật khác của Techhome tại https://nhadeptechhome.vn/
