Khi kiến trúc trở thành ngôn ngữ của sự sang trọng
Nếu như phong cách hiện đại đem đến sự tối giản và phóng khoáng, thì nhà phố tân cổ Mansard lại là biểu tượng của sự tinh tế, quyền quý và vĩnh cửu. Ngôi nhà không chỉ để ở, mà còn là một “tuyên ngôn sống” về gu thẩm mỹ và vị thế của gia chủ.
Điểm làm nên sự khác biệt chính là mái Mansard – chi tiết kiến trúc được xem như “vương miện” của công trình. Khi kết hợp với các đường phào chỉ uốn lượn, cột trụ vững chãi và ban công hoa văn nghệ thuật, ngôi nhà phố vốn hạn chế diện tích bỗng hóa thành một tác phẩm kiến trúc châu Âu thu nhỏ giữa lòng phố thị.
Vẻ đẹp quyến rũ của mái Mansard



Mái Mansard – chiếc vương miện kiêu hãnh
Mái Mansard ra đời từ thế kỷ 17 tại Pháp, từng chỉ xuất hiện trong các cung điện, lâu đài của giới quý tộc. Tới nay, nó trở thành biểu tượng của sự sang trọng trong kiến trúc nhà ở.
-
Hình khối cao ráo, bề thế, giúp ngôi nhà trông “cao tầng” hơn thực tế.
-
Độ dốc hợp lý, chống nóng – chống ồn – thoát nước nhanh.
-
Không gian áp mái có thể tận dụng thành phòng ngủ, phòng giải trí hoặc kho chứa, biến mái nhà thành một tầng sống hữu ích chứ không chỉ là lớp che chắn.
Khi mái Mansard hòa cùng nhà phố tân cổ
Điểm tinh tế là khi kết hợp mái Mansard cùng phong cách tân cổ điển. Không cầu kỳ như cổ điển thuần túy, nhà phố tân cổ Mansard tiết chế chi tiết, giữ sự sang trọng nhưng vẫn phù hợp với nhịp sống hiện đại. Chính sự cân bằng này giúp công trình vừa quý phái, vừa gần gũi, không hề nặng nề.
Ngoại thất – nơi nghệ thuật cất lời
Một ngôi nhà phố tân cổ Mansard 3 tầng chuẩn châu Âu sẽ khiến người đối diện “mãn nhãn” nhờ những yếu tố:
-
Mặt tiền đăng đối: Từng chi tiết được tính toán tỉ lệ vàng, tạo sự hài hòa tuyệt đối.
-
Cột trụ uy nghi: Thường là cột Corinthian với hoa văn lá acanthus mềm mại, biểu trưng cho sự trường tồn.
-
Ban công uốn cong: Lan can sắt nghệ thuật hoặc mạ vàng, vừa an toàn vừa tôn lên vẻ xa hoa.
-
Hệ cửa vòm: Những ô cửa kính lớn hình vòm mang ánh sáng tự nhiên tràn ngập không gian, lại phảng phất nét lãng mạn Paris.
Khi ánh nắng chiếu xuống, từng phào chỉ, từng họa tiết như bừng sáng, khiến ngôi nhà phố tân cổ Mansard trở thành một “bức tranh sống động” giữa phố phường.
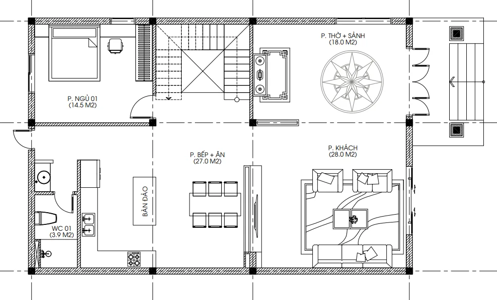
Công năng – sống tiện nghi trong sự xa hoa

Một công trình đẹp là sự giao thoa giữa nghệ thuật và công năng. Với diện tích nhà phố, việc bố trí không gian cần khoa học, hợp phong thủy và đảm bảo sinh hoạt thoải mái cho cả gia đình.
-
Tầng 1: Phòng khách rộng rãi, bếp ăn liên thông hiện đại, phòng ngủ nhỏ cho ông bà, cùng WC tiện lợi.
-
Tầng 2: Phòng ngủ master với ban công riêng, thêm 2 phòng ngủ cho con, WC khép kín.
-
Tầng 3: Phòng thờ trang nghiêm, phòng sinh hoạt chung, sân phơi hoặc thư viện nhỏ.
-
Tầng áp mái: Không gian linh hoạt, có thể làm phòng làm việc, phòng giải trí hoặc phòng ngủ dự phòng.
👉 Nhờ mái Mansard, gia đình có thêm một không gian “ẩn” đầy tiện ích – điều mà nhiều kiểu mái khác không thể mang lại.
Vì sao mẫu nhà phố tân cổ Mansard được ưa chuộng?
-
Đẳng cấp khác biệt – hiếm có loại kiến trúc nào vừa sang trọng, vừa quý phái như Mansard.
-
Hợp xu hướng – khi nhiều người hướng đến phong cách sống tinh tế, không khoa trương nhưng đủ để khẳng định gu thẩm mỹ.
-
Ứng dụng linh hoạt – từ nhà phố 3 tầng, 4 tầng đến biệt thự liền kề đều có thể áp dụng.
-
Giá trị bền vững – vừa đẹp, vừa chắc chắn, vừa tận dụng được công năng áp mái.
-
Khẳng định vị thế – sở hữu một ngôi nhà phố tân cổ Mansard chẳng khác nào mang trong tay “tấm hộ chiếu” bước vào thế giới tinh hoa.
Xu hướng thiết kế nhà phố tân cổ Mansard năm 2025
Bước sang 2025, kiến trúc tân cổ Mansard đang có những biến tấu mới:
-
Nhà phố Mansard kết hợp hiện đại: Giảm bớt phào chỉ, nhấn mạnh hình khối đơn giản, hợp gu giới trẻ.
-
Nhà phố Mansard 4 tầng: Thêm tầng áp mái cao, phù hợp gia đình nhiều thế hệ.
-
Nhà phố Mansard kinh doanh: Tầng 1 làm cửa hàng/café, các tầng trên để ở – vừa sang, vừa sinh lời.
-
Nhà phố Mansard kết hợp sân vườn: Tạo mảng xanh xen kẽ, đem hơi thở thiên nhiên vào không gian sống.
Chi phí đầu tư – xứng đáng từng đồng
Chi phí xây dựng nhà phố tân cổ Mansard phụ thuộc vào:
-
Diện tích xây dựng.
-
Số tầng.
-
Mức độ chi tiết phào chỉ.
-
Chất liệu sử dụng.
Thông thường, giá dao động từ 6 – 8 triệu/m² cho phần thô và hoàn thiện cơ bản. Với gói thiết kế & thi công trọn gói tại Techhome, gia chủ được đảm bảo:
-
Bản thiết kế tối ưu công năng.
-
Chi phí minh bạch, rõ ràng.
-
Chất lượng bền vững, thẩm mỹ chuẩn châu Âu.
Lưu ý: Đây chỉ là mức chi phí ước tính. Để nhận được báo giá chính xác và chi tiết nhất cho công trình của bạn, vui lòng liên hệ trực tiếp với chúng tôi. Hoặc để tìm hiểu rõ hơn về tiêu chuẩn vật liệu xây dựng và các yếu tố ảnh hưởng đến chi phí, bạn có thể tham khảo thêm tại các bài viết chuyên sâu về vật liệu xây dựng cao cấp trên Wikipedia.
Techhome – Người kiến tạo giá trị sống
Với kinh nghiệm trong hàng trăm công trình biệt thự – nhà phố tân cổ điển, Techhome luôn đặt chữ “tinh tế” và “bền vững” lên hàng đầu.
Chúng tôi không chỉ xây một ngôi nhà, mà kiến tạo nên tổ ấm mang bản sắc riêng của từng gia chủ. Từng chi tiết được chăm chút để:
-
Đẹp ngoài, tiện nghi trong.
-
Sang trọng nhưng vẫn gần gũi.
-
Đẳng cấp nhưng phù hợp tài chính.
Kết luận
Mẫu nhà phố tân cổ Mansard chuẩn phong cách Châu Âu không chỉ là kiến trúc, mà còn là tác phẩm nghệ thuật trường tồn cùng thời gian. Sự hòa quyện giữa vẻ đẹp cổ điển Pháp và nhu cầu sống hiện đại đã tạo nên một xu hướng đỉnh cao, dành riêng cho những gia chủ có gu thẩm mỹ tinh tế.
👉 Nếu bạn đang tìm kiếm một không gian sống sang trọng, tiện nghi, bền vững, hãy để Techhome đồng hành trong hành trình kiến tạo tổ ấm.
Hotline: 0364 042 222 – 0387 603 333
Xem thêm các dự án nổi bật khác của Techhome tại https://nhadeptechhome.vn/

