Giới thiệu về xu hướng nhà phố hiện đại 2 tầng 1 tum
Trong những năm gần đây, nhà phố hiện đại 2 tầng 1 tum trở thành xu hướng xây dựng phổ biến tại Việt Nam. Không chỉ mang lại không gian sống tiện nghi, hiện đại mà còn đáp ứng các yếu tố phong thủy, thẩm mỹ và tối ưu chi phí.
Mẫu thiết kế này phù hợp cho gia đình trẻ cũng như những gia đình nhiều thế hệ cùng chung sống. Với lối kiến trúc tinh tế, tối ưu diện tích, nhà phố 2 tầng 1 tum ngày càng khẳng định vị thế trong các khu đô thị và vùng ven.
Đặc điểm nổi bật của mẫu nhà phố hiện đại 2 tầng 1 tum
Kiến trúc sang trọng, tinh tế
-
Mặt tiền được thiết kế hiện đại, sử dụng kính cường lực, lam chắn nắng, ban công cây xanh.
-
Hình khối vuông vức, đơn giản nhưng không kém phần ấn tượng.
-
Màu sắc phối hợp hài hòa: trắng – ghi – nâu gỗ, tạo sự bền vững với thời gian.
Công năng khoa học
Mẫu nhà phố hiện đại 2 tầng 1 tum thường được bố trí:
-
Tầng 1: Phòng khách, bếp + ăn, 1 phòng ngủ, WC.
-
Tầng 2: Phòng ngủ master, phòng ngủ con
-
Tầng tum: phòng thờ, sân phơi.
Cách sắp xếp thông minh này giúp không gian thoáng – tiện – tối ưu diện tích.
Chuẩn phong thủy, đón tài lộc
-
Hướng cửa chính, cầu thang, phòng bếp đều được tính toán dựa trên tuổi của gia chủ.
-
Bố trí giếng trời và ban công hợp lý để lấy ánh sáng, gió tự nhiên, mang lại sinh khí cho ngôi nhà phố hiện đại 2 tầng 1 tum.
Lý do bạn nên chọn thiết kế nhà phố hiện đại 2 tầng 1 tum
-
Tiết kiệm chi phí: Phù hợp ngân sách từ 1,2 – 1,8 tỷ tùy diện tích và vật liệu.
-
Đáp ứng thẩm mỹ: Kiến trúc hiện đại, trẻ trung, phù hợp xu hướng 2025.
-
Tối ưu không gian: Thích hợp với diện tích đất từ 60m² – 120m².
-
Giá trị bền vững: Công trình kiên cố, bền đẹp qua thời gian.
Mẫu thiết kế nhà phố hiện đại 2 tầng 1 tum của Techhome
Phối cảnh ngoại thất
Nhìn từ ngoài, ngôi nhà phố 2 tầng 1 tum mang vẻ đẹp hiện đại với:
-
Ban công rộng, cây xanh trang trí.
-
Hệ thống cửa kính lớn tạo không gian mở.
-
Cổng và tường rào thiết kế đồng bộ, tạo sự an toàn và sang trọng.
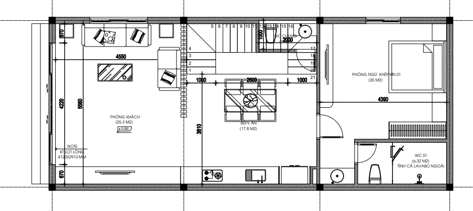
Mặt bằng công năng
-
Phòng khách rộng 25m² sang trọng, kết hợp sofa và kệ TV.
-
Phòng bếp – ăn 17m² gọn gàng, kết nối trực tiếp sân sau.
-
Phòng ngủ 20m² tầng 1 thuận tiện cho người lớn tuổi.
-
WC 6,3m² bố trí hợp lý.

Hình ảnh phối cảnh 3D ngoại thất



Bí quyết thiết kế nhà phố hiện đại 2 tầng 1 tum chuẩn phong thủy
-
Cửa chính: Tránh hướng thẳng nhà vệ sinh hoặc cầu thang.
-
Cầu thang: Bố trí giữa nhà, bậc số Sinh (1 – 6 – 11 – 16…).
-
Phòng bếp: Đặt tại vị trí “tọa hung hướng cát”.
-
Phòng ngủ: Tránh cửa đối diện nhau, hạn chế gương soi chiếu trực tiếp giường.
-
Ban công & giếng trời: Giúp lưu thông khí, mang vượng khí cho gia chủ.
Xu hướng nhà phố 2 tầng 1 tum hiện đại năm 2025
-
Thiết kế xanh: Ban công trồng cây, tường cây đứng.
-
Vật liệu hiện đại: Kính low-e, gỗ nhựa ngoài trời, đá granite.
-
Nội thất tối giản: Tập trung vào công năng, tránh rườm rà.
-
Ứng dụng công nghệ: Hệ thống nhà thông minh, tiết kiệm năng lượng.
Báo giá xây dựng nhà phố hiện đại 2 tầng 1 tum
-
Thi công phần thô: 3,5 – 3,8 triệu/m².
-
Thi công trọn gói: 5,5 – 7 triệu/m².
-
Chi phí trung bình: Khoảng 1,3 – 1,7 tỷ cho diện tích 80 – 100m²/sàn.
Lưu ý: Đây chỉ là mức chi phí ước tính. Để nhận được báo giá chính xác và chi tiết nhất cho công trình của bạn, vui lòng liên hệ trực tiếp với chúng tôi. Hoặc để tìm hiểu rõ hơn về tiêu chuẩn vật liệu xây dựng và các yếu tố ảnh hưởng đến chi phí, bạn có thể tham khảo thêm tại các bài viết chuyên sâu về vật liệu xây dựng cao cấp trên Wikipedia.
Techhome – Đồng hành cùng gia chủ kiến tạo tổ ấm
Với hơn 10 năm kinh nghiệm trong thiết kế & thi công nhà phố hiện đại, Techhome tự hào mang đến cho khách hàng:
-
Giải pháp kiến trúc chuẩn phong thủy.
-
Đội ngũ kiến trúc sư sáng tạo, tận tâm.
-
Cam kết tiến độ – chất lượng – chi phí tối ưu.
Kết luận
Mẫu nhà phố hiện đại 2 tầng 1 tum không chỉ là nơi an cư lý tưởng mà còn là xu hướng xây dựng bền vững năm 2025. Với thiết kế tinh tế, chuẩn phong thủy, Techhome sẽ đồng hành cùng bạn để kiến tạo một tổ ấm đẹp mãi với thời gian.
Liên hệ ngay HOTLINE: 0364 042 222 – 0387 603 333 để được tư vấn miễn phí và nhận bản vẽ thiết kế tối ưu nhất cho ngôi nhà mơ ước.
Xem thêm các dự án nổi bật khác của Techhome tại https://nhadeptechhome.vn/

