Trong bối cảnh đất chật người đông tại các đô thị hay những khu phố sầm uất ở Hưng Yên, việc tìm kiếm một mẫu nhà ống 3 tầng đẹp không chỉ dừng lại ở việc xây lên một cái khung để ở. Đó là câu chuyện về việc tối ưu hóa từng mét vuông, là cách chúng ta đưa ánh sáng, gió trời và cả “gu” thẩm mỹ cá nhân vào trong không gian sống.
Hôm nay, TechHome xin giới thiệu đến bạn một siêu phẩm thiết kế vừa bàn giao hồ sơ cho gia đình anh Hoàng tại Hưng Yên. Đây không chỉ là một bản vẽ kỹ thuật, mà là một tác phẩm nghệ thuật hiện đại dành riêng cho những ai đang tìm kiếm cảm hứng về một ngôi nhà phố diện tích hẹp nhưng công năng thì “không phải dạng vừa đâu”.

1. Phá vỡ định kiến “nhà ống là bí bách” với thiết kế hiện đại
Nhiều người thường e ngại nhà phố dạng ống sẽ tù túng. Tuy nhiên, nhìn vào phối cảnh mặt tiền của anh Hoàng, bạn sẽ thấy một mẫu nhà ống 3 tầng đẹp hoàn toàn có thể sở hữu vẻ ngoài phóng khoáng.
Sự kết hợp vật liệu và màu sắc đỉnh cao
Ngôi nhà gây ấn tượng mạnh bởi gam màu xám giả bê tông chủ đạo, tạo cảm giác bền bỉ và cực kỳ hiện đại. Để tránh sự đơn điệu, các kiến trúc sư của chúng tôi đã khéo léo chèn thêm mảng tường ốp gạch thẻ màu cam đất nổi bật chạy dọc theo chiều cao ngôi nhà. Sự tương phản giữa cái lạnh của tông xám và cái ấm của sắc cam tạo nên một diện mạo vô cùng hút mắt.
Không gian xanh len lỏi
Tại các ban công và bậu cửa sổ, hệ thống bồn hoa được tích hợp sẵn. Việc đưa cây xanh vào mặt tiền không chỉ giúp thanh lọc không khí mà còn là điểm nhấn giúp mẫu nhà ống 3 tầng đẹp này trở nên mềm mại, gần gũi với thiên nhiên hơn.

2. Chi tiết mặt bằng công năng: Tối ưu đến từng milimet
Một ngôi nhà đẹp trước hết phải là một ngôi nhà tiện nghi. Hãy cùng tôi khám phá cách các kiến trúc sư TechHome bố trí không gian cho gia đình anh Hoàng với diện tích sàn tầng 1 là 55m².
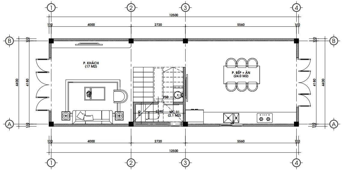
Tầng 1: Không gian sinh hoạt chung ấm cúng
Mặt bằng tầng 1 được thiết kế theo lối mở, giúp không gian trông rộng hơn hẳn so với diện tích thực tế.
-
Phòng khách (17m²): Nằm ngay sau cửa chính, là nơi tiếp đón bạn bè với thiết kế sang trọng.
-
Phòng bếp + ăn (24m²): Khu vực này chiếm diện tích khá lớn, cho thấy gia chủ rất coi trọng những bữa cơm gia đình.
-
WC 01 (2.1m²): Được giấu khéo léo dưới gầm cầu thang để tiết kiệm diện tích.
Chiều cao tầng 1 là 3m7 với hệ thống 21 bậc thang (độ cao mỗi bậc 176mm), đảm bảo sự thông thoáng và thuận tiện trong di chuyển.

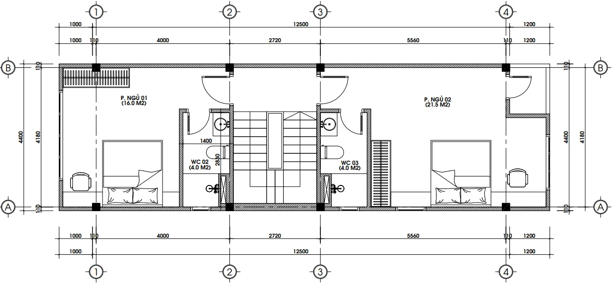
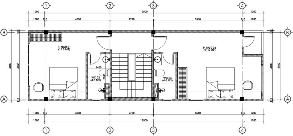
Tầng 2: Thiên đường nghỉ ngơi riêng tư
Lên đến tầng 2, diện tích sàn được mở rộng ra thành 65m² nhờ hệ thống ban công đua ra. Đây là không gian dành trọn cho việc nghỉ ngơi của gia đình.
-
Phòng ngủ 01 (16m²): Phía trước, có cửa sổ lớn đón sáng.
-
Phòng ngủ 02 (21.5m²): rộng rãi với cửa sổ phía sau, cửa phụ mở đón sáng và gió.
-
Hệ thống WC: Tầng này sở hữu 2 WC riêng biệt (mỗi phòng 4m²) đảm bảo sự riêng tư tối đa cho các thành viên.
Cầu thang tầng này gồm 19 bậc với độ cao bậc lý tưởng 173mm, giúp việc leo trèo không còn là nỗi lo. Đây chính là một điểm cộng lớn khi thiết kế mẫu nhà ống 3 tầng đẹp cho các gia đình có người già hoặc trẻ nhỏ.

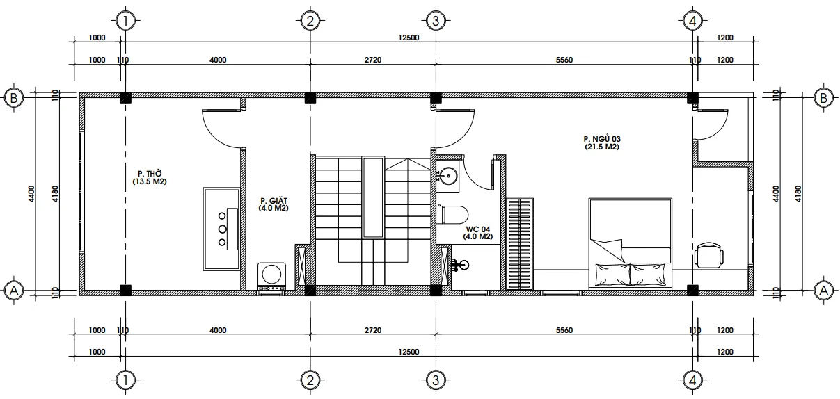
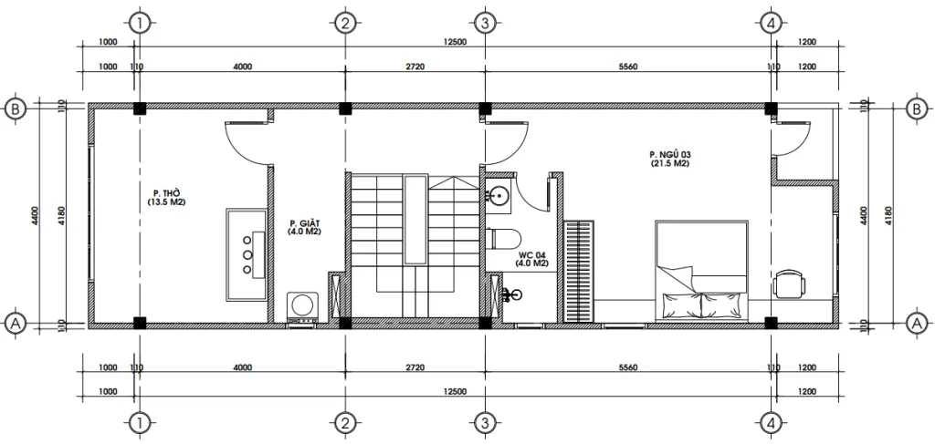
Tầng 3: Sự kết hợp giữa tâm linh và tiện ích
Tầng 3 tiếp tục duy trì diện tích 65m², tập trung vào các công năng phụ trợ nhưng không kém phần quan trọng.
-
Phòng thờ (13.5m²): Vị trí trang trọng nhất phía trước ngôi nhà, hướng ra ban công thoáng đãng.
-
Phòng ngủ 03 (21.5m²): Thêm một phòng ngủ rộng rãi dành cho khách hoặc con cái khi lớn lên. Tích hợp WC 04 (4m²) riêng biệt.
-
Khu vực giặt phơi (4m²): Bố trí hợp lý, gọn gàng.
Việc phân bổ công năng như vậy giúp mẫu nhà ống 3 tầng đẹp của anh Hoàng đáp ứng tốt nhu cầu cho gia đình từ 2-3 thế hệ cùng sinh sống.

3. Tại sao mẫu nhà ống 3 tầng đẹp của TechHome lại “hot” đến vậy?
Không phải ngẫu nhiên mà khách hàng tại Hưng Yên nói riêng và miền Bắc nói chung lại tin tưởng TechHome. Chúng tôi luôn tâm niệm mỗi ngôi nhà là một “đứa con tinh thần”.
-
Tính thực tế: Chúng tôi không vẽ ra những thứ phi thực tế. Bản vẽ kỹ thuật của chúng tôi chi tiết đến từng milimet để thợ xây nhìn vào là làm được ngay.
-
Sự thông thoáng: Với các mẫu nhà phố, chúng tôi đặc biệt chú trọng hệ thống ô văng, cửa sổ nhôm kính cao cấp để lấy sáng tự nhiên.
-
Vật liệu bền bỉ: Nhìn vào mái nhà anh Hoàng, bạn sẽ thấy hệ thống mái tôn chống nóng kết hợp bồn nước và năng lượng mặt trời được tính toán kỹ lưỡng để tối ưu chi phí vận hành sau này.

4. Báo giá thiết kế và thi công (Tham khảo 2026)
Để bạn dễ dàng hình dung về mức đầu tư cho một mẫu nhà ống 3 tầng đẹp tương tự, TechHome xin đưa ra bảng báo giá dự kiến. Lưu ý, giá có thể thay đổi tùy vào thời điểm và vật liệu bạn chọn.
| Hạng mục | Đơn giá dự kiến (VND) | Ghi chú |
| Thiết kế kiến trúc | 108.000 / m² |
Bao gồm phối cảnh 3D, hồ sơ kỹ thuật |
| Thi công phần thô | 3.800.000 – 4.200.000 / m² | Nhân công + vật tư thô |
| Thi công hoàn thiện (Gói khá) | 6.500.000 – 7.500.000 / m² | Chìa khóa trao tay |
Ước tính cho dự án 3 tầng (tổng sàn ~185m²): Tổng chi phí xây dựng trọn gói sẽ rơi vào khoảng 1.2 tỷ – 1.4 tỷ VNĐ. Đây là mức giá cực kỳ cạnh tranh cho một mẫu nhà ống 3 tầng đẹp với chất lượng thi công đảm bảo từ TechHome.
Lưu ý: Đây chỉ là mức chi phí ước tính. Để nhận được báo giá chính xác và chi tiết nhất cho công trình của bạn, vui lòng liên hệ trực tiếp với chúng tôi. Hoặc để tìm hiểu rõ hơn về tiêu chuẩn vật liệu xây dựng và các yếu tố ảnh hưởng đến chi phí, bạn có thể tham khảo thêm tại các bài viết chuyên sâu về vật liệu xây dựng cao cấp trên Wikipedia.

5. Góc nhìn chuyên gia: Bí quyết để có mẫu nhà ống 3 tầng đẹp không lỗi mốt
Chào các bạn, tôi là một chuyên gia tại TechHome, và sau đây là vài lời khuyên “xương máu” nếu bạn đang nung nấu ý định xây nhà:
-
Đừng ham rẻ mà bỏ qua khâu thiết kế: Hồ sơ thiết kế kỹ thuật thi công là tấm bản đồ giúp bạn tránh được những lãng phí không đáng có và rủi ro sập lún, nứt tường.
-
Chọn màu sắc trung tính: Những tông màu như xám, trắng, gỗ chưa bao giờ lỗi mốt. Nhìn vào mẫu nhà ống 3 tầng đẹp của anh Hoàng, 10 năm nữa trông nó vẫn sẽ rất “thời đại”.
-
Tối ưu ánh sáng tự nhiên: Hãy yêu cầu kiến trúc sư bố trí giếng trời hoặc cửa sổ lớn. Một ngôi nhà sáng sủa luôn mang lại năng lượng tích cực hơn một ngôi nhà âm u.
-
Phong thủy là sự khoa học: Không cần quá mê tín, nhưng việc bố trí phòng thờ hay hướng bếp hợp lý sẽ giúp bạn cảm thấy an tâm và thuận tiện hơn trong sinh hoạt.
Mẫu nhà ống 3 tầng đẹp không chỉ là cái vỏ bên ngoài, nó là sự tổng hòa của công năng bên trong và thẩm mỹ bên ngoài.

6. Kết luận: TechHome – Nơi hiện thực hóa ngôi nhà mơ ước
Xây nhà là việc đại sự của đời người. Chúng tôi hiểu những lo âu của bạn về chi phí, chất lượng và thời gian. Với dự án của anh Hoàng tại Hưng Yên , TechHome một lần nữa khẳng định vị thế của mình trong việc kiến tạo những mẫu nhà ống 3 tầng đẹp hàng đầu.
Nếu bạn đang sở hữu một mảnh đất phố và chưa biết bắt đầu từ đâu, đừng ngần ngại nhấc máy lên. Một mẫu nhà ống 3 tầng đẹp cùng một không gian sống đẳng cấp đang chờ đợi bạn.
CÔNG TY CỔ PHẦN KIẾN TRÚC VÀ XÂY DỰNG TECHHOME
-
Website: https://nhadeptechhome.vn/
-
Hotline tư vấn: 036.273.2222
- Địa chỉ: B1.1 LK18 Ô 3 – KĐT Thanh Hà – Cienco 5 – Thanh Oai- Hà Nội.
Chúng tôi không chỉ xây nhà, chúng tôi xây tổ ấm. Hãy để mẫu nhà ống 3 tầng đẹp của bạn trở thành niềm tự hào của cả khu phố!
